
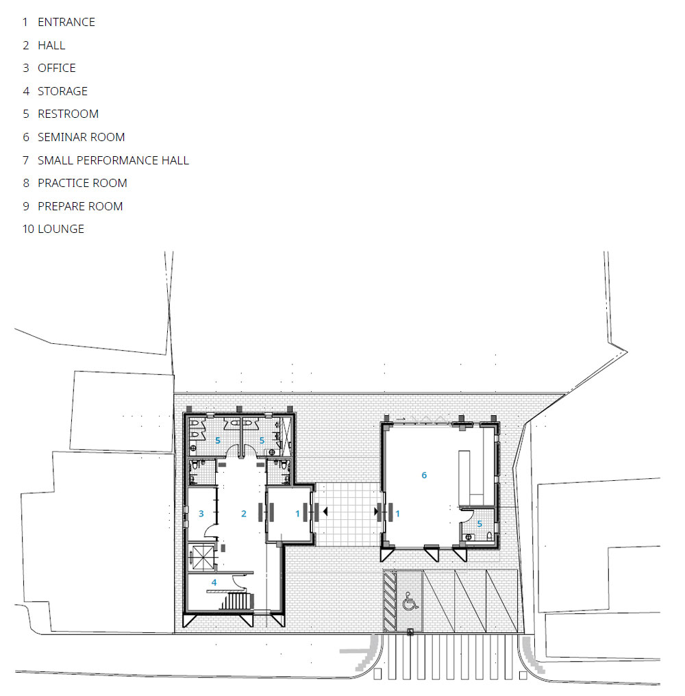
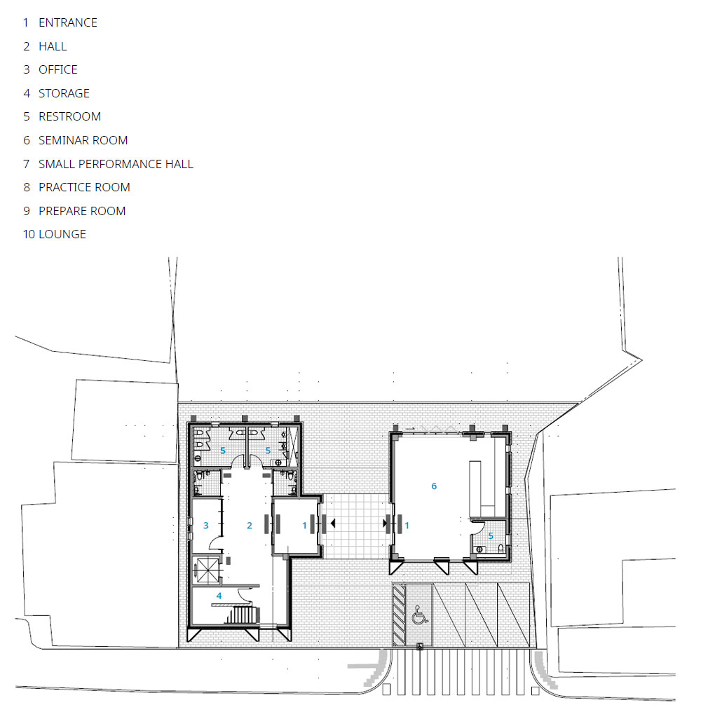
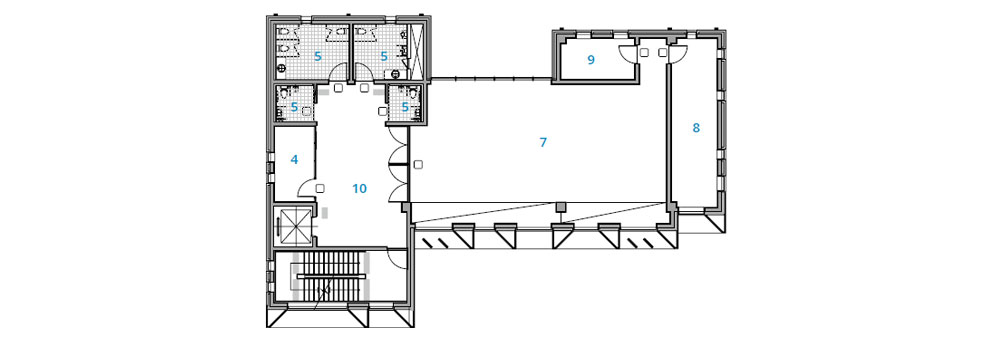
세종시 전의면 청소년문화센터는 작은 숲의 개념을 적용하여 만든 전의면 지역 주민과 읍내리 방문객과 배후 마을 사람들이 함께 모여 어울리는 공간이다. 빛의 전달과 투과, 반사의 성질을 이용하여 마을의 경계에 머물러있는 자연을 담아 밝고 경쾌한 환경의 문화공간이라는 점이 가장 큰 특징이다.
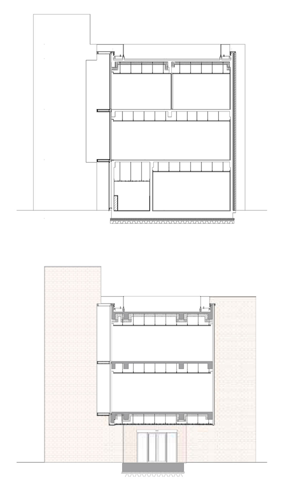
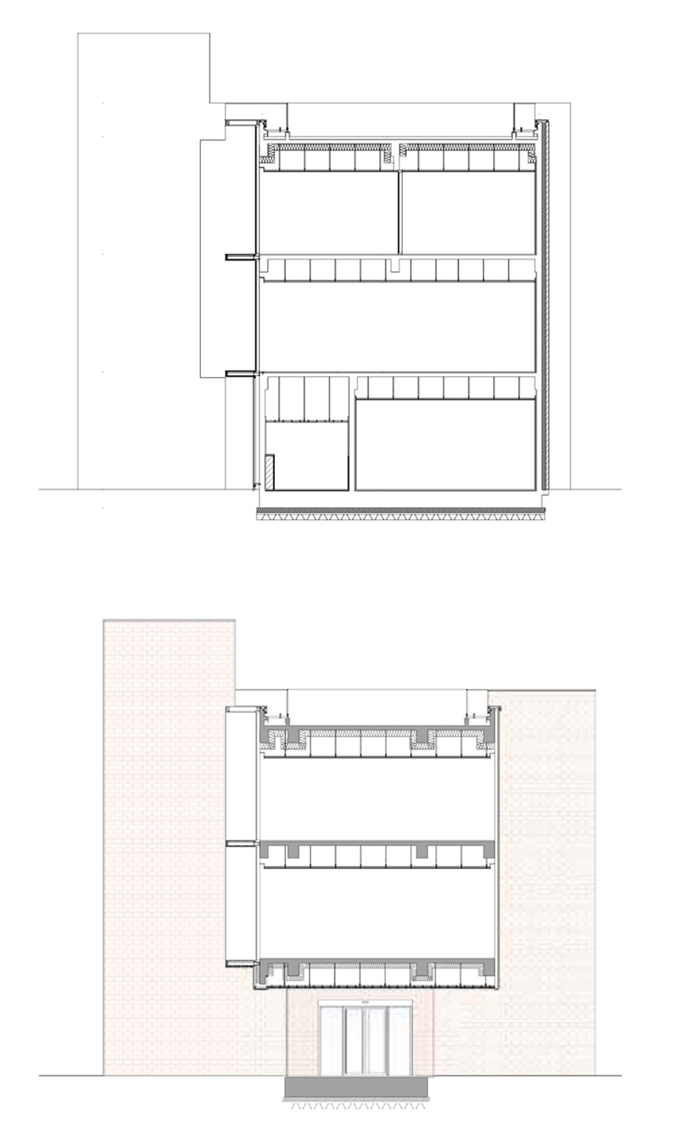
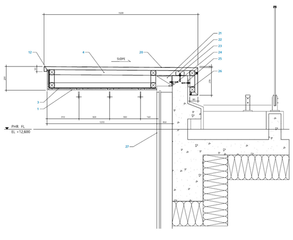
전의면 청소년문화센터는 세워지기까지 긴 과정을 거쳤다. 공모 당선작의 실시 설계 도면을 납품한 후, 공사 현장에서 문화재가 발견된 것이다. 이미 현상설계에 당선되었음에도, 공모 자체가 재공고 나게 되면서 설계 공모전에 다시 참여하여 또 당선된 프로젝트이다. 과거 전의면을 구성하였던 붉은 색의 짙음(벽돌)에서 청소년의 활동적인 모습을 상징하는 밝은 주황색의 테라코타까지, 같아 보이지만 실로 다양한 빨강의 배합과 조율을 통해 벽돌과 테라코타 두 재료를 섞어내어 전의의 과거와 현재를 잇는 역사적인 시간의 문화유산을 표현했다. 또한 빛의 성질을 이용한 공간의 구성은 전의청소년문화센터에 리듬을 부여하고 더 나아가 지역사회에 활기를 불어넣는다.














건축가 Sung et Associés architecture
위치 세종특별자치시 전의면 읍내리
용도 수련시설(청소년문화센터)
대지면적 1,539.00㎡
건축면적 305.77㎡
연면적 805.92㎡
규모 지상 3층
견폐율 20.62%
용적률 54.34%
설계기간 (1차)2018. 3 - 10 / (2차) 2020. 7 - 12
시공기간 (1차)2019. 3 - 11 / (2차) 2021. 4 - 2022. 1
준공 2022. 1
대표건축가 / 프로젝트건축가 성 진
디자인팀 (팀장) 김준섭 / (팀원) 임성경, 이승일, 조용기
구조엔지니어 성남구조기술사사무소
기계엔지니어 / 전기엔지니어 (주)태창전기설계사무소
시공 태창건설주식회사
발주자 세종특별자치시
사진작가 남궁선
해당 프로젝트는 건축문화 2023년 2월호(Vol. 501)에 게재되었습니다.
The project was published in the February, 2023 recent projects of the magazine(Vol. 501).
February 2023 : vol. 501
Contents : NEWS / COMPETITION / BOOKS : SKETCH Things that make a day in your daily life / Hossain mousavi 일상 속에서 하루를 만드는 것들 / 호사인 무사비 : RECENT PROJECT Building of Music / Aisaka Architects’ Atelier 음악 복합공
anc.masilwide.com
'Architecture Project > Cultural' 카테고리의 다른 글
| I AM CENTER (0) | 2023.04.21 |
|---|---|
| Pavilion Z (0) | 2023.04.13 |
| The Playful Houses (0) | 2023.04.11 |
| Building of Music (0) | 2023.04.10 |
| COSMO 40 phase2 & COSMIC LIGHTS (0) | 2023.04.07 |
마실와이드 | 등록번호 : 서울, 아03630 | 등록일자 : 2015년 03월 11일 | 마실와이드 | 발행ㆍ편집인 : 김명규 | 청소년보호책임자 : 최지희 | 발행소 : 서울시 마포구 월드컵로8길 45-8 1층 | 발행일자 : 매일



