
The design of the reconstruction and extension of Pavilion Z is based on the original shape of the building. It consisted of three increasing blocks, where the smallest one is near the ground and the volume increases and gets heavier towards the top. The A8000 studio, however, builds on it seamlessly. The inspiration for the reconstruction was a plant motif and the process of bonsai breeding. In the same way that a carefully selected portion of the leaves is cut from the plant to achieve a new airy and original look, the architects stripped away the individual period deposits and random layers that were not conducive to the building's appearance. Parts of the original mass are removed - glazed to give the final effect an airy and elegant appearance. The original pavilion has been stripped to the bone. The exposed steel skeleton is newly admitted and elevated to the initial principle of the interior.
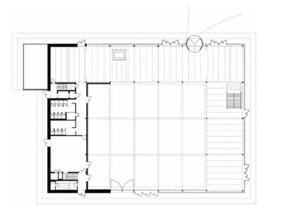
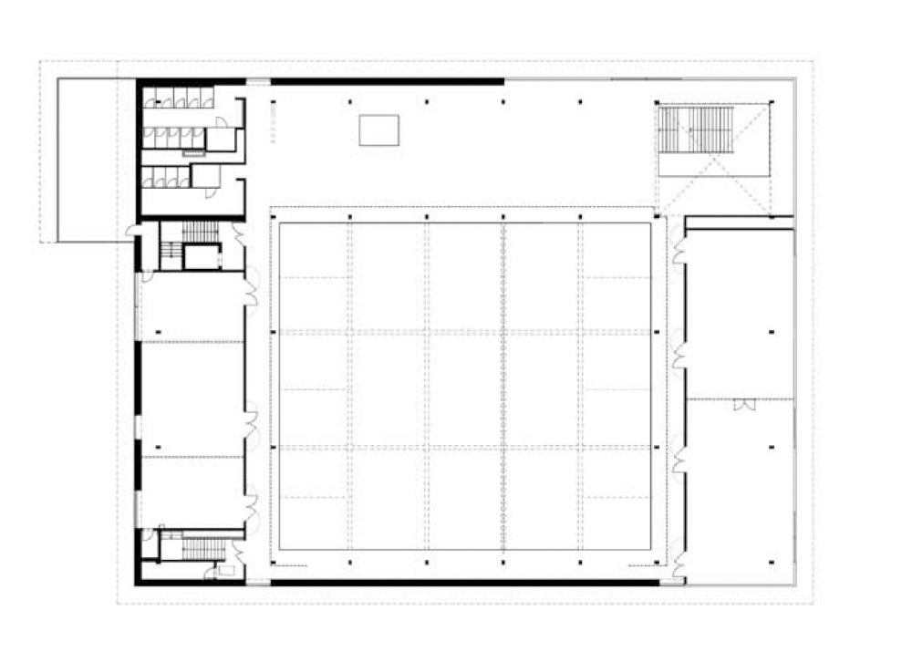
Multifunctionality was also a central theme of the project, which became essential for the revival of the České Budějovice Pavilion Z Exhibition Centre. The basic idea and the investor's brief was to create a multifunctional and maximally variable space, not a single-purpose hall. The pavilion should be used for various events such as trade fairs, exhibitions, congresses, but also balls and concerts. It can adapt to the various challenges and technical requirements of the organisers. Not only the architectural but also the technical aspect of the project was absolutely crucial. The main hall is designed as an open multifunctional and highly variable space, which can change its layout freely from an exhibition hall to a congress or theatre hall to a ballroom or concert hall. The renovated pavilion now offers a main hall with a capacity of 850 seats or 1500 standing. Multifunctionality is written into all parts of the project, for example, with the use of minimalist polished concrete floors usually found in logistics centres and production halls. It will accommodate tractors during the agriculture exhibition, but it will not offend even during a festive social event or a concert by the South Bohemian Philharmonic Orchestra. In addition, the entrance hall and the main space flow freely into the upper floor, where we can find two additional halls that can be variably divided and used as event facilities, exhibition spaces or conference halls.
The pavilion opens up especially in its eastern part towards the river and the city. Materially, the external appearance takes two forms - solid and transparent. For the solid form, the material chosen is white metal cassettes and white roofing foil. The transparent form is addressed with glass, either clear structural glazing or the more intimate material of copilite. The use of profiled glass is also a reference to the original architecture. It is complemented by large-format windows that open up the interior space with a contemporary solution.
The interior is designed to be open and flexible. In order to create as much space as possible, all the ancillary facilities were concentrated in the outermost wing, leaving the rest of the building free. The pavilion can thus be modified by a system of draperies - curtains from the exhibition or gallery space to the closed concert hall. When the curtains are opened, the surrounding greenery flows directly into the interior of the hall, while when they are closed, a perfect blackbox is created. One finds oneself inside and in the green at the same time. A limiting yet beautiful element was the existing structure of the building, where the exposed steel structures were preserved, thus further de-masking the entire space and drawing out its original structure - the soul. This principle also determined the design direction of the interior, where, in contrast to the almost minimalist exterior, a more technicist approach was taken on the edge of high-tech architecture. Thus, various technical equipment systems, from the massive HVAC ducts to the red piping of the fire system, accompany us through the interior. The atmosphere of the interior is softened by the soft light permeating through the copilite wall, which also shows the outlines of the events of the exterior.

파빌리온 Z의 재건축과 증축 설계는 건물의 원형을 기반으로 한다. 그것은 세 개의 증가하는 블록으로 구성되어 있는데, 가장 작은 블록이 하단인 땅에 있고 건축물 볼륨이 위로 갈수록 증가하며 무거워진다. 재건축의 영감은 식물의 분재 번식 과정이었다. 신중하게 선별된 잎의 일부를 식물에서 잘라내어 통풍이 잘되는 곳에 두면 다시 독창적인 모습으로 자라는 것과 마찬가지로, 건축가는 건축물의 외관에 도움이 되지 않는 개별적인 정기 퇴적물과 무작위 층을 벗겨냈다. 이렇게 하여 원래 볼륨의 일부는 제거되고 최종적으로 통풍이 잘되는 효율적이고 우아한 외관을 갖게 되었다. 원래의 파빌리온은 구조체까지 벗겨졌다. 이를 통해 노출된 철골 골격을 새롭게 도입하여 실내 디자인의 원칙으로 삼았다.
다기능성은 또한 이 프로젝트의 핵심 주제였으며, 이는 체코 부데조비체 전시관 Z(Ceské Budějovice Pavilion Z)의 재건에 필수적인 것이 되었다. 기본 아이디어와 투자자의 설명은 단일 목적의 홀이 아니라 다기능적이고 최대 가변적인 공간을 만드는 것이다. 이 파빌리온은 무역 박람회, 전시회, 의회 뿐만 아니라 무도회와 콘서트와 같은 다양한 행사에 사용되어야 한다. 주최자의 다양한 과제와 기술적 요구사항에 적응할 수 있도록 설계되었다. 메인 홀은 개방형 다기능·변형성이 높은 공간으로 설계돼 전시장에서 의회나 극장, 무도장이나 공연장으로 자유롭게 배치를 변경할 수 있다.
재건축된 파빌리온은 현재 850석 또는 1500석 규모의 메인 홀을 제공한다. 파빌리온은 특히 동쪽 부분에서 강과 도시를 향해 열려 있다. 물질적으로 외형은 닫힌 면과 투명한 부분, 두 가지 형태를 취한다. 닫힌 면의 경우 선택한 재료는 흰색 금속 패널과 흰색의 금속 지붕재이다. 투명한 면에는 투명한 구조의 글레이징이나 보다 친근한 코필라이트 재질의 유리로 처리되었다.
내부는 개방적이고 유연하도록 설계되었다. 최대한 공간을 확보하기 위해 부속시설을 모두 최외각에 집중시켜 나머지 건물은 자유롭게 만들었다. 따라서 전시장이나 갤러리 공간에서 닫힌 공연장에 이르는 커튼과 같은 커튼 시스템을 통해 파빌리온을 변형하여 사용 할 수 있다. 커튼이 열리면 주변 녹지가 홀 내부로 바로 흘러 들어가고, 닫히면 완벽한 블랙박스가 만들어진다. 방문객은 자신의 내면과 녹색을 동시에 발견한다. 제한적이면서도 아름다운 요소는 노출된 강철 구조물이 보존된 건물의 기존 구조물이다.














건축가 A8000
위치 체스케 부데요비체, 체코
용도 전시 시설
대지면적 28,500㎡
건축면적 2,400㎡
연면적 3,200㎡
규모 지상 2층
설계기간 2019
준공 2021
프로젝트건축가 Martin Krupauer, Pavel Kvintus, Daniel Jeniště, Petr Hornát
디자인팀 Anežka Vonášková, Jaroslav Kedaj, Zdeněk Fux, Milan Oktabec, Ladislav Krlín
협업 (시공) OHL ŽS / (기계엔지니어) ŠTROB & SPOL / (구조엔지니어) STATIKON Solutions
발주자 Exhibition Centre České Budějovice
사진작가 Ondřej Bouška
해당 프로젝트는 건축문화 2023년 2월호(Vol. 501)에 게재되었습니다.
The project was published in the February, 2023 recent projects of the magazine(Vol. 501).
February 2023 : vol. 501
Contents : NEWS / COMPETITION / BOOKS : SKETCH Things that make a day in your daily life / Hossain mousavi 일상 속에서 하루를 만드는 것들 / 호사인 무사비 : RECENT PROJECT Building of Music / Aisaka Architects’ Atelier 음악 복합공
anc.masilwide.com
'Architecture Project > Cultural' 카테고리의 다른 글
| Floating Melodies - Liyang Museum (0) | 2023.05.03 |
|---|---|
| I AM CENTER (0) | 2023.04.21 |
| Jeonui Youth Cultural Center (0) | 2023.04.11 |
| The Playful Houses (0) | 2023.04.11 |
| Building of Music (0) | 2023.04.10 |
마실와이드 | 등록번호 : 서울, 아03630 | 등록일자 : 2015년 03월 11일 | 마실와이드 | 발행ㆍ편집인 : 김명규 | 청소년보호책임자 : 최지희 | 발행소 : 서울시 마포구 월드컵로8길 45-8 1층 | 발행일자 : 매일



