
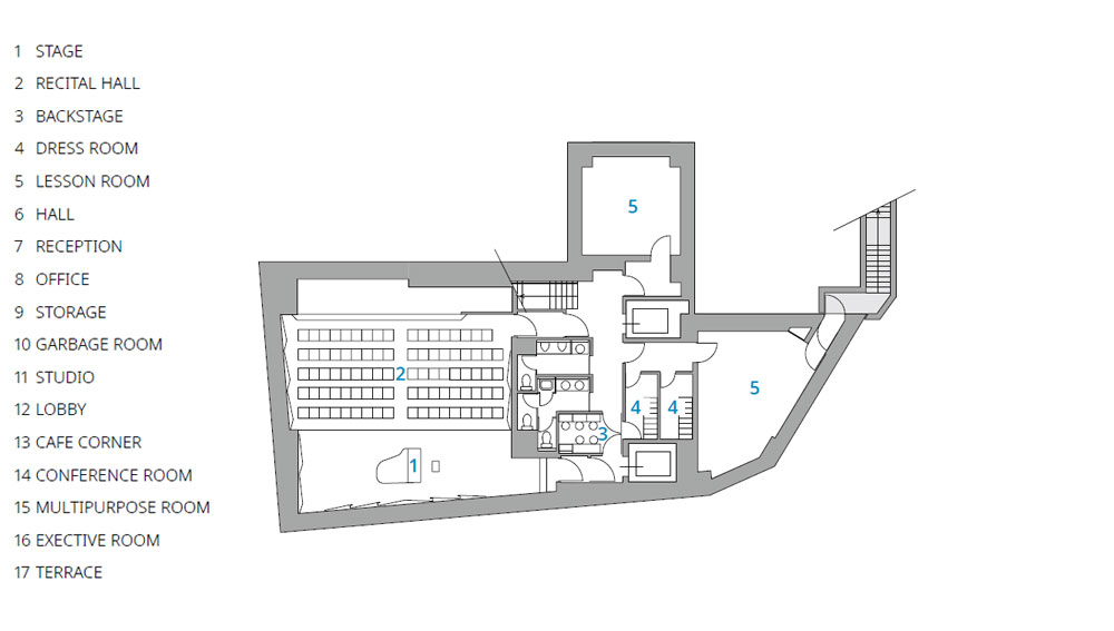
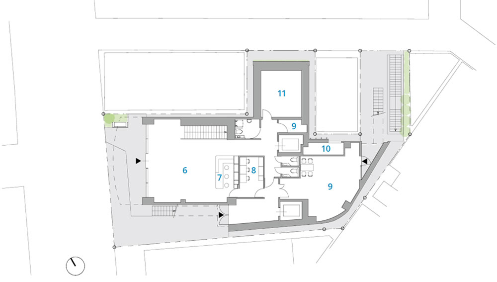
This commercial complex for a music company with a long history includes music classrooms, instrument sales and storage spaces, and the company’s main offices. Located in the Kanda-Ochanomizu area of Tokyo, which is known for its many music stores, the lot is small and irregularly shaped. The client requested a building that efficiently combined a variety of functions, including rooms for lessons in piano, violin, and other instruments; a hall for recitals; a professional recording equipment shop; storage for wholesale instrument sales; and offices to manage these various aspects of the businesses.
The requirements related to soundproofing, views, daylighting, shade, and usage time varied for each floor, and the likelihood that these requirements would change in the future was high. We therefore decided to use a double skin that maintains a unified exterior appearance regardless of how rooms are being used or whether windows are open. We selected a mesh membrane that sways at high altitudes, can easily be rounded in all directions to allow for optimal sky-view ratios, and is porous to light and air.
Made of polyester fibers coated with PVC resin, the fireproof exterior mesh membrane blocks visibility from the outside while allowing those inside to see out. A solar reflectance rate of 33 percent lowers the air conditioning load by 28 percent. The membrane can be bent three-dimensionally, and because it is light and perforated, there is little structural stress from either the weight of the material itself or wind pressure. Because there is no danger related to the material falling to the ground, it is easy to replace and maintain and can be reused. The covid-19 pandemic has increased the appeal of facades such as this that enhance natural ventilation while maintaining privacy.
The form of the building takes into account the irregular lot shape, codes related to height and setback, and necessary elements such as emergency stairs, balconies, plumbing, and wiring as well as the need to express the company’s identity. We incorporated shapes inspired by various musical instruments, adjusted to maximize capacity. The mesh-covered façade evokes a speaker sending music into the neighborhood, transforming the building into a giant sign advertising the company inside.

‘음악 복합공간’은 오랜 역사를 가진 음악관련 회사의 사옥이며 스튜디오다. 레슨실, 악기 판매 및 보관 공간, 회사의 주요 업무 공간 등이 포함된다. 또한, 이 건축물이 자리잡은 도쿄의 간다-오차노미즈 지역은 레코즈 가게가 많기로 유명한 곳으로 좁고 불규칙한 골목이다. 건축주는 피아노, 바이올린, 기타 악기 레슨실, 리사이틀을 위한 작은 홀, 전문 녹음 장비 가게, 악기 도매 판매를 위한 창고, 이러한 사업을 관리할 사무실 등 다양한 기능을 복합적으로 수행할 수 있는 공간을 요청했다.
방음, 조망, 채광, 차양, 사용 시간에 따른 요청사항은 공간별로 달랐다. 또한, 건물이 준공된 후에도 쓰임에 따라 이러한 공간에 대한 요구사항은 변경될 필요가 있었다. 따라서, 건축가는 각 실을 어떻게 사용하고 있는지, 창문이 열려 있는지에 상관없이 통일된 외관을 가지도록 더블 스킨 파사드로 설계했다. 높은 고도에서 흔들리고, 최적의 스카이뷰 비율을 허용하기 위해 모든 방향으로 깔끔한 둥근 형태로 만들었으며, 빛과 공기가 순환할 수 있는 다공성 메쉬막을 사용했다.
PVC 수지가 코팅된 폴리에스테르 섬유로 만들어진 내화성의 외장재는 외부로부터의 가시성을 차단하지만 전체적으로는 내부의 활동이 윤곽정도로 보이게 한다. 이러한 메쉬 멤브레인은 33%의 태양 반사율과 에어컨 부하를 28% 낮추도록 만든다. 막은 입체적으로 구부릴 수 있으며, 가볍고 구멍이 뚫려 있어 재료 자체의 무게나 풍압으로 인한 구조적으로도 튼튼하다. 뿐만 아니라, 교체와 유지보수가 용이하고 재사용도 가능하다. 코로나-19 범유행에 따라, 프라이버시를 유지하면서도 자연 환기를 강화하는 이와 같은 건축물은 입면의 기능적인 부분을 만족스럽게 만들 뿐만 아니라 심미성도 가지게 한다.
건물의 형태는 불규칙한 부지 형태, 높이와 건축선 후퇴에 관련된 법규, 비상계단, 발코니, 배관, 배선 등 필요한 요소와 회사의 정체성을 표현할 필요성을 모두 고려했다. 다양한 악기에서 영감을 받은 모양을 통합하여 건축물이 최대화 되도록 조정했다. 메쉬로 덮인 정면은 음악을 이웃으로 보내는 스피커를 환기시키며, 건축물 자체를 내부의 회사를 광고하는 거대한 간판으로 변화시킨다.
















건축가 Aisaka Architects’ Atelier
위치 일본, 도쿄, 지요다구
용도 복합상업시설(음악수업공간, 소매점, 보관 및 작업공간)
대지면적 351.67㎡
건축면적 220.90㎡
연면적 1667.98㎡
층수 지하 1층, 지상 8층
준공 2022. 3
대표건축가 Kensuke Aisaka
프로젝트건축가 Kensuke Aisaka
구조엔지니어 Ohno Japan
설비엔지니어 Zo Consulting Engineers
조명디자인 Izumi Okayasu Lighting Design
간판디자인 Hiromura Design Office
사진작가 Shigeo Ogawa, Kensuke Aisaka
해당 프로젝트는 건축문화 2023년 2월호(Vol. 501)에 게재되었습니다.
The project was published in the February, 2023 recent projects of the magazine(Vol. 501).
February 2023 : vol. 501
Contents : NEWS / COMPETITION / BOOKS : SKETCH Things that make a day in your daily life / Hossain mousavi 일상 속에서 하루를 만드는 것들 / 호사인 무사비 : RECENT PROJECT Building of Music / Aisaka Architects’ Atelier 음악 복합공
anc.masilwide.com
'Architecture Project > Cultural' 카테고리의 다른 글
| Jeonui Youth Cultural Center (0) | 2023.04.11 |
|---|---|
| The Playful Houses (0) | 2023.04.11 |
| COSMO 40 phase2 & COSMIC LIGHTS (0) | 2023.04.07 |
| Fengdong E Pang Bookstore (0) | 2023.04.07 |
| Jochiwon Social and Cultural Center (0) | 2023.04.04 |
마실와이드 | 등록번호 : 서울, 아03630 | 등록일자 : 2015년 03월 11일 | 마실와이드 | 발행ㆍ편집인 : 김명규 | 청소년보호책임자 : 최지희 | 발행소 : 서울시 마포구 월드컵로8길 45-8 1층 | 발행일자 : 매일



