
COSMO40 phase2
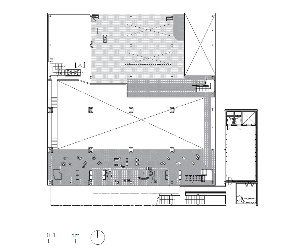
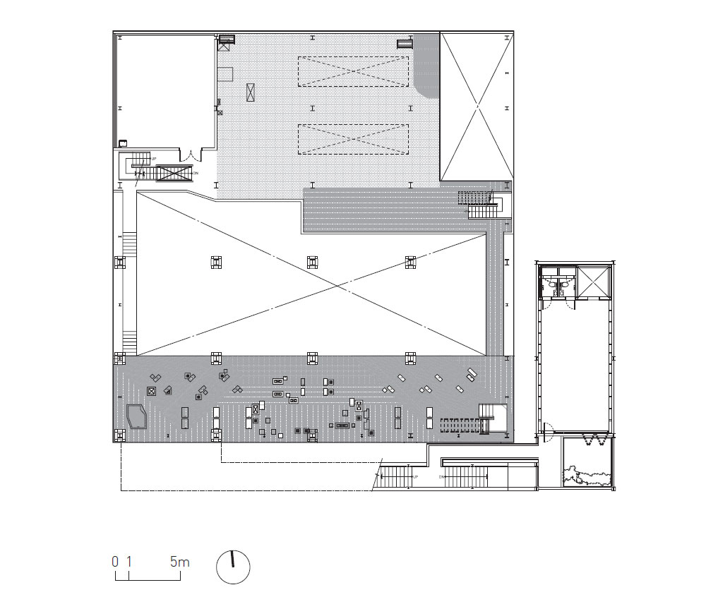
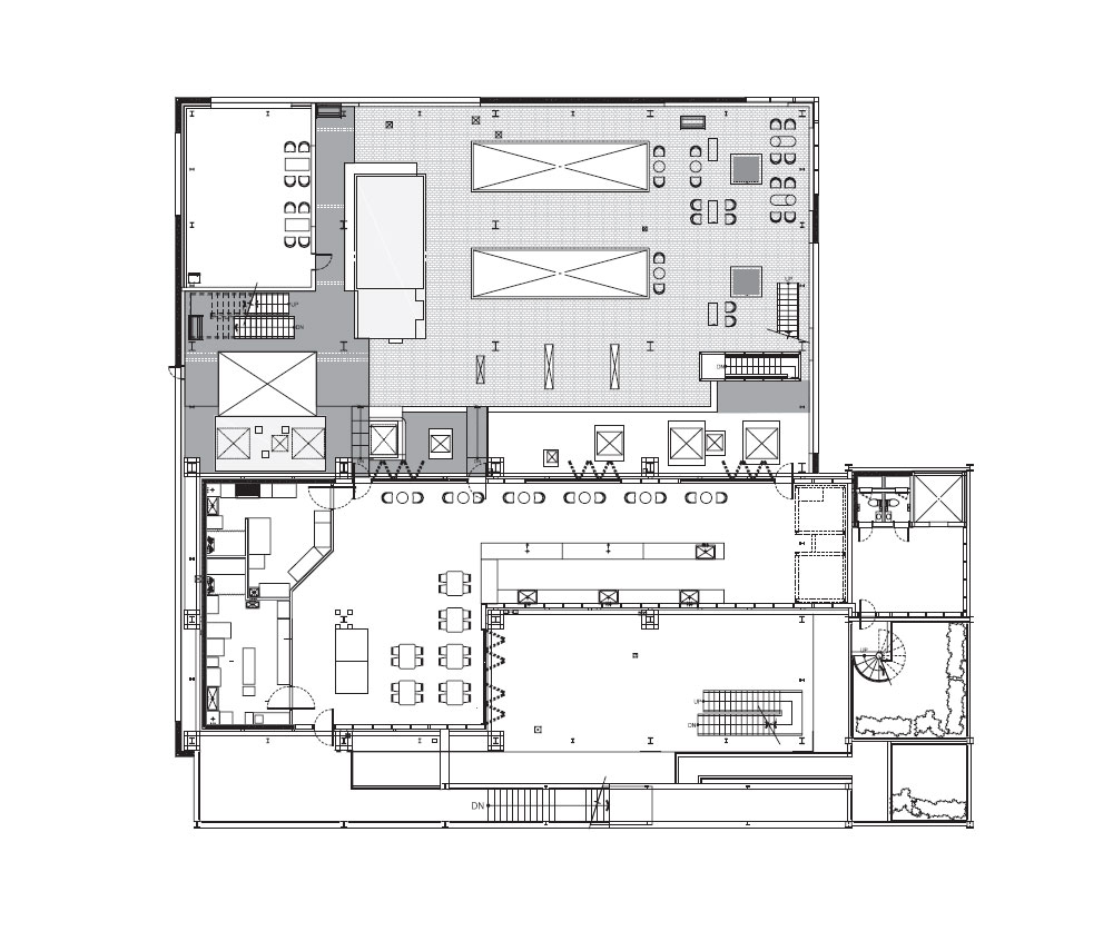
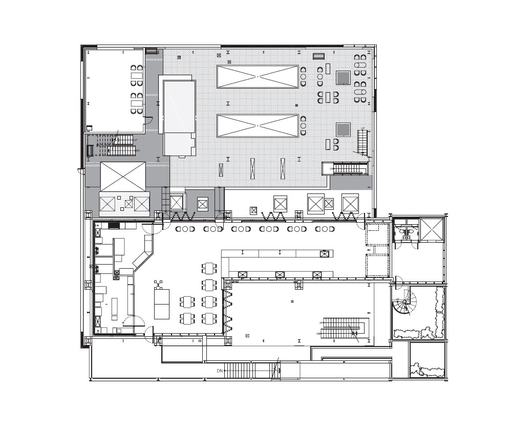
Located in Seo-gu, Incheon, COSMO40 is a cultural complex. Phase 2 is the first stage of construction (designed by LIFETHINGS Architecture Office) of COSMO40, which took an abandoned factory and transformed it into a cultural complex. A new function, space, and circulation plan are created in the existing factory where traces of the old building are left intact, in spaces where access was not permitted (first floor bunker space, grating floor of the fourth floor).
Considering the relationship with the first stage, which aimed to leave traces of the factory’s structural characteristics and the flow of time, the second stage was also carried out so that it does not damage the spatial context. The concept of the second stage work is ‘palimpsest’, which is writing that is overlaid on a manuscript. It means that new possibilities can be contained in the way that new spatial elements are added to, overlapped and juxtaposed on top of the existing space. Within it is also the architect’s intent, which is for it to grow into a borderless space of inspiration as new elements are juxtaposed and layers are piled up by various artists after the second stage. COSMO Folly, planned in blue green and orange, was placed as a means to revitalize the old factory space, connect the three-dimensionally located voids visually and spatially, and connect the boundaries between the new and old buildings. COSMO Folly, which is scattered throughout the space, changes the meaning and usability of the space according to its function by the user. The existing steel stairs connecting the 3rd and 4th floors were painted in blue green and transformed into solid objects to give the space an identity. The fourth floor is a space where equipment had been placed on the steel grating. The equipment was removed during the factory relocation, and traces of bending and tearing remained intact on the grating deck, preserving the memory and atmosphere of the existing factory.
I displayed the grating floor, which preserves history, as much as possible in its current state, placed a floating red floor layer to allow users to experience the space, and at the deepest part, planned a grating hall divided with orange grating walls and velvet curtains. In the second stage of COSMO40, we did not adopt a method of leaving all the factory elements simply for the sake of preserving history, but it was a process of selecting and amending with the context of being used as a cafe and exhibition space in mind. Rather than restoring it with the exact same material and form as the elements of the past, similar but new materials were overlapped and juxtaposed to form the space.

코스모40 2단계 프로젝트
인천 서구에 위치한 코스모40은 복합문화 공간으로, 2단계 프로젝트는 1단계 프로젝트(삶것 건축사사무소 설계)를 통해 기존 폐공장이 복합문화공간으로 탈바꿈된 것에서 더 나아간다. 2단계는 시간의 흔적을 고스란히 간직한 코스모40을 구관(기존 공장)과 접근이 허락되지 않은 공간(1층 벙커 공간, 4층 그레이팅 플로어)을 새로운 기능을 가진 공간으로 만들고, 이어주는 동선 계획을 말한다.
공장이 가진 구조적 특성과 시간의 흐름이 켜켜이 쌓인 흔적을 남기고자 했던 1단계와의 관계를 고려해 2단계 역시 공간적 맥락을 훼손시키지 않는 방향으로 진행됐다. 2단계 작업의 콘셉트는 글이 쓰인 양피지 위로 또 다른 글을 덧씌운다는 의미의 ‘팔림프세스트palimpsest’이다. 새로운 공간 요소가 기존의 공간 위로 덧대어지면서 그 위로 중첩되고 병치되는 방식으로 새로운 가능성을 담을 수 있다는 뜻이다. 2단계 이후 다양한 아티스트에 의해 새로운 요소가 병치되고 레이어가 쌓여 가면서 경계 없는 영감의 공간으로 성장하길 바라는 설계자의 의도도 숨겨져 있다. 옛 공장 공간에 활기를 불어넣고, 입체적으로 위치한 보이드를 시각적, 공간적으로 연결하고, 신관과 구관의 경계를 잇기 위한 장치로 청록과 오렌지 컬러로 계획된 COSMO Folly가 배치됐다. 공간에 흩어져 놓인 COSMO Folly는 이용자에 의해 기능을 달리하며 공간의 의미와 활용성을 변화시킨다. 3층과 4층을 연결하는 기존의 철제 계단은 청록색 컬러를 입히고 솔리드한 오브제로 변형하여 공간에 아이덴티티를 부여한다. 4층은 철제 그레이팅 위에 장비가 놓여 있던 공간으로, 공장 이전과 함께 장비는 철거되고 그레이팅 데크에 휘어지고 찢긴 흔적이 고스란히 남아 기존 공장의 기억과 분위기를 간직하고 있는 공간이었다.
저는 시간과 흔적이 보존된 그레이팅 플로어를 최대한 현재 상황 그대로 유지하여 전시하고, 이용자가 공간을 체험할 수 있도록 하기 위하여 붉은 색의 띄워진 바닥 레이어를 배치하고 가장 깊은 곳에 주황색 그레이팅 월과 벨벳 커튼으로 구획된 그레이팅홀을 계획한다. 코스모40 2단계에서는 단순히 시간의 흔적이 남아 있다는 이유로 공장의 모든 요소를 남기는 방식이 하니라 카페와 전시 공간으로 활용되는 오늘날의 맥락을 고려해 선별하여 보정하는 작업이었다. 과거의 요소와 완전히 똑같은 재료와 형식으로 복원하기보다는 비슷하면서도 새로운 재료를 사용해 중첩과 병치 방식으로 공간을 이룬다.

COSMIC LIGHTS
Another unidentified object appears in a space such as the unknown universe. Floating in the air, it sees and illuminates someone, and sometimes may even engage in conversation. We try to communicate and make contact with it, which strangely blends in with space and hides, or attracts attention with its unique shape. When installed on the hoist of COSMO40, red light seeps through from the center and indirect lighting is installed between the masses. The lighting installation will be a display that goes well with the interior space of an industrial facility with a vertically maximized sense of openness.

코스믹 라이트
미지의 우주와 같은 공간에 또 하나의 미확인 물체가 나타난다. 공중에 떠서 누군가를 바라보기도 하고 비추기도 하며, 때로는 말을 걸어올지도 모른다. 공간과 묘하게 어우러져 은신하기도 하고, 독특한 형상으로 주목을 끌기도 하는 그것과 우리는 교감, 교신하기위해 노력한다. 코스모40의 호이스트에 설치되었을 때, 그 중심으로부터 붉은 빛이 스며나오며 매스와 매스 사이에는 간접조명이 설치된다. 라이팅 인스톨레이션은 수직적으로 극대화된 개방감을 가진 산업시설의 내부공간과 잘 어울리는 전시물이 될 것이다.
















Architect SML
Location Janggogae-ro, Seo-gu, Incheon, Republic of Korea
Site area 2,000㎡
Building area 1,192.22㎡
Gross floor area 3,508.84㎡
Building scope B1, 4F
Design period 2019. 3 - 6
Construction period 2019. 7 - 2020. 10
Principal architect Seungmo Lim
Construction WITH ARCH
Photographer Kyungsub Shin, SML
해당 프로젝트는 건축문화 2023년 1월호(Vol. 500)에 게재되었습니다.
The project was published in the January, 2023 recent projects of the magazine(Vol. 500).
January 2023 : vol. 500
Contents : RECORDS Peek into the future of architecture and urban space through data from various fields 다양한 분야의 데이터로 건축·도시공간의 미래를 엿보다 Seoul's Urban and Architecture Field in Walking 걸어보며 느끼는 서
anc.masilwide.com
'Architecture Project > Cultural' 카테고리의 다른 글
| The Playful Houses (0) | 2023.04.11 |
|---|---|
| Building of Music (0) | 2023.04.10 |
| Fengdong E Pang Bookstore (0) | 2023.04.07 |
| Jochiwon Social and Cultural Center (0) | 2023.04.04 |
| Yeongju Saemal Community Center (0) | 2023.04.03 |
마실와이드 | 등록번호 : 서울, 아03630 | 등록일자 : 2015년 03월 11일 | 마실와이드 | 발행ㆍ편집인 : 김명규 | 청소년보호책임자 : 최지희 | 발행소 : 서울시 마포구 월드컵로8길 45-8 1층 | 발행일자 : 매일



