
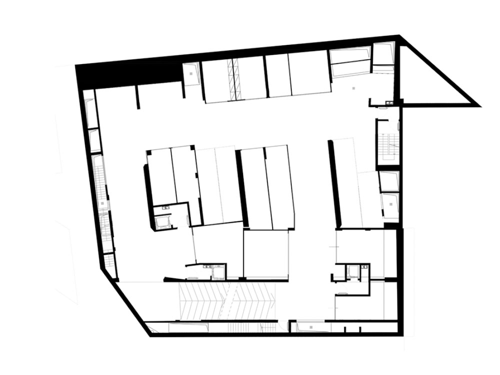
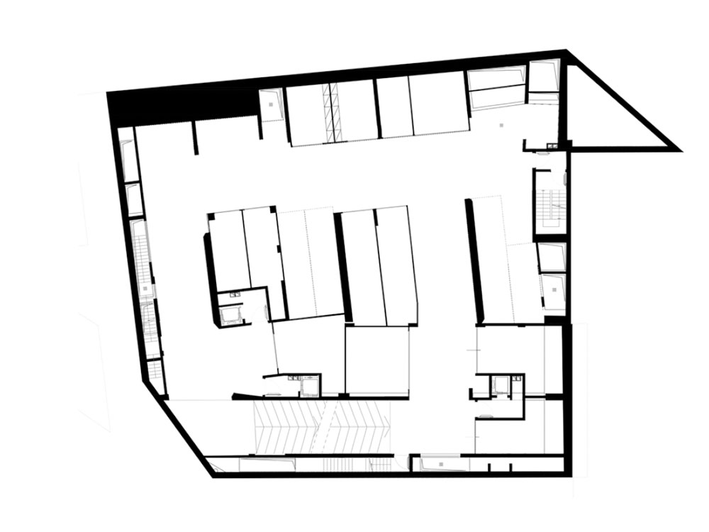
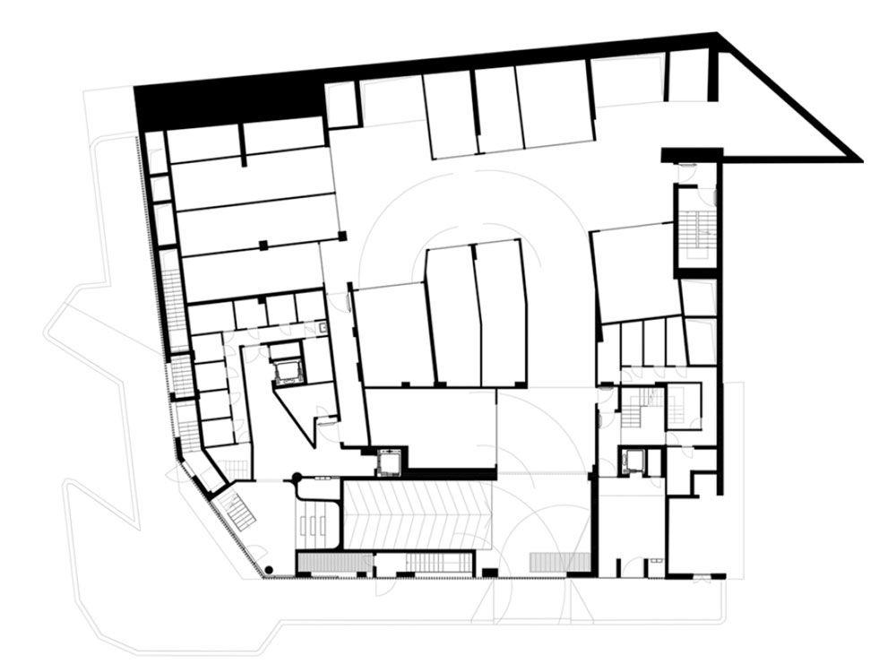
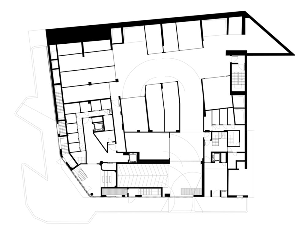
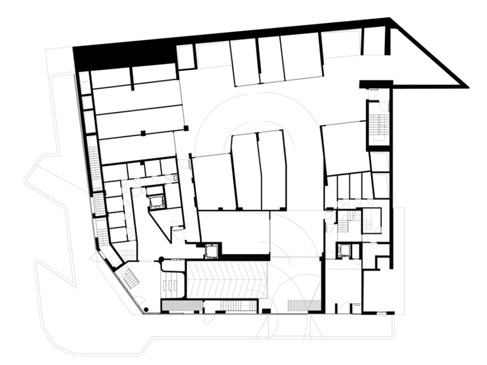
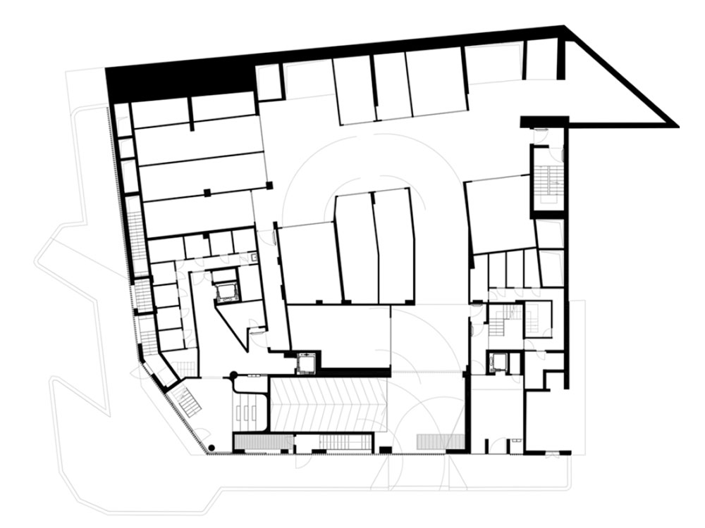
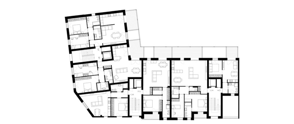
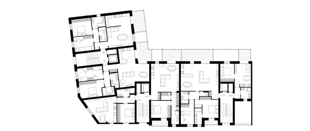
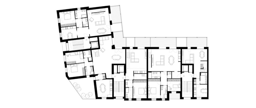
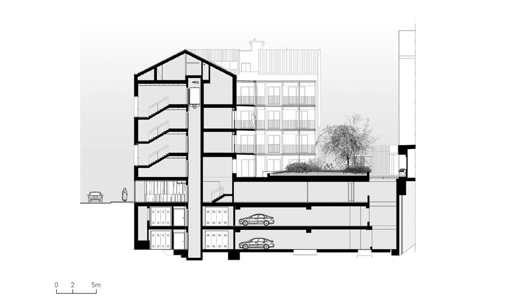
There is a bit of San Francisco in Turin too. Single-family houses of 2 or 3 floors lined up along the streets that thin out towards the hill. We are in the Madonna del Pilone area, behind the Fausto Coppi Motovelodromo, at the intersection of Via Lomellina and Via Tonello. Here + Studio architetti Filippo Orlando with Mediapolis Engineering has just completed the transformation of a corner lot, previously used as a parking lot, into a new residential complex, with an unusual language for Turin, alternating exposed concrete, steel, raw wood strips and glass. Preserving the two underground floors of the existing garage, the project reconstructs the missing piece in the building curtain. Articulated in a corner volume of four floors above ground with a pitched roof with dormer windows, the new building, in the alternation of materials and full and empty spaces, looks to the deconstructivist architecture of the west-coast. The basement is a reinterpretation of the surrounding buildings of the ‘50s, in which the building is often raised from the ground by a pilotis floor: the apartments are therefore “suspended”, going to rest and set on the wooden slats from which the basement is made, light and transparent. The project thus outlines a house “on stilts” with a simple and bright design that with a clever play of staggered floors adapts to the slope of the hill.
The corner lot is characterized by two distinct facades. The urban facade, oriented north and west, is hybrid and vertically marked by different elements. The edges of the lot and the central corner block recall the pre-collinear urban fabric, characterized by single-family houses. These volumes are covered with rough plaster and play with the staggering of the openings and the alternation of full and empty spaces obtained by subtraction, culminating in the corner loggia on two levels. The protruding bow-window volumes, on the other hand, dialogue with the elegant 1950s residential architecture of the context, in the scanning of the terraces closed by metal rod railings and in the use of porcelain stoneware modulated in shades of purple red. The entrance on the corner is marked by a clear cut in the wooden planking basement that opens on a double height hall, a scenographic chronotope that through a series of oculi introduces to the common spaces and to the internal garden. The facade towards the court, facing south and east, is an enfilade of large continuous balconies with a regular pattern in galvanized steel and concrete slabs. Conceived as a real extension of the interior space, they open on the green hill and on the new internal garden constituting the foundation of the balconies. The courtyard has a vocation of common space, in which are located functions for collective use: a garden, seats and a play area dedicated to children. The project of via Lomellina renews the urban imaginary proposing a new way of living with wide spaces of common life, which has conquered a heterogeneous set of families in search of a new sense of community.

토리노에는 작은 샌프란시스코가 있다. 언덕 쪽으로 얇아지는 길을 따라 2, 3층짜리 단독주택들이 줄지어 서 있다. 파우스트 코피 모토벨로드로모(Fausto Coppi Motovelodromo) 뒤에 있는 마돈나 델 필로네(Madonna del Pilone)지역의 교차로에 대지가 있었다. 건축가는 주차장으로 사용되었던 공간을 노출 콘크리트와 강철, 원목과 유리를 사용해 새로운 주거단지로 탈바꿈했다. 기존에 남아있던 주차장의 지하 2층은 남겨두고, 건물의 입면에 사라진 부분을 재구성했다. 땅과 연결된 4층 높이의 건물은 경사진 지붕에 돌출된 창을 가지고 있다. 새로운 건물은 빈 공간과 꽉 찬 공간을 번갈아 배치했고, 서북부의 해체주의 건축물을 바라보게 했다. 지하실은 50년대 주변 건물들을 재해석했다. 당시 지어진 건물은 종종 필로티 구조로 건물을 땅에서 띄워 올렸다. 따라서 아파트는 지하실이 만들어진 나무판 위에 놓여 받쳐지고 가볍고 투명하게 ‘공중에 떠’ 있다. 이 프로젝트는 경사진 대지에 교묘히 올려져 언덕에 적응한 간결하고, 밝은 디자인의 ‘기둥 위에 있는 집’이다.
모퉁이 대지는 두 개의 입면으로 성격이 정해진다. 북쪽과 서쪽을 바라보는 도시의 입면은 다양한 요소들이 혼합되어 수직을 만들어낸다. 대지의 가장자리와 중앙 모서리 블록은 단독주택들이 만들었던 과거 도시 구조를 떠올리게 한다. 거친 회반죽으로 덮인 건물은 비틀린 개구부와 닫힌 공간, 덜어내면서 비워진 공간이 교대로 배치되었고, 코너에 있는 2층 높이의 테라스에서 절정에 이른다. 반면에 돌출된 창의 볼륨은 금속 막대 난간으로 닫힌 테라스를 살펴보고, 자주색으로 변조된 도자기 그릇을 사용해 주변의 우아한 1950년대 주거 건물들과 대화한다. 코너 입구는 나무판자로 된 지하실과 뚜렷하게 구분되어 있다. 지하는 2층 높이의 홀로 열려 있으며, 연속된 창을 통해 공동 공간과 내부 정원으로 안내하는 풍경의 시공간이다. 남쪽과 동쪽을 향한 입면은 아연 도금을 한 강철과 콘크리트 판으로 규칙적인 패턴과 연속적인 발코니가 병렬 배치되었다. 실내 공간의 진정환 확장으로, 녹색 언덕과 발코니의 기반을 구성하는 새로운 내부 정원에서 열린다. 안뜰은 공동 공간의 역할을 하며, 정원, 의자, 어린이 전용 놀이 공간 등의 모두를 위해 기능한다. 로멜리나 프로젝트는 새로운 공동체 의식을 찾아 다양한 형태의 가족들이 이용할 수 있는 공공의 넓은 공간과 함께 새로운 삶의 방식을 제안한다.



















Architect + Studio architetti
Location Turin, Italy
Program Residential
Gross floor area 2,000㎡
Completion 2021
Project architect Filippo Orlando, Cinzia Curitti
Design team (+Studio Architetti) Filippo Orlando, Cinzia Curitti, (Mediapolis Engineering Srl) Silvano Vedelago, Maria Gabriella Brero,Francesco Torsello, Marcello Prina
Construction Edilcem srl_Roberto Talaia
Client Rocca Real Estate Company
Photographer Fabio Oggero
해당 프로젝트는 건축문화 2023년 1월호(Vol. 500)에 게재되었습니다.
The project was published in the January, 2023 recent projects of the magazine(Vol. 500).
January 2023 : vol. 500
Contents : RECORDS Peek into the future of architecture and urban space through data from various fields 다양한 분야의 데이터로 건축·도시공간의 미래를 엿보다 Seoul's Urban and Architecture Field in Walking 걸어보며 느끼는 서
anc.masilwide.com
'Architecture Project > Multifamily' 카테고리의 다른 글
| NHÀ MỘC (0) | 2023.04.25 |
|---|---|
| Aperto(Ongoing) (0) | 2023.04.07 |
| Loggia (0) | 2023.04.04 |
| GiRiGiRi (0) | 2023.03.30 |
| ANCHANG-VILLAGE SOCIAL HAUSING (0) | 2023.03.28 |
마실와이드 | 등록번호 : 서울, 아03630 | 등록일자 : 2015년 03월 11일 | 마실와이드 | 발행ㆍ편집인 : 김명규 | 청소년보호책임자 : 최지희 | 발행소 : 서울시 마포구 월드컵로8길 45-8 1층 | 발행일자 : 매일


