
Architecture that depicts Busan
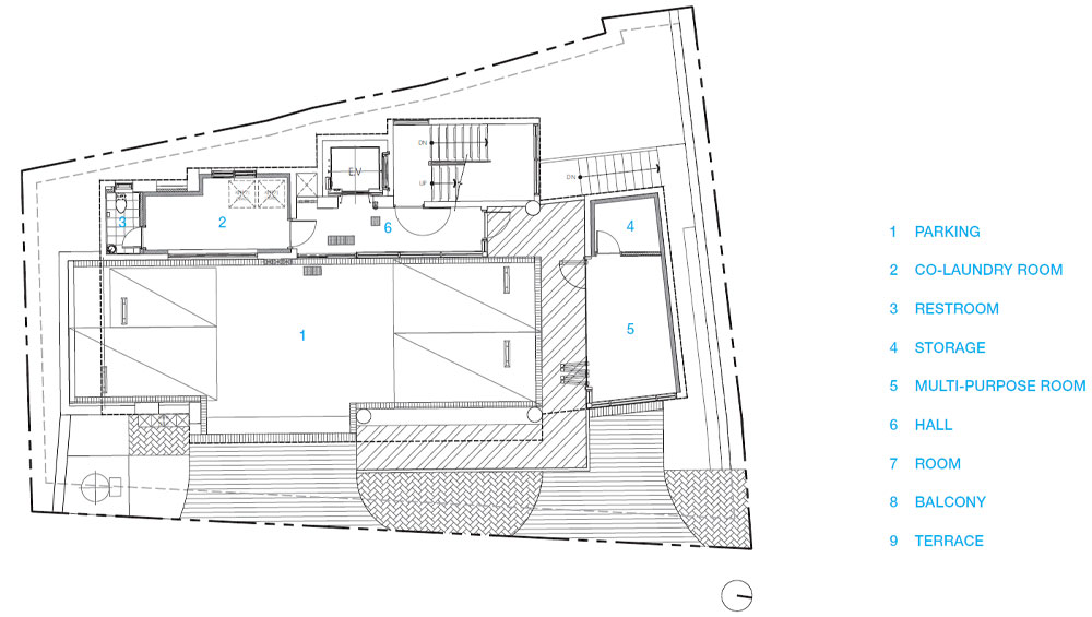
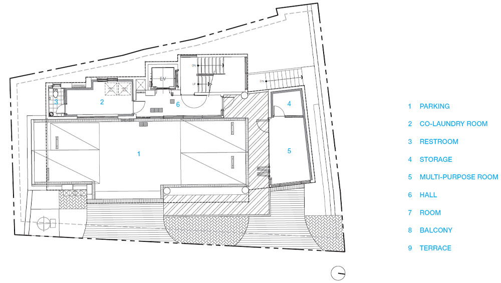
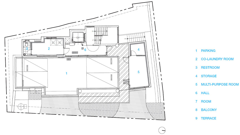
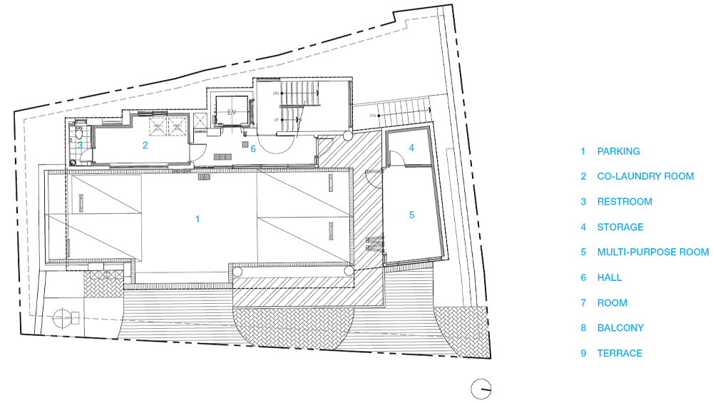
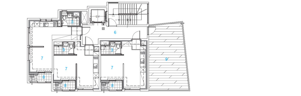
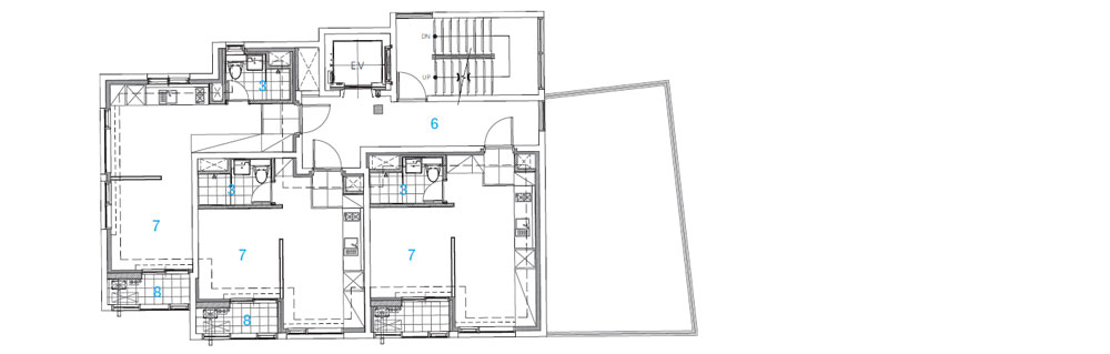
Anchang Saetteul Village Public Rental Housing is a project carried out as part of the urban regeneration project in Anchang Saetteul Village. Here, two empty housing buildings on the north facing slope with a height difference of about 5m were converted into public rental housing and community space. On the second to fourth floors are public rental housing that can accommodate up to eight households, and on the first and fourth floors, community spaces for residents were planned. On the first basement level from the north side of the road is an outdoor parking lot, and on the ground floor from the south side of the road is a parking lot with pilotis. The multi-purpose room on the first floor is connected to the piloti parking space in front and expands into a play yard, and the parking space can be turned into an outdoor movie theater and community plaza. The terrace on the second floor is an observatory that embraces the scenery of Anchang Village, and the community room and observation balcony on the fourth floor are community spaces that connect with Anchang Village in different ways. The front form has two abstract horizontal lines superimposed on the sloped terrain. This horizontal line connects to the volume of the upper multi-purpose room or to the body of the main building from the second to the fourth floor to complete a single building.

부산을 담은 건축
안창새뜰마을 공공임대주택는 안창새뜰마을 도시재생사업으로 진행된 프로젝트로, 약 5m의 고저차를 가진 북사면 대지에 있던 공가 2채가 공공임대주택과 커뮤니티 공간으로 바뀌었다. 2층에서 4층에는 8세대가 거주할 수 있는 공공임대주택이며, 1층과 4층에는 주민 커뮤니티 공간이 들어섰다. 도로 북측으로부터는 지하 1층의 옥외주차장, 도로 남측으로부터는 지상 1층의 필로티 주차장이 마련되어 있다. 1층의 다목적실은 전면의 필로티 주차공간과 연계되어 놀이마당으로 확장되며, 주차공간은 옥외 영화관람장과 커뮤니티 광장으로 바뀔 수 있다. 2층 옥외 테라스는 안창마을의 경관을 품는 전망대이며, 4층에 계획된 커뮤니티실과 전망 발코니는 안창마을과 또 다른 관계성을 가지는 커뮤니티 공간이다. 전면 형태는 경사 지형에 얹힌 2개의 추상적 수평선을 가지고 있다. 이 수평선은 상부 다목적실의 볼륨으로 연결되거나 2층부터 4층에 이르기까지 본 건축물의 몸체와 연결되어 하나의 건축물로 완성되도록 만든다.
















Architect Sungho Lee (Dong-A University) + Jeonghwa Kim (KIM JEONG HWA ARCHITECTS)
Location Anchang-ro, Dong-gu, Busan, Republic of Korea
Program Multiplex Housing
Site area 352.00㎡
Building area 176.26㎡
Gross floor area 428.38㎡
Building scope B1, 4F
Building to land ratio 50.07%
Floor area ratio 114.09%
Design period 2019. 12 - 2020. 10
Construction period 2020. 11 - 2021. 12
Completion 2021. 12
Principal architect Sungho Lee (Dong-A University) + Jeonghwa Kim(KIM JEONG HWA ARCHITECTS)
Design team Bongki Seo, HaAJEONG LEE
Client DONG-GU BUSAN METROPOLITAN CITY
Photographer Myunghwan CHO
해당 프로젝트는 건축문화 2022년 12월호(Vol. 499)에 게재되었습니다.
The project was published in the December, 2022 recent projects of the magazine(Vol. 499).
December 2022 : vol. 499
Contents : RECORDS Communicate with the city, Encounter architecture, Discover a story: 'Open House Seoul 2022' 도시와 소통하다, 건축을 만나다, 이야기를 발견하다: ‘오픈하우스서울 2022’ To Demonstrate the Era of Carbon Neutra
anc.masilwide.com
'Architecture Project > Multifamily' 카테고리의 다른 글
| Loggia (0) | 2023.04.04 |
|---|---|
| GiRiGiRi (0) | 2023.03.30 |
| Villa in Perchtoldsdorf (0) | 2023.02.13 |
| 85 SOCIAL DWELLINGS IN CORNELLÀ (0) | 2022.12.09 |
| WVW (0) | 2022.12.05 |
마실와이드 | 등록번호 : 서울, 아03630 | 등록일자 : 2015년 03월 11일 | 마실와이드 | 발행ㆍ편집인 : 김명규 | 청소년보호책임자 : 최지희 | 발행소 : 서울시 마포구 월드컵로8길 45-8 1층 | 발행일자 : 매일



