
In residential districts, which are planned cities, it is common for buildings to be designed in a standardized cuboid shape as most of the plots are arranged in a rectangular shape. Of these, the site sitting on the corner is in contact with the road on two or more sides, which means a higher value for the ground-level of the commercial building, which is preferred by clients. However, for architects, the corner plot is a difficult condition to design on because the land is cut to an ambiguous size due to the premise of being on a street corner.
Usually, in order to solve this unfavorable condition, the corner side is differentiated from the other wider sides to stand out. However, in ‘WⅤW’ the wider side is divided into a similar size with the narrow corner side. The segmented sides lined up of similar size make the corner side less emphasized. The dark gray downspout and vertical windows make the segmentation of the sides clear, and the jagged roof line in the form of a saw blade further distinguishes the segmented mass.
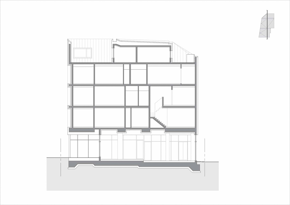
Like the elevation with a dynamic roof line, the architect wanted to design the plan to be jagged according to the segmented elevation, but due to the limitations of leased buildings that must secure the maximum footprint and floor area ratio, it had to be planned plainly, unlike the elevation, without irregularities. We tried to solve this limitation of the plan through brick-laying methods.
Individual bricks are stacked diagonally to create a directional grain. By stacking the grain in the opposite direction for each segmented side, the V-shape of the roof is realized in a flat V-shape through the small-scale grain of the bricks. The size of the shadow varies depending on the grain direction, resulting in the color of the side looking different depending on the direction of the shadow, even if the side is receiving sunlight in the same direction. It is subtle but distinguishes the sides. Each side divided by a downspout and a vertical window is separated by shadows according to the difference in the grain of the bricks along with the roof line.
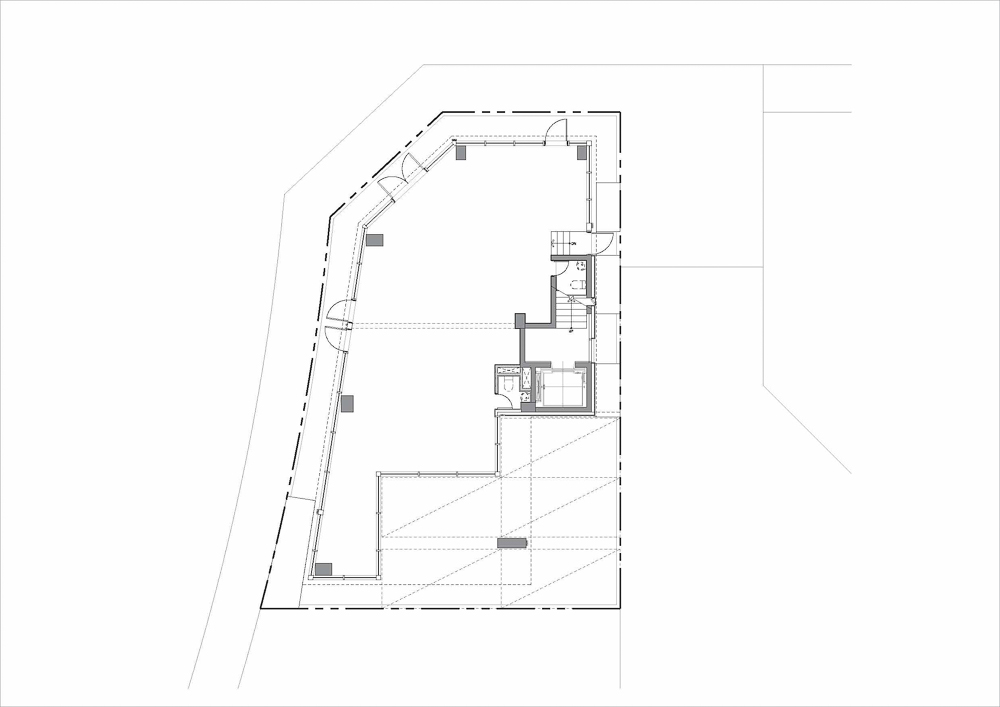
Except for the south side facing the adjacent building, the roofline on the three sides exposed to the road shows a consistent and continuous flow in the shape of a ‘W’. When looking at WⅤW House from the east, it looks like a ‘W’. From the north it’s a ‘V’ shape, from the west, the ‘W’ is partially visible, and from the northwest, it looks like a ‘VW’ shape. The consistent roof line of the building makes it look different depending on from which direction the corner, which was an disadvantageous design condition, is looked at.

계획도시인 택지지구는 대부분 직사각형으로 정리된 필지 때문에 건축물들도 정형화된 직육면체로 계획되는 것이 일반적이다. 이 중 2면 이상이 도로와 접하는 코너 대지는 1층 근린상가의 가치가 높아 건축주들이 선호한다. 하지만 건축가에게 코너 땅은 가각전제로 인해 땅이 애매한 크기로 깎이는 설계하기 까다로운 조건 중 하나다.
보통 이런 불리한 조건을 해결하기 위해 코너 면을 다른 넓은 면들과 차별화하여 두드러지게 부각하곤 한다. 하지만 ‘WVW’는 넓은 면을 좁은 코너 면과 비슷한 크기로 분절했다. 비슷한 크기로 늘어선 분절된 면들은 코너 면이 덜 드러나게 한다. 진회색의 선홈통과 수직 창은 면의 분절을 뚜렷하게 하고, 이에 더해 톱날 형태로 들쭉날쭉한 지붕선은 분절된 매스를 더욱 명확히 구분한다.
다이내믹한 지붕선을 가진 입면을 따라 평면 또한 들쭉날쭉하게 설계하고자 했지만, 건폐율과 용적률을 최대로 확보해야 하는 임대건물의 한계로 평면은 입면과 다르게 요철 없이 평범하게 계획해야 했다. 이런 평면의 한계를 벽돌 쌓기 방식을 통해 해결하고자 했다.
개별 벽돌을 사선으로 쌓아 방향성이 있는 결을 만들어냈다. 결 방향을 각 분절된 면마다 반대 방향으로 쌓아 올려, 지붕의 V자 형태가 벽돌의 작은 스케일의 결을 통해 평면적으로 V자로 구현된다. 결 방향에 따라 그림자의 크기가 달라지기 때문에, 같은 방향의 햇빛을 받는 면이더라도 다른 결 방향의 그림자에 따라 면의 색이 다르게 보이고, 미세하지만 면을 구분 짓게 한다. 선홈통과 수직창으로 구분된 각각의 면들은 지붕선과 함께 벽돌의 결 차이에 따른 그림자로 구분이 완성된다.
인접 건물과 마주하여 잘 보이지 않는 남쪽 면을 제외한 도로에 노출된 3면의 지붕선은 더블유 형태로 일관되고 연속적인 흐름을 보여준다. WVW를 동쪽에서 바라봤을 때는 W자, 북쪽에서는 V자, 서쪽에서는 바라보면 W 중 일부만 보이고, 북서쪽에서는 VW자로 보인다. 일관된 건물의 지붕선은 디자인적으로 불리한 조건이었던 코너 면을 바라보는 방향에 따라 다른 모습의 건물이 되도록 했다.







































Architect 아뜰리에준 건축사사무소 | ATELIER JUN
Location Hanam-si, Gyeonggi-do, Republic of Korea
Program Housing
Site area 263.50㎡
Building area 157.52㎡
Gross floor area 522.12㎡
Building scope 4F
Building to land ratio 59.78%
Floor area ratio 165.28%
Design period 2020. 3 - 2021. 4
Construction period 2021. 5 - 2022. 3
Completion 2022. 3
Principal architect Junsang You
Project architect Jaedan Lee
Structural engineer Laim
Mechanical engineer MKChunghyo
Electrical engineer MKChunghyo
Construction Soorisol
Client Kwangbok Lee
Photographer Yongsu Kim
해당 프로젝트는 건축문화 2022년 9월호(Vol. 496)에 게재되었습니다.
The project was published in the September, 2022 recent projects of the magazine(Vol. 496).
September 2022 : vol. 496
Contents : RECORDS "SHINGIL MIDDLE SCHOOL" TO PROPOSE A NEW SCHOOL SPACE STRUCTURE THAT WON THE 40TH SEOUL ARCHITECTURE AWARDS 새로운 학교 공간 구조를 제안한 ‘신길중학교’ 제40회 서울시 건축상 대상 수상 : NEWS / COMPETITION
anc.masilwide.com
'Architecture Project > Multifamily' 카테고리의 다른 글
| Villa in Perchtoldsdorf (0) | 2023.02.13 |
|---|---|
| 85 SOCIAL DWELLINGS IN CORNELLÀ (0) | 2022.12.09 |
| CAN SANTACILIA (0) | 2022.11.29 |
| HIBISCUS BUILDING (0) | 2022.11.29 |
| ROSE & MUSTARD BUILDING (0) | 2022.11.22 |
마실와이드 | 등록번호 : 서울, 아03630 | 등록일자 : 2015년 03월 11일 | 마실와이드 | 발행ㆍ편집인 : 김명규 | 청소년보호책임자 : 최지희 | 발행소 : 서울시 마포구 월드컵로8길 45-8 1층 | 발행일자 : 매일



