
THE SITE
In the early days when the area was not active, the young client couple visited our office through our blog. The couple interestingly shared memories of their childhood hometown and decided to build a house there. The Goyang Jichuk area was a place where only a station was passing by on the way to Goyang City after passing Gupabal, until recently. At one point, it was selected as a development district and filled with the current apartments and commercial houses in a short time. All residential areas in new cities may look similar, but if you take a closer look with an analytical eye, each lot will show its own unique characteristics. The site was situated very close, about 50m away from Exits 1 and 2 of Jichuk Station (the two exits are in the same location), and had very good conditions with the east and west sides facing the road. However, the fact that it received 100% of the slant line for sunlight from the southern part was something that had to be overcome. Mainly, only the main entrance of the neighborhood living facility on the first floor was left towards the wide road (15m), and the multi-family housing was made to be entered from the back road (8m). This method is an advantage that can only be achieved on a site facing two roads. We decided to find the beginning of the idea in overcoming the slant line for sunlight and securing the right to view for all households.
BEGINNING
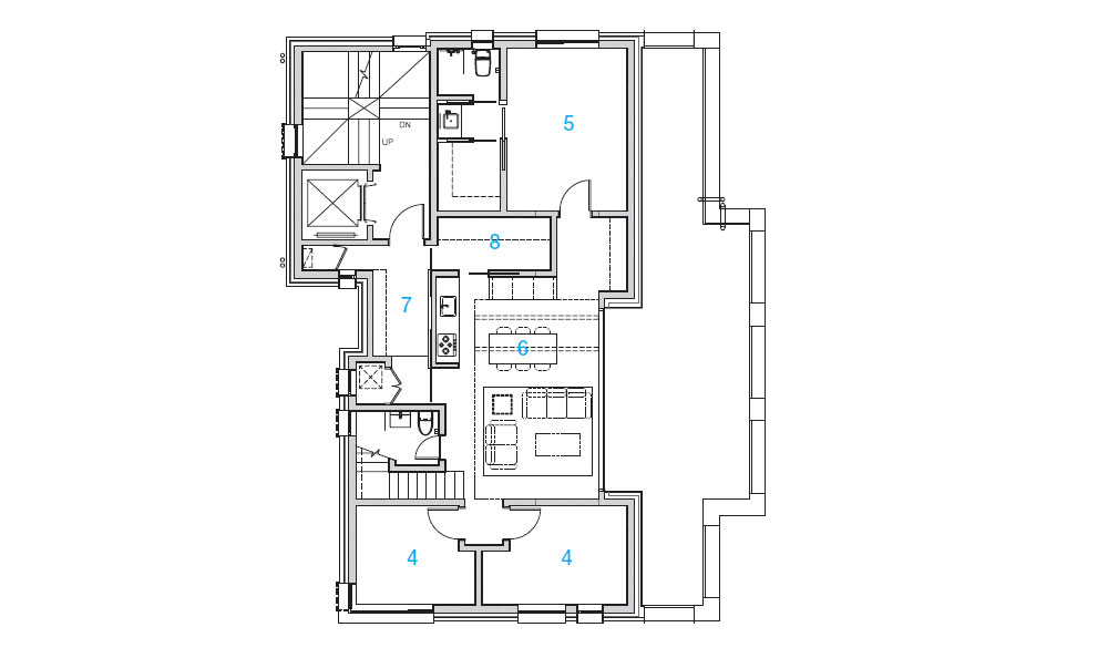
‘Loggia (Refers to an open room or hall without one wall in Italian architecture. It was developed in the Mediterranean coastal area and was often built in connection with a square during the Middle Ages and Renaissance.)’ and ‘knotted space’ are the biggest feature spaces in this project. As for the client’s household on the fourth floor, the balcony, which is inevitably created due to the southern slant line for sunlight, was planned as an expanded space for the living room, and as a loggia space in the form of a high arch to ‘internalize’ the external space. The two-story high living room is connected to the family hobby space in the attic that is free from noise between floors, and is extended to the loggia outside, making it a semi-outdoor living room like the yard of a house. The households for the tenants on the second to third floors consist of a total of 4 units, and the shape of the floor plan is composed of 2 flat-type households similar to apartments and 2 loft-type households. The loft-type floor plans reflected the fact that the tenants are likely to be office workers without children because the site is located near a station, being close to Jichuk Station and not close to a school.
OPERATION
It is not possible to make the 2 flat-type households and 2 loft-type households constituting the second and third floors all face the street using a common method. We proposed a layout in which two loft-type households are intertwined in a knot shape. This was an idea to ensure that the view windows of the main space of the 4 households on the lower floors do not face the outer walls of neighbors and all face the street. The loft-type households have the advantage of being able to divide the duplex space into a working space and a private space, and they allow for various types of households. The premise of making a good house comes from the mutual trust between stakeholders (the client, designer, and construction company). Loggia Project showed great results as the mutual trust that continued from the initial design stage was also delivered to the construction company. This place, which was the client couple’s hometown, will mean that their relationship with past acquaintances will get closer again, and now their children will also remember their childhood in a different time in the same space as their mother and father.

THE SITE
이 지역이 활성화되지 않았던 초기에 젊은 건축주 부부는 블로그를 통해 우리 사무소를 찾아왔다. 부부는 신기하게 어린 시절을 보냈던 고향에 관한 기억을 같이 공유하고 있었고 그곳에 집을 짓기로 한 것이다. 고양 지축지역은 얼마 전까지만 해도 구파발을 지나 고양시로 가는 길목에 역사(驛舍)만 있는 스쳐 지나치는 곳이었다. 어느 순간 개발구역으로 선정되고 짧은 시간에 현재의 아파트와 상가주택으로 채워졌다. 신도시 상가 주택지는 모두 비슷해 보일 수도 있지만, 분석적인 시선으로 조금만 자세히 들여다보면 모든 필지는 각기 다른 고유한 특성을 보인다. 대지는 지축역 1, 2번 출구(2개의 출구가 같은 위치에 있다)에서 약 50m 정도 거리의 매우 가까운 곳에 입지해 있고 동측과 서측이 도로에 면해있는 매우 좋은 조건을 가지고 있었다. 다만 정남 일조 사선을 100% 그대로 받는다는 점이 극복해야 할 부분이었다. 기본적으로 넓은 도로(15m) 측으로 1층 근린생활시설의 주출입구만 두고 다가구주택을 위한 출입구는 이면도로(8m)에서 진입하는 방식을 선택하였다. 이러한 방식은 2개의 도로에 면한 대지에서만 가능한 장점이다. 아이디어의 시작은 일조사선의 극복과 모든 세대의 조망권 확보에서 찾아보기로 했다.
BEGINNING
‘로지아(loggia, 이탈리아 건축에서 한쪽 벽이 없이 트인 방이나 홀을 이르는 말. 지중해 연안 지역에서 발달하였으며, 중세와 르네상스 시대에는 흔히 광장과 연결하여 지었다.)’와 ‘매듭 공간(knotted space)’은 이 프로젝트에서 가장 큰 특징 공간이다. 4층의 주인세대는 정남 일조 사선제한으로 부득이 생성되는 4층의 발코니를 거실의 확장된 공간으로, 외부공간이 ‘내부화’ 되도록 높은 아치 형태의 로지아 공간으로 계획하였다. 2개층 높이의 거실은 층간소음에서 자유로운 다락의 가족 취미 공간과 이어지고 외부의 로지아로 확장되어 주택의 마당과 같이 반외부 거실이 됐다. 2~3층의 임차인을 위한 가구는 총 4가구로 구성되며, 평면의 형태는 아파트와 유사한 평면적인 플랫(flat) 방식 2가구와 복층(loft) 방식 2가구로 구성하였다. 로프트 방식의 평면은 대지가 지축역에 가까운 역세권이면서 학교와는 가깝지 않은 위치에 있으므로 임차인은 자녀가 없는 직장인일 확률이 높다는 점을 반영하였다.
OPERATION
일반적인 방법으로 2층과 3층을 구성하는 플랫 방식 2가구와 로프트 방식 2가구를 모두 가로에 면하게 할 수는 없다. 우리는 복층 방식의 2가구가 매듭 모양으로 얽혀있는 레이아웃을 제안하였다. 이것은 저층부 4가구 주요 공간의 조망창이 이웃의 외벽에 맞닿지 않고 모두 가로에 면하게 하기 위한 아이디어였다. 로프트 형식의 가구는 복층 공간을 작업공간과 사적공간으로 구분하여 사용할 수 있는 장점이 있고, 서로 다른 형태의 다양한 가구 구성이 된다. 좋은 집을 만드는 일의 전제는 관계자 상호 간(건축주, 설계자, 시공사)의 신뢰에서 비롯된다. 로지아 프로젝트는 최초의 설계단계에서부터 이어진 상호신뢰가 시공사에도 전달되어 좋은 결과로 나타났다. 부부의 고향이었던 이곳은 과거의 지인들과의 관계가 다시 가까워진다는 것을 의미할 것이고, 이제 아이들도 엄마 아빠와 같은 공간, 다른 시간대의 어린 시절을 기억하게 될 것이다.















Architect THE SITE ARCHITECTS
Location Angin-gil, Deogyang-gu, Goyang-si, Gyeonggi-do, Republic of Korea
Program Commercial-Residential Facility
Site area 271.00㎡
Building area 162.08㎡
Gross floor area 487.01㎡
Building scope 4F
Building to land ratio 59.81%
Floor area ratio 179.71%
Design period 2020. 6 - 2021. 6
Construction period 2021. 7 - 2022. 3
Completion 2022. 3
Principal architect Byeongheon Jeon
Project architect Misook Jeon
Design team Woonjoo Kim, Hyunjung Kim
Structural engineer Eun Engineering
Mechanical engineer PCM Global
Electrical engineer KUNCHANG Engineering
Construction TOHAUS CONSTRUCTION + BONZIP
Client Jinyong Park, Younjoo Kang
Photographer Jihun Bae, Yongsoon Kim, Byeongheon Jeon
해당 프로젝트는 건축문화 2023년 1월호(Vol. 500)에 게재되었습니다.
The project was published in the January, 2023 recent projects of the magazine(Vol. 500).
January 2023 : vol. 500
Contents : RECORDS Peek into the future of architecture and urban space through data from various fields 다양한 분야의 데이터로 건축·도시공간의 미래를 엿보다 Seoul's Urban and Architecture Field in Walking 걸어보며 느끼는 서
anc.masilwide.com
'Architecture Project > Multifamily' 카테고리의 다른 글
| Aperto(Ongoing) (0) | 2023.04.07 |
|---|---|
| Lomellina (0) | 2023.04.04 |
| GiRiGiRi (0) | 2023.03.30 |
| ANCHANG-VILLAGE SOCIAL HAUSING (0) | 2023.03.28 |
| Villa in Perchtoldsdorf (0) | 2023.02.13 |
마실와이드 | 등록번호 : 서울, 아03630 | 등록일자 : 2015년 03월 11일 | 마실와이드 | 발행ㆍ편집인 : 김명규 | 청소년보호책임자 : 최지희 | 발행소 : 서울시 마포구 월드컵로8길 45-8 1층 | 발행일자 : 매일



