
Jochiwon Social and Cultural Center provides civic space for citizen, further for city regeneration,
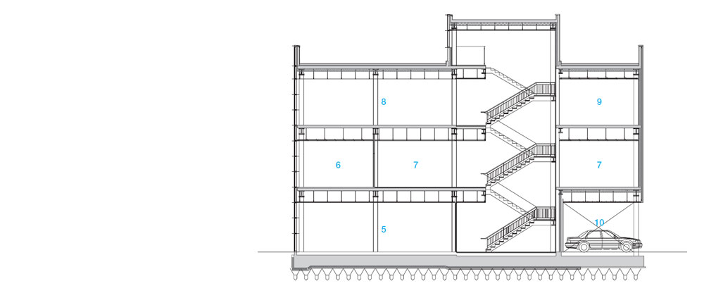
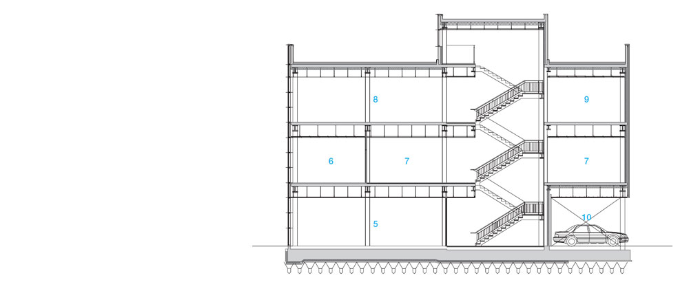
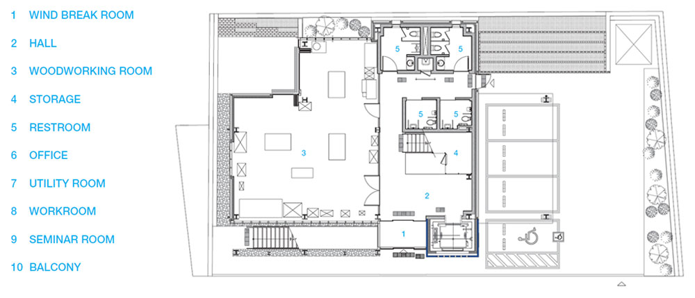
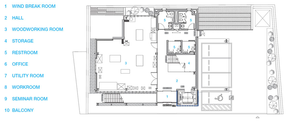
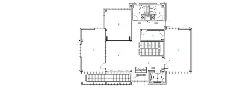
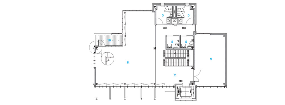
As an Urban Regeneration New Deal project, this education research facility proposes a space where nature, people, and the city could interact at the site of an old coal briquette factory that has been in operation for more than 50 years since the liberation from japanese occupation. The horizontal flow of streets in the city, Jochiwon is expanded into the Social and Cultural center (LAB 141) by means of white vertical lines on the facade. This center provides picturesque view which park and cityscape with railway tracks and movement of passenger train flow into the piloti of green steel structure and run on the curtain walls, green stairs in between glass layers, and red brick elevator tower. The roof glass and vertical louvers of the facade, which are inspired by the street and roads at Jochiwon, are designed for the daylighting control. In addition to its passive facade system, this provides dynamic range of pattern of daily and seasonal light and shadow which brings diverse atmosphere into the center. Thus, it maximizes the volume of the space, where visitors can have various experiences. The daylight sequentially inflow from the hall in each floor to the double height co-working space at the 3rd floor by showing the movement of visitor from various types of glass. The matte granite on the floor and epoxy finition were designed to glow gently and delicately by absorbing and reflecting the lights entering the inside. The vertical louver of the main facade looking toward the Jochiwon city not only demonstrates the passive system that adjusts the transmittance of light but also provides the diversity in the facade according to the movement and distance of people. Furthermore, the intensity of light pursuant to the season and the luminous flux, such as morning, afternoon, and sunset lights, offer a visual variety in which the external building material(base panel and curtain wall) changes faintly yet deeply and softly.

Hommage(오마주), 조치원, 사람과 함께 나아가다
조치원역 도시재생 생활SOC 뉴딜사업 일원인 생활문화 거점시설은 광복 이후 50년 이상 가동되던 노후 연탄 공장 자리에 자연과 사람, 도시가 소통하는 공간을 제안하는 프로젝트다. 조치원의 옛 기억과 역사를 담은 생활문화거점시설로써, 지역문화 및 경제 활성화 그리고 일자리 창출의 기반을 마련하기 위해 목공예실, 금속 공예실, 메이킹룸, 공동 작업실, 강의실 등의 프로그램 배치하고 조치원 지역문화의 활성화 및 일자리 창출의 기반을 마련하여 침체되어있는 마을을 재생하고자 한다. 길, 도시, 지역의 수평적인 흐름이 생활문화거점시설(LAB 141) 수직루버에 담아냈다. 정방형 구조 모듈 위 필로티와 커튼월을 통해 자연(도시숲)과 기차의 풍경이 빨간 벽돌의 엘리베이터 타워와 초록의 철강구조모듈 사이의 계단을 통해 흐르고, 열린 구조에 여러 세대들이 소통하는 다양한 이벤트를 담았다. 독립된 프로그램들을 연계하는 로비와 홀, 복도 등의 공용공간은 맞통풍 창과 아트리움, 수직루버 같은 친환경 에코시스템을 가진 개방적이고 쾌적한 마을 공간이다. 조치원의 길과 연탄공장의 역사를 모티브로 한 입면의 루버와 빨간 벽돌 그리고 구조의 시각화는 시간에 따라 그리고 계절에 따라 각각의 방향으로부터 오는 빛에 의해 그림자의 패턴이 변하고 그 안의 공간의 볼륨이 극대화되어 이용자에게 다양한 공간의 경험을 느끼게 해준다. 동선을 따라 유입되는 빛은 친환경 입면 시스템을 통해 자연광의 직, 간접적 유입을 유도했다. 또한 내부 바닥의 매트한 화강석과 에폭시마감은 실내로 유입되는 빛의 흡수와 반사를 통해 부드럽고 자극적이지 않은 빛이 들어온다. 조치원 거리를 바라보고 있는 메인 파사드 루버는 빛의 투과율을 조정하는 패시브 시스템의 표현뿐아니라 사람의 움직임과 거리의 풍경에 따른 입면의 다채로움, 그리고 동선의 움직임을 구조를 통해 강조한다.














Architect Sung et Associés architecture
Location Won-ri, Jochiwon-eup, Sejong-si, Republic of Korea
Program Education Research Facility
Site area 616.00㎡
Building area 280.76㎡
Gross floor area 732.63㎡
Building to land ratio 45.58%
Floor area ratio 118.93%
Design period 2019. 3 - 7
Construction period 2019. 10 - 2020. 7
Completion 2020. 9
Principal architect Jin Sung
Project architect Jin Sung
Design team leader Junsub Kim
Design team Seonggyeong Im, Seungil Lee, Yongki Jo
Structural engineer SEUNG NAM Structural Engineering CO, LTD
Mechanical engineer TAE CHANG Engineering CO, LTD
Electrical engineer TAE CHANG Engineering CO, LTD
Construction JK CONSTRUCTION CO, LTD
Client Sejong Special Self-Governing City
Photographer Sun Namgoong
해당 프로젝트는 건축문화 2023년 1월호(Vol. 500)에 게재되었습니다.
The project was published in the January, 2023 recent projects of the magazine(Vol. 500).
January 2023 : vol. 500
Contents : RECORDS Peek into the future of architecture and urban space through data from various fields 다양한 분야의 데이터로 건축·도시공간의 미래를 엿보다 Seoul's Urban and Architecture Field in Walking 걸어보며 느끼는 서
anc.masilwide.com
'Architecture Project > Cultural' 카테고리의 다른 글
| COSMO 40 phase2 & COSMIC LIGHTS (0) | 2023.04.07 |
|---|---|
| Fengdong E Pang Bookstore (0) | 2023.04.07 |
| Yeongju Saemal Community Center (0) | 2023.04.03 |
| Qingxi Culture and History Museum (0) | 2023.04.03 |
| Brixen Public Library (0) | 2023.04.03 |
마실와이드 | 등록번호 : 서울, 아03630 | 등록일자 : 2015년 03월 11일 | 마실와이드 | 발행ㆍ편집인 : 김명규 | 청소년보호책임자 : 최지희 | 발행소 : 서울시 마포구 월드컵로8길 45-8 1층 | 발행일자 : 매일



