
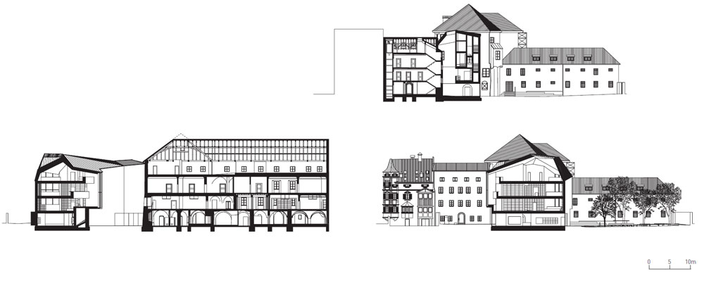
The project consists of the construction of a unitary complex which includes a new building and the restorantion and annexation of the existing buildings of the Ex Finance, a portion of the Ex Court (the first two levels) and of the Ex Prison (part of the ground floor and first floor). The intervention is completed by the redefinition of the existing external spaces, two pedestrian access areas to the north and south of the Ex Finance building, and the garden adjacent to Via Bruno, which was once private and owned by the Bishop.
Planting itself silently and extremely respectfully into its surroundings, the intervention is located south of the Ex Court, in the void generated between two existing buildings, where, before the demolition, there was a lot belonging to the Diocese. A real connecting infrastructure, the new building behaves structurally like a “tree” that leans its cement “branches” towards the buildings of the Ex Finance and the Ex Court, establishing a perpetual relationship between new and old, and inspiring the architects to rename the project, “Kulturbaum, tree of culture”. Access to the new building is from the ground floor through the infotheque. From here, a generous quadruple height space, occupied by the reception area, grants access to the lifts.
The main components of the context have been reinterpreted in a contemporary key, such as the characteristic “erker”? typical bow windows that characterize the historic center. Two of these, of a giant order, favor strategic views: the building overlooks the two main areas of Brixen, the White Tower and the bell tower of the Cathedral on one side, and the Bishop’s Palace on the other, tracing a line of continuity with the city’s landmarks and most iconic elements. The large windows, which trace the boundary between inside and outside, have been designed to favor indirect light at the points where there is the greatest flux and concentration of people. Finally, two large skylights placed at the top of the complex pitched roof allow the sun’s rays to cross the entire height of the building and reach the ground floor, thanks to an articulated system of retraction of the different floors, which plays a fundamental role in the introspection system between them. The new Brixen Public Library intensifies the close relationship between architecture and context. Its formal outcome is a public venue, inspired by the architectural characteristics of Brixen, where the new feeds the old and vice versa, restoring exceptional architecture capable of interweaving historical and contemporary fabric.

브릭센 공공도서관은 새로운 건물과 이전의 재정부의 기존 건물의 복원 및 합병을 통해, 이전의 법원(처음 두개 층)의 일부와 이전의 감옥(지상층 및 1층의 일부를 포함하는)을 포함하는 단일 복합 단지의 건설로 구성된다. 이러한 개입은 기존 외부 공간, Ex Finance 건물의 북쪽과 남쪽에 있는 2개의 보행자 접근 영역, 또한 한때 사유지이자 비숍이 소유했던 브루노가에 인접한 정원의 재정의로 완료된다.
도서관은 주변 환경에 조용하고 최대한 방해되지 않게 자리잡으며, Ex 법원 남쪽, 철거 전에 교구에 속한 구역에 있었던 두 개의 기존 건물 사이에 생성된 빈 공간에 위치해 있다. 실제 연결 인프라인 새 건물은 Ex Finance 및 Ex 법원의 건물을 향해 시멘트 ‘가지’를 뻗는 ‘나무’처럼 구조적으로 작동하여 새 건물과 이전 건물 사이의 영원한 관계를 만들기 때문에 ‘문화의 나무, 쿨트르바움’이라고 부르기로 했다. 새 건축물의 1층 인포테크를 통해 건물 안으로 들어올 수 있으며, 넉넉한 4배 높이의 리셉션 공간은 엘리베이터를 통해 이용 가능하다.
문맥의 주요 구성 요소는 역사적인 센터를 특별하게 만드는 창이 현대적인 요소로 사용됐다. 브릭센의 두 주요 지역인 화이트 타워와 대성당의 종탑을 바라보는 전망과 주교의 궁전을 내려다보며 연속선을 찾는 풍경은 이 도시가 가지고 있는 랜드마크와 연결된다. 내부와 외부의 경계를 긋는 큰 창은 사람들의 유입과 밀집도가 가장 높은 지점에 설치된 간접조명이 건축가가 세심하게 표현한 공간을 엿볼 수 있게 한다. 마지막으로, 기울어진 지붕 상단에 배치된 두 개의 큰 채광창은 태양 광선이 건물의 전체 높이를 가로질러 1층에 도달하는데, 이는 서로 다른 층 사이의 내성 시스템에서 근본적인 역할을 하는 연결된 수축 시스템 덕분이다. 새로운 브릭센 공립 도서관은 아키텍처와 콘텍스트 간의 긴밀한 관계를 강화한다. 이에 따라 새로운 것이 오래된 것을 공급하고 또는 옛것이 새것을 지지하듯, 브릭센의 건축적 특성에서 영감을 받은 공공 장소로, 역사와 현대 요소를 엮을 수 있는 뛰어난 건축을 복원한다.




















Architect Carlana Mezzalira Pentimalli
Location Brixen, Italy
Site area 2,378㎡
Gross floor area 3,013㎡
Design period 2017 - 2018
Construction period 2019 - 2021
Completion 2022
Principal architect / Project architect Michel Carlana, Luca Mezzalira, Curzio Pentimalli
Design team Michel Carlana, Luca Mezzalira, Curzio Pentimalli, Marco Carraro, Alessio Oliviero
Structural and Fire engineer Bergmeister
Mechanical engineer Ranzato Impianti
Electrical engineer Leitner Electro
Cooperation (Lighting consultant) Von Lutz Studio Associato / (Acoustic consultant) Nira Consulting_project phase, Studio Architetto Eleonora Strada_construction phase / (External doors and windows) Askeen / (Suppliers) Nerobutto_restoration and special paints, Boden Service_concrete floors, Seeber_wood and carpet flooring, Inoxferdi_blacksmith work, Falegnameria Longato_carpentry / (Furniture) Erlacher_custom furniture, Arte_furniture in series, Serima_infographics and signage
Construction Unionbau
Client Comune di Bressanone(BZ)
Photographer Marco Cappelletti
해당 프로젝트는 건축문화 2023년 1월호(Vol. 500)에 게재되었습니다.
The project was published in the January, 2023 recent projects of the magazine(Vol. 500).
January 2023 : vol. 500
Contents : RECORDS Peek into the future of architecture and urban space through data from various fields 다양한 분야의 데이터로 건축·도시공간의 미래를 엿보다 Seoul's Urban and Architecture Field in Walking 걸어보며 느끼는 서
anc.masilwide.com
'Architecture Project > Cultural' 카테고리의 다른 글
| Yeongju Saemal Community Center (0) | 2023.04.03 |
|---|---|
| Qingxi Culture and History Museum (0) | 2023.04.03 |
| Navi Craft (0) | 2023.03.30 |
| Istanbul Planning Agency Public Hall (0) | 2023.03.30 |
| Books over the Clouds (0) | 2023.03.30 |
마실와이드 | 등록번호 : 서울, 아03630 | 등록일자 : 2015년 03월 11일 | 마실와이드 | 발행ㆍ편집인 : 김명규 | 청소년보호책임자 : 최지희 | 발행소 : 서울시 마포구 월드컵로8길 45-8 1층 | 발행일자 : 매일



