
The metaphor of the disappeared railroad
Yeongju Saemaul Community Center is located at the tip of Samgakji Village in the old city center of Yeongju City. This is the railroad site where the original Bukyeongju Line once passed through, and was the junction where it joined the Jungang Line. The space between the Bukyeongju Line and the Jungang Line has also been neglected for a long time as a buffer zone surrounded by high railroad retaining walls. However, as the Bukyeongju Line was recently dismantled and demolished, the closed village was given an opportunity to reopen. The abandoned railway site is a unique place that contains the remnants of the railroad, and is a location that crosses the east-west green axis of the old city center of Yeongju. In addition, a plan for a linear park along the flow of the railway site is underway. Accordingly, a strategic approach was needed to respond to the newly changing urban planning.
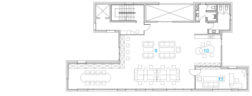
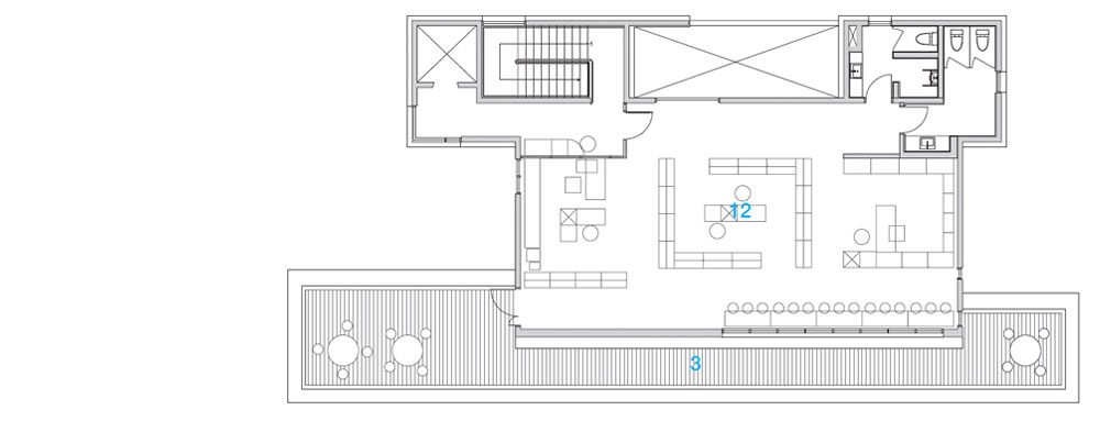
Saemaul-community(Association) is a representative community in the region. It is characterized by a public interest of communicating with the local community through culture, education, sharing of kimchi, providing meals, and village libraries. Therefore, a large space where a large number of people can gather is the primary purpose of this facility. On the other hand, the site had a long linear physical shape that reflected the shape of the railroad, which was quite unfavorable for planning a large space, but it was sufficient to be the starting point of the plan. A large, 17.1m x 11.4m column-free space was secured through architectural and structural solutions such as overlapping centered on the large space, and the continuity of the green area and pedestrian flow at the site level was taken into account by floating the mass. The open first-floor space is intended as a space accessible to all, a place where you can stay for a moment without blocking the flow of the pedestrian axis of the newly opened abandoned railway site, and a space where local residents can meet and communicate. Furthermore, the public nature of the building and the site was made clearer by connecting the flow that goes in multiple directions and by inducing direct entry of people into the floating building to increase accessibility to the facility. The hope is for it to be used as a connection point for the newly opened region since the demolition of the railway.

사라진 철로의 은유
영주시 새마을선비회관은 영주시의 구도심 삼각지마을의 끝자락에 있다. 이곳은 기존의 북영주선이 지나던 철도부지로 중앙선과 합류되는 접점이었다. 또한 북영주선과 중앙선 사이 공간은 높은 철길 옹벽으로 둘러쌓인 완충녹지로 오랫동안 방치되어있었다. 그러나 최근 북영주선이 폐선되어 철거됨에 따라 닫혀있던 마을이 새롭게 열리는 계기를 맞았다.
폐선부지는 철도의 흔적을 고스란히 담고있는 특색있는 장소임과 동시에 영주시 구도심의 동-서 녹지 축을 가로지르는 위치에 해당하며, 또한 이곳에는 철도부지의 흐름을 따른 선형공원 계획이 진행되고 있다. 이에 새롭게 변화하는 도시계획에 부응하기 위한 전략적 접근이 필요했다.
새마을회는 지역 내 대표적인 커뮤니티이다. 문화, 교육, 김장 나눔, 급식, 마을도서관 등을 통해 지역사회와 소통하는 공익적인 성격을 가진다. 이에 다수가 모일 수 있는 대공간은 본 시설의 최우선 목적에 해당한다. 한편 대지는 철로의 형태가 그대로 반영된 긴 선형의 물리적 조건을 가지고 있었고 이는 대공간을 계획하기에 상당히 불리하였으므로 계획의 출발점이 되기에는 충분했다. 대공간을 중심으로 중첩 등의 건축적, 구조적 해결을 통해 17.1m x 11.4m의 무주공간을 확보하여 장방형의 대공간을 제공하고, 매스를 띄움으로써 대지 레벨에서의 녹지와 보행 흐름의 연속성을 고려하였다. 열린 1층공간은 누구나 접근 가능한 공간으로, 새롭게 열린 폐선부지 보행축의 흐름을 막지 않으면서 잠시 머물러 갈 수 있는 곳이자, 지역주민의 모임과 소통이 이루어질 수 있는 공간으로 의도하였다. 더 나아가 다방향으로의 흐름이 연결될 수 있도록 고려하고, 떠 있는 건물로 사람들의 직접 진입을 유도하여 시설로의 접근성을 높임으로써 건물과 대지의 공공성을 보다 명확하게 하였다. 이를 통해 폐선 이후 새롭게 열린 지역의 연결점으로써 활용될 수 있기를 바란다.















Architect re: architects + Design Studio CUE
Location Wondang-ro ,Yeongju-si , Gyeongsangbuk-do, Republic of Korea
Program Community facility
Site area 1,472㎡
Building area 293.67㎡
Gross floor area 964.06㎡
Building scope 4F
Building to land ratio 19.95%
Floor area ratio 65.49%
Design period 2019. 8 - 2020. 7
Construction period 2020. 10 - 2021. 12
Completion 2021. 12
Principal architect / Project architect Jieun Lee + Hwangkie Jung
Structural engineer YOON Structural Engineers
Mechanical engineer / Electrical engineer WON ENC
Construction SEHAN Construction
Client Yeongju City Hall
Photographer Joonhwan Yoon
해당 프로젝트는 건축문화 2023년 1월호(Vol. 500)에 게재되었습니다.
The project was published in the January, 2023 recent projects of the magazine(Vol. 500).
January 2023 : vol. 500
Contents : RECORDS Peek into the future of architecture and urban space through data from various fields 다양한 분야의 데이터로 건축·도시공간의 미래를 엿보다 Seoul's Urban and Architecture Field in Walking 걸어보며 느끼는 서
anc.masilwide.com
'Architecture Project > Cultural' 카테고리의 다른 글
| Fengdong E Pang Bookstore (0) | 2023.04.07 |
|---|---|
| Jochiwon Social and Cultural Center (0) | 2023.04.04 |
| Qingxi Culture and History Museum (0) | 2023.04.03 |
| Brixen Public Library (0) | 2023.04.03 |
| Navi Craft (0) | 2023.03.30 |
마실와이드 | 등록번호 : 서울, 아03630 | 등록일자 : 2015년 03월 11일 | 마실와이드 | 발행ㆍ편집인 : 김명규 | 청소년보호책임자 : 최지희 | 발행소 : 서울시 마포구 월드컵로8길 45-8 1층 | 발행일자 : 매일



