
Things to change and things to leave
The 50-year-old chapel leaked when it rained and had no insulation whatsoever, meaning that it was an old building that was not strong enough to block the cold wind in midwinter. We needed a new building, but at the same time had to think about what to preserve. Personally, I like stone walls and their rough texture, so I thought that the existing stonework made of smooth round stones held together with cement was unnatural. However, sometimes cozy memories are more important than sophisticated looks. I didn’t have the courage to tear down the stones that the church members had stacked one by one long ago, so I decided to leave a trace of time. This meant preserving devotion and memories. The mature and dignified fir tree on the side of the site also had to be left behind. It adds stability and balance to the new building as if it were the original owner of the land.
Form and material
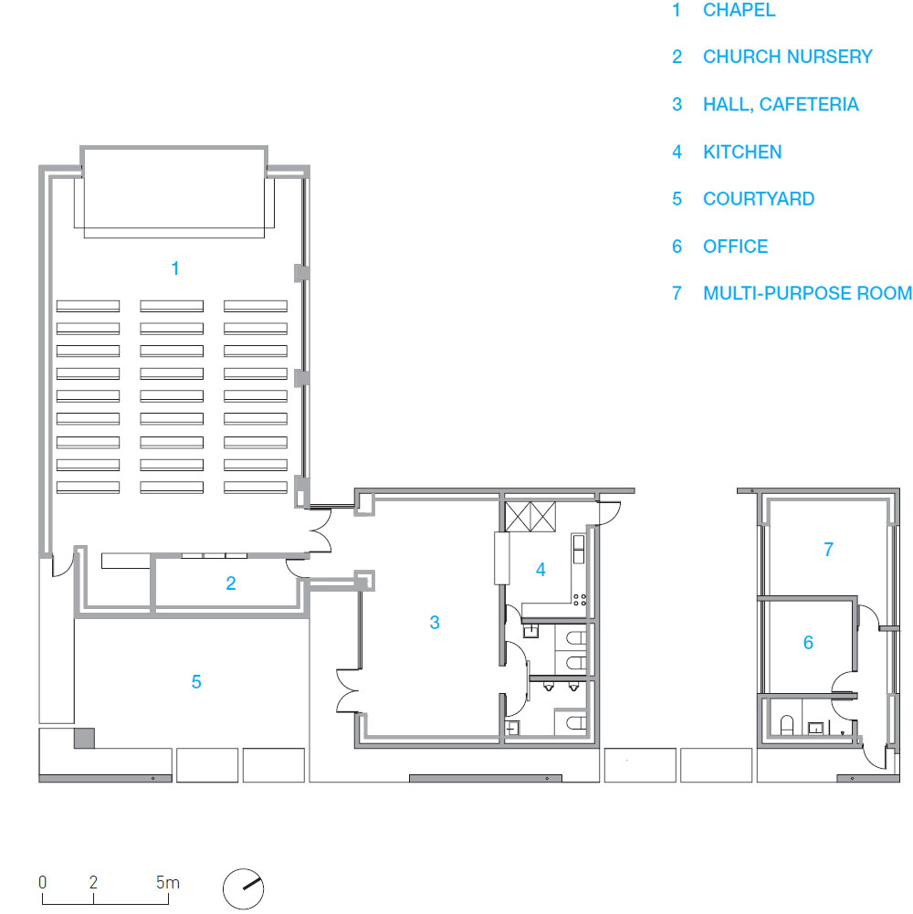
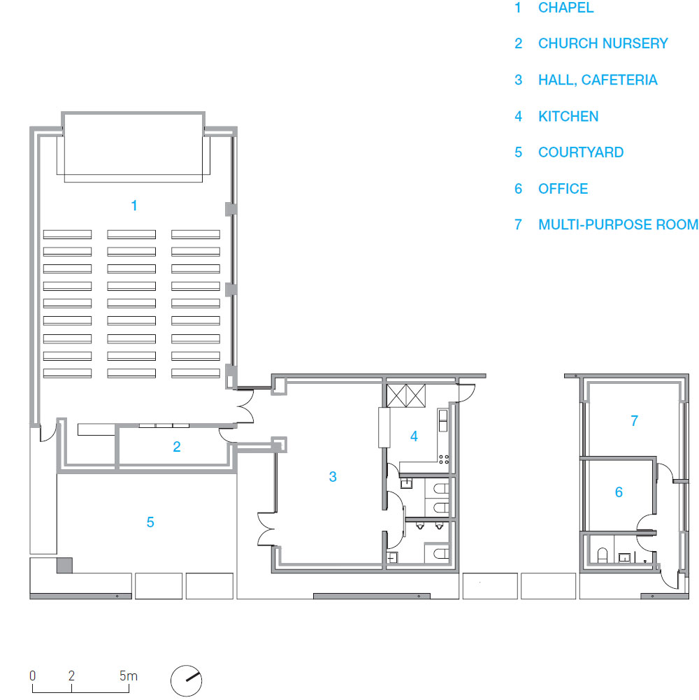
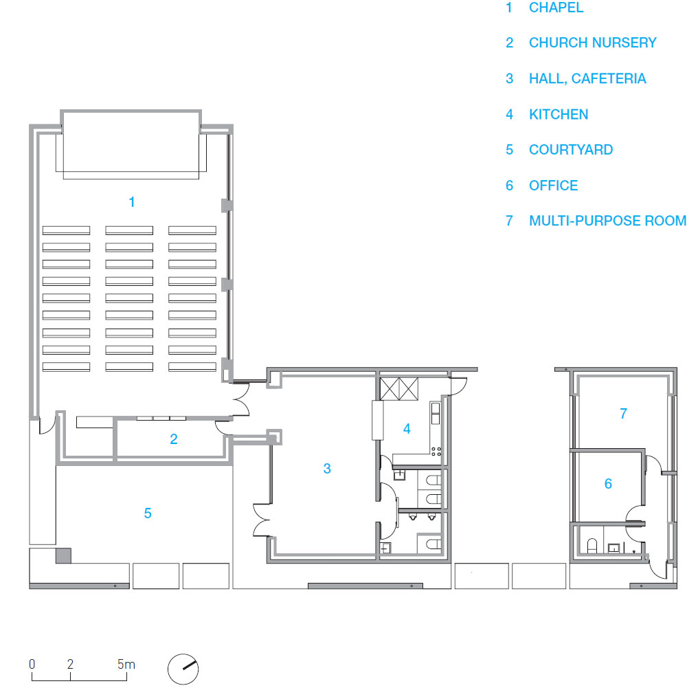
The white and gray outer walls and the dark achromatic roof give off a clean and simple feeling against the backdrop of a green forest. The buildings were spread out on a generous-sized site and a slender shape of 35m was created. Rather than concentrating the buildings in one place and having a large garden, sometimes it is a good strategy to segment and divide the site into several areas. I wouldn’t dream of it in the first place in a dense city, but we decided to make the most of the free land. A variety of outdoor spaces, including the front garden, backyard, and courtyard, were inserted between the buildings to provide a rich experience. The three gabled roofs, which rise like brothers, are enclosed and tied together with exposed concrete panels. The concrete plate forming layers create a sense of depth and three-dimensionality, and sort out the circulation. It was decorated with natural light and a solid interior was made with bricks and exposed concrete. A box full of light was inserted in the front of the worship room, and through the long, low windows on the side, soft light enters and fills the space.
Completing the Construction
When ‘meaning’ and ‘value’ are added to an object, the experience deepens. I felt like a member of the community rather than an architect, with the anticipation that the chapel would be used as a worship room for kind and simple people, a reception space in the village, and a study room for children who have few places to go. After completing the supervision throughout the construction period, corn, potatoes, and sweet potatoes grown in the village, as well as perilla oil and fragrant sikhye , came home with me along with the delight of the villagers.

바꿀 것과 남길 것
50년된 낡은 예배당은 비가 오면 물이 새고 단열재라고는 하나도 없어 한겨울 칼바람을 막기에는 역부족인 오래된 건물이었다. 새로운 건물이 필요했지만 동시에 무엇을 남길지도 생각해야 했다. 대지를 둘러싼 석축. 개인적으로 거친 질감의 돌담을 좋아하기에 매끈한 둥근돌을 시멘트로 붙인 석축은 자연스럽지 못하다 생각했다. 하지만 때로는 세련된 모양보다 따뜻한 기억이 중요할 때도 있는 법이다. 오래전 교인들이 한 개씩 쌓은 돌담을 허물 용기가 없었고 시간의 흔적을 남기기로 했다. 정성과 기억을 남긴 것이다. 대지 측면의 의젓하고 품위있는 전나무도 남겨야 했다. 원래부터 땅의 주인인 듯 새 건물에 안정과 균형을 더해준다.
형태와 재료
흰색과 회색의 외벽, 짙은 무채색의 지붕은 녹색 숲을 배경으로 정결하고 검소한 느낌을 준다. 넉넉한 대지에 건물을 퍼뜨리고 35m에 달하는 늘씬한 형태를 만들었다. 건물을 한곳에 집중시키고 커다란 정원을 두는 것보다. 분절하고 대지를 여러 개의 영역으로 나누는 것이 좋은 전략일 때가 있다. 빽빽한 도시에서는 애초에 불가능하겠지만 여유있는 대지를 최대한 이용하기로 했다. 앞의 정원과 뒤뜰, 중정까지 다양한 외부 공간을 건물 사이에 삽입하여 풍성한 체험이 가능하게 되었다. 형제처럼 솟은 세 개의 박공지붕을 노출콘크리트 판으로 둘러 묶었다. LAYER를 이루는 콘크리트 판으로 인해 깊이감과 입체감이 생겼고 동선이 정리되었다. 자연광으로 장식하고 벽돌, 노출콘크리트로 단단한 실내를 만들었다. 예배실 전면에는 빛으로 가득한 box를 박아넣었고 측면의 길쭉한 낮은 창을 통해 은은한 빛을 채웠다.
건축을 마치며
어떤 대상에 ‘의미’와 ‘가치’가 더해지면 경험이 깊어진다. 예배당이 착하고 소박한 사람들의 예배실로, 마을의 사랑방으로, 갈 곳이 적은 아이들의 공부방으로, 사용될 것이라는 기대감에 설계자 라기보다 공동체의 일원이 된 듯한 느낌이 들었다. 그리고 공사 기간 내내 감리를 마치고 돌아오는 차에는 마을에서 키운 옥수수, 감자, 고구마와 직접 짠 들기름, 향긋한 식혜가 마을 사람들의 기쁨과 함께 실려왔다.









Architect Jongsang Oh
Location Papo-ri, Sangseo-myeon, Hwacheon-gun, Gangwon-do, Republic of Korea
Program Religious facilities
Site area 2,520㎡
Building area 347㎡
Gross floor area 352㎡
Building scope 1F
Building to land ratio 13.77%
Floor area ratio 13.97%
Completion 2022. 3
Project architect Jongsang Oh
Structural engineer Wonsub Seo
Mechanical engineer Jusung M.E.C
Electrical engineer Hangil Engineering
Construction Taesung Build
Photographer Jongsang Oh
해당 프로젝트는 건축문화 2023년 1월호(Vol. 500)에 게재되었습니다.
The project was published in the January, 2023 recent projects of the magazine(Vol. 500).
January 2023 : vol. 500
Contents : RECORDS Peek into the future of architecture and urban space through data from various fields 다양한 분야의 데이터로 건축·도시공간의 미래를 엿보다 Seoul's Urban and Architecture Field in Walking 걸어보며 느끼는 서
anc.masilwide.com
'Architecture Project > Religious' 카테고리의 다른 글
| The Grave of Kamakura Yukinoshita Church (0) | 2023.07.03 |
|---|---|
| EUNSAM CHURCH (0) | 2023.05.08 |
| YONGIN JUNGBU CHURCH (0) | 2023.02.21 |
| JOOAN METHODIST CHURCH (0) | 2023.02.20 |
| YOUNGBOK CHURCH (0) | 2023.02.17 |
마실와이드 | 등록번호 : 서울, 아03630 | 등록일자 : 2015년 03월 11일 | 마실와이드 | 발행ㆍ편집인 : 김명규 | 청소년보호책임자 : 최지희 | 발행소 : 서울시 마포구 월드컵로8길 45-8 1층 | 발행일자 : 매일



