
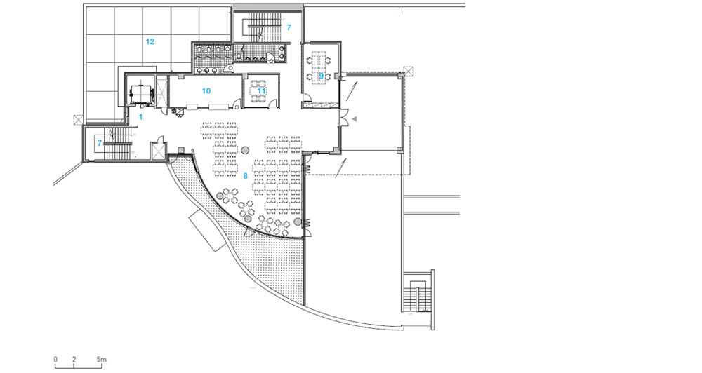
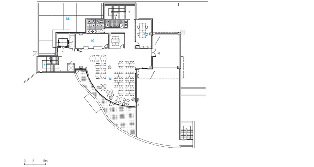
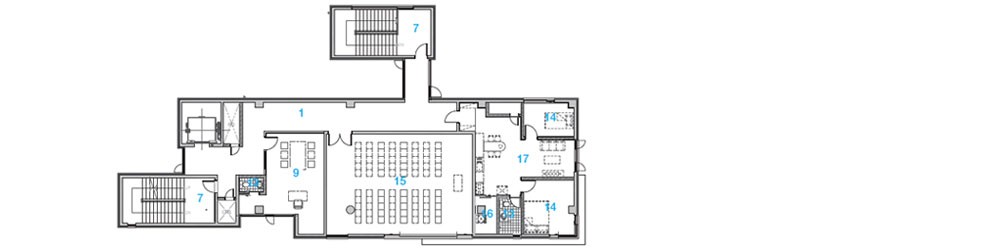
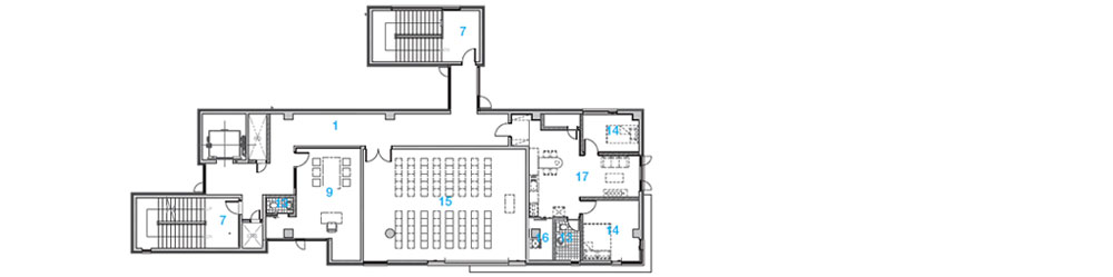
Yongin Jungbu Church is a church located on a site of a steep slope, with such characteristic that the main hall is arranged in the basement. The underground arrangement of main hall made it possible to place the educational facilities and ancillary spaces in the above the ground space. In particular, the dining hall on the 1st floor is also equipped with the function of a cafe by using the roof space of the main hall as an outdoor deck space. It takes on a symbolic, modern and simple form to ensure that the overall mass is visible from a distance.

용인중부교회는 경사가 심한 부지에 들어선 교회로, 지하에 본당이 배치되어 있다는 것이 특징이다. 지하 본당 배치를 통해 지상 공간에는 교육 시설과 부대 공간들을 배치할 수 있었다. 특히 1층에 있는 식당은, 본당의 지붕 공간을 야외 데크 공간으로 활용하여 카페의 기능을 겸한다. 전체적인 매스가 멀리서도 잘 보일 수 있도록 상징적이면서 모던하고 심플한 형태를 가지고 있다.











Architect JFULLCM Architect
Location Seongsan-ro, Cheoin-gu, Yongin-si, Gyeonggi-do, Republic of Korea
Program Religious
Site area 3,447㎡
Building area 688.86㎡
Gross floor area 2,454.79㎡
Building scope B2, 3F
Building to land ratio 19.98%
Floor area ratio 30.03%
Design period 2018. 6 - 2019. 3
Construction period 2019. 4 - 2020. 2
Completion 2020. 3
Principal architect Eunseok Lee, Dohyun Kim
Design team Hyejin Kwon, Byungjoo Kim, Seonghee Jo, Cheong Choi, Yeji Lee
Construction JFULL Construction
Client Yongin jungbu church
Photographer Yongsu Kim
해당 프로젝트는 건축문화 2022년 11월호(Vol. 498)에 게재되었습니다.
The project was published in the November, 2022 recent projects of the magazine(Vol. 498).
November 2022 : vol. 498
Contents : RECORDS Architecture Week held at Yongsan Park after tearing down the wall 벽을 허물고 돌아온 용산공원에서 열린 건축주간 : NEWS / COMPETITION / BOOKS : SKETCH A rural house painted with Passion Sangria / Sangwon Kim 열정적
anc.masilwide.com
'Architecture Project > Religious' 카테고리의 다른 글
| EUNSAM CHURCH (0) | 2023.05.08 |
|---|---|
| PAPO church (0) | 2023.04.03 |
| JOOAN METHODIST CHURCH (0) | 2023.02.20 |
| YOUNGBOK CHURCH (0) | 2023.02.17 |
| JEJU DONGNAM CHURCH (0) | 2023.02.16 |
마실와이드 | 등록번호 : 서울, 아03630 | 등록일자 : 2015년 03월 11일 | 마실와이드 | 발행ㆍ편집인 : 김명규 | 청소년보호책임자 : 최지희 | 발행소 : 서울시 마포구 월드컵로8길 45-8 1층 | 발행일자 : 매일



