
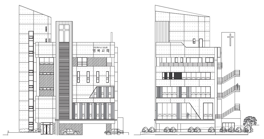
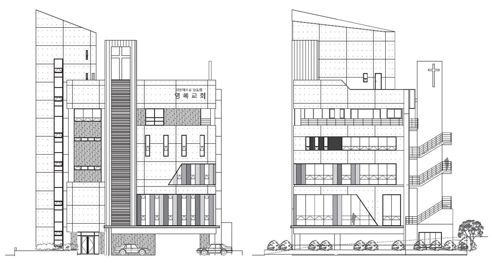
Youngbok Church is a church located on a religious site within the housing site development district of the Junggye-dong apartment complex. The main sanctuary was placed underground to secure a large number of worshipers on the 675m2 site area. A natural ventilation system prevents dew condensation and creates a comfortable worship space on the basement floor. Rather than creating a religious symbol as a church, it was designed so that viewers do not feel hostility, to make it easy for local residents to access. In particular, there is a restaurant and cafe on the second floor, which is used as a restaurant on Sundays and a lounging space open to local residents on weekdays.

영복교회는 중계동 아파트 단지 택지 개발 지구 내의 종교 부지에 위치한 교회이다. 대지면적이 200평이기 때문에, 면적 대비 많은 예배 인원을 확보하기 위해 본당을 지하에 배치했다. 지하층에 자연환기 시스템을 적용하여 결로를 방지하면서 쾌적한 예배공간이 되도록 하였다. 동네 주민들이 쉽게 접근할 수 있도록, 교회로서 종교적인 상징성보다는 거부감이 없는 디자인으로 계획되었다. 특별히 식당 겸 카페가 있는 2층은 주일에는 식당으로 사용되고 평일에는 지역주민들에게 개방되어 누구나 쉴 수 있는 공간이다.











Architect JFULLCM Architect
Location Hangeulbiseok-ro, Nowon-gu, Seoul, Republic of Korea
Program Religious
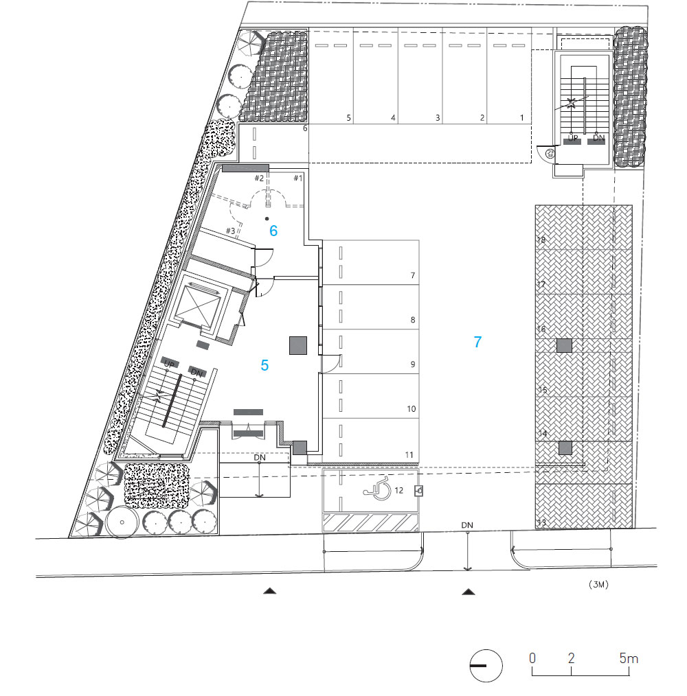
Site area 675.1㎡
Building area 337.36㎡
Gross floor area 2029.04㎡
Building scope B1, 5F
Building to land ratio 49.97%
Floor area ratio 194.66%
Design period 2012. 11 - 2013. 4
Construction period 2013. 5 - 12
Completion 2014. 1
Principal architect Dohyeon Kim
Design team Dohyun Kim
Construction JFULL Construction
Client Youngbok church
Photographer Yongsu Kim
해당 프로젝트는 건축문화 2022년 11월호(Vol. 498)에 게재되었습니다.
The project was published in the November, 2022 recent projects of the magazine(Vol. 498).
November 2022 : vol. 498
Contents : RECORDS Architecture Week held at Yongsan Park after tearing down the wall 벽을 허물고 돌아온 용산공원에서 열린 건축주간 : NEWS / COMPETITION / BOOKS : SKETCH A rural house painted with Passion Sangria / Sangwon Kim 열정적
anc.masilwide.com
'Architecture Project > Religious' 카테고리의 다른 글
| YONGIN JUNGBU CHURCH (0) | 2023.02.21 |
|---|---|
| JOOAN METHODIST CHURCH (0) | 2023.02.20 |
| JEJU DONGNAM CHURCH (0) | 2023.02.16 |
| SHAER MOHAMMAD PARA JAME MOSQUE (0) | 2022.10.14 |
| MOSQUE OFREFLECTION (0) | 2022.10.13 |
마실와이드 | 등록번호 : 서울, 아03630 | 등록일자 : 2015년 03월 11일 | 마실와이드 | 발행ㆍ편집인 : 김명규 | 청소년보호책임자 : 최지희 | 발행소 : 서울시 마포구 월드컵로8길 45-8 1층 | 발행일자 : 매일



