
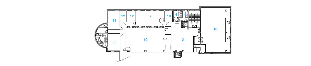
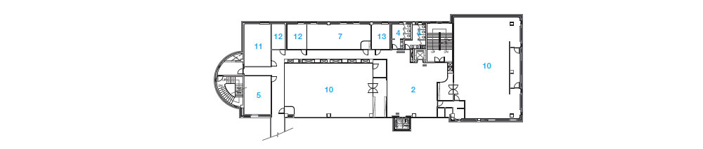
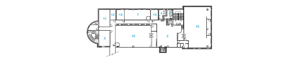
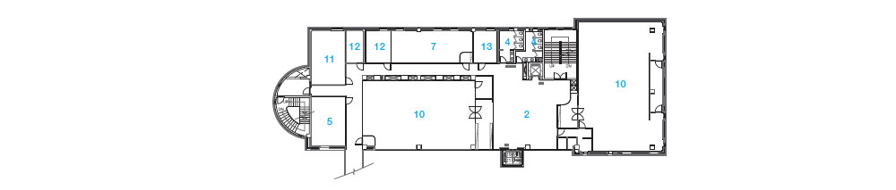
The International Bible Museum of Jooan Methodist Church houses a collection of Bibles and related materials from all over the world. Among the Bibles in the collection, the early translations of the Korean Bible were first propagated by Appenzeller, a Methodist missionary from the United States, when the Incheon port opened in 1885. The museum and Incheon are both significant places where one can deeply understand and experience Christian history and the Bible. The exterior wall of the museum was renovated to reflect this symbolism. With the motif of the ‘Gospel Ship Carrying the Bible’, it contains the history. The mass of the building embodies a ship, the elevator in the center a mast, and the wave of light through the window, waves.

주안감리교회의 국제성서박물관은 전 세계의 성경과 관련 자료들이 소장된 곳이다. 소장 중인 성경 중 한국어 번역 초기 성경은 1885년 인천의 개항장이 열리면서 미국의 감리회 선교사 아펜젤러에 의해 최초로 전파되었다. 박물관과 인천은 기독교 역사와 성경을 깊이 이해하고 경험할 수 있는 곳으로써, 그 자체로 상징성을 갖고 있다. 박물관의 외벽은 이러한 상징성을 담아 리모델링이 진행됐다. 국제성서박물관은 ‘성경을 싣고 오는 복음선’에서 영감을 얻은 디자인으로, 그 역사가 담긴 배이다. 건물의 형태는 배의 모습을 하고 있으며, 중앙의 엘리베이터는 돛대, 창을 통한 빛 물결은 파도를 나타낸다.














Architect JFULLCM Architect
Location Gyeongin-ro, Michuhol-gu, Incheon, Republic of Korea
Program Education & Research, Welfare facilities, Neighborhood living facility
Site area 1,532.50㎡
Building area 961.10㎡
Gross floor area 8,314.75㎡
Building scope B3, 6F
Building to land ratio 62.71%
Floor area ratio 308.51%
Design period 2019. 10 - 2020. 5
Construction period 2020. 5 - 10
Completion 2020. 12
Principal architect Dohyun Kim
Design team Byungjoo Kim, Seonghee Jo, Cheong Choi, Jiyoung Won
Construction LEELL S&D CO., LTD.
Client Jooan methodist church
Photographer LEELL S&D CO., LTD.
해당 프로젝트는 건축문화 2022년 11월호(Vol. 498)에 게재되었습니다.
The project was published in the November, 2022 recent projects of the magazine(Vol. 498).
November 2022 : vol. 498
Contents : RECORDS Architecture Week held at Yongsan Park after tearing down the wall 벽을 허물고 돌아온 용산공원에서 열린 건축주간 : NEWS / COMPETITION / BOOKS : SKETCH A rural house painted with Passion Sangria / Sangwon Kim 열정적
anc.masilwide.com
'Architecture Project > Religious' 카테고리의 다른 글
| PAPO church (0) | 2023.04.03 |
|---|---|
| YONGIN JUNGBU CHURCH (0) | 2023.02.21 |
| YOUNGBOK CHURCH (0) | 2023.02.17 |
| JEJU DONGNAM CHURCH (0) | 2023.02.16 |
| SHAER MOHAMMAD PARA JAME MOSQUE (0) | 2022.10.14 |
마실와이드 | 등록번호 : 서울, 아03630 | 등록일자 : 2015년 03월 11일 | 마실와이드 | 발행ㆍ편집인 : 김명규 | 청소년보호책임자 : 최지희 | 발행소 : 서울시 마포구 월드컵로8길 45-8 1층 | 발행일자 : 매일



