
The building was built as a silk mill during the Japanese colonial period and was converted into a paper mill in the 1970s. It was abandoned after it stopped operating in the early 2000s. As facilities that fueled the regional economic development stopped running one by one, the original downtown area of Jochiwon lost its function and became empty, leaving behind its glory days. The old factory contains traces of Jochiwon’s modern industrial history, giving it value for preservation, but it was missing construction records and data, and its preservation conditions were not good. Although it was an abandoned factory that had stopped running long ago, the building was not demolished, most likely because of the traces of the hardships that took place in the factory rather than the architectural meaning of the factory built by Japan while under colonial rule. A story such as this was necessary for a regeneration project.
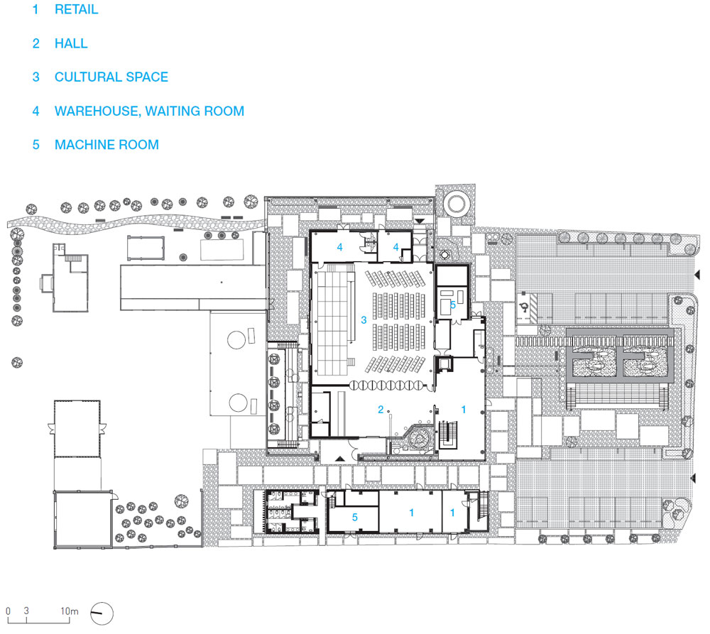
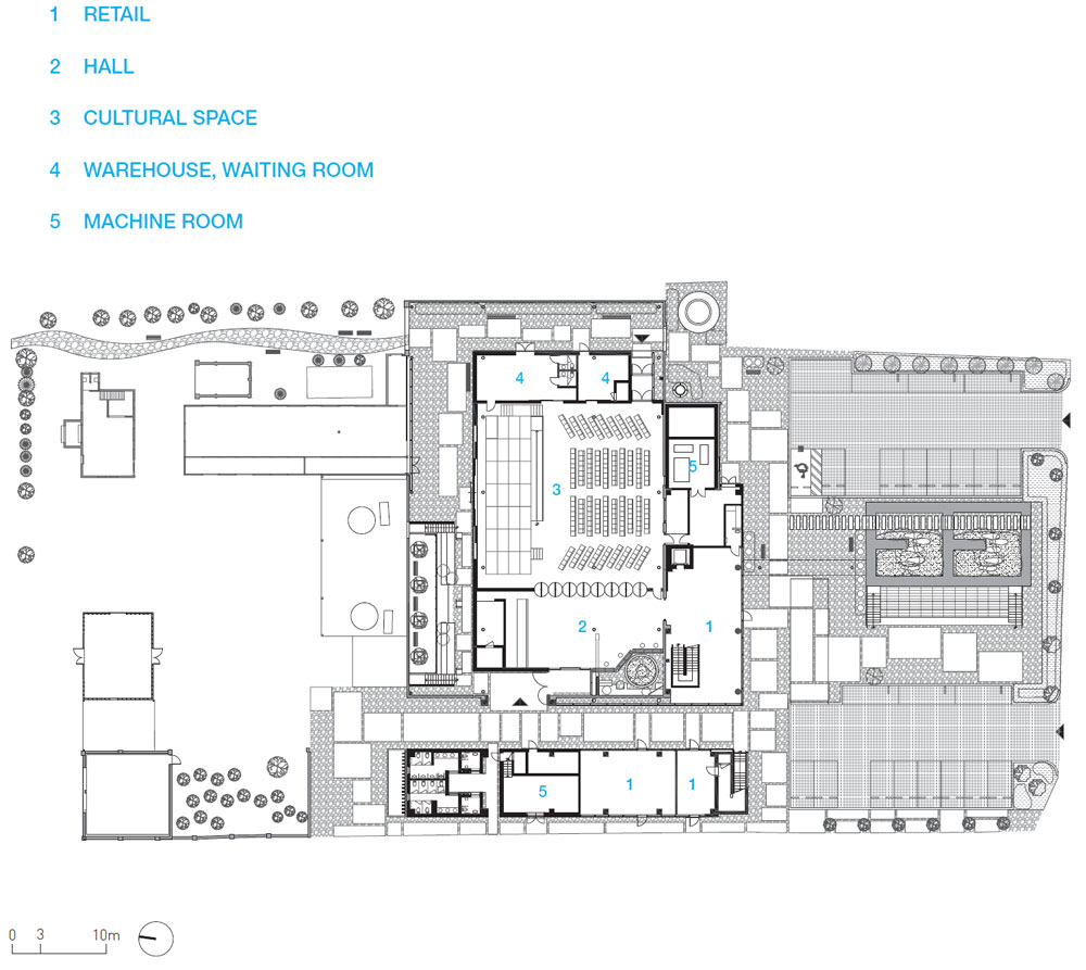
The factory had spatial characteristics unique to this area. There were elements potentially attractive for travelers looking for a space different from their local culture or urban daily life. So it was decided to develop a cultural regeneration project by understanding the historical context and social and spatial characteristics of this place. The intention was to implant growth engines into the original downtown through spatial regeneration with local art and culture as its core. The role of the architect was to bring it back to life as a cultural space containing different layers of the past era. In order to portray the identity of Jochiwon’s history and the traces of a space that depict the sorrows and lives of local residents, the original form was preserved. One of the factory buildings was designated as a registered cultural property, and the management building at the entrance of the site had been restored. The largest factory building among them had to be converted into a new space with a performance hall, exhibition hall, and cafe. Preserving the original form for adaptive reuse of industrial heritage encountered safety issues and several conditions of building laws. Although the transformation of historical values is inevitable, we tried not to lose the whole context. The awkwardness and unfamiliarity that were inevitably added have become the charm of this place, where several eras coexist.
Visitors chance upon this place from a residential area inside the main road, and react to the memories of history. In order to create a flow of circulation that is like taking a walk in a cultural park in the disconnected outdoor space of the former factory site, walls of the abandoned factory were drilled through and new walls were created. The composition of the walls carefully erected to create the interior space was intended to give more weight to the formation of the exterior space. By creating different yards that connect the past and the present, we created a cultural space for walking. It is similar to the attention given to coexisting histories in urban regeneration spaces of Seoul, which is divided into the Gangbuk (North of the river) area, formerly Hanyang of the Joseon Dynasty, and the new city of Gangnam (South of the river). Local cultural rebirth, which enriches history and culture, can bridge the gap between the original downtown and the new city of Sejong City, and quench the thirst for cultural needs. The new energy of the abandoned site of Hallim Paper Mill will stimulate the inspiration for cultural regeneration.

일제강점기에 제사공장으로 지어진 건물은 70년대 제지공장이 되었고, 2000년 초 가동을 멈춘 후에는 방치되었다. 지역경제 발전의 역할을 하던 시설들이 하나둘 멈추면서, 조치원 원도심 일대는 과거 번영했던 전성기를 뒤로 한 채, 기능을 잃고 비어 가고 있었다. 오래된 공장은 조치원 근대산업 역사의 흔적을 담고 있어 보존가치가 있지만, 건립기록과 자료가 없었고, 건물의 보존상태가 좋지 않았다. 오래전 쓰임을 다한 폐공장이지만 건물은 철거되지 않았는데, 일제강점기에 일본이 지은 공장의 건축사적 의미보다는 공장에서 벌어진 치열했던 삶의 애환에 대한 흔적들 때문이었을 것이다. 새로운 용도에 맞는 재생은 이러한 이야기가 담겨 시작되어야 했다.
공장은 이 지역만의 공간적 특성을 갖고 있었다. 지역문화나 도시의 일상이 아닌 색다른 공간을 찾는 도시여행자들에게 매력적인 요소들이 잠재되어 있었다. 그렇기에 이곳의 역사적 맥락과 사회적, 공간적 특성을 파악해 문화재생사업을 전개하기로 했다. 지역문화예술을 핵심으로 한 공간재생을 통해 원도심에 성장동력을 불어넣고자 했다. 건축가의 역할은 켜로 이루어진 시대의 흔적이 담겨있는 문화공간으로 다시 살아나게 하는 일이었다. 조치원 역사의 정체성과 지역주민의 애환과 삶을 보여주는 공간의 흔적을 함께 담고자 원형을 보존하는 방향으로 진행했다. 공장 건물 중 한 채는 등록 문화재로 지정되었고, 부지 입구에 있는 관리동(학사관)은 복원을 마친 상태였다. 그 중 가장 큰 공장 건물을 공연장과 전시장, 카페 등을 넣은 새로운 용도의 공간으로 변경해야 했다. 산업유산의 재사용(adaptive reuse)을 위한 원형보존은 안전문제와 건축 관련법의 여러 조건과 부딪혔다. 역사적 가치의 변형이 불가피하지만, 전체 맥락을 잃지 않도록 노력했다. 불가피하게 덧대어져 생긴 어색함과 낯섦은 여러 켜의 시간이 공존하는 이곳의 매력이 되었다.
방문객은 큰길 안쪽 주택가에서 우연히 마주치듯 이곳을 찾게 되며, 역사의 기억에 반응하게 된다. 과거 공장부지의 단절된 외부공간에서 문화공원을 산책하듯 순회하는 동선의 흐름을 만들고자 폐공장의 벽체를 뚫기도, 새로운 벽체를 만들기도 했다. 내부공간을 만들기 위해 조심스럽게 세운 벽체들의 구성은 외부공간 형성에 무게를 더 주고자 했다. 과거와 현재를 잇는 다양한 마당을 만들어 걷는 문화공간을 제시했다. 조선 한양의 강북과 신도시의 강남으로 나뉜 서울에서 역사가 공존하는 도심재생공간들이 주목을 받고 있는 것과 비슷하다. 역사와 문화를 두텁게 만드는 지역문화재생은 세종시 원도심과 신도시의 불균형의 간극과 문화적 욕구의 갈증을 해소할 수 있다. 한림제지 폐공장부지의 새로운 활기는 문화재생의 영감을 자극할 것이다.



















Architect SAC INTERNATIONAL, ltd.
Location Jochiwon-eup, Sejong-si, Republioc of Korea
Program Concert hall, Library, Gallery, Cafe
Site area 6,169㎡
Building area 1,824㎡
Gross floor area 1,862㎡
Building scope 2F
Building to land ratio 29.58%
Floor area ratio 30.18%
Design period 2021.3 - 7
Construction period 2021.9 - 2022. 6
Completion 2022. 6
Principal architect Kyungsik Hong
Project architect Osik Na
Design team Osik Na, Jinmook Kim, Yeonin Park, Yubin Um
Structural engineer CS Structural Engineering
Mechanical engineer HANA Consulting Engineers
Electrical engineer HANA Consulting Engineers
Construction Jangbyuk Construction Co., Ltd
Client Sejong City
Photographer Juneyoung Lim
해당 프로젝트는 건축문화 2022년 12월호(Vol. 499)에 게재되었습니다.
The project was published in the December, 2022 recent projects of the magazine(Vol. 499).
December 2022 : vol. 499
Contents : RECORDS Communicate with the city, Encounter architecture, Discover a story: 'Open House Seoul 2022' 도시와 소통하다, 건축을 만나다, 이야기를 발견하다: ‘오픈하우스서울 2022’ To Demonstrate the Era of Carbon Neutra
anc.masilwide.com
'Architecture Project > Cultural' 카테고리의 다른 글
| Wuguan Books (0) | 2023.03.28 |
|---|---|
| Procuratie Vecchie (0) | 2023.03.23 |
| MILLAC THE MARKET (0) | 2023.03.21 |
| Sporthall in Modřice (0) | 2023.03.21 |
| FLUGT Refugee Museum of Denmark (0) | 2023.03.06 |
마실와이드 | 등록번호 : 서울, 아03630 | 등록일자 : 2015년 03월 11일 | 마실와이드 | 발행ㆍ편집인 : 김명규 | 청소년보호책임자 : 최지희 | 발행소 : 서울시 마포구 월드컵로8길 45-8 1층 | 발행일자 : 매일



