
Urban context
The sporthall is located in Modřice - the surrounding part of Brno which is the second biggest city in Czech republic. The urban structure in town Modřice has a scale of a small town- the buildings in Benešova street are single- or two-storeyed, the three-storeyed houses are an exception. The designed sporthall respect these principles despite its height of a three-storey building with the height from 9 up to 11 meters. The site is located betweeen the primary school and the railway line. The building itself is situated on the boarder with the railway line so it serves as a noise barrier for the school and it doesn´t take any day light from the classrooms at the same time. We see the former building as a historical layer which gives the site a high value. The memory of the place itself is important for our proposal and therefore we restore the old building and put there the restaurant- an importatnt place for the community life. The space in front of the entrance has a granite pavement in different color shades which points out the importance of the building. The lower service part of the sporthall is on the side to the school so it doesn´t shadow the school building.
Architecture
The sporthall has an ambition and the potential to become a local community centre. The architecture of the buillding should therefore express the solidity, the importance of the place. Therefore its designed as a peaceful house standing still on the ground. The spatial concept fits perfectly in its surroundings. The great sporthall is separated to 3 same volumes which corespods with its function - the great hall can be divided to three volleyball/ netball courts. The volume of the former restaurant becamed a volume pattern, by repeating the same volume is emhasized its existence. The volume pattern is also repeated in the front street line- the volume of the new building is there disrupted by the only big hole- the main entrance. The floor level of the hall is 3 m lower than the floor of the entrance foyer. That enables to keep the height of the buildng low, to have the same height of the cornice with the old building and it also improves the heat balance of the building.
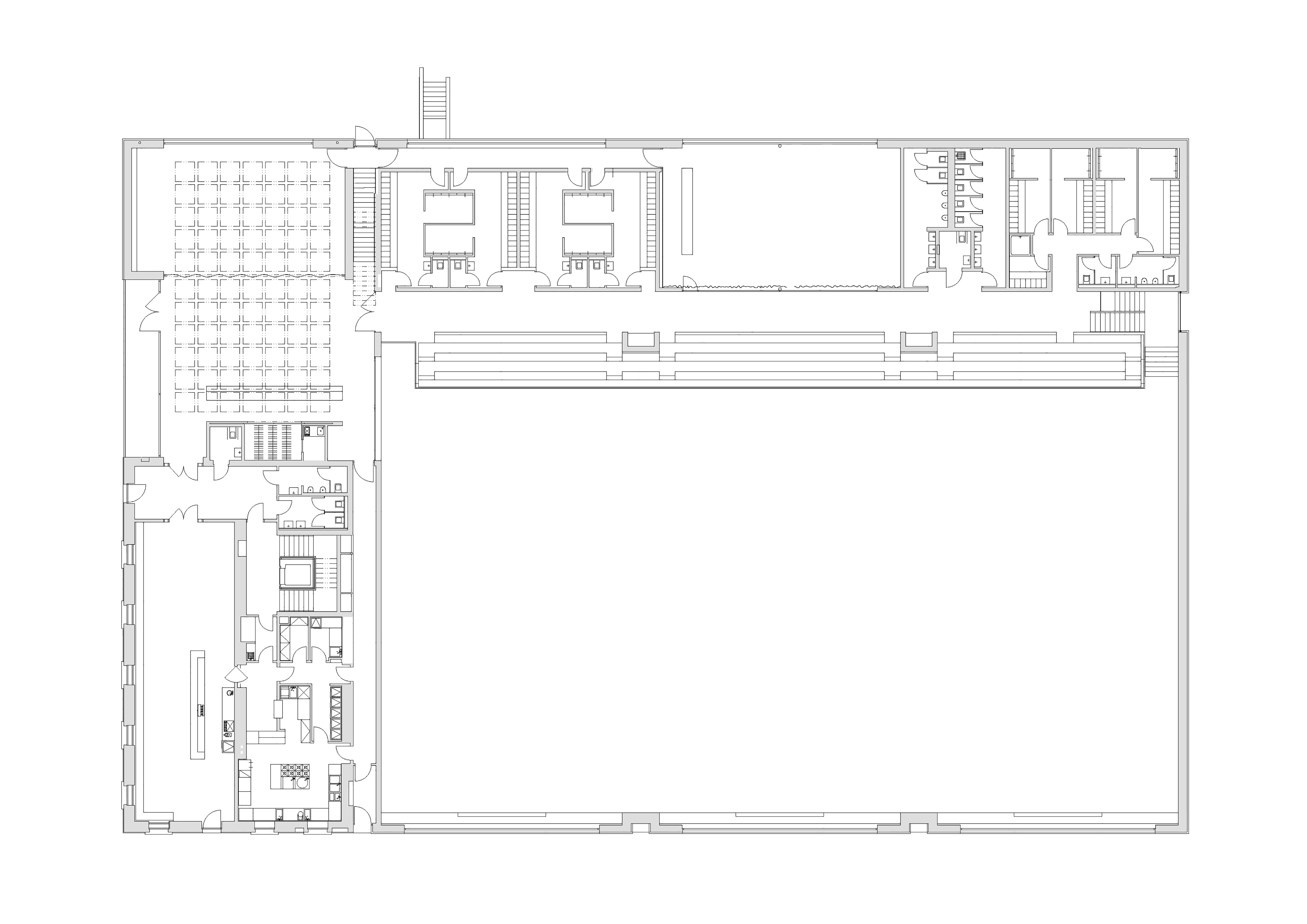
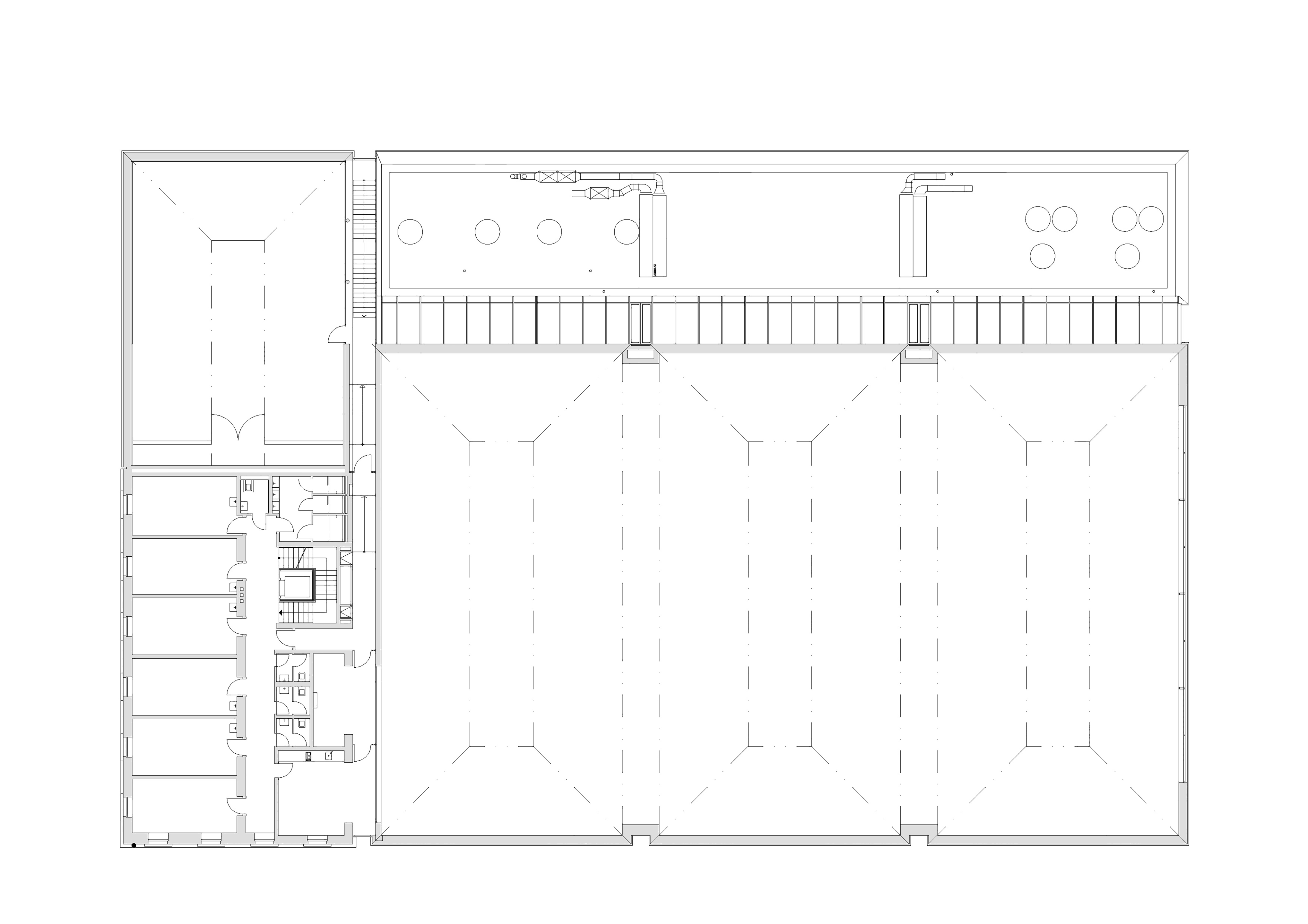
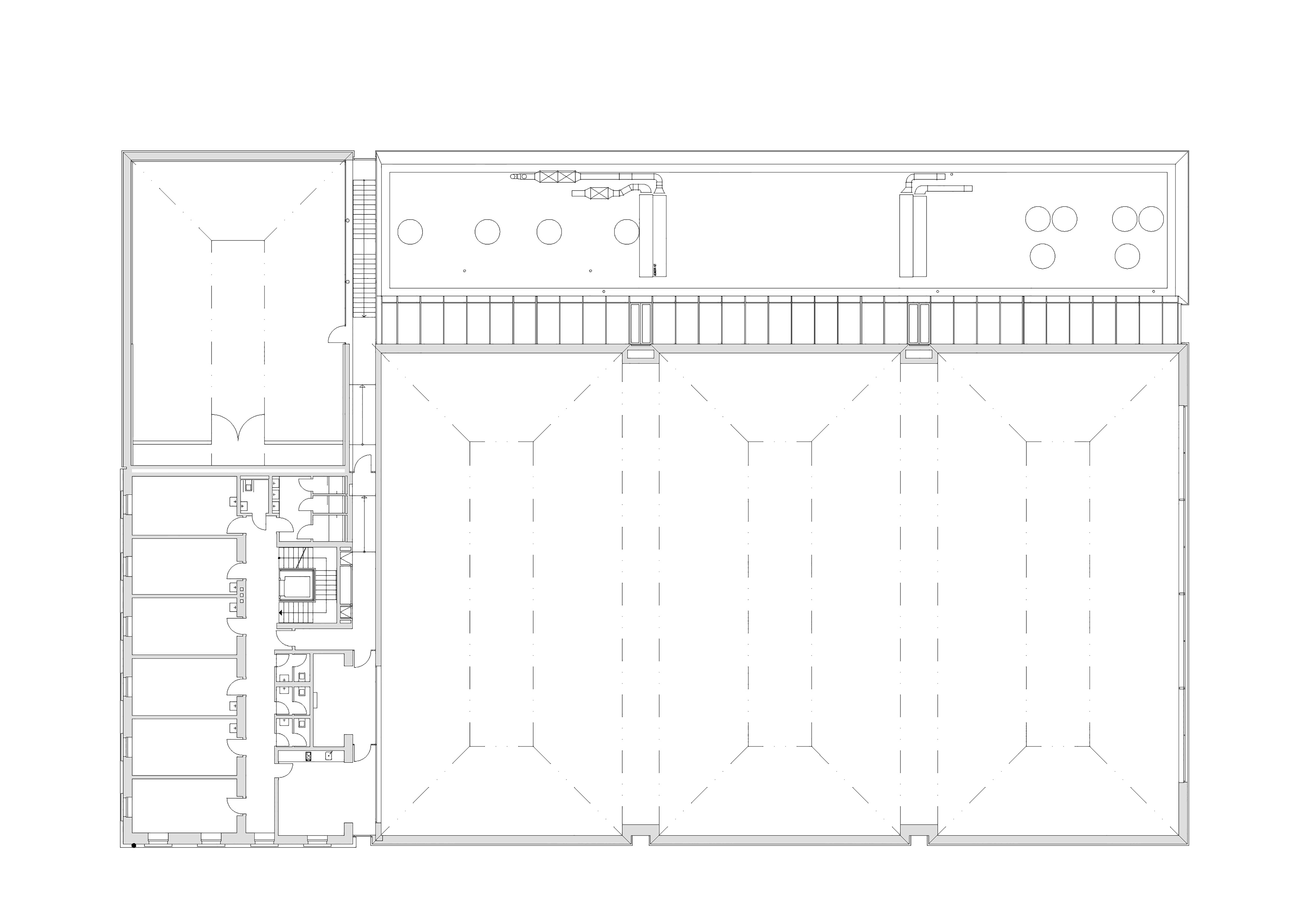
The layout of the building
The entrance foyer is the core of the building, the meeting point, where the sportman meets the spectator. Right after the entering the foyer you can see the sport hall trough a big window. From the foyer is directly accesible the gallery of the big hall, from which is accesible the main tribune, the changing rooms, the gym and it also lead up to the exit to the outside courts. Other way from the foyer leads downstairs to the service part of the buildng, where are located other changing rooms and the swimming pool. The lower level is directly connected to the primary school via an underground corridor, because the swimming pool mainly serves for the school children. The upper story of the building is dedicated to the mirror hall with the natural rooflight. The entrance foyer is also connected with the old building, where is the restaurant on the ground level and the accomodation for the sport clubs on the upper levels.
The structure, materials and interior
The baring concrete structure of the builduing is visible in the interiors and give it a strong character. The structure itself create many interesting trough-view which also simplify orientation in the building. Important elements for the interior are the rooftop skylights which provide perfect inderect lightning for the great sport hall, the mirror hall, the gallery of the sport hall and the corridor leading up to the mirror hall. The roof structure of the great hall is steel and is covered with acoustic panels. The floor of the great hall is wooden as well as the wooden acoustic wallcovering, the rest of the walls are concrete. The facade of the new building is made by a plaster profilated to horizontal lines. This gives the large planes detail and a human scale. It is also a kind of reminiscence to the former bossagge on the facade of the old building. Tha facade of the old building is renovated to the state illustrated by a photograph from the beginning of the 20th century.
The surroundings
The space in front of the entrance is paved and became a proper town public space. The street between the hall and the primary school is a side street with trees and parking area. There were created two new multifunctional outdoor sport grounds next to the existing sport courts. Next to the restaurant were preserved old trees and there will be a playground for children and an outdoor dancing parquet.

도시 컨텍스트
이 체육관은 체코에서 두 번째로 큰 도시인 브르노의 주변 지역인 모데체에 위치해 있다. 모데체 마을의 도시 구조는 작은 마을의 규모를 가지고 있다 - 베네쇼바 거리의 건물들은 단층 또는 2층이며, 3층 주택들은 예외적이다. 설계된 스포츠 홀은 높이가 9m에서 11m에 이르는 3층 건물의 높이에도 불구하고 이러한 원칙을 존중해야 한다. 부지는 초등학교와 철도 노선 사이에 위치해 있다. 그 건물 자체는 철도 노선과 경계에 위치해 있어서 학교의 소음 장벽 역할을 하며 동시에 교실의 채광을 떨어뜨리지 않는다. 우리는 이전 건물을 사이트에 높은 가치를 부여하는 역사적인 층으로 본다. 그 장소에 대한 기억 자체가 우리의 제안에 중요하기 때문에 우리는 오래된 건물을 복원하고 지역 사회 생활에 중요한 장소인 식당을 배치한다. 입구 앞 공간에는 화강암 포장이 다양한 색조로 되어 있어 건물의 중요성을 알 수 있다. 체육관의 하부 서비스 부분은 학교 옆에 있어서 학교 건물에 그림자를 드리우지 않는다.
건축양식
그 체육관은 지역 사회 중심지가 될 수 있는 야망과 잠재력을 가지고 있다. 그러므로 건물물의 건축양식은 그 장소의 견고함과 중요성을 표현해야 한다. 그러므로 그것은 땅 위에 가만히 서 있는 평화로운 집으로 설계되었다. 장소의 콘셉트는 주변 환경에 완벽하게 들어맞는다. 거대한 체육관은 그 기능에 따라 세 개의 동일한 볼륨으로 분리된다 - 대형 홀은 세 개의 배구/네트볼 코트로 분할될 수 있다. 이전 레스토랑의 볼륨은 동일한 볼륨을 반복함으로써 볼륨 패턴이 되었으며, 이를 통해 그 존재감이 강조되었다. 볼륨 패턴은 앞길에서도 반복되는데, 새 건물의 볼륨은 유일한 큰 구멍인 정문에 의해 방해를 받는다. 홀의 바닥은 입구 로비의 층보다 3m 낮다. 그것은 건물의 높이를 낮게 유지하고, 오래된 건물과 같은 코니스의 높이를 가질 수 있게 하며, 또한 건물의 열 평형을 향상시킨다.
건물의 레이아웃
입구 로비는 건물의 핵심이자, 스포츠맨이 관중을 만나는 만남의 장소이다. 로비로 들어가면 바로 큰 창문으로 체육관을 볼 수 있다. 로비에서 큰 홀의 갤러리에 직접 접근할 수 있으며, 메인 관람석, 탈의실, 체육관 및 외부 코트로 나가는 출구로 연결된다. 로비에서 다른 방향으로 내려가면 다른 탈의실과 수영장이 있는 건물의 서비스 구역으로 연결된다. 저층부는 지하 복도를 통해 초등학교로 바로 연결되는데, 수영장은 주로 학생들을 위한 것이기 때문이다. 건물의 위층은 자연적인 지붕 채광창이 있는 미러 홀을 위한 공간이다. 입구 로비는 또한 오래된 건물과 연결되어 있는데, 1층에는 식당이 있고 위층에는 스포츠 클럽을 위한 숙소가 있다.
구조, 재료 및 내부
건물의 있는 그대로의 콘크리트 구조가 내부에 드러나 강한 특징을 준다. 그 구조 자체는 건물의 방향을 단순화하는 많은 흥미로운 전경을 만들어낸다. 실내에서 중요한 요소는 루프탑 천장조명으로, 대규모 체육관, 미러 홀, 스포츠 홀의 갤러리, 미러 홀로 이어지는 복도에 완벽한 간접조명을 제공한다. 대형 홀의 지붕 구조는 강철로 이루어져 있으며, 음향 패널로 덮여 있다. 대형 홀의 바닥은 나무로 되어 있으며, 마찬가지로 나무 음향벽 시공이 되어있다. 나머지 벽은 콘크리트로 되어 있다. 새 건물의 정면은 가로줄 모양의 회반죽으로 만들어졌다. 이로 인해 큰 평면에 디테일과 인간적인 느낌이 부여된다. 이는 또한 예전 건물의 외벽 보사지를 연상시키는 요소 중 하나이다. 예전 건물의 외벽은 20세기 초의 사진에 나와 있는 상태로 복원되었다.
주변 환경
입구 앞 공간이 포장돼 제대로 된 마을 공공공간이 됐다. 홀과 초등학교 사이의 거리는 나무와 주차장이 있는 샛길이다. 기존 스포츠 코트 옆에 2개의 다기능 야외 운동장이 새로 생겼다. 식당 옆에는 고목들이 보존되어 있고 어린이들을 위한 놀이터와 춤을 추기 위한 야외 마루가 될 것이다.














건축가 BOD ARCHITEKTI
위치 Prague 7
용도 Sporthall
연면적 2375㎡
규모 지하 1층, 지상 2층
준공 2020
대표건축가 BOD ARCHITEKTI
협업 Karolína Urbánková, František Bosák
엔지니어 Ing. Jan Svoboda
사진작가 Tomáš Slavík, Jan Alexander Bednář
'Architecture Project > Cultural' 카테고리의 다른 글
| JOCHIWON 1927 ART CENTER (0) | 2023.03.22 |
|---|---|
| MILLAC THE MARKET (0) | 2023.03.21 |
| FLUGT Refugee Museum of Denmark (0) | 2023.03.06 |
| CUKRARNA (0) | 2023.03.01 |
| SEOUL ROBOT & AI MUSEUM(Ongoing) (0) | 2023.02.23 |
마실와이드 | 등록번호 : 서울, 아03630 | 등록일자 : 2015년 03월 11일 | 마실와이드 | 발행ㆍ편집인 : 김명규 | 청소년보호책임자 : 최지희 | 발행소 : 서울시 마포구 월드컵로8길 45-8 1층 | 발행일자 : 매일



