
The reclamation area, located on the east side of Gwangalli Beach, is a place where the public water reclamation project began around 1980 and has been urbanized until now. The site, which remained undeveloped from the time of reclamation until 2019, when it was designed, looked like a huge cavity in the city center, surrounded by nearby buildings that had already been developed as high-rise buildings. Since the southern side of the site was connected to the sea and had the closest view of Gwangandaegyo Bridge, the quantitative development logic of ‘high-rise development and sale’ was taken for granted. The business client’s belief that another spatial value can be realized nonetheless through low-rise horizontal landmarks and publicity was an important pivotal point of the project.
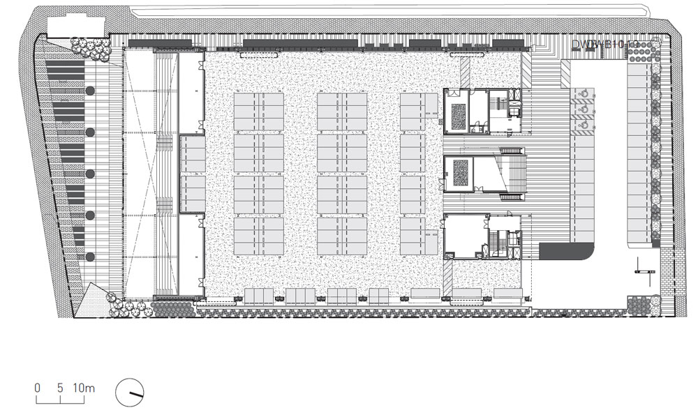
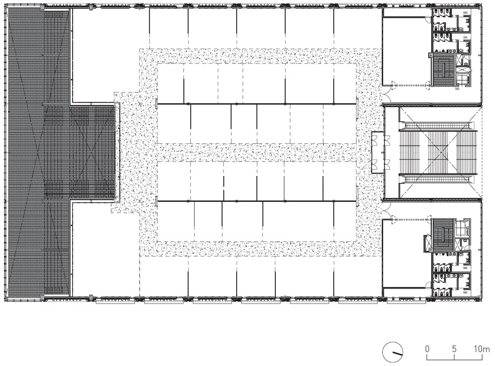
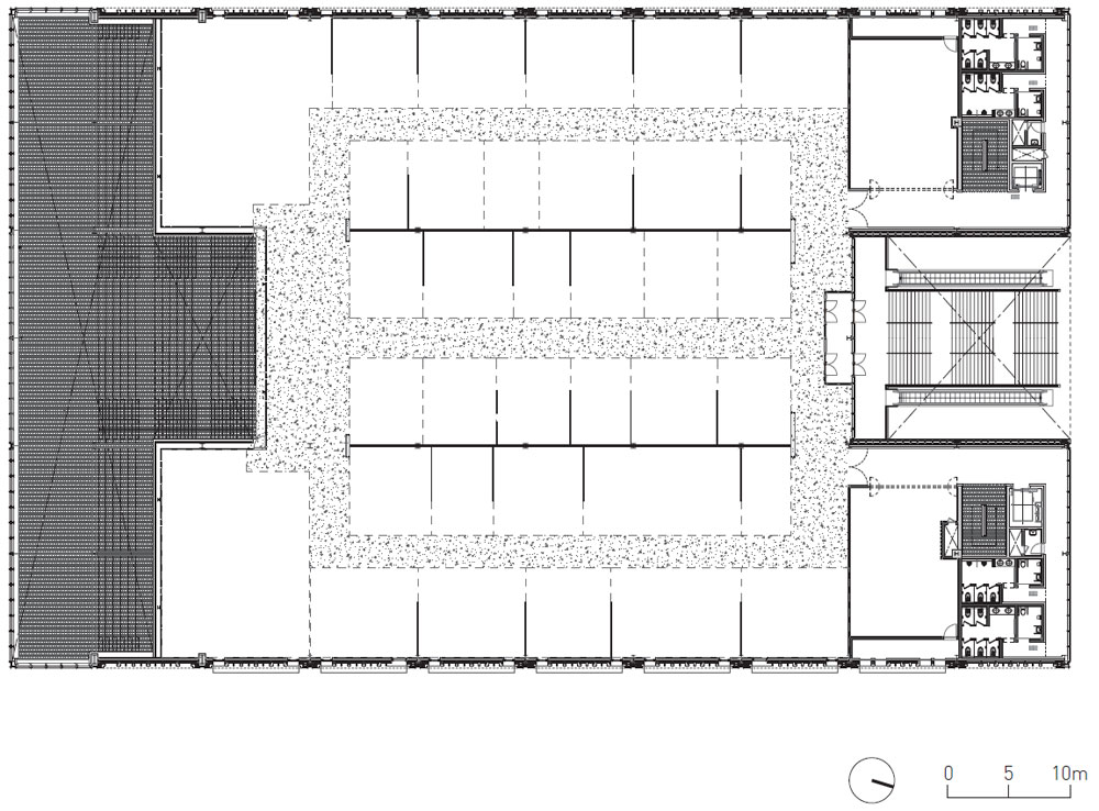
Unlike other coastal commercial facilities that monopolize the sea view with an oversized body, this project approached with value in design without design, as well as emptied and reduced space. The low mass formed at a height that does not obscure the sea view from the nearby residential areas creates a strong contrast with the high-rise buildings, forming a strange urban landscape. Memories of live fish merchants and street vendors near the site in the past were inherited by the market’s program and reconstructed as a space that can capture the actions of locals, cultures, and people. The prototype of a warehouse was an appropriate motif to realize the empty space while forming an urban context of the watersiade of Busan Port. The gable roof is divided into three sections so as not to give visual pressure to pedestrians walking on the beach, and the concisely constructed mass shows the relationship between the coastal view and the sea. The south hall is a transition space that connects the gap between the sea and the city. Millac The Market is a complex place that can have a visual connection to the sea through the Grand Stair, curtain wall, and shared space, and it can become a space for communication and relaxation, and embrace a variety of cultures and events.
Red brick was used as a material that conforms to the simple form of a warehouse and reveals its physical properties, and the long facade in the west facing the urban pedestrian environment was planned as a dense colonnade, creating another urban landscape. The site of Namseon Warehouse, a modern cultural heritage of Busan, and the facade of the former Baekje Hospital were used as motifs in the composition, proportion, and detail of the materials.

광안리해수욕장 동측에 위치한 매립지역은 1980년경 공유수면 간척사업이 시작되어 현재까지 도심화가 진행된 장소다. 매립 당시부터 설계 시점이었던 2019년까지 미개발지로 남아있던 부지는 이미 고층으로 개발된 인근 건물들에 둘러싸여 거대한 도심 속 공동과 같은 모습이었다. 부지 남측은 바다와 연접되어 광안대교를 가장 가까이서 조망할 수 있는 장소였기에, ‘고층 개발·분양’이란 양적인 개발 논리가 당연시되는 곳이었다. 그럼에도 불구하고 저층의 수평적 랜드마크와 공공성을 통해 또 다른 공간 가치를 구현할 수 있다는 사업주의 믿음은 프로젝트의 중요한 구심점이었다.
비대한 몸집으로 바다 조망을 독점하는 여타 해안상업시설과 달리 비워내고 덜어지는 공간, 디자인 없는 디자인에 가치를 두고 접근하였다. 인근 주거지에서 바다 조망이 가려지지 않는 높이로 형성된 낮은 매스는 고층 건물과 강한 대비를 이루며 생경한 도시풍경을 그린다. 과거 부지 인근에 있었던 활어상, 노점상의 기억은 마켓의 프로그램으로 승계되어 로컬과 문화, 사람들의 행위를 담아낼 수 있는 공간으로 재구성되었다. 창고라는 원형은 부산항 수변이 가지는 도시적 맥락을 형성함과 더불어 빈공간을 구현하기에 적절한 모티브였다. 박공지붕은 해변을 산책하는 보행자들에게 시각적인 위압감을 주지 않도록 3개로 분절하였고, 간결하게 축조된 매스가 해안 전경과 바다와의 관계성을 보여준다. 남측 홀은 바다와 도시와의 간극을 연결하는 전이공간이다. 밀락더마켓은 Grand Stair와 커튼월, 공유의 공간을 통해 바다로 향한 시각적 연계, 소통과 휴게의 공간, 다양한 문화와 이벤트를 품을 수 있는 복합적인 장소다.
창고가 가지는 단순한 형태에 부합하고 물성이 그대로 드러나는 재료로 적벽돌이 사용됐으며, 도심보행환경에 면한 서측의 긴 파사드는 촘촘한 열주로 계획하여 또 다른 도시의 풍경을 연출하였다. 부산의 근대문화유산인 남선창고 터, 구 백제병원의 파사드가 재료의 구성과 비례, 디테일적인 부분에서 모티브로 이용되었다.











Architect LJL Architects + 2K1 Architecture
Location Millaksubyeon-ro, Suyeong-gu, Busan, Republic of Korea
Program Complex cultural facility
Site area 7,722.00㎡
Building area 4,447.95㎡
Gross floor area 5,120.65㎡
Building scope B1, 2F
Building to land ratio 57.60%
Floor area ratio 66.31%
Design period 2019. 7 - 2021. 2
Construction period 2021. 2 - 2022. 7
Completion 2022. 7
Principal architect (LJL Architects) Seungjin Lee / (2K1 Architecture) Joohyoung Lee, Gyoungnam Kwon
Design team Yujin Kim, Hyunbin Park, Yeji Lee, Younsub Lee, Boram Jeong, Jihee Han
Structural engineer ILU Structural Engineers Co., Ltd
Mechanical engineer Jin Heung ENG
Electrical engineer Jin Heung ENG
Construction Sammi Construction Co., Ltd
Client Sammi Corporation
Photographer Joonhwan Yoon
해당 프로젝트는 건축문화 2022년 12월호(Vol. 499)에 게재되었습니다.
The project was published in the December, 2022 recent projects of the magazine(Vol. 499).
December 2022 : vol. 499
Contents : RECORDS Communicate with the city, Encounter architecture, Discover a story: 'Open House Seoul 2022' 도시와 소통하다, 건축을 만나다, 이야기를 발견하다: ‘오픈하우스서울 2022’ To Demonstrate the Era of Carbon Neutra
anc.masilwide.com
'Architecture Project > Cultural' 카테고리의 다른 글
| Procuratie Vecchie (0) | 2023.03.23 |
|---|---|
| JOCHIWON 1927 ART CENTER (0) | 2023.03.22 |
| Sporthall in Modřice (0) | 2023.03.21 |
| FLUGT Refugee Museum of Denmark (0) | 2023.03.06 |
| CUKRARNA (0) | 2023.03.01 |
마실와이드 | 등록번호 : 서울, 아03630 | 등록일자 : 2015년 03월 11일 | 마실와이드 | 발행ㆍ편집인 : 김명규 | 청소년보호책임자 : 최지희 | 발행소 : 서울시 마포구 월드컵로8길 45-8 1층 | 발행일자 : 매일


