
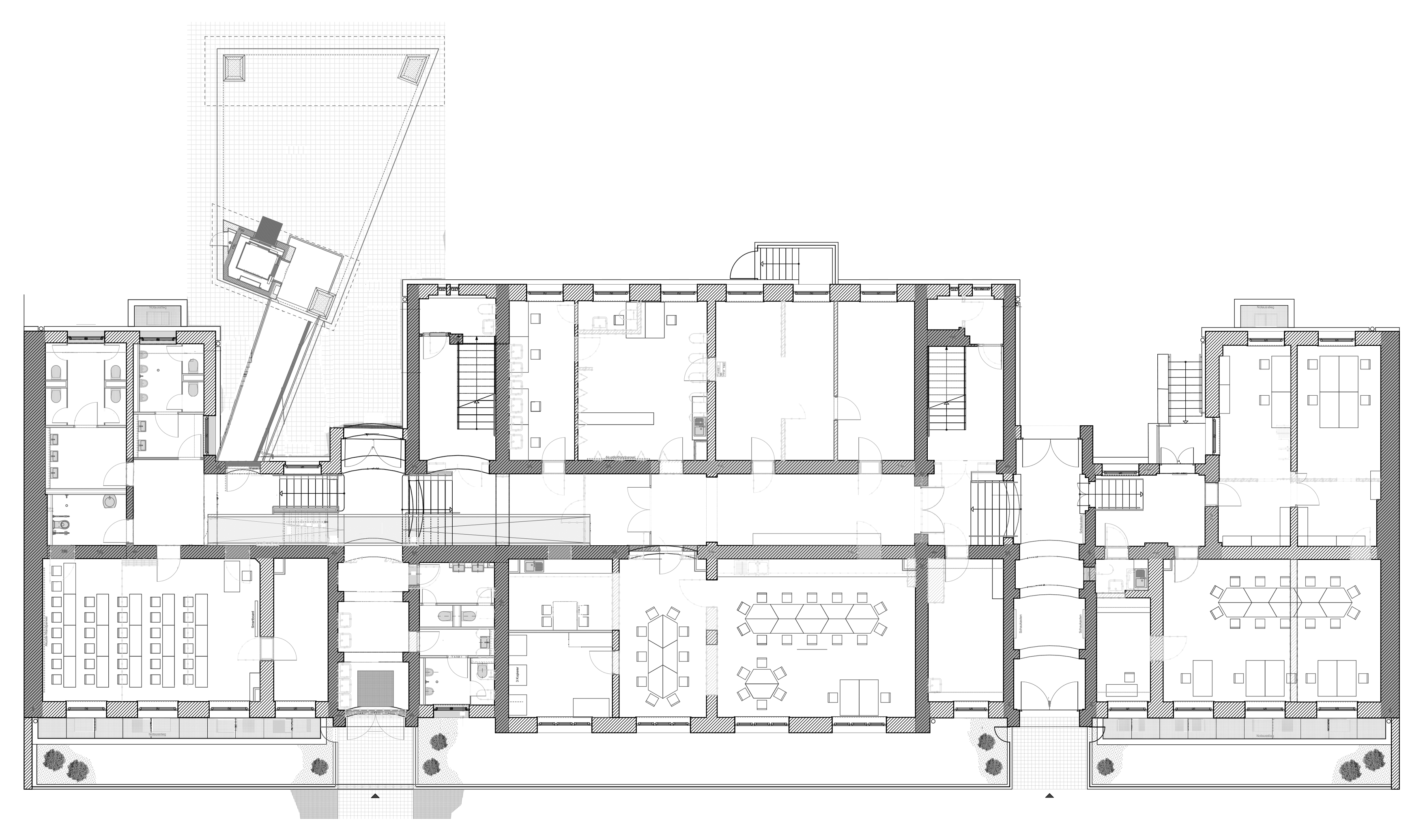
With a modern architectural language, SSP Rüthnick Architekten extended the school, which is under ensemble protection. The main building for 580 pupils was modernized and rehabilitated. The new building in the schoolyard complements the existing school building. The three-story extension respectful distances itself from the solid masonry building with red clinker bricks. A modern-looking façade made of vertical larch wood slats was deliberately chosen to contrast with the historic brick building. In addition to the expressive cubature, the joints between the floors and the movable sliding elements gives the building plasticity. The wooden elements, which can be moved manually, serve as sun protection. The structure of the extension, which is elevated up to the first floor, is given a floating effect by the slender, conical columns. In this way, access to the old building was preserved and the existing schoolyard was affected as little as possible. The building from 1875 by the architect Hermann Blankenstein belongs to the “märkische” brick Gothic style, decorated with ornamental elements.
With a bright yellow color and artfully twisted balusters, the existing building is connected to the extension by four modern bridges. Special rooms of the school, e.g. a library, are housed here. With the new elevator integrated, barrier-free access to the existing building could also be achieved. The floor plan structure of the old building was optimized. The mezzanine floor required special attention to create barrier-free access. Already in the early design stage, a bridge was developed that forms a 2m high arch over the entrance corridor and thus connects the two mezzanine levels. The bridges, both inside and outside, appear in a formative shape and are integrate respectfully with the existing building. The classical entrance areas, executed in brick architecture, are extended by a contemporary interior concept. Clear white, with accentuated green tones on the walls, stronger and darker color in the laid linoleum floors, define the wide corridors on the upper floors. Colorfully inserted furniture expands the usable space for learning and working purposes outside the classrooms. In this way, places of exchange are created and forward-looking school pedagogy is promoted. The science rooms were refurbished, roof areas were renovated in accordance with the preservation order, technical installations were renewed and the fire protection was upgraded. The measures were carried out in the empty building. Therefore, SSP Rüthnick Architekten temporarily erected a container facility in the schoolyard for two years. The main building with its new extension occupied for the new school year 2021/2022. The construction measures were financed with funds from the Berlin Senate Administration program: “Lively Centers and Lively Neighborhoods”.

‘로버트 코흐 고등학교’는 전체적인 보호 아래 학교를 확장했다. 580명의 학생을 위한 본관은 현대적으로 복원되었다. 학교 운동장에 들어선 새 건물은 기존 건물을 보완한다. 세 층의 증축된 건물은 붉은 과벽돌이 있는 단단한 석조 건물과 상당히 떨어져 있다. 역사를 가진 벽돌 건물과 대조되도록 수직 낙엽송 목재 판을 선택해 현대적인 외관을 만들었다. 또한, 목재 외관은 부피를 표현하는 것뿐만 아니라 바닥과 이동식 슬라이딩 사이의 연결부위는 건물 가소성을 제공한다. 수동으로 움직일 수 있는 목재는 햇빛을 막아주는 역할을 한다. 2층까지 올라간 증축 구조는 가느다란 원뿔형 기둥으로 떠있는 듯한 모습을 하고 있다. 이런 방식으로 오래된 건물에 접근할 수 있도록 했고, 기존의 학교 운동장에 주는 영향을 최소한으로 줄였다. 1875년에 건축가 헤르만 블랑켄슈타인(Hermann Blankenstein)이 지은 장식으로 꾸며진 이 건물은 ‘märkische’ 벽돌 고딕 양식에 속한다.
교묘하게 뒤틀린 밝은 노란색 난간이 있는 네 개의 현대적인 다리는 기존 건물과 증축 건물을 연결한다. 새로운 건물에는 도서관과 같은 특별실을 두었다. 새로운 엘리베이터가 통합되면 기존 건물도 무장애 공간이 될 수 있다. 오래된 건물의 벽면 구조는 최적화되었다. 메자니 층은 무장애 공간이 되기 위해 특별한 주의가 필요했다. 이미 초기 설계 단계에서 입구 복도 위에 2m 높이의 아치를 형성하여 두 개의 메자니 층을 연결하는 다리가 만들어졌다. 다리는 내부와 외부 모두 조형적인 모양으로, 기존 건물을 배려하며 통합되었다. 벽돌로 지어진 고전적인 입구 공간은 현대적인 인테리어 개념으로 확장되었다. 진한 녹색의 벽을 강조하는 맑은 흰색, 리놀륨 바닥의 더 진하고 어두운색은 상층의 넓은 복도를 정의한다. 화려하게 부착된 가구는 교실 밖에서 학습 및 작업 목적으로 사용할 수 있는 공간을 확대한다. 교류의 장을 조성하여 미래 지향적인 학교 교육이 이뤄지는 공간이 되었다. 지붕은 보존 명령에 따라 보수했고, 과학실은 새롭게 단장했다. 또한, 설비와 화재 방지 또한 새롭게 개선했다. 공사는 빈 건물에서 이뤄졌다. 따라서 2년 동안 학교 마당에 컨테이너 시설을 일시적으로 설치해야 했다. 2021-2022년 새 학년을 맞아 신축 증축된 본관을 꾸렸다. 공사비는 베를린 상원 행정부 프로그램인 ‘활기찬 센터와 활기찬 이웃’의 이름으로 자금을 조달했다.












Architect SSP Rüthnick Architekten
Location Berlin, Germany
Program Educational facilities
Gross floor area 5760㎡
Completion 2021
Principal architect SSP Rüthnick Architekten
Design team Alin Nieswand, Nora Kuippers
Client District Office Friedrichshain-Kreuzberg Berlin
Photographer Klemens Renner
해당 프로젝트는 건축문화 2022년 11월호(Vol. 498)에 게재되었습니다.
The project was published in the November, 2022 recent projects of the magazine(Vol. 498).
November 2022 : vol. 498
Contents : RECORDS Architecture Week held at Yongsan Park after tearing down the wall 벽을 허물고 돌아온 용산공원에서 열린 건축주간 : NEWS / COMPETITION / BOOKS : SKETCH A rural house painted with Passion Sangria / Sangwon Kim 열정적
anc.masilwide.com
'Architecture Project > Education' 카테고리의 다른 글
| Eumseong-gun Sustainable Agriculture Research and Education Center (0) | 2023.03.23 |
|---|---|
| Tamatsukuri Kindergarten (0) | 2023.03.13 |
| LYCÉE SIMONE VEIL (0) | 2023.01.31 |
| CONCRETE LIBRARY (0) | 2022.12.20 |
| GEUMSAEM LIBRARY (0) | 2022.12.19 |
마실와이드 | 등록번호 : 서울, 아03630 | 등록일자 : 2015년 03월 11일 | 마실와이드 | 발행ㆍ편집인 : 김명규 | 청소년보호책임자 : 최지희 | 발행소 : 서울시 마포구 월드컵로8길 45-8 1층 | 발행일자 : 매일



