
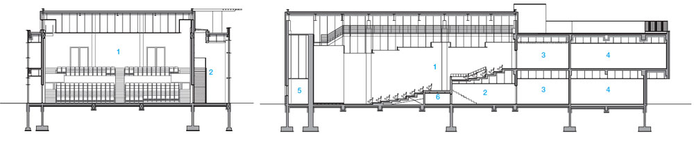
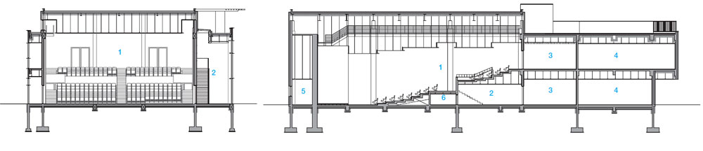
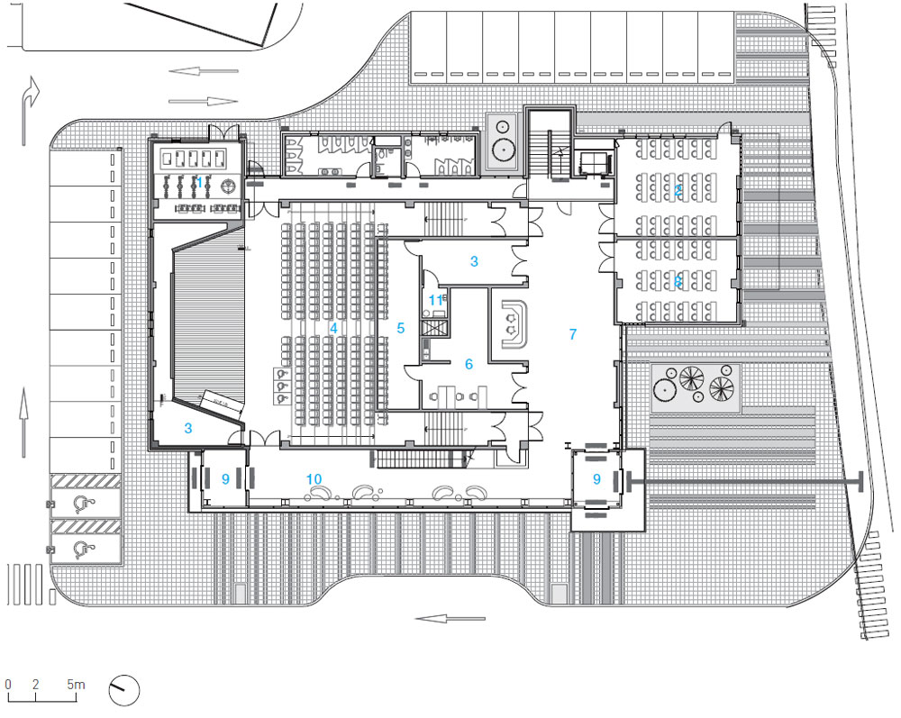
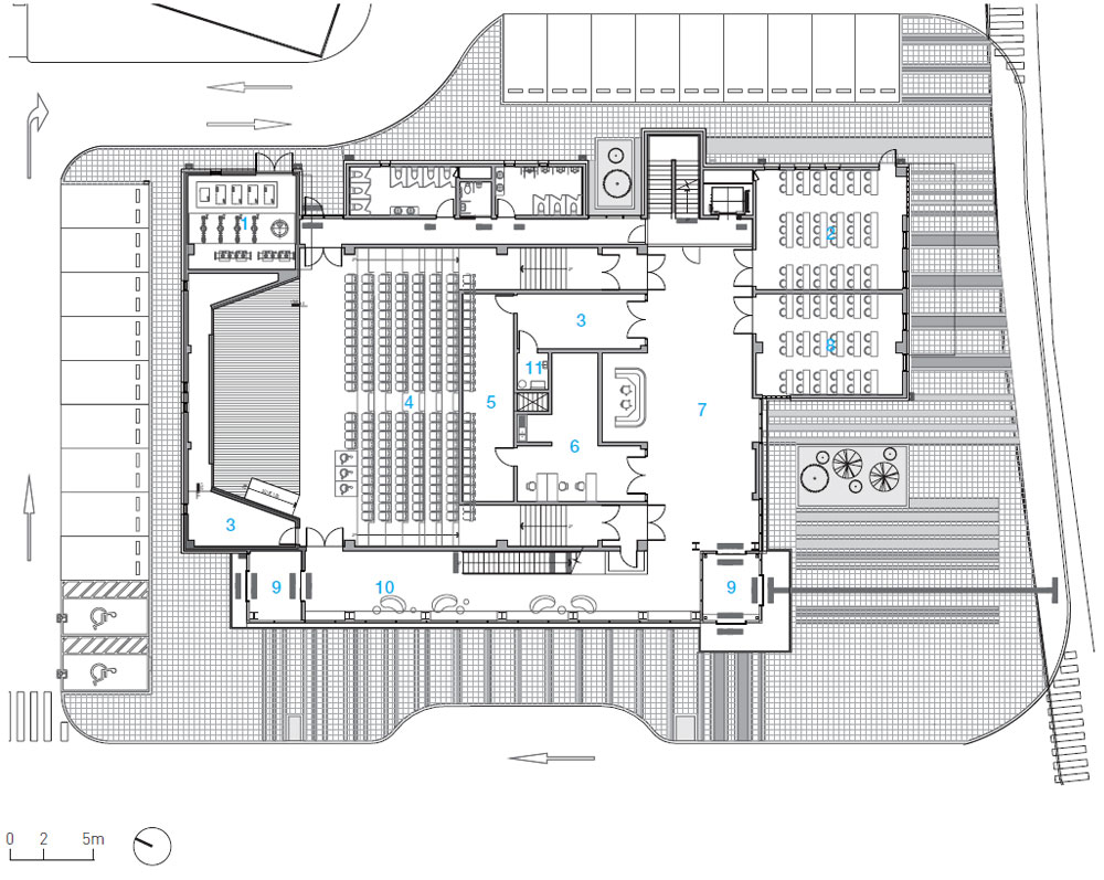
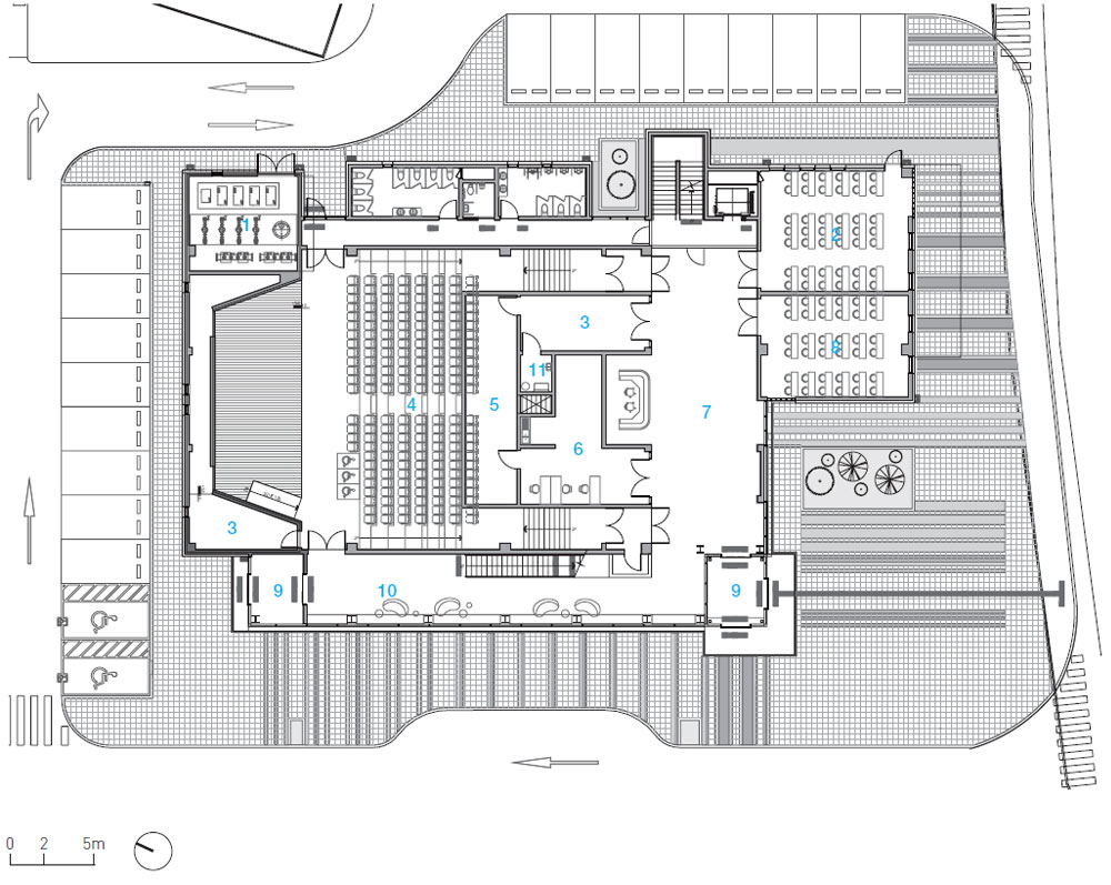
The Eumseong-gun Sustainable Agriculture Research and Education Center located at 255, 258 Yongsan-ri, Eumseong-eup, Eumseong-gun, North Chungcheong Province in South Korea, is a project with a GFA of 1500m2 that includes a lecture theatre (lecture hall), conference rooms, and meeting rooms that are necessary for the local agricultural industry, as well as an open lounge and halls, which can accommodate small-scale exhibitions. The vertical louvers of the facade, which are inspired by the paddy field and arable land at Eumseong, roof glass and horizontal sun shading louver on the roof are designed for the daylighting control. In addition to its passive facade system, this provides dynamic range of pattern of daily and seasonal light and shadow which brings diverse atmosphere into the center. Thus, it maximizes the volume of the space, where visitors can have various experiences.
The daylight sequentially inflow from the open lounge at the ground floor to the hall at the second floor with the movement of visitors by stairs. Furthermore, the local stone as an exterior and interior material on the wall and the matte granite on the floor were designed to glow gently and delicately by absorbing and reflecting the lights entering the inside. Correspondingly, an ecological and energy-efficient space was implemented that keeps the temperature cool in the summer season and warm in the winter without any artificial use of HVAC (Heating, Ventilation, Air Conditioning).
The upper louver of the main facade looking toward the plaza not only demonstrates the passive system that adjusts the transmittance of light but also provides the diversity in the facade according to the movement and distance of people. Furthermore, the intensity of light pursuant to the season and the luminous flux, such as morning, afternoon, and sunset lights, offer a visual variety in which the natural color of the external building material (ceramic stone) changes faintly yet deeply and softly. Such multifariously altering space expanded into the pattern of the plaza and played a part in visually intersecting the flow of the building’s interior and exterior.

음성군 친환경 농업교육관은 지역의 농업산업에 필요한 극장식 교육장과 대회의실, 소회의실, 소규모 전시 전시가 가능한 오픈 라운지와 홀 등으로 구성된 공간이다. 독립된 프로그램들을 연계하는 라운지와 로비, 홀, 그리고 복도 등의 공용공간은 자연환기를 고려한 맞통풍 창과 아트리움, 수직 루버와 지붕의 수평 차양과 같은 친환경 에코시스템을 통해 개방적이고 쾌적한 도시농업 박람회, 절기별 기획전시 등의 프로그램을 제안한다. 이러한 공유공간은 주민주도형 생생장터, 밤도깨비시장, 도시농업축제, 야외극장 같이 다채로운 이벤트가 열리는 주차장, 햇살마당, 진입광장, 옥상 화훼교육장 등의 입체적인 외부공간으로 확장된다. 그리하여 다양한 세대들이 함께 어울리고 교류하는 마을 농업문화의 장, 음성군 친환경 농업교육관을 제안한다.
논과 밭의 패턴을 모티브로 한 입면의 루버와 천창 그리고 수평 차양은, 시간에 따라 그리고 계절에 따라 각각의 방향으로부터 오는 빛에 의해 그림자의 패턴이 변하고 그 안의 공간의 볼륨이 극대화되어 이용자에게 다양한 공간의 경험을 느끼게 해준다. 오픈 라운지의 계단을 통해 2층과 홀로 빛이 자연스럽게 들어오도록 유도했으며, 동선을 따라 유입되는 이 빛을 친환경 입면 시스템을 통해 직·간접적으로 느낄 수 있다. 또한 내부의 매트한 세라믹 스톤과 바닥의 화강석은 실내로 유입되는 빛의 흡수와 반사를 통해 부드럽고 자극적이지 않은 채광을 한다. 그 결과 인위적인 냉난방시설을 사용하지 않고도 여름에는 시원하고 겨울에는 따뜻한 자연친화적이고 에너지절약형 공간을 구현하였다.
광장을 바라보고 있는 메인 파사드 상부 루버는 빛의 투과율을 조정하는 패시브 시스템의 표현뿐 아니라 사람의 움직임과 거리에 따른 입면의 다채로움을 제공한다. 계절에 따른 빛의 세기와 빛의 흐름 즉, 아침의 빛, 오후의 빛, 그리고 석양의 빛의 흐름에 따른 외부재료(Ceramic stone)의 본연의 색이 미묘하지만 깊이 있고 부드럽게 여러 모습으로 바뀌는 다양성을 표현한다. 다채롭게 변화되는 공간은 광장의 패턴으로 확장되어 건물의 내외부 공간의 흐름을 시각적으로 넘나들게 한다.















Architect Sung et Associes Architecture
Location Yongsan-ri, Eumseong-eup, Eumseong-gun, Chungcheongbuk-do, Republic of Korea
Program Agriculture auditorium, Conference room, Research & meeting rooms, Office, Lobby, Open lounge, Hall
Site area 18,454㎡
Building area 1,052㎡
Gross floor area 1,495㎡
Building to land ratio 24.72%
Floor area ratio 18.27%
Design period 2020. 2 - 9
Construction period 2020. 10 - 2021. 10
Completion 2021. 11
Principal architect Jin Sung
Project architect Junsub Kim
Design team Seonggyeong Im, Seungil Lee, Yongki Jo
Structural engineer SEUNG NAM Structural Engineering CO, LTD
Mechanical engineer TAE CHANG Engineering CO, LTD
Electrical engineer TAE CHANG Engineering CO, LTD
Construction MIJIN CONSTRUCTION CO, LTD
Client Eumseong-gun Agriculture Technology Center, North Chungcheong Province
Photographer Sun NAMGOONG
해당 프로젝트는 건축문화 2022년 12월호(Vol. 499)에 게재되었습니다.
The project was published in the December, 2022 recent projects of the magazine(Vol. 499).
December 2022 : vol. 499
Contents : RECORDS Communicate with the city, Encounter architecture, Discover a story: 'Open House Seoul 2022' 도시와 소통하다, 건축을 만나다, 이야기를 발견하다: ‘오픈하우스서울 2022’ To Demonstrate the Era of Carbon Neutra
anc.masilwide.com
'Architecture Project > Education' 카테고리의 다른 글
| The Lighting Bookshelves (0) | 2023.04.10 |
|---|---|
| Daycare Center Green Remodeling (0) | 2023.03.24 |
| Tamatsukuri Kindergarten (0) | 2023.03.13 |
| ROBERT-KOCH-HIGH-SCHOOL (0) | 2023.03.03 |
| LYCÉE SIMONE VEIL (0) | 2023.01.31 |
마실와이드 | 등록번호 : 서울, 아03630 | 등록일자 : 2015년 03월 11일 | 마실와이드 | 발행ㆍ편집인 : 김명규 | 청소년보호책임자 : 최지희 | 발행소 : 서울시 마포구 월드컵로8길 45-8 1층 | 발행일자 : 매일



