
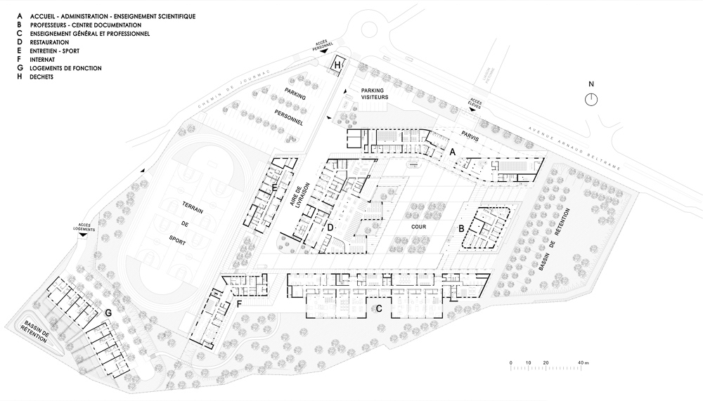
Located at the foot of the Gignac hill in the Herald valley, the Lycee Simone Veil takes its dominant colours from the rural landscape. The roofs of the lowest buildings are gardens with gentle curves (valleys and hills) as if the ground has risen to the roofs, moulding them into free forms that provide the school with a “green heart”.
With a Batiment a Energie POSitive (BEPOS - building produces more energy than it consumes) objective, the programme generated a legible layout around a courtyard surrounded by the two 3-storey north-south oriented teaching blocks and buildings with atypical functions - the east-west oriented Documentation Centre and canteen. The parallelogram form of the courtyard results from the superimposition of the access road and north-south building orientation. Due to the differing volumes, it generates spaces with distinct functions, while enabling for optimal surveillance. Independent of the educational facility, the boarding school and staff accommodation are located outside the courtyard, opposite the sports field. In three superimposed curves, the reception building unrolls like a ribbon to form a welcoming entrance - its awning supported on elegant V-shaped columns of ultra high-performance fibre-reinforced concrete(UHPC), the front section of level 1 accommodating the administration and then, the setback volume of level 2. Also acting as a signal, green progressively tints the reception building curve to highlight the entrance porch from a distance by capturing the rays of the rising sun. Likewise, on arrival by the RD32 roundabout, the two gables of the teaching blocks, which frame the facade of the reading room, are clad in a predominantly green terracotta mesh that serves as the background to the portrait of Simone Veil.
To deliver a biosourced building and respect the short construction timeline, a timber structure was chosen: solid timber columns, beams and floors in cross-laminated spruce (CLT), with timber frame walls (Murs a Ossature Bois-MOB) in elevation. Rather than timber, facades are in clad glazed terracotta for its durability, thermal inertia and ease of maintenance. Nevertheless, timber remains very apparent inside: the corridor walls lined with birch panels and acoustic ceilings with undulating slats in the Documentation Centre and restaurant. In addition to the photovoltaic panels on the roofs of the two teaching buildings and boarding school, a photovoltaic canopy located over the entrance building reminds users and visitors that if this school has positive energy - it is partly due to renewable energies.

헤럴드 계곡의 지냐크 언덕 기슭이 보이는 시골 풍경 속 학교, 리세 시몬느 베일이 자리 잡고 있다. 리세 시몬느 베일은 대지가 상승한 듯한 느낌의 낮은 형태의 건축물로, 땅부터 지붕 정원까지 부드러운 곡선으로 이어진다. 이 건물의 가장 핵심은 ‘녹색 심장’으로, 건축물이 소비하는 것보다 더 많은 자체 에너지를 생성하는 친환경 에너지건축물 기준인 BEPOS(Batiment a Energie POSitive)에 맞춰 설계됐음을 뜻한다.
건축물은 남북 방향의 교육동, 동서 방향의 비정형 자료센터와 매점까지 총 2개의 3층짜리 건물로 나뉜다. 두 건물로 둘러싸인 학교 내 마당이 중심 공간이며, 평행사변형 형태의 안뜰은 진입로와 남북 향의 건물 방향의 중첩에서 비롯된다. 다양한 부피감을 가지면서, 각각의 공간마다 특징적인 기능도 지니고 있다. 교육 시설과는 별개로, 기숙학교와 직원 숙소는 운동장 반대편인 안뜰 밖에 있다. 리셉션 건물은 3개의 중첩된 곡선으로 리본처럼 펼쳐져 환영해 주는 입구를 형성한다. 행정을 보는 공간들이 있는 1층의 정 단면과 2층의 이격된 부분에서 고성능 섬유 보강 콘크리트(UHPC)의 우아한 V자형 기둥이 건물을 지지하는 것을 볼 수 있다. 또한, 건물 곳곳에 사용된 녹색은 멀리서 떠오르는 태양의 광선을 포착하여 입구 현관을 강조하기 위해 리셉션 건물 곡선을 점진적으로 물들인다. 학교 입교에 도착하자마자 보이는 두 개의 교각은 시몬느 베일을 생각했을 때 가장 먼저 떠올릴 수 있는 모습이며, 녹색 테라코타 메시가 시몬느 베일이 가진 이미지에 선명한 색감을 더한다.
바이오소싱된 건물을 제공하고 짧은 공기에 맞춰서 목구조로 지어졌다. 가문비나무(CLT)가 보, 바닥, 기둥 등에 사용됐으며, 목재가 사용되지 않은 외벽은 내구성, 내열성, 유지 관리 용이성을 위해 유약 처리된 테라코타로 마감됐다. 목재는 내부에 특히 많이 사용됐는데, 자작나무 패널로 이어지는 복도의 벽과 자료센터, 레스토랑의 물결 모양의 슬라트로 된 음향 천장. 두 개의 교육동과 기숙 학교의 지붕에 사용됐다. 입구 건물 위에는 태양광 캐노피가 설치되어 있다. 사용자와 방문객들이 이 학교가 가진 긍정적인 에너지를 느낀다면, 그것은 재생가능한 에너지를 만들고 있는 학교로부터 오는 것이다.





























Architect Hellin-Sebbag-Pirany Architectes
Location Gignac, France
Program High school
Gross floor area 14,514㎡
Completion 2021. 6
Design team Hellin-Sebbag-Pirany Architectes
Structural engineer Terrell
Mechanical engineer Adret
Building economist Egis Batiments Sud-Ouest
External works Underground Ingenierie
Kitchen designer Ingecor
Landscape architect Guillemet
Construction ARTEBA
Client REGION OCCITANIE Pyrenees-Mediterranee
Photographer Benoit Wehrle, JeanPierre, JulienThomazo
해당 프로젝트는 건축문화 2022년 11월호(Vol. 498)에 게재되었습니다.
The project was published in the November, 2022 recent projects of the magazine(Vol. 498).
November 2022 : vol. 498
Contents : RECORDS Architecture Week held at Yongsan Park after tearing down the wall 벽을 허물고 돌아온 용산공원에서 열린 건축주간 : NEWS / COMPETITION / BOOKS : SKETCH A rural house painted with Passion Sangria / Sangwon Kim 열정적
anc.masilwide.com
'Architecture Project > Education' 카테고리의 다른 글
| Tamatsukuri Kindergarten (0) | 2023.03.13 |
|---|---|
| ROBERT-KOCH-HIGH-SCHOOL (0) | 2023.03.03 |
| CONCRETE LIBRARY (0) | 2022.12.20 |
| GEUMSAEM LIBRARY (0) | 2022.12.19 |
| DOBRA 55 (0) | 2022.12.15 |
마실와이드 | 등록번호 : 서울, 아03630 | 등록일자 : 2015년 03월 11일 | 마실와이드 | 발행ㆍ편집인 : 김명규 | 청소년보호책임자 : 최지희 | 발행소 : 서울시 마포구 월드컵로8길 45-8 1층 | 발행일자 : 매일



