
The Gangnam-daero branch of Cha Hong-room started the project with the hope that only the white scenery would remain in memory when customers who use the space stay and leave. "White Landscape" means a space of possibility and emptiness like drawing paper. We wanted to create a non-monotonic space by varying the mood and physical properties of tone-on-tone without using various colors to convey the brand's image to users of space.
We wanted to show this brand's own luxury, not fancy luxury, but quiet and calm, hoping that this space would only take care of me and reach customers as a space where they can look inside themselves, not as an intuitive space concept of a beauty salon. While planning the space, we expected it to be a space to find beauty through deep concentration, starting with small but never light elements.
The tone-n-mood of the entire space is made to naturally harmonize in the space using wood finish, log objects, and stone that retain the texture of nature. In addition, the space was neatly arranged by excluding as many finishes and colors as possible that could look artificial.
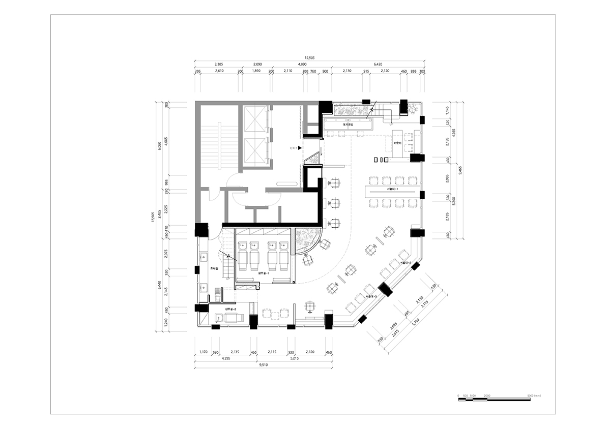
The entrance ceiling height was intentionally lowered to maximize the expansion of the high ceiling height. In addition, each space such as waiting space, lobby, cut zone, and treatment space was naturally classified using the height difference of the ceiling height. It was planned to collect space according to its function and efficiently divide the cut zone and the treatment zone so that the movement lines do not overlap each other, enabling efficient operation.
The waiting space lowered the ceiling height to create a cozy and comfortable mood. The counter with the atmospheric space was designed to be not high, so it was designed to look visually comfortable and not feel psychologically pressured. Cutzone's mirrors were designed in various types, giving the recipient a feeling of being cut in their own special space. The treatment table, which requires sitting for a long time due to dyeing and treatment, was designed to allow you to look out the window to overlook the outside landscape and the city center.
External natural elements were actively attracted to the internal space and used as spatial design elements. Landscaping spaces were planned throughout the city's street trees and interior spaces seen behind the counter to induce customers to feel comfortable with natural elements.

차홍룸 강남대로점
차홍룸 강남대로점은 공간을 사용하는 손님들이 머물고 나갈 때 하얀 풍경만 기억에 남았으면 좋겠다는 생각으로 프로젝트를 시작했었다. ‘하얀 풍경’은 도화지와 같은 가능성과 비움의 공간을 의미한다. 우리는 공간의 사용자에게 브랜드의 이미지를 전달하기 위해 다양한 색상을 사용하지 않고 톤 온 톤의 무드와 물성을 다양하게 변화시켜 단조롭지 않은 공간을 만들고자 했다.
우리는 미용실 또는 뷰티 살롱이라는 직관적인 공간개념이 아닌 이 공간이 오로지 나를 가꾸고 자신의 내면을 들여다 볼 수 있는 공간으로서 고객들에게 다가가길 바라면서 화려한 럭셔리가 아닌 조용하고 차분한 이 브랜드만의 럭셔리를 보여주고자 하였다. 우리는 공간을 기획하면서 소소하지만 결코 가볍지 않은 요소들을 시작으로 깊이 있는 집중을 통해 아름다움을 찾아가는 공간이 되길 기대했다.
전체 공간의 톤엔 무드는 자연의 질감을 간직한 우드 마감과 통나무 오브제, 석재 등을 이용해 자연스럽게 공간에서 조화를 이루도록 만들었다. 또한 인위적으로 보일 수 있는 마감과 색깔을 최대한 배재하여 공간을 정갈하게 만들었다.
높은 천장고의 확장감을 극대화하기 위해 출입구 천장고를 의도적으로 낮추었다. 또한 대기공간, 로비, 커트존, 시술공간 등 각각의 공간은 천장고의 높이 차를 이용해 자연스럽게 구분하였다. 공간을 기능에 따라 모으고 효율적으로 커트존과 시술존을 나누어 동선이 서로 겹치지 않도록 하여 효율적인 운영이 가능하도록 계획했다.
대기공간은 천장고를 낮추어 아늑하고 편안한 무드를 조성했다. 대기공간과 함께 있는 카운터는 높지 않은 높이로 디자인하여 시각적으로 편안하게 보여 심리적으로 위압감을 느끼지 않도록 계획하였다. 커트존의 거울은 다양한 타입으로 디자인하여 시술을 받는 사람으로 하여금 자신만의 특별한 공간에서 커트 받는 느낌을 주었다. 염색, 시술로 긴 시간을 앉아 있어야하는 시술대는 창밖을 바라보게 하여 외부의 조경과 도심을 내려다볼 수 있도록 계획하였다.
외부의 자연요소를 내부 공간에 적극적으로 끌어들여 공간디자인 요소로 활용했다. 카운터 뒤로 보이는 도시의 가로수와 내부공간 곳곳에 조경공간을 계획하여 도심속에 있는 공간이지만 자연적인 요소로 고객이 편안한 감성을 느낄 수 있도록 유도했다.













Design : gru architects
Location : 3rd floor, 376 Gangnam-daero, Gangnam-gu, Seoul
Building area : 151.41㎡
Completion : 2021
Photographer : Yousub Song
'Interior Project > Retail' 카테고리의 다른 글
| HOTEL DAWSON (0) | 2023.02.06 |
|---|---|
| salwha (0) | 2023.02.01 |
| JUNO HAIR OKSU (0) | 2023.01.20 |
| ARHABRIDAL (0) | 2023.01.03 |
| SOMA LOUNGE (0) | 2022.12.07 |
마실와이드 | 등록번호 : 서울, 아03630 | 등록일자 : 2015년 03월 11일 | 마실와이드 | 발행ㆍ편집인 : 김명규 | 청소년보호책임자 : 최지희 | 발행소 : 서울시 마포구 월드컵로8길 45-8 1층 | 발행일자 : 매일



