
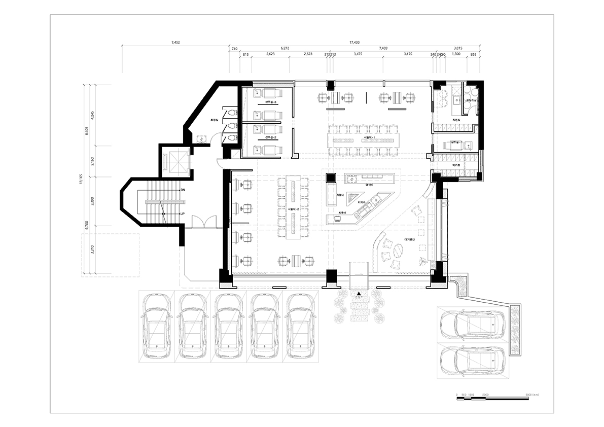
The Juno Hair Oksu branch was designed with the concept of "Deep Surface: Deep Silence, Invitation to a Deep Garden in the City."
Considering the planar characteristics of the site, the design was carried out in a way that the brand's identity could be expressed in space. I hope it will be a space where you can enjoy the process of becoming beautiful and enjoy the feeling of expecting the result comfortably. A large axis of the space was established by taking advantage of the fact that the site located on the first floor can be accessed through the north entrance and the Han River can be viewed in the south direction. Counter, customer response, coffee service, and dye manufacturing were placed in the center of the space to create an environment where high-quality services could be provided to customers through efficient employee movements. It was planned that the cut zone and the treatment zone were grouped into a set around the counter and divided and placed in the space so that the employee's movements could not overlap. Metal furniture in the atmosphere serves as a display stand for display, while also serving as a partition that makes the atmosphere private and more cozy. It is designed to feel psychologically stable, although it is not visually stuffy through thin metal pipes.
The external environment shown when sitting on the gyeongdae was deliberately planned to allow customers to see only edited scenes by planning the size and position of the window. Gyeongdae in the south covered the surrounding buildings so that Dongho Bridge and the Han River could be seen, and Gyeongdae in the north covered the lower part with a glass block, making it feel open, but blocking the eyes from seeing parked vehicles. Plants were placed in various elements inside to induce the feeling of a garden throughout the space. In particular, the acrylic box with landscaping installed on the table in the treatment zone serves to divide the area of people facing each other and at the same time has the function of a bookshelf that can insert books between the acrylic box and the acrylic box.
The exterior fasade was designed to look intuitive and modern with the brand story of Hera's Temple, which Juno Hare has. This facade design is also a device that makes the direction and identity of the brand that has been deployed so far look more firm and clear. It is designed with a single finishing material to look like an elevation separately from the elevation of the building. It was designed to have a three-dimensional effect by giving a space between the arch on the elevation and the window. The entrance is a metal arched tube that serves to inform visitors of the location of the entrance and is a spatial device that helps them experience entering a space different from the chaotic scenery outside. The arch design shown in the exterior facade extends from the interior space. From the design of Kurtzon Gyeongdae and the interior arch gate details shown at the entrance to the shampoo room, from pasade mass design vocabulary to small details, the atmosphere and design vocabulary of the entire space were naturally drawn. In addition, curved floor patterns and stepping stones from the outside to the entrance lead to the interior space, leading to the ceiling of the waiting space and the ceiling of the counter. The exposed ceiling and non-exposed ceiling naturally play a role in dividing the functions of the space. For those who use this space, I hope it will be a small fortress-like space where you can enjoy the process of becoming beautiful like a garden hidden quietly in a noisy city center.The exterior facade was designed to look intuitive and modern with the brand story of Hera's Temple, which Juno Hare has. This facade design is also a device that makes the direction and identity of the brand that has been deployed so far look more firm and clear. It is designed with a single finishing material to look like an elevation separately from the elevation of the building. It was designed to have a three-dimensional effect by giving a space between the arch on the elevation and the window. The entrance is a metal arched tube that serves to inform visitors of the location of the entrance and is a spatial device that helps them experience entering a space different from the chaotic scenery outside. The arch design shown in the exterior facade extends from the interior space. From the design of Kurtzon Gyeongdae and the interior arch gate details shown at the entrance to the shampoo room, from facade mass design vocabulary to small details, the atmosphere and design vocabulary of the entire space were naturally drawn. In addition, curved floor patterns and stepping stones from the outside to the entrance lead to the interior space, leading to the ceiling of the waiting space and the ceiling of the counter. The exposed ceiling and non-exposed ceiling naturally play a role in dividing the functions of the space. For those who use this space, I hope it will be a small fortress-like space where you can enjoy the process of becoming beautiful like a garden hidden quietly in a noisy city center.

준오헤어 옥수점은 ‘Deep Surface: 깊은 고요, 도심 속 깊은 정원으로의 초대’ 라는 컨셉으로 설계되었다.
사이트의 평면적 특성을 고려하여 브랜드의 아이덴티티를 공간에 표현할 수 있는 방향으로 디자인을 진행하였다. 자신이 아름다워지는 과정을 즐기며 그 결과를 기대하는 마음을 편안하게 누릴 수 있는 공간이 되기를 기대한다. 1층에 위치한 사이트가 북쪽 출입구를 통해 진입할 수 있고 남쪽 방향으로는 한강을 조망할 수 있다는 점을 활용해 공간의 큰 축을 설정하였다. 카운터, 고객응대, 커피 서비스, 염색 약 제조 등 다양한 업무를 할 수 있는 카운터를 공간 중심에 배치하여 효율적인 직원 동선으로 고객들에게 양질의 서비스를 제공할 수 있는 환경을 조성하고자 하였다. 카운터를 중심으로 커트존과 시술존을 한세트로 묶어 공간에 분할 배치하여 직원 동선이 겹치지 않고 운영이 가능하도록 계획하였다. 대기공간의 금속가구는 디스플레이를 하는 진열대 역할을 함과 동시에 대기공간을 프라이빗하고 더욱 아늑하게 해주는 파티션의 역할을 한다. 얇은 금속 파이프들을 통해 시각적으로는 갑갑함이 없지만 심리적으로 안정감을 느낄 수 있도록 디자인하였다.
경대에 앉았을 때 보여지는 외부의 환경은 창의 크기와 위치 높이를 의도적으로 계획하여 고객들로 하여금 편집된 씬 만 보일 수 있도록 계획하였다. 남쪽의 경대는 주변의 건물들은 가리고 동호대교와 한강이 보일 수 있도록, 북쪽 경대는 유리블럭으로 하부를 가려 개방감은 들지만 주차된 차량이 보이지 않도록 시선을 차단하였다. 내부의 다양한 요소에 식물을 배치하여 공간 전반적으로 정원의 느낌을 느끼도록 유도하였다. 특히 시술존의 테이블에 조경이 설치된 아크릴 박스는 마주보는 사람들의 영역을 나누는 역할을 하면서 동시에 아크릴 박스와 아크릴 박스 사이에 책을 꽂을 수 있는 책꽂이의 기능을 가지고 있다.
외부 파사드는 준오헤어가 가지고 있는 헤라의 신전이라는 브랜드 스토리를 직관적이고도 현대적으로 보이게 디자인하였다. 이러한 파사드 디자인은 지금까지 전개해오던 브랜드의 방향성과 아이덴티티를 더욱더 확고하고 명료하게 보이도록 하는 하나의 장치이기도 하다. 건물의 입면과는 별도에 입면처럼 보일 수 있도록 단일 마감재로 메스감 있게 디자인하였다. 입면의 아치와 유리창 사이의 공간을 주어 입체감이 있도록 계획했다. 출입구는 금속으로 만든 아치형 튜브로 방문객에게 출입구의 위치를 알려주는 역할을 하면서 외부의 어지러운 풍경과는 다른 공간으로의 진입을 경험할 수 있도록 도와주는 공간적 장치이다. 외부 파사드에서 보여지는 아치 디자인은 내부공간에서까지 이어진다. 커트존 경대의 디자인과 샴푸실로 들어가는 출입구에서 보여지는 내부 아치 게이트 디테일까지, 파사드 매스 디자인 어휘에서부터 작은 디테일까지 공간 전체의 분위기와 디자인 어휘를 자연스럽게 끌고가고자 하였다. 또한 외부에서 출입구까지 이어지는 곡선형의 바닥 패턴과 디딤석은 내부 공간으로 이어져 대기공간의 천장과 카운터의 천장의 형태까지 이어진다. 노출천장과 노출천장이 아닌 부분은 자연스럽게 공간의 기능을 분할하는 역할을 한다. 이 공간을 사용하는 사람들에게 시끄러운 도심속에서 조용히 숨겨진 정원과 같이 아름다워지는 과정을 즐길 수 있는 작은 요새와 같은 공간이 되었으면 한다.












Design : gru-architects
Location : 1st floor, 226, Reading Hall-ro, Seongdong-gu, Seoul
Building area : 203.57㎡
Completion : 2022
Photographer : Yousub Song
'Interior Project > Retail' 카테고리의 다른 글
| salwha (0) | 2023.02.01 |
|---|---|
| CHAHONG ROOM (0) | 2023.01.25 |
| ARHABRIDAL (0) | 2023.01.03 |
| SOMA LOUNGE (0) | 2022.12.07 |
| INNERSIGNAL LOUNGE (0) | 2022.11.07 |
마실와이드 | 등록번호 : 서울, 아03630 | 등록일자 : 2015년 03월 11일 | 마실와이드 | 발행ㆍ편집인 : 김명규 | 청소년보호책임자 : 최지희 | 발행소 : 서울시 마포구 월드컵로8길 45-8 1층 | 발행일자 : 매일



