
ARHA is a Korean designer wedding brand that pursues restrained sophistication, modern design and originality.
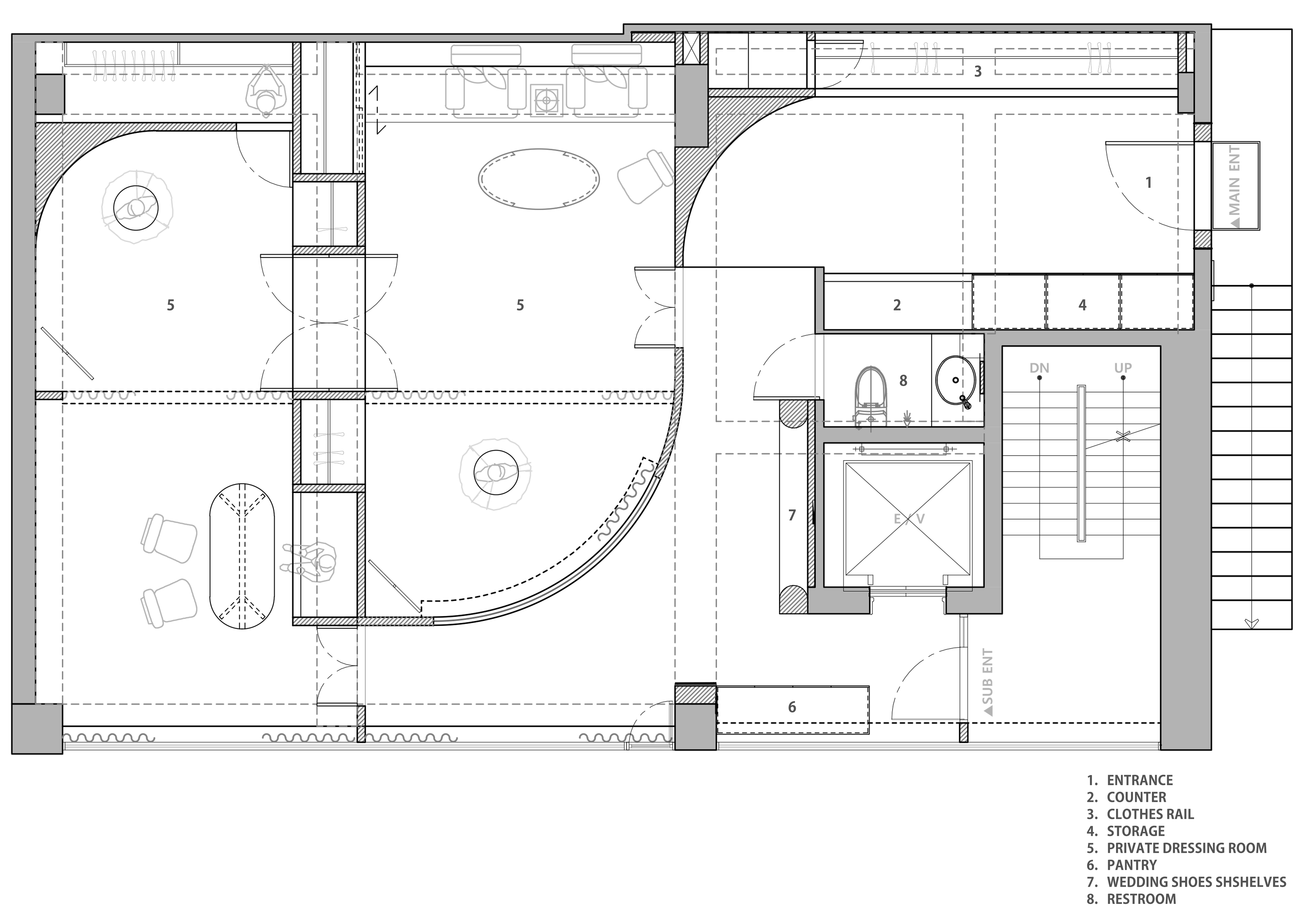
We wanted to create a space that contains the beauty that ARHA pursues and the narrative for the bride. Since it is a special purchasing experience of clothes for a day that will be remembered as the most beautiful moment in an individual's life, we wanted to give ARHA's own special space experience. The S-shaped wall at the center of the space and the change in floor height and illumination were carefully designed to induce a dramatic space experience. Like the aesthetics of architect Louis Sullivan, 'form follows function', the structure was designed with function in mind. Space was partitioned along the ceiling's case bay to secure a high floor height for the two private rooms. Benches, dress showcases, and door were constructed on the walls of the room boundary to increase space efficiency. Since ARHA's dress is a modern design that excludes fancy bead decorations, it was intended to be expressed as a space with a natural mood that contains delicate sensibilities, not a luxury concept that is generally pursued by wedding dress shops. The cream tone color and wood material were used with the hope that it would be felt as a space with a warm sense of temperature rather than a pale space. Design Studio Mono hopes that ARHA's renewal space will fully embrace the brand's value and go beyond a wedding dress shop to become a special space that beautifully expresses the excitement of brides preparing for their wedding day.

아르하는 절제된 세련미와 현대적인 디자인, 독창성을 추구하는 한국의 디자이너 웨딩드레스 브랜드입니다.
국내 5개 지점 중 본점인 청담점의 공간 리뉴얼로, 아르하가 추구하는 미와 신부를 위한 내러티브를 담은 공간이면서 클라이언트가 2년 정도 사용하며 느꼈던 불편함도 개선시키고자 했습니다. 일상복이 아닌 개인의 인생에서 가장 아름다운 순간으로 기억될 날의 옷이라는 특수한 구매 경험이기에, 아르하만의 특별한 공간 경험을 위한 두 개의 주요 시퀀스를 설계했습니다. 첫 번째는 공간의 중심에 구성한 S자형 벽면을 통해 이동하는 라인으로, 리셉션에서 홀까지 층고가 높아지며 조도가 변화되는 드라마틱한 시퀀스가 연출됩니다. 두 번째는 공간의 가로축에 일렬로 배치한 두 개의 양개도어가 그려내는 연속성을 가진 시각적 시퀀스로 입체적인 공간감을 표현했습니다. '형태는 기능을 따른다'는 건축가 루이스 설리번(Louis Sullivan)의 미학처럼, 구조는 기능을 중심으로 설계하였습니다. 촬영을 위한 룸의 높은 층고를 만들기 위해 세로축에 있는 3개의 보를 따라 리셉션과 두 개의 프라이빗 룸을 구성했습니다. 이로써 룸은 보를 감추면서 60cm 더 높은 층고를 확보했으며, 룸 사이 보의 라인을 따라 구성한 벽면의 하부 공간은 벤치, 헹거, 도어를 구성해 공간 효율을 높였습니다. 아르하의 드레스는 화려한 비즈장식이 배제된 모던한 디자인이기에 타웨딩드레스샵에서 추구하는 럭셔리 컨셉이 아닌 섬세한 감성을 담은 내추럴한 무드로 공간을 그려내었습니다. 크림톤의 색감과 우드 소재는 창백한 공간이 아닌 따뜻한 온도감이 느껴지도록 표현했습니다. 디자인스튜디오모노는 아르하의 리뉴얼 공간이 브랜드의 가치를 온전히 담으며, 웨딩드레스샵을 넘어 웨딩데이를 준비하는 신부의 설레임을 아름답게 표현하는 특별한 공간으로 자리매김하길 바랍니다.















Design : DESIGN STUDIO MONO
Location : 17, Dosan-daero 83-gil, Gangnam-gu, Seoul, Republic of Korea
Site area : 106.7㎡
Completion : 2022
Photographer : Seeun Park
'Interior Project > Retail' 카테고리의 다른 글
| CHAHONG ROOM (0) | 2023.01.25 |
|---|---|
| JUNO HAIR OKSU (0) | 2023.01.20 |
| SOMA LOUNGE (0) | 2022.12.07 |
| INNERSIGNAL LOUNGE (0) | 2022.11.07 |
| Awesomeneeds (0) | 2022.11.03 |
마실와이드 | 등록번호 : 서울, 아03630 | 등록일자 : 2015년 03월 11일 | 마실와이드 | 발행ㆍ편집인 : 김명규 | 청소년보호책임자 : 최지희 | 발행소 : 서울시 마포구 월드컵로8길 45-8 1층 | 발행일자 : 매일



