
Slowly, gently, gently rising warmth and soft atmosphere melt into space
[Inner Signal's Essay: All smiles] I've completed the concept.
[Key material]
The tone and manner of space is composed of three natural textures that express the power of brick natural skin by stacking them one by one, like the inner signal's product that creates a gradual change by steadily using off-white colors that create a warm atmosphere.
[Red point]
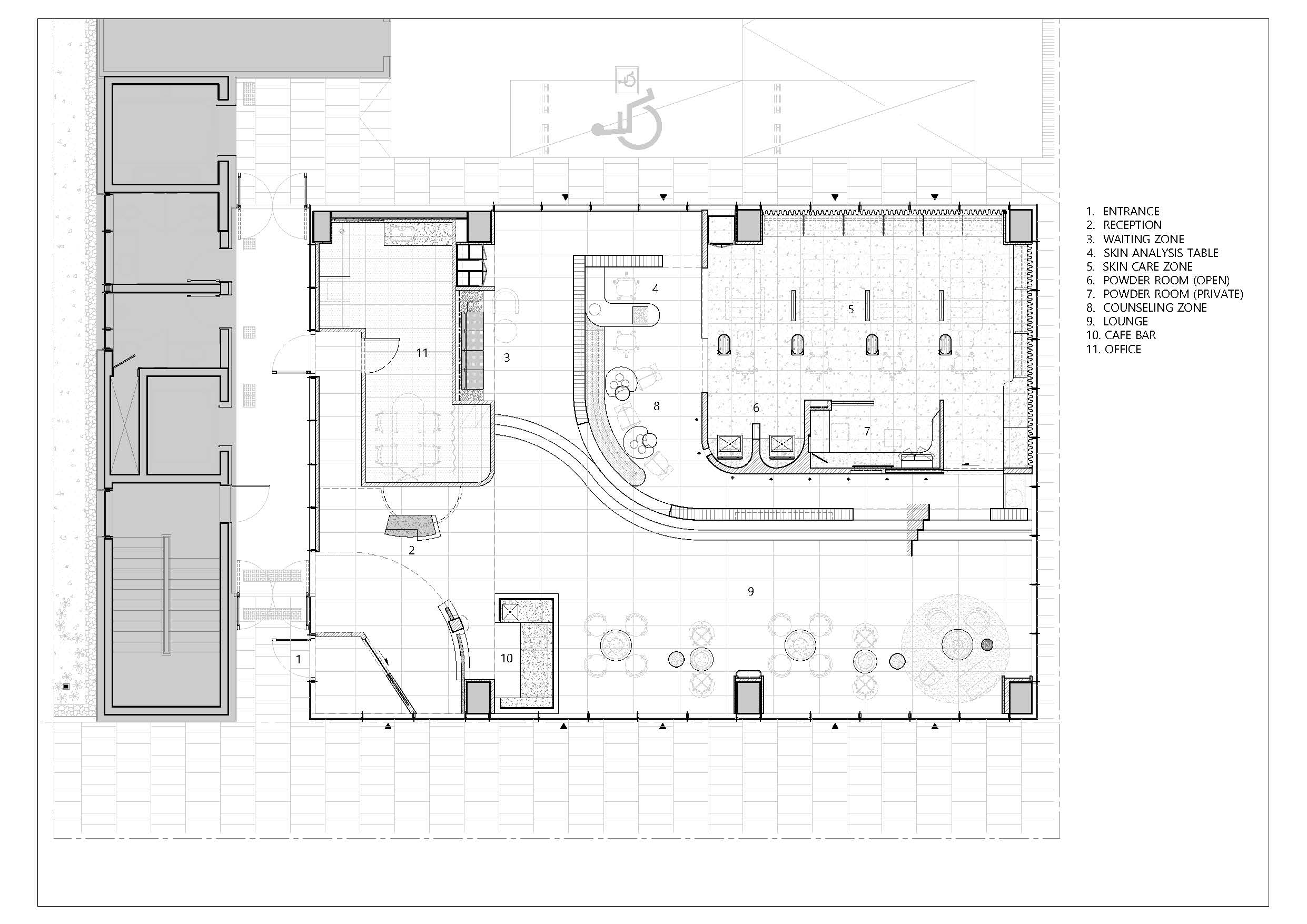
Red points, a brand color that runs from the entrance, serve as a series of program order guides, and new forms of red can be encountered depending on the sequence. The red pillar facing the customer for the first time, the red cross-section of the wall that can be seen in the care space, the red crystal in the form of a circle that tells the beginning of the care space and the rest space, and the various forms of red that can be seen in each scene act as elements to remember the brand color of the inner signal. Overall, it makes you feel the vitality of the energy signal moment in a space with a calm atmosphere.
The barisol lighting on the ceiling above the reception is a feature that makes the sense of space richer. Passing through the entrance of the low ceiling, you face a large space full of sunlight that permeates through the barrel. The rest space and the care space are in the same space, but they can experience privacy by making each other's heights and directions different. Before going up the stairs and entering the care program, the customer stays in the atmosphere and faces light in the ceiling light representing the brand symbol (shaping the skin layer) along with a video showing the brand's mechanism. Passing through the hallway along the brick wall, you will face the care space, and this movement creates a feeling of going deeper into the space, just as the brand's patented ingredients pass through layers of multiple skin layers to deep inside the skin. Beyond the acrylic partition, which expresses the rising light, there is a care space for recovery, only for the skin. The sunlight entering through the window is mixed with subtle indirect lighting to create a comfortable atmosphere.
[벽돌벽]
Along with the difference in steps, a gap is created between the brick wall and the ceiling, which are the criteria for dividing the two spaces, so that the resting space and the care space are not completely separated. A brick wall that has become a kind of inner fa드가ade that obscures the boundaries between the inside and the outside by actively using bricks, which are mainly used as exterior materials. The light leaking (from the inside) between the gaps created by the unique stacking method expresses the light that rises in the skin. The lighting on the wall was intended to make the texture of the brick stand out more by light and create a more colorful view of the day and night in the space seen from the street. The Inner Signal Lounge will be the life of an area that lights up the entire neighborhood by revealing itself brightening up inside the skin and space.

서서히, 잔잔하고, 은은하게 차오르는 온기와 부드러운 분위기를 공간에 녹여내어
[이너시그널의 에세이:만면희색(滿面喜色)]이라는 컨셉을 완성하였습니다.
[Key material]
공간의 톤앤매너는 따스한 분위기를 만드는 오프화이트 컬러 꾸준한 사용으로 점진적인 변화를 만들어내는 이너시그널의 제품처럼 하나씩 쌓아올려 공간을 구획하는 벽돌 자연스러운 피부의 힘을 표현하는 내추럴한 텍스쳐의 소재 세가지를 주마감재로 공간을 구성하여 이너시그널의 브랜드의 아이덴티티를 만들어낼 수 있는 소재를 엄선하여 사용하였다.
[레드포인트]
입구에서부터 이어지는 브랜드 컬러인 레드 포인트들은 일련의 프로그램 순서 길잡이 역할을 하며, 시퀀스에 따라 새로운 형태들의 레드형태를 만날수 있다. 고객을 처음 마주하는 레드 기둥과, 케어공간에 볼수있는 벽면의 레드단면, 케어공간의 끝과 휴게 공간에 시작을 말하는 원구의 형태의 레드 결정체, 장면마다 볼수있는 레드의 다양한 형태는 이너시그널의 브랜드 컬러를 기억속에 담을수 있는 요소로 작용한다. 전체적으로 차분한 분위기의 공간에서 에너지시그널의 순간의 생동감을 느끼게 한다.
리셉션 위 천장의 바리솔 조명은 공간감을 더욱 풍부하게 만드는 특징으로 자리한다. 낮은 천정고의 입구를 지나게 되면 통창으로 스며드는 햇빛이 가득 찬 넓은 공간을 마주한다. 휴식공간과 케어공간은 같은 공간속에 있지만 서로의 높낮이를 다르게 하고 서로의 시선, 방향을 다르게 하여 프라이빗함을 경험할수있게 하였다. 고객은 계단을 올라가 케어 프로그램으로 들어가기에 앞서 대기공간에 머물며 브랜드의 매커니즘을 보여주는 영상물과 함께 (피부층을 형상화한) 브랜드 심볼를 표현한 천장 조명에서 빛을 마주하게 된다. 벽돌벽을 따라 복도를 지나면 케어공간을 마주하게 되는데, 이러한 동선은 브랜드(제품)의 특허성분이 여러 피부층의 레이어를 지나 피부 속 깊은 곳으로 전달되듯이 공간 속으로 더 깊이 들어서는 느낌을 자아낸다. 차오르는 빛을 표현한 아크릴 파티션 너머에는 오직 피부만을 위한, 회복을 위한 케어공간이 있다. 창을 통해 들어오는 햇빛은 은은한 간접조명과 뒤섞여 편안한 분위기를 조성한다.
[벽돌벽]
단차이와 더불어 두 공간을 나누는 기준이 되는 벽돌 벽과 천장 사이를 띄워 틈을 만들어서 휴식공간과 케어공간이 완벽히 분리되지 않은 연결된 공간임을 느끼게 해준다. 주로 외장재로 사용되는 벽돌을 내부의 벽에 적극적으로 사용함으로써 안과 밖의 경계를 모호하게 하는 일종의 내부 파사드가 된 벽돌벽. 독특한 쌓기 방식으로 인해 생긴 틈새사이로 (내부에서)새어나오는 빛은 피부 속에서 차오르는 빛을 표현한 것이다. 벽을 비추는 조명은 벽돌의 질감이 빛을 타고 더욱 돋보이게 하며 거리에서 보이는 공간의 낮과 밤의 풍경을 보다 다채롭게 연출하도록 의도했다. 이너시그널 라운지는 피부 그리고 공간의 내부에서 밝아져오는 자신을 드러내 동네 전체를 밝히는 지역의 생기가 될 것이다.















Design : flymingo
Location : 431F, Bangbae-ro, Seocho-gu, Seoul, Republic of Korea
Site area : 246㎡
Photographer : yongjoon choi
'Interior Project > Retail' 카테고리의 다른 글
| ARHABRIDAL (0) | 2023.01.03 |
|---|---|
| SOMA LOUNGE (0) | 2022.12.07 |
| Awesomeneeds (0) | 2022.11.03 |
| hiddenjae (1) | 2022.11.02 |
| LEHA (0) | 2022.10.11 |
마실와이드 | 등록번호 : 서울, 아03630 | 등록일자 : 2015년 03월 11일 | 마실와이드 | 발행ㆍ편집인 : 김명규 | 청소년보호책임자 : 최지희 | 발행소 : 서울시 마포구 월드컵로8길 45-8 1층 | 발행일자 : 매일



