
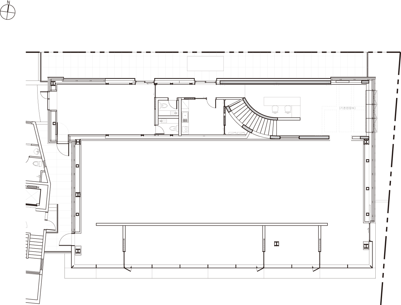
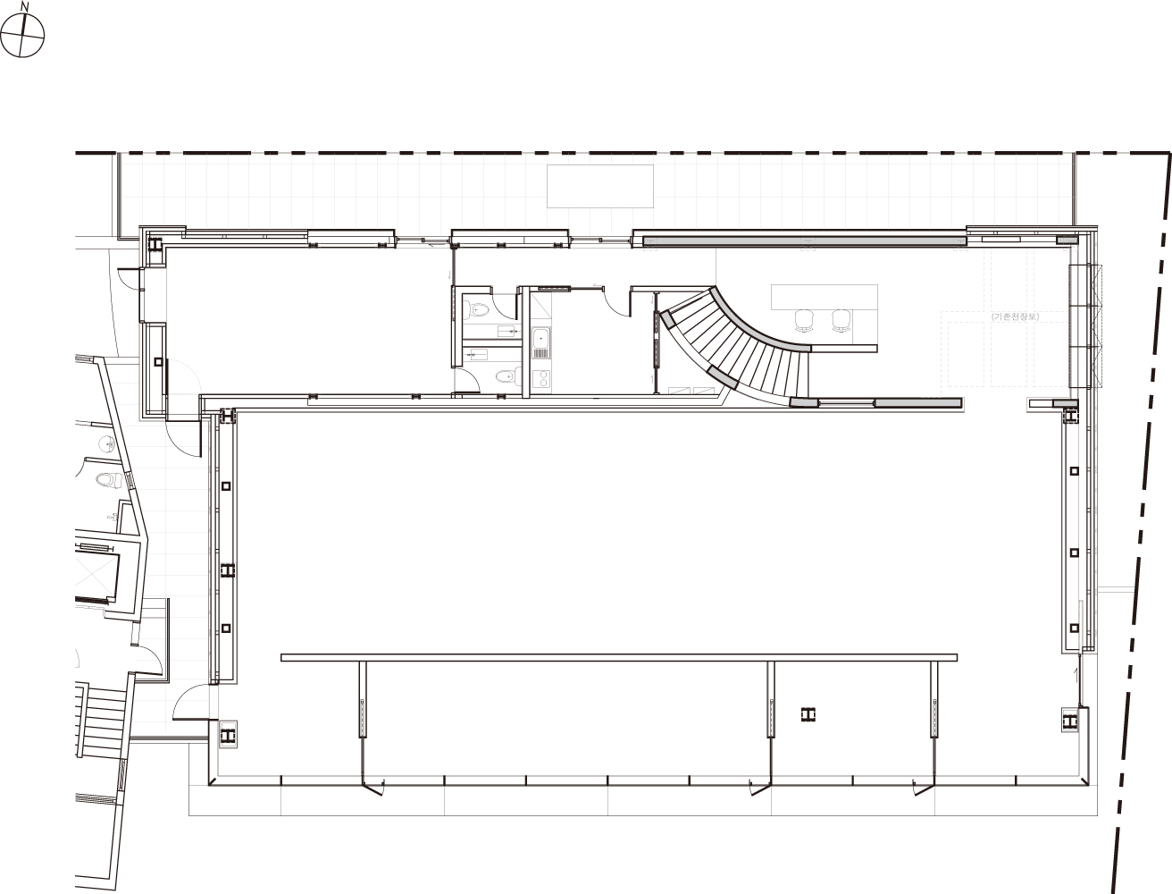
Haeundae Dalmaji Hill is a main tourist destination and residential area in Busan overlooking the sea. In recent years, the urban landscape of coastal sprawl has become paradoxically dramatic. In 2007, in this place facing a forested park, Johyun Gallery built a four-story gallery and then acquired the adjacent two-story building. Constructed in 1994, this building has been used as a cafe and exhibition space. This extension was a work to secure the necessary space with overlaying construction while maintaining the second floor of 49.05㎡, which was used as a warehouse. The size of the extension was determined based on the number of existing parking spaces and legal limit of building-to-land ratio, and it is a program with a 7m-wide exhibition room, a consultation room with sea and park views, and an employee space facing the backyard.
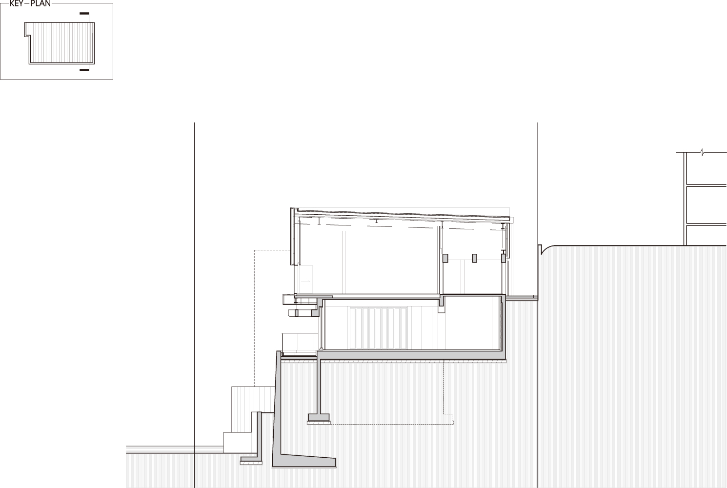
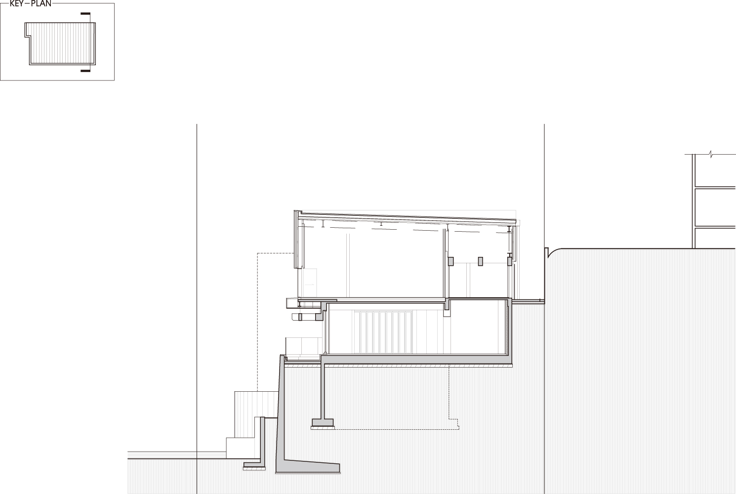
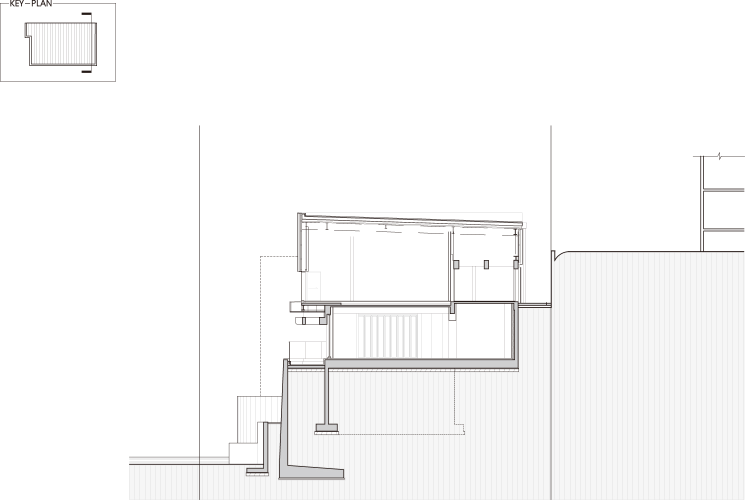
The existing building is located on a 7.5m retaining wall with an attached landscape. The first floor is a building with a decorative concrete awning in the form of a cogwheel on a heterogeneous plane with a semicircular side drawn into the entrance. In order to fit in naturally with the existing building with such strong character, a simple mass that edits complex lines was appropriate for the extension.
The request by the client to consider the view of the rear villa also acted as a constraint on the height of the design. In addition, because of a scheduled exhibition, the construction period was about 4 months. In order to match the construction period, the frame was made of steel, the design was simplified, and it was planned to use mainly dry construction methods.
The extension part consists of three internal spaces and two external spaces. A park forest that overlaps with the sea, a linear consultation room that faces this landscape and is connected by a gap, an exhibition room that opens dramatically into the forest, but avoids light and raises the floor height, an employee space where the lower height of the existing building and the higher floor height of the extension are overlapped, and a 2.5m high adjacent site and a yard built in between. The design prioritized spatially combining architecture and the surrounding environment, existing and extension, art and architecture, and establishing a relationship that is natural and does not reduce tension. The interior space is neutralized so that the space becomes an artistic device in relation to the exhibited works. In addition, by processing it in a simple way rather than putting a spatial change in place, it does not interfere with the visual appreciation of the work. The scenery seen at the beginning and end of the high and deep exhibition room creates a space where tension and relaxation are repeated by creating a space for appreciation.

조현화랑 증축
해운대 달맞이언덕은 바다가 보이는 부산의 대표적인 관광지이자 주거지이다. 최근에는 해안 난개발의 도시경관이 역설적으로 드라마틱한 풍경이 되었다. 숲이 울창한 공원을 접한 이곳에 조현화랑은 2007년 4층 규모의 갤러리를 신축하고, 이후 인접한 2층 규모의 건물을 매입하였다. 1994년 준공된 이 건물은 카페 및 전시공간으로 사용되어 왔다. 이번 증축은 창고로 사용되던 면적 49.05㎡의 2층을 유지하면서 덧씌운 건축으로 필요한 공간을 확보하는 작업이었다. 기존에 조성된 주차대수와 건폐율의 법정 한도로서 증축규모가 결정되었으며, 폭 7m의 전시실, 바다와 공원조망을 가진 상담실, 뒷마당과 접한 직원공간 등의 프로그램이 주어졌다.
기존건물은 조경이 덧붙여진 7.5m 옹벽 위에 위치한다. 1층은 입구로 말려드는 한쪽이 반원형인 이형평면에 톱니바퀴 형태의 장식적인 콘크리트 차양을 가진 건물이다. 이렇게 성격이 강한 기존 건물과 자연스러우려면 증축 건물은 복잡한 선들을 편집하는 단순한 매스가 타당하였다. 배면 빌라에 대한 조망을 배려해 달라는 건축주의 높이에 대한 요구도 디자인의 제약으로 작용하였다. 게다가 예정된 전시로 4개월 내외의 공사기간이 주어졌다. 공기를 맞추기 위해 골조는 철골로 하고, 디자인은 단순화하였으며, 주로 건식으로 계획하였다.
증축부분은 3개의 내부공간과 2개의 외부공간으로 구성된다. 바다와 겹쳐 보이는 공원 숲, 이 풍경과 접하고 틈으로 연결된 선형의 상담실, 숲으로 드라마틱하게 열리되 빛을 피하고 높이를 높인 전시실, 기존 건물의 낮은 층고와 증축한 높은 층고가 겹쳐진 직원 공간, 2.5m 높은 인접대지와 사이에 조성된 뒷마당이 그것이다. 설계는 건축과 주변 환경, 기존과 증축, 미술과 건축을 공간적으로 결합하고, 자연스러우면서도 서로 긴장을 늦추지 않는 관계 맺기를 우선하였다. 내부공간은 중성화하여 전시 작품과의 관계에서 공간이 하나의 미술적인 장치가 되게 한다. 또한 공간적인 변화를 두기보다는 단순하게 처리함으로써 작품의 심상적인 감상을 방해하지 않게 하였다. 높고 깊은 전시실의 시작과 끝에 보이는 풍경은 감상의 여백을 만듦으로써 긴장과 이완이 반복되는 공간이 된다.


















Architect KAGA Architects & Planners│(주)가가건축사사무소
Location 171, Dalmaji-gil 65beon-gil, Haeundae-gu, Busan, Republic of Korea
Use Neighborhood Living Facilities, Gallery
Site area 1,020.50㎡
Built area 296.13㎡
Total floor area 691.68㎡ (Expansion area: 301.43m2)
Floor 2F
Structure Steel structure
Exterior finish Aluminum honeycomb panel, Exposed concrete
Interior finish Floor board, Tile, Paint
Design period 2021. 9 - 2021. 11
Construction period 2021. 12 - 2022. 5
Lead architect Yong-Dae Ahn Design team Ye-Sol Han, Beom-Jin Jeong, Hyun-Mo Kim, Ji-Young Kim
Cooperation Mintech Co., Ltd, Gwangmyeong Total Engineering Co., Ltd
Construction Architecture_ Dae Jeong Construction Co., Ltd,
Interior finish_ Withheim
Photographer Joonhwan Yoon
해당 프로젝트는 건축문화 2022년 10월호(Vol. 497)에 게재되었습니다.
The project was published in the October, 2022 recent projects of the magazine(Vol. 497).
October 2022 : vol. 497
Contents : RECORDS About the Changed Lifestyle and Living Space, ‘The 14th Seoul Architecture Festival’ 달라진 생활과 주거 공간에 대하여, '제14회 ‘2022 서울 건축문화제’ : NEWS / COMPETITION / BOOKS : SKETCH Free City, a Scene
anc.masilwide.com
'Architecture Project > Cultural' 카테고리의 다른 글
| The Podium (0) | 2023.01.26 |
|---|---|
| MARSK TOWER (0) | 2023.01.19 |
| Ulsan Art Museum (0) | 2023.01.12 |
| THE ISTANBUL PAINTING ANDSCULPTURE MUSEUM (0) | 2022.12.07 |
| TIC ART CENTER (0) | 2022.11.15 |
마실와이드 | 등록번호 : 서울, 아03630 | 등록일자 : 2015년 03월 11일 | 마실와이드 | 발행ㆍ편집인 : 김명규 | 청소년보호책임자 : 최지희 | 발행소 : 서울시 마포구 월드컵로8길 45-8 1층 | 발행일자 : 매일



