
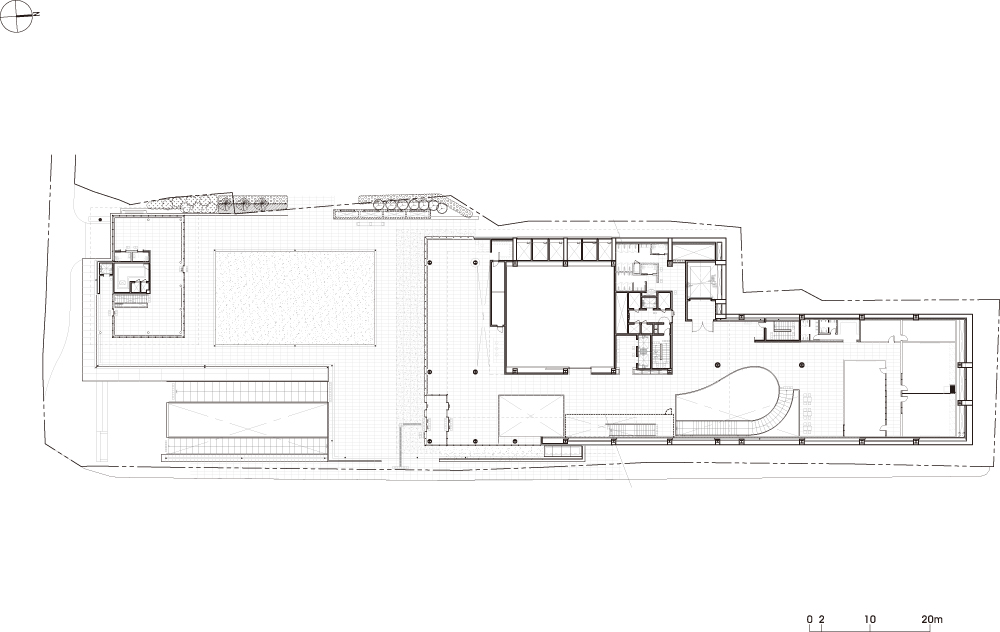
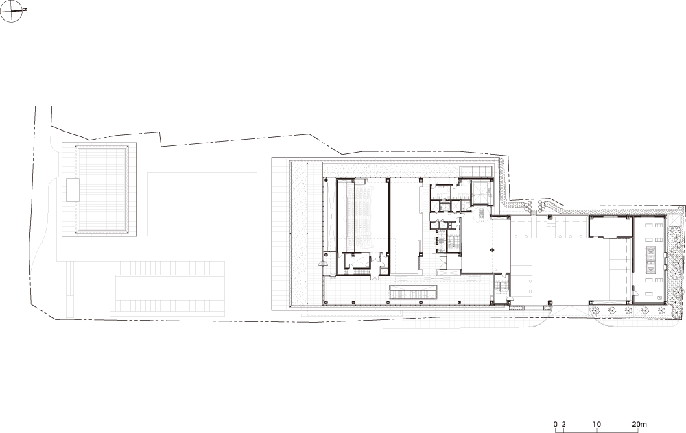
The site is a densely populated area of government offices of the Joseon Dynasty, a place layered with history. By reinterpreting the traces of such land with design vocabulary, memories and landscapes are restored. It is a courtesy that architecture should possess towards the land. Rather than the museum being the main attraction, it enters with a low stance that serves as the background for the Dongheon* and Gaeksa**. We created a plate as a place to interpret the pattern of the site, and transparency between the plates is a key design concept. This device creates a new landscape without harming the existing landscape created by the dongheon and gaeksa. Although viewing an exhibition is considered a non-daily activity, Ulsan Art Museum was intended to be an art museum in everyday life that is comfortable and easy to find. To this end, we applied a design emphasizing the openness of the place that meets with the surrounding environment.
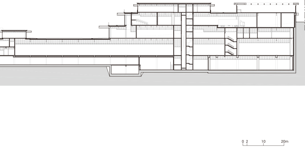
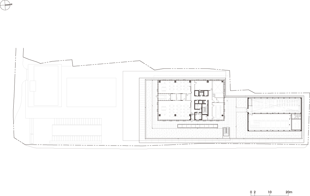
This museum is a modern building that stands among cultural properties, and there are restrictions. The site is long and narrow with a maximum width of 45m, length of 150m, and height difference of about 15m, and the number of floors is limited to two floors above the ground on a sloping land. As a solution, the main exhibition room was placed in the basement to reduce the above-ground volume. The buildings on the ground are arranged lengthwise according to the shape of the land, and the yard and the eaves are secured by pushing the building to the north side. The wide and long plate is narrow and long, and it is also a device that naturally helps overcome the sloping land. The receding mass reduces the visual burden from the magistrate’s office and creates an open space. The plate exposed to the outside with a courtyard and long eaves is an open space where the urban flow and the art museum meet and various activities take place.
The establishment and operation of a public art museum must communicate in all elements of the art museum. Particularly, in order to be a good exhibition space, mutual understanding and cooperation between architecture, engineering, and art are required above all else. In order for the exhibition work to stand out, the details should be simple, so all fields such as architecture, machinery, electricity, firefighting equipment, MI, and furniture must cooperate. The main exhibition hall is composed of the large exhibition hall and the middle exhibition hall, centering on the long exhibition hall facing the Sunken garden. For the best exhibition effect, lighting and air conditioning was integrated to design a neutral space that does not interfere with the work. The circulation route makes it easy to understand the flow of the exhibition, but also adds fun to experiencing the space, and it is connected with the rest areas in various spots. By planning the second basement floor as the main entrance following the external stairs facing the sunken garden, the design intended for the visitor to experience the depth of the space.

울산시립미술관
부지는 조선시대의 관아 밀집지역으로 역사의 켜들이 쌓여 있는 장소이다. 이러한 땅의 흔적을 디자인 어휘로 재해석하여 기억과 풍경을 회복한다. 건축이 갖춰야 할 땅에 대한 예의이다. 미술관이 주인공이기보다는 동헌과 객사의 배경이 되는 낮은 자세로 들어선다. 터의 무늬를 해석한 장소로서의 판을 만들었는데, 판과 판 사이의 투명성이 핵심적인 디자인 개념이다. 이 장치는 동헌과 객사가 만들어내는 과거의 풍경을 해치지 않고 하나의 새로운 풍경이 되게 한다. 흔히 전시 관람은 비일상의 행위라고는 하지만 울산시립미술관은 좀 편하고 쉽게 찾을 수 있는 일상 속의 미술관을 의도하였다. 이를 위해 주변 환경과 만나는 장소의 개방성이 강조된 디자인을 적용하였다.
이 미술관은 문화재 사이에 들어서는 현대적인 건물로서 제약조건이 있다. 부지의 최대 폭이 45m, 길이가 150m, 높이차가 15m 정도의 폭이 좁고 길며, 경사진 땅에서 층수가 지상 2층으로 제한된다. 해결 방안으로 주전시실을 지하에 두어 지상볼륨을 절제하였다. 지상의 건물은 땅의 형상을 따라 길게 배치하고, 건물을 북측으로 밀어 마당과 처마를 확보한다. 넓고 긴 판은 폭이 좁고 길며, 경사진 대지를 자연스럽게 극복하는 장치이기도 하다. 뒤로 물러선 매스는 동헌에서의 시각적 부담을 줄이고 개방된 장소를 만든다. 외부로 드러난 판은 마당이나 긴 처마로서 도시흐름과 미술관이 만나서 다양한 행위가 일어나는 열린 공간이다.
공공미술관의 건립과 운영은 미술관을 구성하는 모든 요소에서 소통해야 한다. 특히 좋은 전시공간이 되기 위해서는 건축과 엔지니어 분야, 미술의 상호이해와 협력이 무엇보다 필요하다. 전시작품이 돋보이려면 디테일이 단순해야 좋기에 건축, 기계, 전기, 소방, MI, 가구 등 모든 분야가 협력해야 한다. 주전시실은 썬큰과 면한 긴 전시 홀을 중심으로 대전시실과 중전시실로 구성된다. 전시효과를 위해서 조명, 공조 등을 일체화하여 작품을 방해하지 않는 중성적인 공간으로 계획하였다. 관람동선은 전시흐름을 알기 쉬우면서도 공간을 경험하는 재미가 있고, 곳곳의 휴게공간과 연계된다. 설계에서는 썬큰과 면한 외부계단을 따라 지하 2층을 주출입구로 계획하여 공간의 깊이를 경험하게 의도하였다. 하지만 개관 후에 코로나로 지하 1층으로 주출입구가 통합되었으며, 전시물이 오픈된 홀을 채우는 경우가 많아 공간의 깊이를 경험하지 못하게 된 아쉬움이 크다.
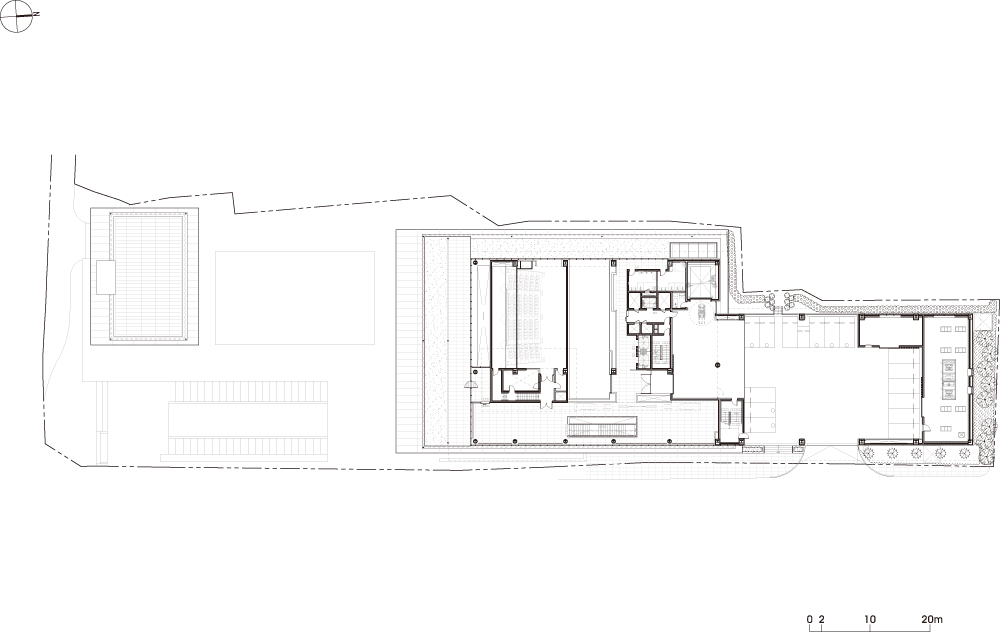
한편 지하라는 불리한 여건을 극복하고자 적절히 오픈한 바닥과 개방된 측창으로 지하공간을 쾌적하게 하였으며, 지상의 어린이미술관으로 이어져 공간의 다양성이 드러난다. 카페는 별동으로 도시와 인접하여 미술관과 별개로 사용가능하다. 설계공모와 실시설계 후 착공까지는 범용의 시립미술관으로 출발하였지만 개관준비 시점에는 미디어 중심의 미술관으로 성격이 결정되었다. 성격에 맞춰서 약간의 설비적인 보완은 있었지만 이미 공사가 진행되어 많은 변화는 없었다. 시공품질의 아쉬움에도 불구하고 대체적인 설계의도가 유지된 점은 그나마 다행이다.































Architect KAGA Architects & Planners│(주)가가건축사사무소
Location 72, Doseogwan-gil, Jung-gu, Ulsan, Republic of Korea
Use Cultural and assembly facilities(Museum)
Site area 6,182.00㎡
Built area 4,473.29㎡
Total floor area 12,829.95㎡
Floor B3F, 2F
Structure Steel reinforced concrete construction
Exterior finish Aluminum sheet, Granite(Goheung-Stone)
Interior finish Tile, Paint
Design period 2017. 1 – 2018. 5
Construction period 2019. 8 – 2021. 12
Lead architect Yong-Dae Ahn
Design team Beom-Jin Jeong, Dae-Yong Lee, Jin-Soo Kim, Jae-Hyun Kim, Ye-Sol Han, Tae-Doo Ahn, Soo-Eun Ha
Cooperation Mintech Co., Ltd, Chunil Engineering Co., Ltd
Construction Hwasung Indusrial CO,.LTD.
Photographer Joonhwan Yoon
해당 프로젝트는 건축문화 2022년 10월호(Vol. 497)에 게재되었습니다.
The project was published in the October, 2022 recent projects of the magazine(Vol. 497).
October 2022 : vol. 497
Contents : RECORDS About the Changed Lifestyle and Living Space, ‘The 14th Seoul Architecture Festival’ 달라진 생활과 주거 공간에 대하여, '제14회 ‘2022 서울 건축문화제’ : NEWS / COMPETITION / BOOKS : SKETCH Free City, a Scene
anc.masilwide.com
'Architecture Project > Cultural' 카테고리의 다른 글
| MARSK TOWER (0) | 2023.01.19 |
|---|---|
| Johyun Gallery Extension and Remodeling (0) | 2023.01.13 |
| THE ISTANBUL PAINTING ANDSCULPTURE MUSEUM (0) | 2022.12.07 |
| TIC ART CENTER (0) | 2022.11.15 |
| MUSEUM OF MODERN ALUMINUM THAILAND (0) | 2022.11.09 |
마실와이드 | 등록번호 : 서울, 아03630 | 등록일자 : 2015년 03월 11일 | 마실와이드 | 발행ㆍ편집인 : 김명규 | 청소년보호책임자 : 최지희 | 발행소 : 서울시 마포구 월드컵로8길 45-8 1층 | 발행일자 : 매일


