
In 2009 Entrepot Number 5 in the Karaköy Harbor was allocated to Mimar Sinan Fine Arts University for the purpose of transforming it into the Istanbul Painting and Sculpture Museum. Thus was the way cleared for the public use of an area which, although located on an important site in the city center, had almost no social permeability, and for the building of an original, high-quality museum to house thousands of valuable works including important pieces of late Ottoman to modern Turkish painting.
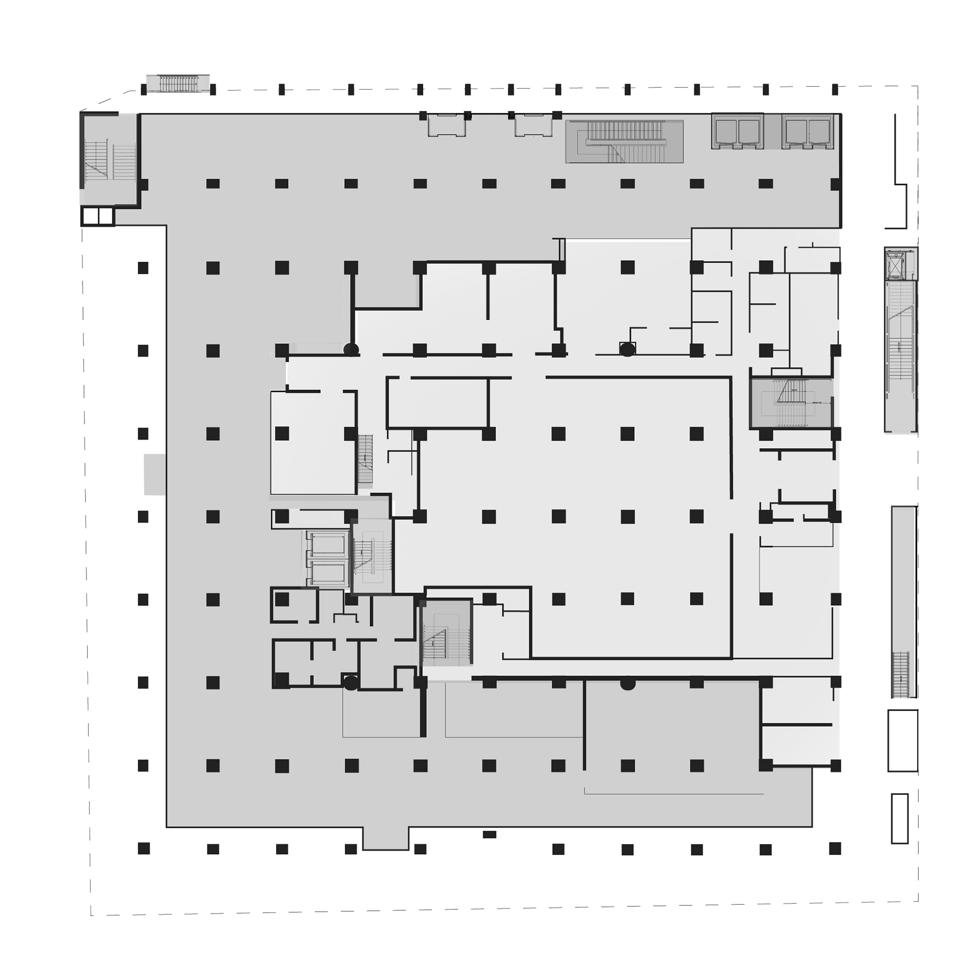
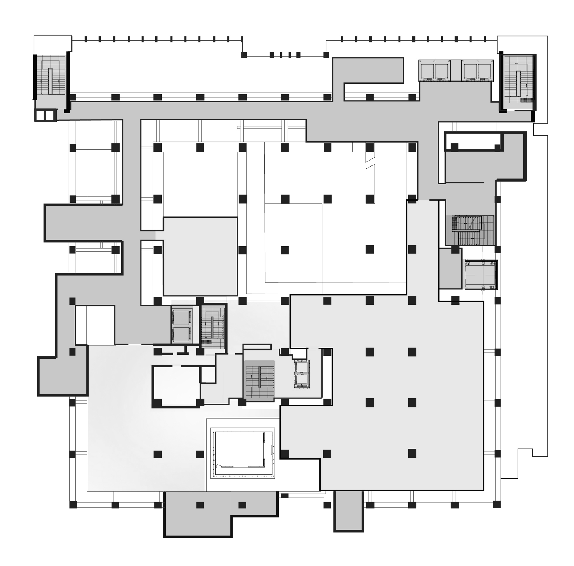
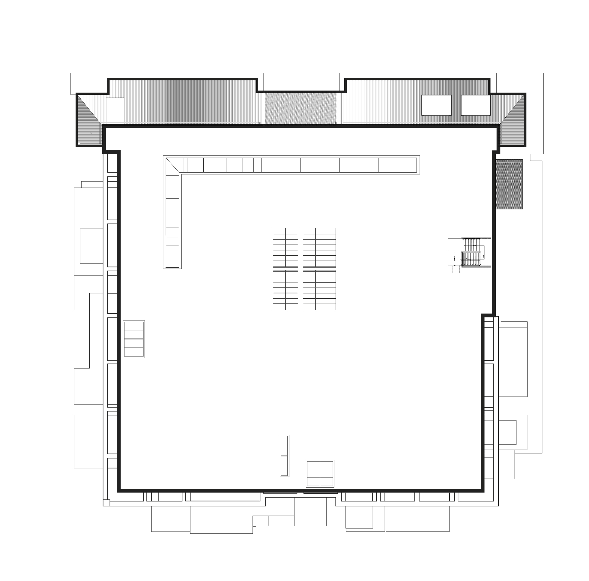
In the initial research phase of the design process, we studied the history of the physical and sociological characteristics of the area. Within this framework the special place that the entrepot and office blocks standing since the end of the 1950s had formed in visual memory came to the fore, over and above the area’s identity as an industrial and harbor region, which had for centuries distinguished it from other parts of the city. We emphasized the importance of preserving these buildings, whose characteristics in scale and structure were so very prominent. In particular, the horizontal geometry of the entrepot buildings’ reinforced concrete, repeated in line with the plane, was a characteristic most worthy of note, and one of the main goals of our design became to continue it. We planned a three-dimensional grid structure into which the new museum’s galleries would be placed, in great part preserving the reinforced concrete load-bearing system while removing the walls and floors.
On the museological side we expected that as time went on displayed works would be categorized according to changing curatorial approaches, and grouped and assigned to the galleries according to the ways in which spaces were used. We aimed to make possible changing themes in line with various scenarios of this kind.
Instead of a conventional framework-glass solution for the transparent façade that would cover the work and protecting it from the elements, we undertook an original system quoting the industrial past of the structure. The galleries, organized so that some could be connected and others isolated, were interrelated by means of new passageways and bridges. Thus came into play an environment where interfaces between galleries were formed that offered unexpected perspectives, while viewers would be able to establish unalloyed relationships with works in a sterile environment as well as relationships between the galleries and the city.
The narrow-long office structure built on the Meclis-i Mebusan Boulevard side next to the entrepot building had grave weaknesses in its load-bearing system, and also particularly original facades. We planned to rebuild it with a similar feeling for memory. The three-dimensional empty space formed in this section allowed the entry and diffusion spaces to be enriched by atelier and public use functions. By treating the ground floor with a use strategy as permeable as possible, the relationship this structure would form with the other buildings and open spaces around it was strengthened.
It is hoped that all of these structural characteristics will help the Mimar Sinan Fine Arts University Istanbul Painting and Sculpture Museum to form a new, original and fresh center within the cultural landscape of the city.

이스탄불 회화 조각 박물관
2009년 미마르시난예술대학교(Mimar Sinan Fine Arts University)는 콰라쿄이(Karaköy)의 엔트로포트 넘버 5(Entrepot Number 5) 건물을 ‘이스탄불 회화 조각 박물관’으로 탈바꿈하기로 했다. 도심의 중요한 위치에 있지만, 이용되지 않던 지역을 공공이 사용할 수 있게 하면서, 기존 건물을 후기 오스만에서 현대 터키 회화까지 수천 개의 귀중한 작품을 소장할 수 있는 수준 높은 박물관으로 재탄생시켰다.
설계 초기 조사 단계에서 이 지역의 물리적, 사회적 특성과 역사를 연구했다. 1950년대 말 이후부터 있던 항구와 회사 단지는 오랜 시간 동안 산업과 항구 지역으로 기억되던 이곳의 정체성을 시각적으로 더욱 드러내고 있었다. 규모와 구조의 특징이 매우 두드러졌던 항구 건물을 보존하는 것이 중요했다. 특히, 평면에 맞추어 반복된 항구 건물들이 가진 수평이 강조된 기하학적인 철근 콘크리트의 특성을 유지하는 것이 설계의 중요한 목표 중 하나였다. 새로운 박물관의 갤러리를 배치할 수 있는 입체적인 격자 구조를 계획했고, 벽과 바닥을 제거하면서 드러난 철근콘크리트의 구조 시스템을 그대로 보존했다.
박물관학적 측면에서 작품들은 변하는 큐레이터의 기획에 따라, 분류에 따라, 사용되는 공간에 따라 갤러리가 나뉠 것으로 생각했다. 이런 다양한 시나리오에 맞춰 테마를 바꿀 수 있는 공간이 되도록 했다.
구조 위에 유리를 덮어 건물을 주변 환경으로부터 보호하는 투명한 파사드를 만드는 대신, 과거의 산업 지역의 모습을 보여주는 독창적인 시스템을 만들었다. 일부는 연결되고, 일부는 분리되는 갤러리를 새로운 통로와 다리를 통해 연결했다. 갤러리 간의 연결은 뜻밖의 관점을 만들어 냈는데, 관람객들은 완전한 환경의 전시관과 작품의 관계를 미술관과 도시 사이에서도 느낄 수 있게 되었다.
항구 건물 옆, 메클리스-이 메부산(Meclis-i Mebusan) 대로에 지어진 좁고 긴 구조와 독특한 입면은 하중을 지지하는데 큰 문제가 있었다. 그래서 기억 속에 남아 있는 건물의 모습으로 다시 지어야 했다. 파사드의 입체적인 빈 공간은 입구와 확산 공간은 풍성한 박물관과 공공의 공간으로 만들었다. 1층으로 사람들을 스며들 수 있도록 해 이 구조가 다른 건물과 주변의 열린 공간과 더 강하게 연결되도록 했다.
이 모든 구조적 특성이 이스탄불 회화 조각 박물관을 독창적이고, 신선한 공간으로 도시에 자리할 수 있게 하길 바란다.






















Architect Emre Arolat Architecture
Location Istanbul, Turkey
Program Museum
Site area 5,370㎡
Building area 4,532㎡
Gross floor area 20,087㎡
Design period 2011 - 2014
Construction period 2014 - 2021
Completion 2021
Structural engineer Tezkon Engineering
Mechanical engineer Dinamik Project Engineering
Electrical engineer Hb Teknik Engineering
Facade engineering Axis Engineering
Client MSGSU(Mimar Sinan Fine Art University)
Photographer Thomas Mayer, Engin Gerçek
해당 프로젝트는 건축문화 2022년 9월호(Vol. 496)에 게재되었습니다.
The project was published in the September, 2022 recent projects of the magazine(Vol. 496).
September 2022 : vol. 496
Contents : RECORDS "SHINGIL MIDDLE SCHOOL" TO PROPOSE A NEW SCHOOL SPACE STRUCTURE THAT WON THE 40TH SEOUL ARCHITECTURE AWARDS 새로운 학교 공간 구조를 제안한 ‘신길중학교’ 제40회 서울시 건축상 대상 수상 : NEWS / COMPETITION
anc.masilwide.com
'Architecture Project > Cultural' 카테고리의 다른 글
| Johyun Gallery Extension and Remodeling (0) | 2023.01.13 |
|---|---|
| Ulsan Art Museum (0) | 2023.01.12 |
| TIC ART CENTER (0) | 2022.11.15 |
| MUSEUM OF MODERN ALUMINUM THAILAND (0) | 2022.11.09 |
| Waaam (0) | 2022.11.08 |
마실와이드 | 등록번호 : 서울, 아03630 | 등록일자 : 2015년 03월 11일 | 마실와이드 | 발행ㆍ편집인 : 김명규 | 청소년보호책임자 : 최지희 | 발행소 : 서울시 마포구 월드컵로8길 45-8 1층 | 발행일자 : 매일



