
The majority of Seoul’s area is occupied by residential areas on the backside roads, which are at general residential areas. The small-scale villas and commercial arcades that create scenery here are creating maximum masses within the legal limits to ensure the maximum profits of the client. The buildings created in this way have no choice but to form a full elevation toward the streets, resulting in only a stuffy scenery of city roads and buildings (outside and inside).
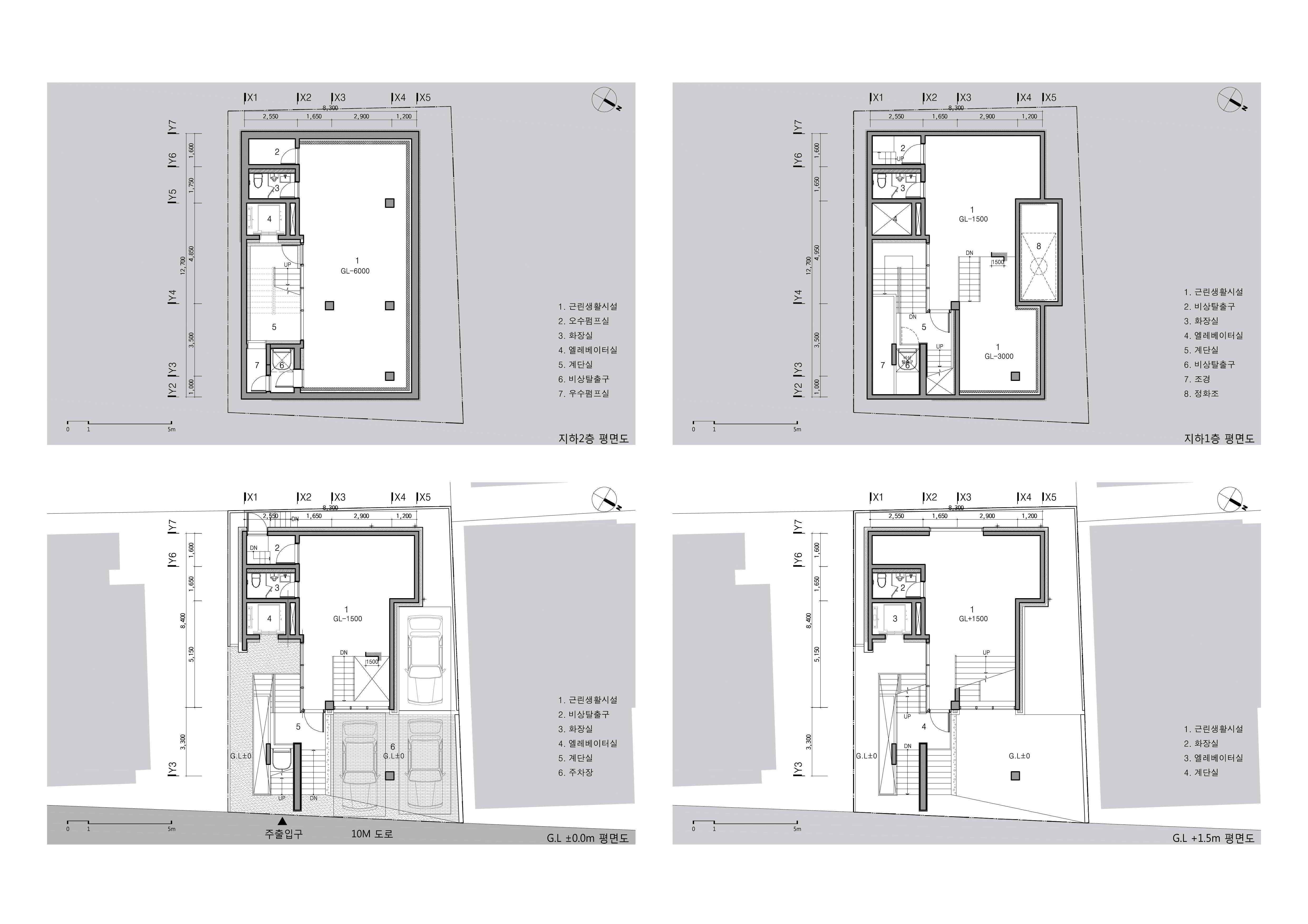
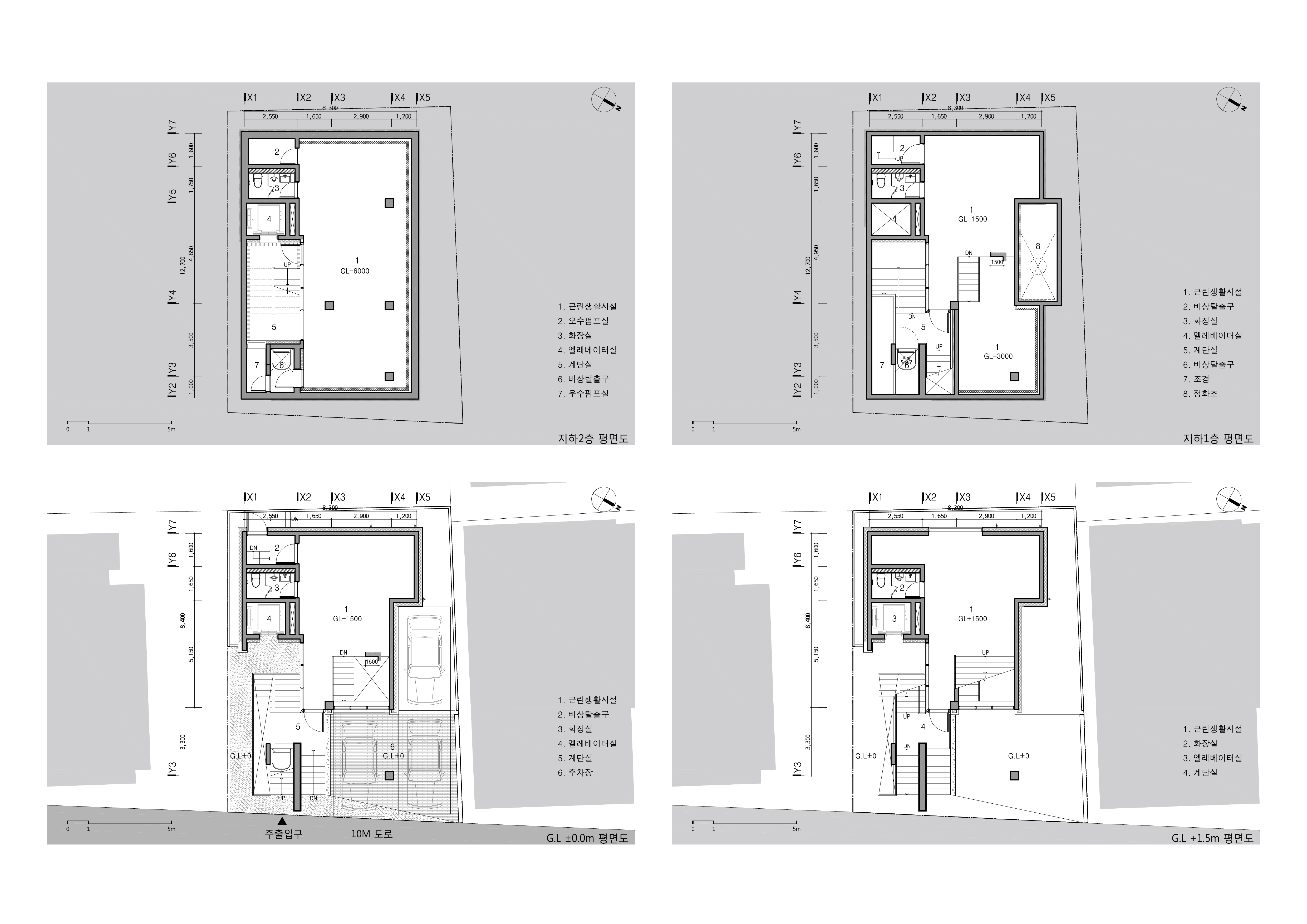
The small-scale buildings on the backside road of Sinsa-dong also consist of one mass and one layer, forming only a dichotomy of roads and buildings. In order to expand the amplitude of the city’s space and change the scenery, the mass was divided into three and listed according to the three layers extended from the road. The three masses and layers gradually recede from the road, widening the gap with the city. Each mass is composed of different materials, and between them, the outer stairs, which are the extension of the road, and the inserted nature are placed to expand the urban space. Most of the rental income in commercial buildings occurs on the first and second floors above ground and the first basement floors. Considering parking, it is difficult to find the maximum area of the first floor above the ground.
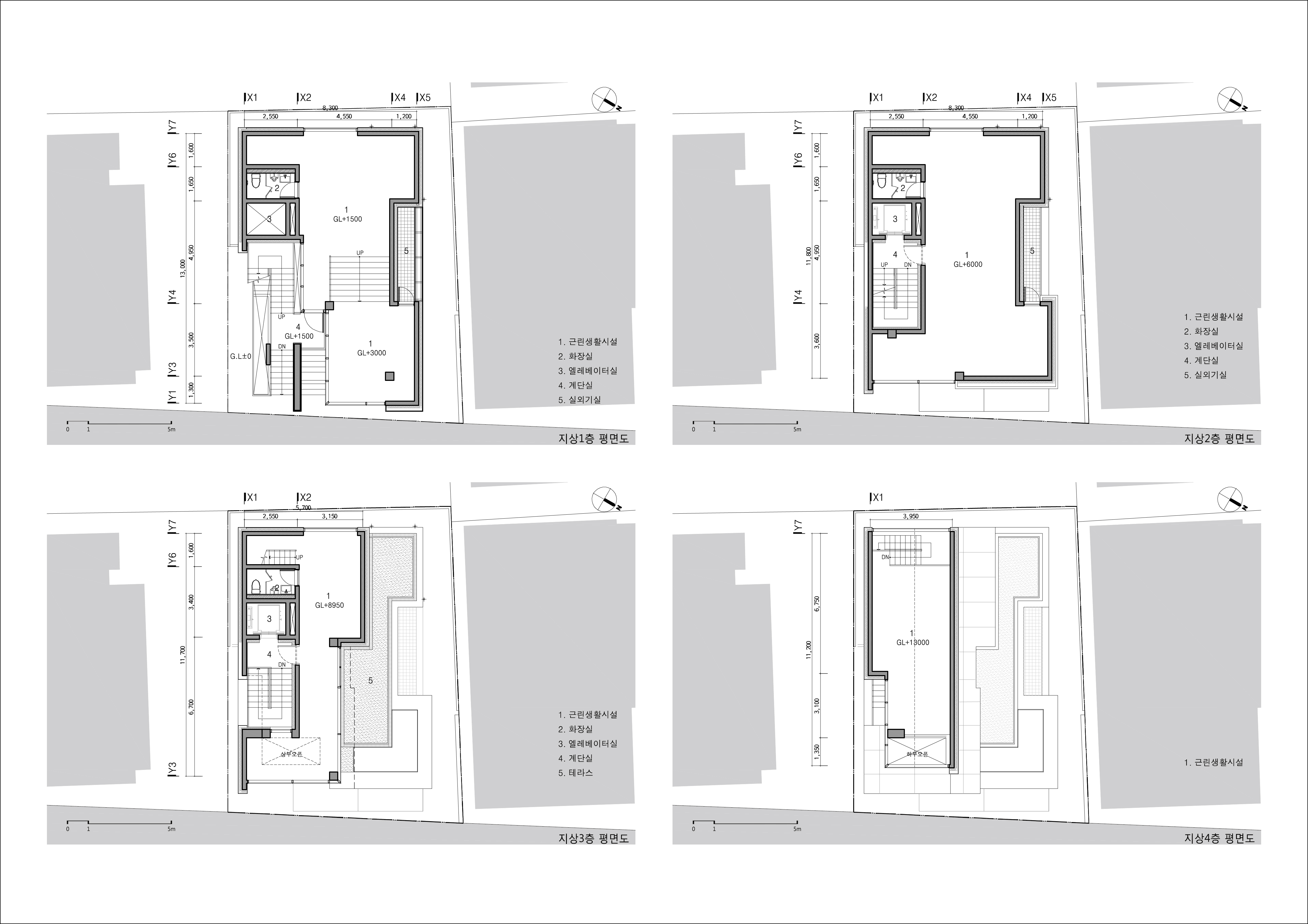
The basement floor and the first floor above ground consist of skip floors on each floor to expand the space of use, and the third and fourth floors, which have been reduced in area due to solar radiation, are planned as double floors to maximize the internal volume. This is expected to be a spatial solution to ensure rental income and achieve communication with urban spaces at the same time by planning around volume, which is a unique nature of space, rather than simply a floor-oriented plan. The upper layer has a refined ceramic tile different from the mixed surroundings, the middle layer is finished with brick tiles, and the lower layer is finished with rough stone makeup for identity in the street, so industrialized and handicraft materials have a sequential hierarchy from the upper layer to the lower layer.
It is time for both urban and urban residents to start making efforts to coexist. We hope that small efforts to widen the gap toward the city, extend the road, and refill nature will be made to enrich the experience of urban scenery and urban space.

신사 507.5
서울 면적의 대다수는 일반주거지역인 이면도로 주거지가 차지하고 있다. 이곳의 풍경을 만들고 있는 소규모 빌라와 상가는 건축주의 이익을 최대한 확보하기 위해 법적 한도 내에서 최대한의 덩어리를 만들어 내고 있다. 이렇게 만들어진 건축물들은 거리를 향해 꽉 찬 입면을 구성할 수밖에 없고, 그 결과 도시의 길과 건물(외부와 내부)이라는 답답한 풍경만을 만들어 내고 있다.
신사동 이면도로의 소규모 건축물들 또한 1개의 매스와 1개의 레이어로 이루어져 단지 길과 건물이라는 이분법적인 공간만을 구성하고 있다. 도시가 가지는 공간의 진폭을 확장하고 풍경을 변화시킬 수 있도록 매스를 3개로 나누고 길로부터 연장된 3개의 레이어에 따라 나열하였다. 이 3개의 매스와 레이어는 도로에서 점점 뒤로 물러나면서 도시와의 틈을 벌린다. 각각의 매스를 서로 다른 재료로 구성하고 그 사이로 길의 연장인 외부 계단과 삽입된 자연을 놓아 도시공간이 확장된다. 근생건물에서 대부분 임대수익은 지상 1, 2층과 지하 1층에서 발생한다. 주차를 고려하면서 지상 1층의 최대면적을 찾기는 어려운 상황이다. 지하층과 지상 1층은 각층 스킵 플로어로 구성하여 사용 공간이 확장되도록 하였고, 일조사선으로 인해 면적이 감소한 3, 4층은 복층으로 계획하여 내부의 볼륨감이 극대화 되도록 하였다. 이는 단순히 평면을 층층이 쌓는 면적 중심의 계획이 아닌 공간의 고유한 성질인 체적을 중심으로 계획함으로써 임대수익 보장, 도시공간과의 소통을 동시에 달성하기 위한 공간적 해법이 될 수 있을 것으로 기대한다.
상층부는 혼재된 주변 상황과는 다른 정제된 느낌의 세라믹 타일, 중층부는 벽돌타일, 저층부는 거리에서의 정체성을 위해 거친 느낌의 종석미장으로 마감하여, 산업화된 재료와 수공예적인 재료가 상층부에서 저층부까지 순차적인 위계를 지닌 입면을 가진다. 앞서 언급했듯이 이제는 도시와 도시민 모두가 공존하기 위한 노력들을 시작할 때다. 조금 더 도시를 향해 틈을 벌이고 길을 연장하고 자연을 다시 채워나가는 작은 노력들이 모여 도시풍경과 도시공간의 경험을 더욱 풍요롭게 만들 수 있길 기대해본다.












ⓒChangwoo Choi

















Architect 웍스건축집단 | WORKS Architects Associates
Location Apgujeong-ro, Gangnam-gu, Seoul, Republic of Korea
Program Commercial Facilities
Site area164.60㎡
Building area 98.42㎡
Gross floor area 434.45㎡
Building scope B2, 4F
Building to land ratio 59.79%
Floor area ratio 158.91%
Design period 2020. 7 - 2021. 2
Construction period 2021. 4 - 2022. 4
Completion 2022. 4
Principal architect / Project architect Hyungsuk Kim, Jungyong Park
Design team WORKS Architects Associates
Structural engineer Prime Structure
Mechanical engineer Jinkyung E&G
Electrical engineer Kukdong Electric
Construction Daewon Construction
Client D'wave
Photographer Changwoo Choi
해당 프로젝트는 건축문화 2022년 10월호(Vol. 497)에 게재되었습니다.
The project was published in the October, 2022 recent projects of the magazine(Vol. 497).
October 2022 : vol. 497
Contents : RECORDS About the Changed Lifestyle and Living Space, ‘The 14th Seoul Architecture Festival’ 달라진 생활과 주거 공간에 대하여, '제14회 ‘2022 서울 건축문화제’ : NEWS / COMPETITION / BOOKS : SKETCH Free City, a Scene
anc.masilwide.com
'Architecture Project > Commercial' 카테고리의 다른 글
| Oreum (0) | 2023.01.06 |
|---|---|
| The Floor (0) | 2023.01.05 |
| RIVERAIN (0) | 2023.01.02 |
| HALITE PLATZ (0) | 2022.12.28 |
| STORY-CEPTION (0) | 2022.12.28 |
마실와이드 | 등록번호 : 서울, 아03630 | 등록일자 : 2015년 03월 11일 | 마실와이드 | 발행ㆍ편집인 : 김명규 | 청소년보호책임자 : 최지희 | 발행소 : 서울시 마포구 월드컵로8길 45-8 1층 | 발행일자 : 매일



