
The client, who wanted to develop a site that was previously used as a car center, came to us while thinking about securing business feasibility. The land was small and commercial, so it was difficult to find a lot of legal floor space. Above all, the client wanted to build a building differentiated from the surrounding buildings as a native of the area in the process of being demolished and rebuilt by temporary visitors on weekends.
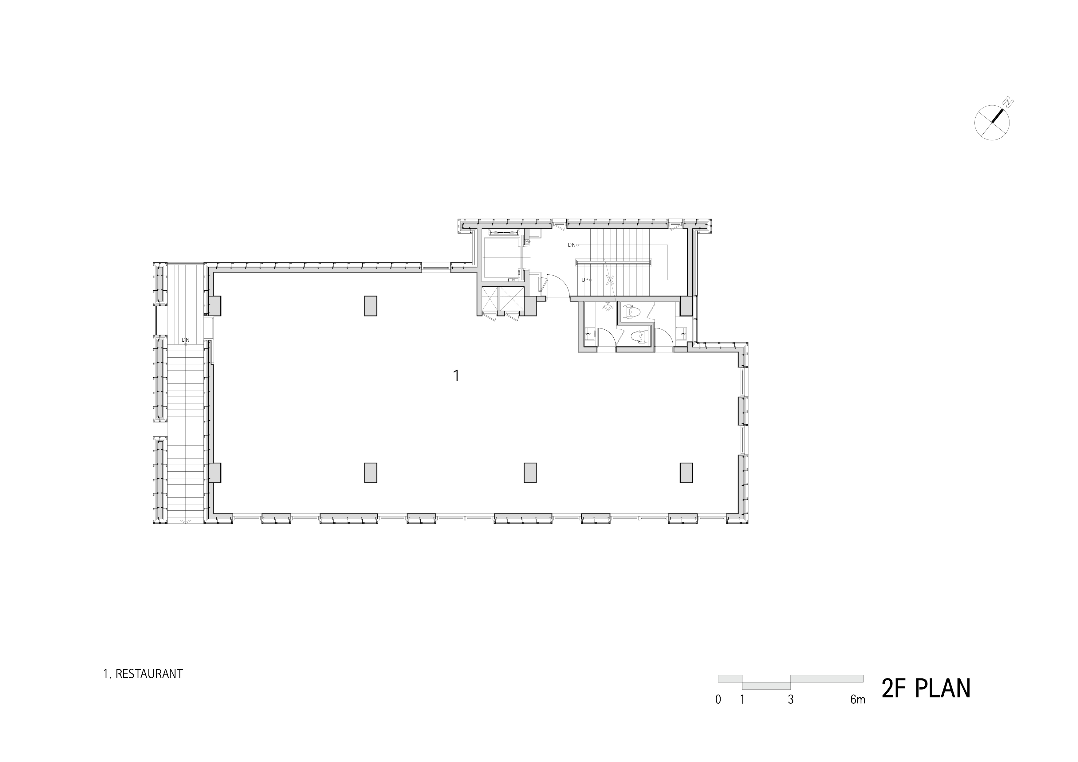
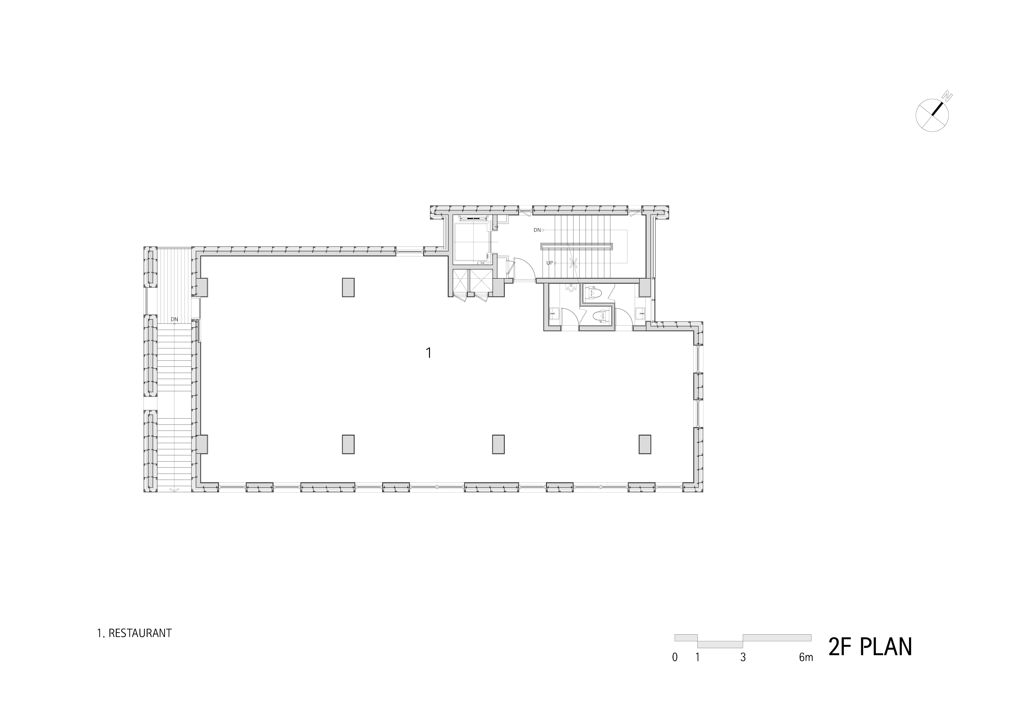
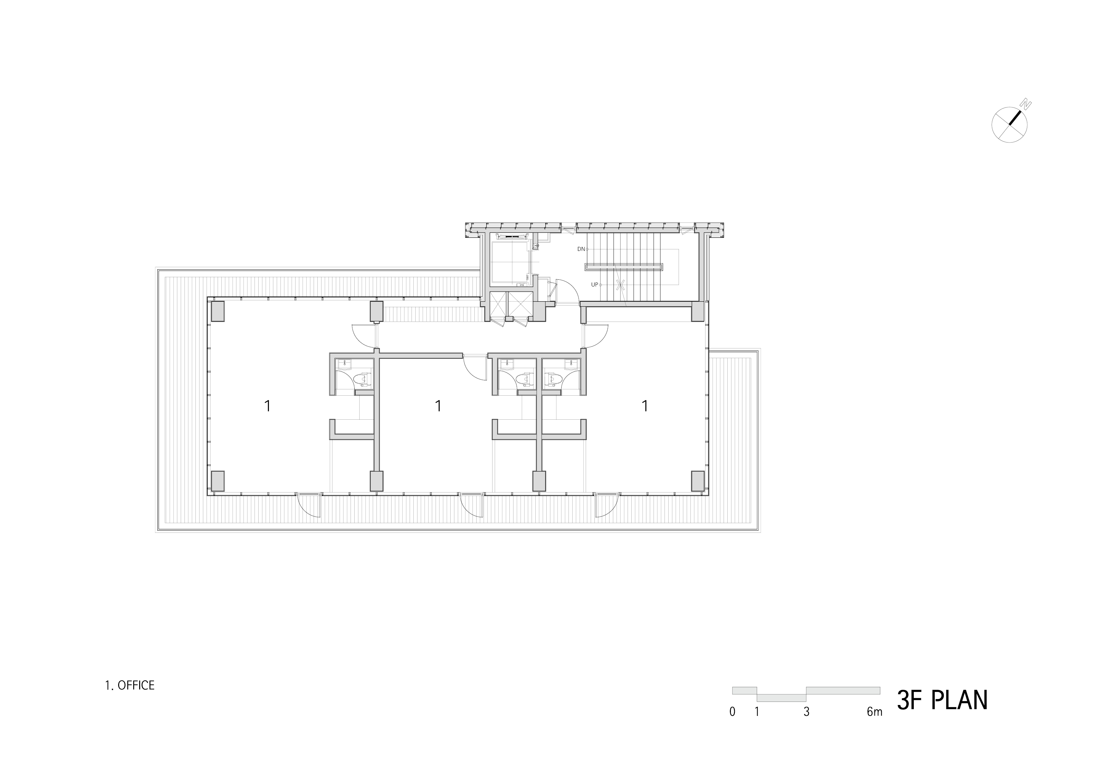
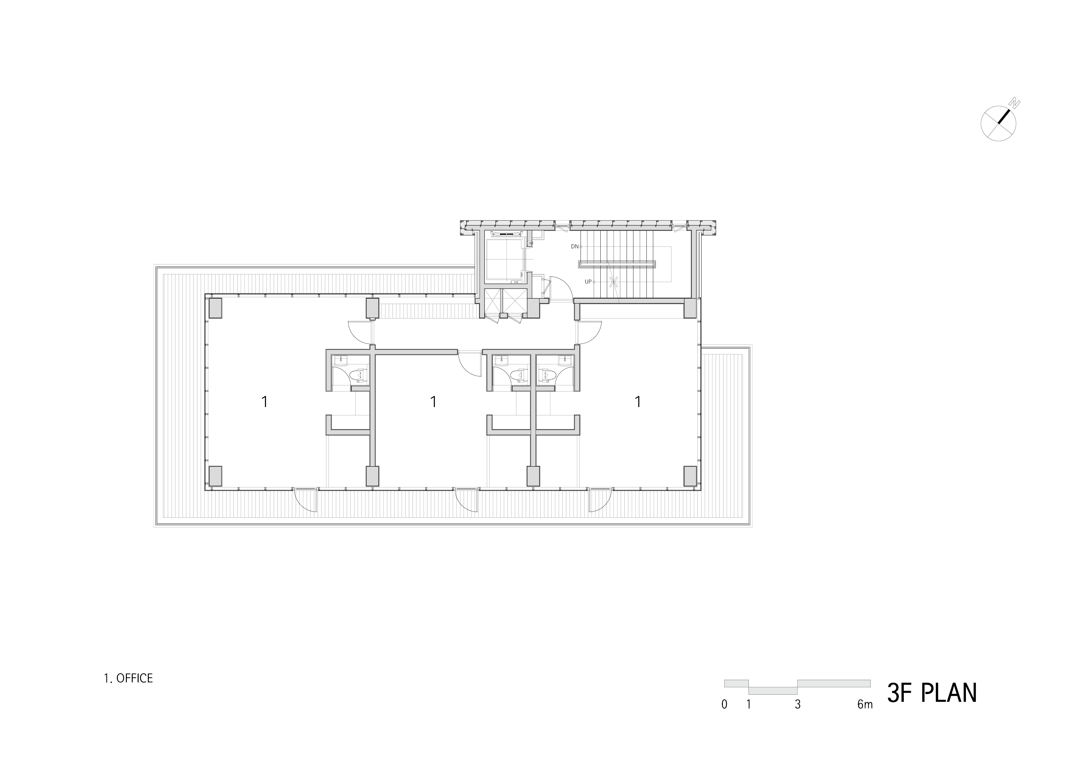
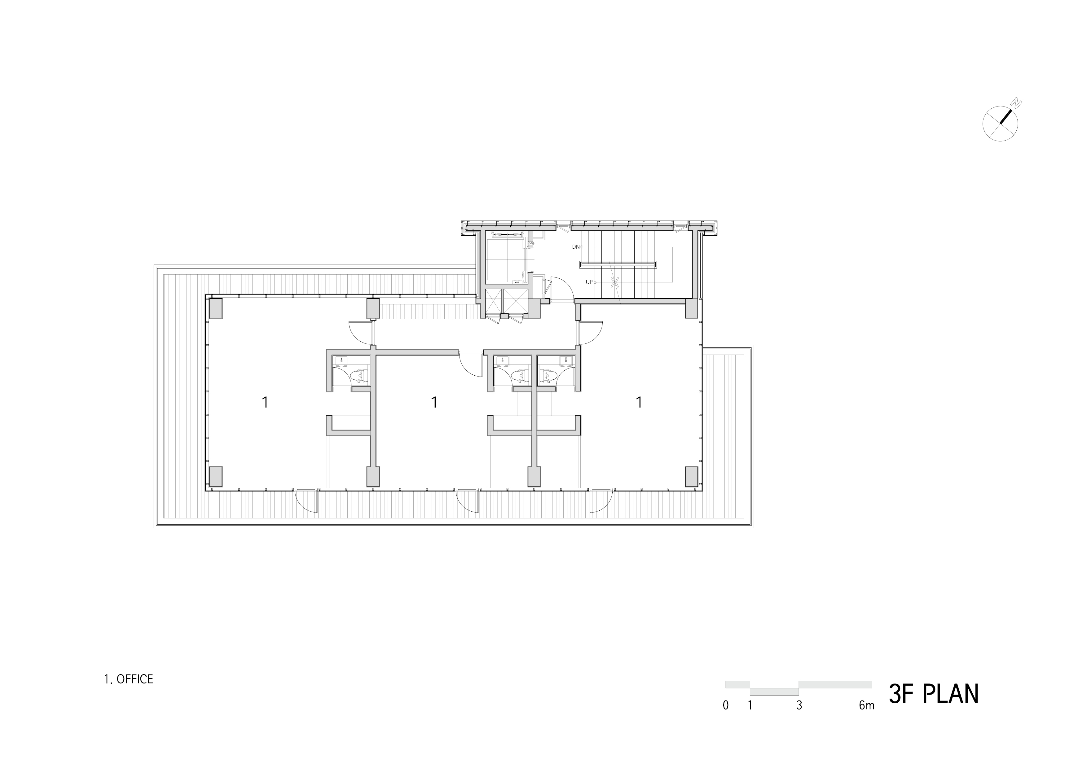
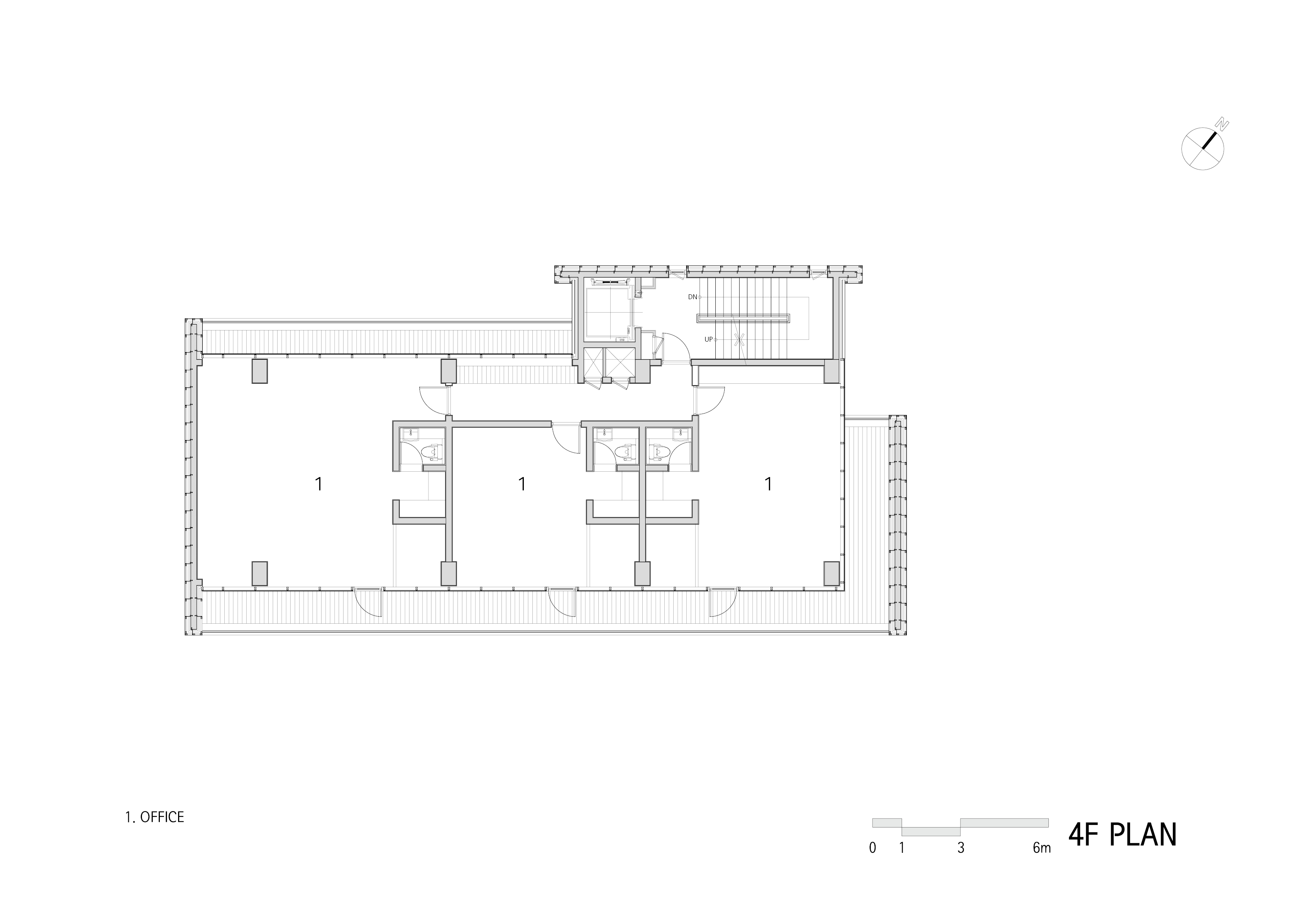
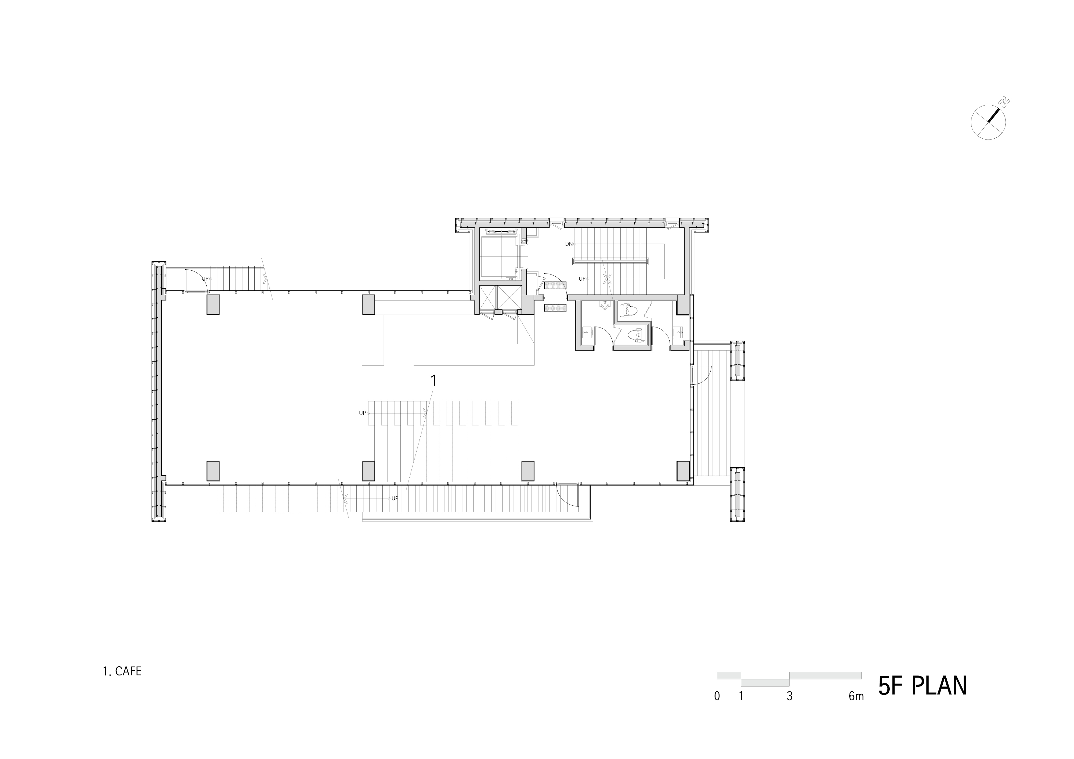
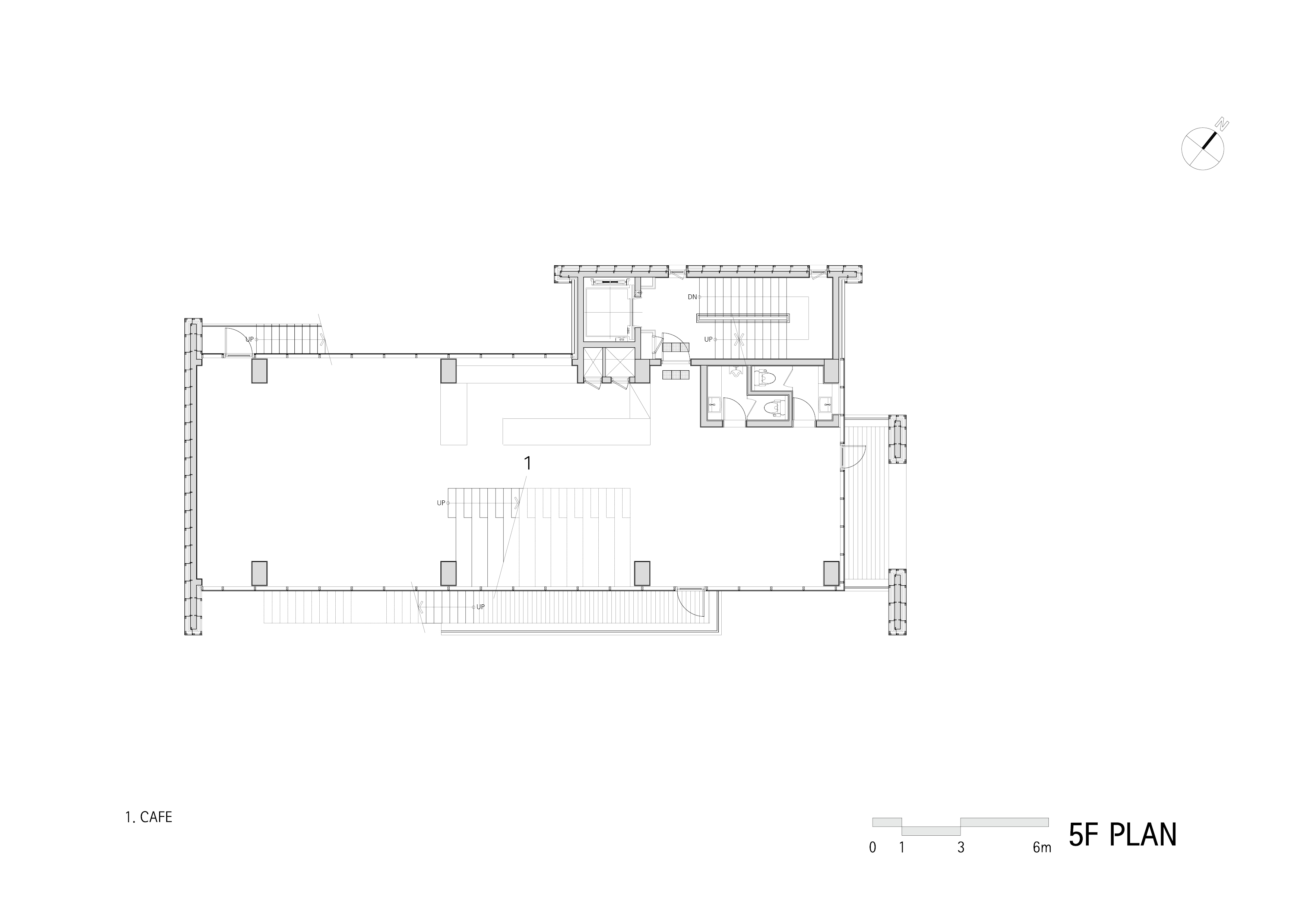
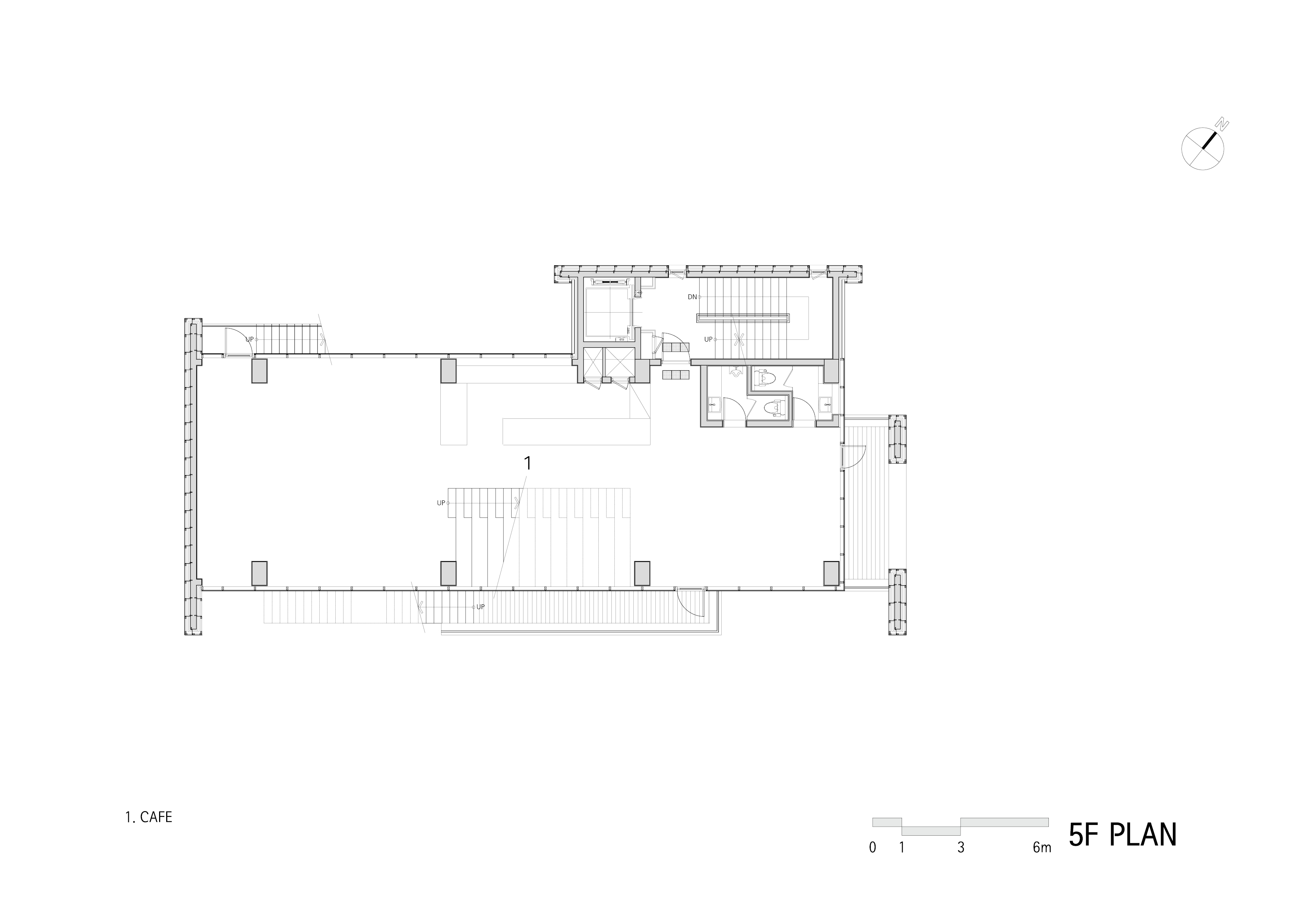
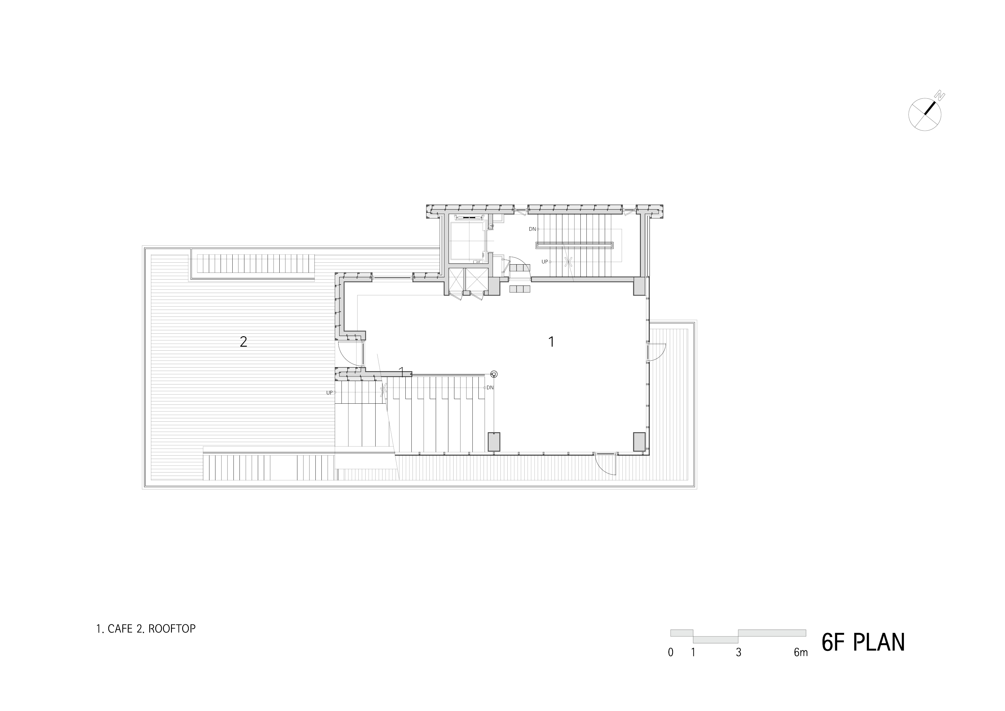
Yangpyeong Yongdam-ri Neighborhood Living Facility “Story” is a building that maximizes the view that changes by floor by utilizing the view of the Namhangang River as it goes up from the low to the high floor. The building, which was largely divided into three mass, was arranged on the high floor according to the time of use, and the shopping mall was arranged on the low floor. In this way, each floor can feel different shapes and different views, so it was named “Layer”.
The site was close to a tourist destination called Semiwon, and from the third floor or higher, you can see the river. Not only the target site but also the adjacent land were included in the flood management area, so underground parking lots could not be installed, and if the rental space on the first floor was abandoned as a parking lot, it was built as a three-story small building. In order to make the most of the potential in the land, we reviewed various laws and found a solution through consultation on securing the land’s building rate, installing parking lots through the parking lot law, and responding to the underground facility space for flood management areas. In addition, the design direction was taken toward creating an optimal space for looking at rivers and rivers on each floor by stacking more floors than the surrounding buildings.
A client who planned the size of the third floor and planned to rent the first floor in installments and run the restaurant directly on the second floor. In order to improve accessibility to the second floor, we arranged the entrance to the second floor to be recognized, and adjusted the design of the low floor to match the restaurant table. In addition, in the case of the upper floor, unlike the lower floor, it was hoped to be used as a space for villagers, so different designs were applied to each floor, unlike general neighborhood shopping malls, using terraces.
The utilization of views is maximized through the terrace. The terrace can bring the water space, which is the advantage of the building, into the interior and give users a sensory experience. In addition, through the connection of the terrace divided by floors, it is possible to connect the appreciation of views that can be segmented.
For clients who were disappointed that existing bright-colored buildings were disappearing during the construction of the village, the overall design focus was to use colors that harmonize with the surrounding colors and use terraces and curtain walls to enhance the recognition of the building. Thin plate ceramics and curtain walls allow the buildings and surroundings to shine brighter through light, and in particular, the internal lighting light through the curtain wall illuminates the village subtly without adding or less.

용담리 근린생활시설 ‘층(層)’
기존 카센터로 사용 중이던 대지를 개발하고자 한 건축주는 사업성 확보가 어려워 고민하던 중 건축가를 찾았다. 상업지역의 작은 대지는 충분한 법적 용적률을 찾기 어려웠다. 무엇보다 지역의 특성상 휴가를 보내러 오는 관광객이 많았다. 주말에 밀려드는 인파를 겨냥해 마을의 건물들이 철거되고 신축되는 과정에서 지역의 원주민이었던 건축주는 주변 건물과 차별화된 건축물을 짓고 싶어했다.
양평 용담리 근린생활시설 ‘층(層)’은 남한강이 보이는 뷰를 활용해, 저층에서 고층으로 올라갈수록 달라지는 풍경을 극대화한 건물이다. 크게 세 덩이로 나누어진 건물을 사용 시간에 따라 프로그램을 배치했다. 사무소와 카페를 고층에 배치하고, 상가는 저층에 배치했다. 층마다 다른 형태와 뷰를 느낄 수 있어 ‘층(層)’이라고 이름 지었다.
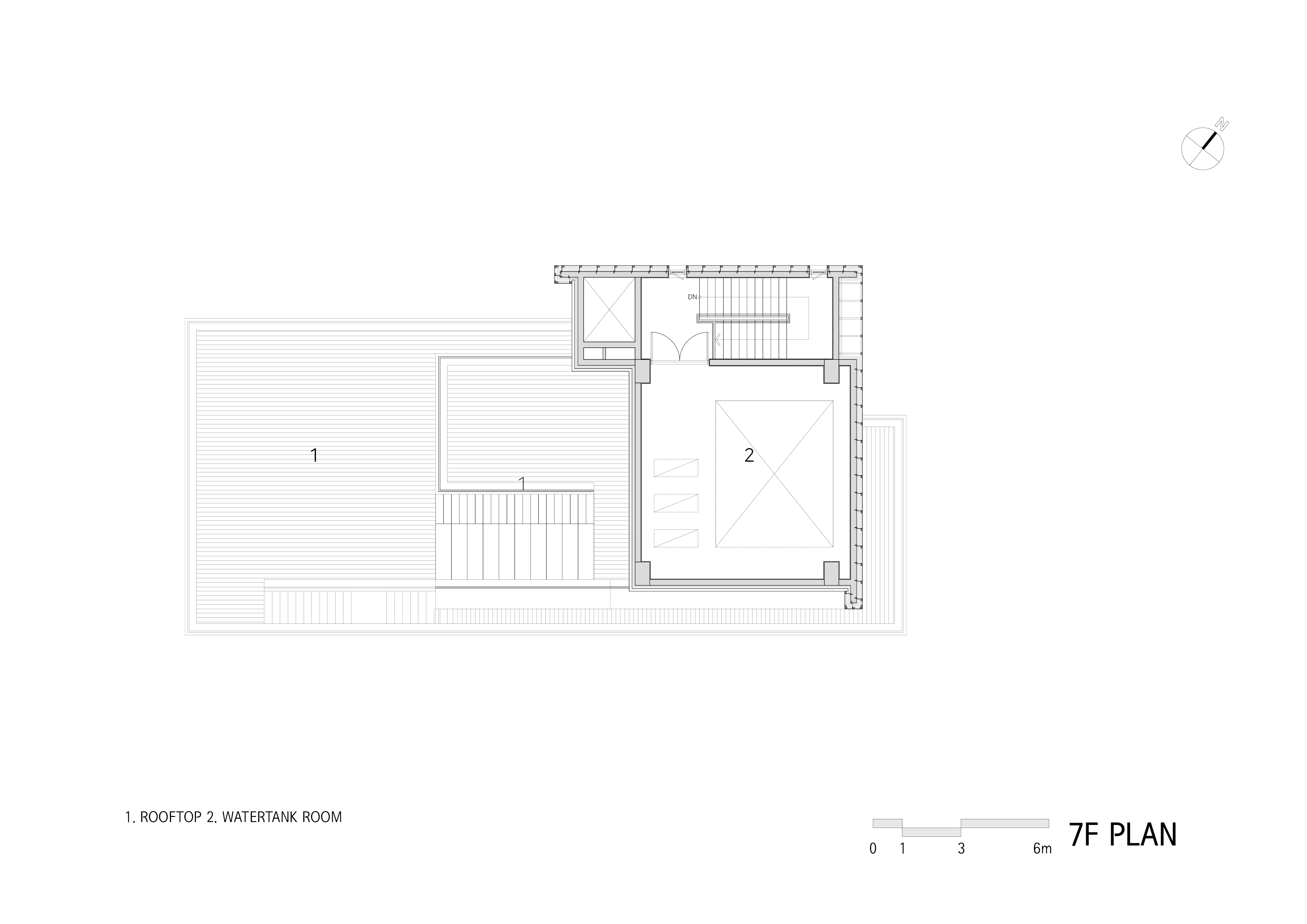
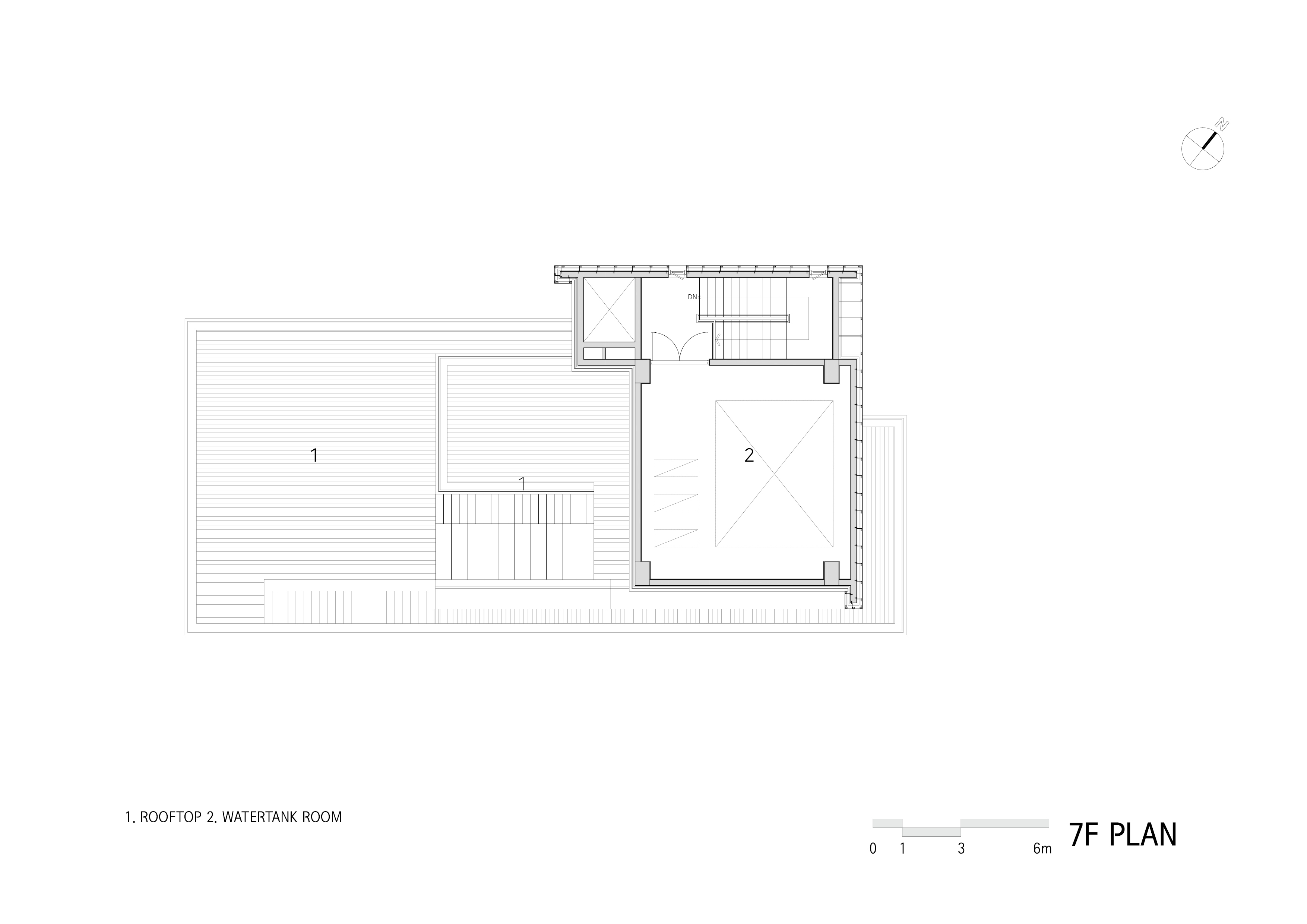
대지는 세미원 관광지와 가깝고, 3층 이상부터 하천을 조망할 수 있는 곳이었다. 또한, 인접 대지와 대상지 모두 홍수 관리구역에 포함되어 지하주차장을 설치할 수 없었다. 1층 임대공간을 포기하고 주차장을 두게 되면 사업성이 떨어지기 때문에, 주변 건물은 3층 높이의 소규모 건물로 지어졌다. 대지 내의 잠재력을 최대한 활용하고자 각종 법규를 검토했고, 건폐율 확보와 주차장 설치 대안, 홍수관리지역 지하층 설비 공간을 고민한 끝에 해법을 찾아냈다. 이에 더해 주변 건물보다 많은 층을 쌓아 다른 높이어서 하천과 강을 바라볼 수 있는 최적의 공간을 만드는 것으로 설계 방향을 잡아나갔다.
건축주는 1층 공간을 분할 임대하고, 2층에 식당을 운영하고자 했다. 2층의 접근성을 개선하기 위해, 전용 출입구를 인지할 수 있도록 배치했고, 식당 테이블에 맞추어 저층부를 디자인했다. 또한, 상층부는 저층부와 달리 마을 주민을 위한 공간이 되길 바랐고, 테라스 등을 활용해 층마다 다른 디자인이 되도록 했다. 층마다 달라지는 뷰는 테라스에서 극대화된다. 건물의 장점인 수공간을 내부로 끌어들여 감각적인 경험을 하게 하고, 층별로 나누어진 테라스가 연결되며 풍경을 이어서 감상할 수 있게 했다.
마을의 건물들이 신축되는 과정에서 밝은색의 건물이 사라지는 것을 건축주는 아쉬워했다. 주변 건물과 조화를 이루면서도 테라스와 커튼월이 보여줄 수 있는 멋진 풍광을 살리고, 인지성을 높일 수 있는 밝은 건물로 디자인했다. 박판세라믹과 커튼월은 빛을 통해 건물과 주변은 더 밝게 빛나며, 특히 커튼월로 흘러나오는 내부 조명은 더하지도 덜하지도 않게 마을을 은은하게 비춘다.






ⓒHanul Lee
























Architect 라움 건축사사무소 | Raum Architecture
Location Yangseo-Myeon, Yangpyeong-Gun, Gyeonggi-Do , Republic of Korea
Program Commercial
Site area 410.00㎡
Building area 253.53㎡
Gross floor area 1194.71㎡
Building scope 7F
Building to land ratio 65.51%
Floor area ratio 387.80%
Design period 2020. 4 - 7
Construction period 2020. 7 - 2021. 10
Completion 2021
Principal architect Jaewoong Bang
Project architect Geunyong Jang, Hunhyun Park
Construction Seo-ro construction
Photographer Hanul Lee
해당 프로젝트는 건축문화 2022년 10월호(Vol. 497)에 게재되었습니다.
The project was published in the October, 2022 recent projects of the magazine(Vol. 497).
October 2022 : vol. 497
Contents : RECORDS About the Changed Lifestyle and Living Space, ‘The 14th Seoul Architecture Festival’ 달라진 생활과 주거 공간에 대하여, '제14회 ‘2022 서울 건축문화제’ : NEWS / COMPETITION / BOOKS : SKETCH Free City, a Scene
anc.masilwide.com
'Architecture Project > Commercial' 카테고리의 다른 글
| Makesea Coffee (0) | 2023.01.17 |
|---|---|
| Oreum (0) | 2023.01.06 |
| Sinsa 507.5 (0) | 2023.01.04 |
| RIVERAIN (0) | 2023.01.02 |
| HALITE PLATZ (0) | 2022.12.28 |
마실와이드 | 등록번호 : 서울, 아03630 | 등록일자 : 2015년 03월 11일 | 마실와이드 | 발행ㆍ편집인 : 김명규 | 청소년보호책임자 : 최지희 | 발행소 : 서울시 마포구 월드컵로8길 45-8 1층 | 발행일자 : 매일



