
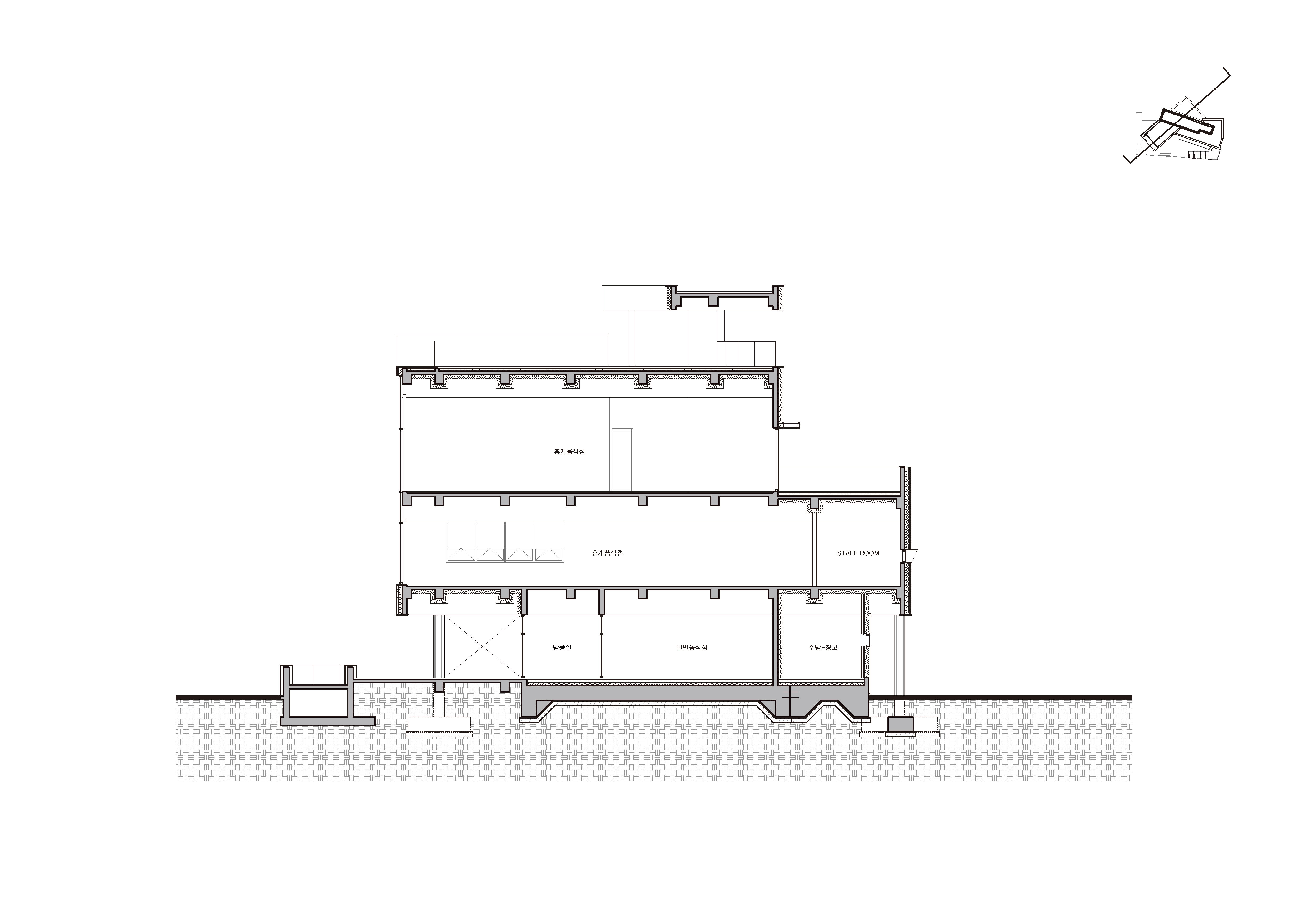
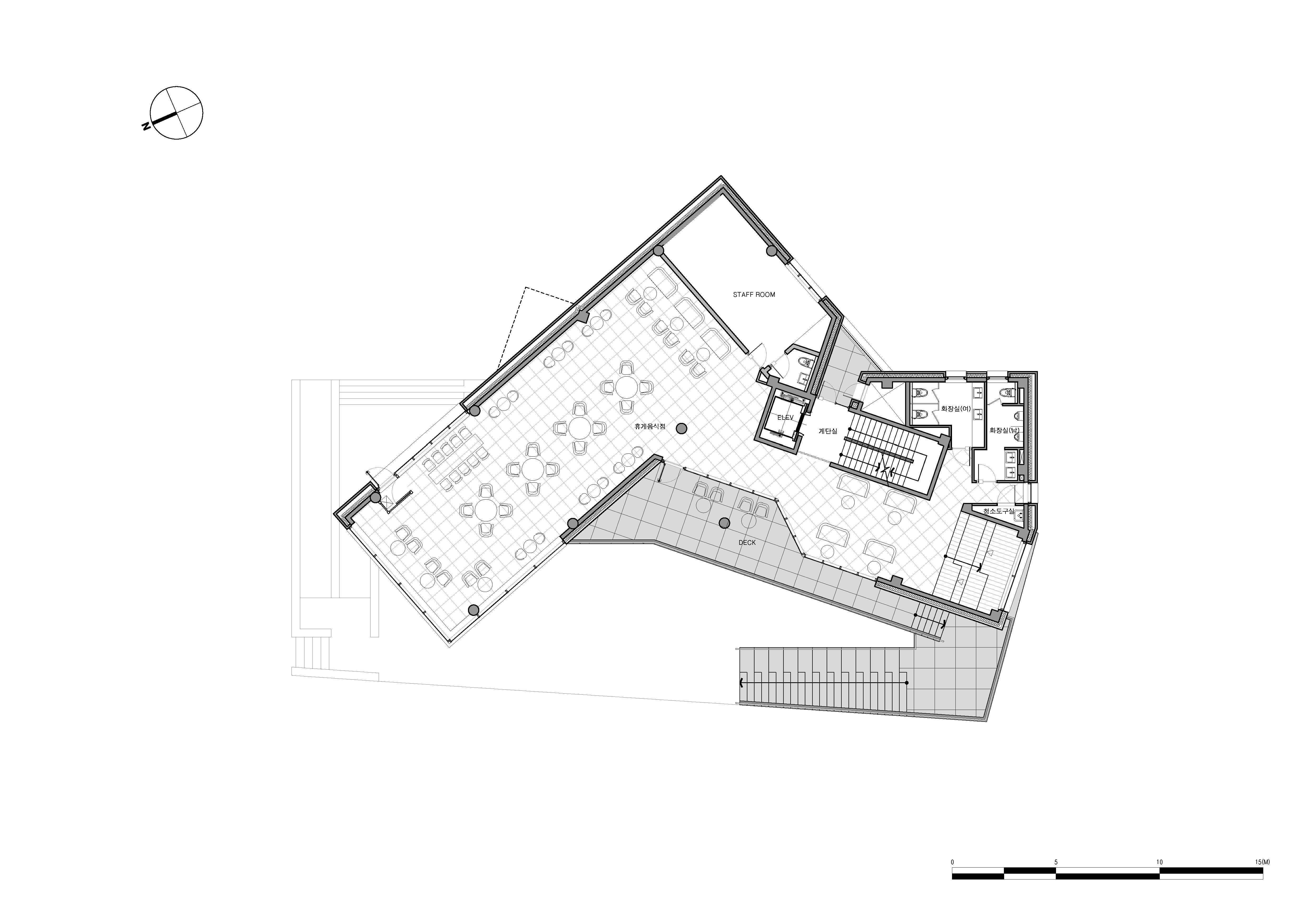
RIVERAIN is standing opposite Uiam Lake. Bongui Mountain is adjacent to the east of the site, Samak Mountain and Legoland to the west, and you can see downtown Chuncheon at a glance to the south. The architect, who wanted to create a space to enjoy the glitter of the sunset falling over the ripple of Uiam Lake while feeling the scenery of Chuncheon, designed it thinking about how people would see it in the space, not the building to be seen by people. This major design orientation made it possible to set the axes of various buildings and to see new landscapes at each intersection. Visitors to RIVERAIN will enjoy the scenery of Uiam Lake, which is approaching like a new scene, whenever they turn their heads while walking through space.

리버레인
리버레인은 의암호와 마주보고 서 있다. 대지의 동쪽으로는 봉의산, 서쪽으로는 삼악산, 레고랜드가 이웃하며 남쪽으로는 춘천 시내를 한눈에 볼 수 있다. 춘천의 풍경 그대로를 느끼며 의암호의 윤슬 위로 떨어지는 노을의 반짝임을 바라보며 즐기는 공간을 만들고자 했던 건축가는 사람들에게 보여지기 위한 건축물이 아닌 사람들이 이 공간에서 어떻게 볼 것인지를 고민하며 설계했다. 이 주요한 설계 방향은 다양한 건축물의 축을 설정하도록 만들었고, 각각의 교차점에서 움직일 때마다 새로운 풍경을 볼 수 있도록 했다. 리버레인의 방문객들은 공간을 걸으며 고개를 돌릴 때 마다, 마치 새로운 장면처럼 다가오는 의암호의 풍경들을 즐길 것이다.


























Architect (주)건축사사무소 유덕건축 | YUDEOK ARCHITECTS INC.
Location Yeongseo-ro, Chuncheon-si, Gangwon-do, Republic of Korea
Program Neighbourhood Living Facility
Site area 1,622㎡
Building area 424.98㎡
Gross floor area 1,057.24㎡
Building scope B1, 4F
Building to land ratio 26.20%
Floor area ratio 65.18%
Design period 2020. 6 - 2021. 2
Construction period 2021. 2 - 12
Completion 2021. 12
Principal architect / Project architect Dukgyu Cho, Seokjin Hong
Design team Architecture design_Sanggwi Lee, Mina Park, Yongjoong Kwon, Yunji Won
Interior design H_WORKS DESIGN STUDIO
Structural engineer Optima Structural Engineering
Mechanical and Electrical engineer YE-KANG Engineering
Construction SAMYANGSA
Client Kihwan Jung
Photographer Joonhwan Yoon
해당 프로젝트는 건축문화 2022년 10월호(Vol. 497)에 게재되었습니다.
The project was published in the October, 2022 recent projects of the magazine(Vol. 497).
October 2022 : vol. 497
Contents : RECORDS About the Changed Lifestyle and Living Space, ‘The 14th Seoul Architecture Festival’ 달라진 생활과 주거 공간에 대하여, '제14회 ‘2022 서울 건축문화제’ : NEWS / COMPETITION / BOOKS : SKETCH Free City, a Scene
anc.masilwide.com
'Architecture Project > Commercial' 카테고리의 다른 글
| The Floor (0) | 2023.01.05 |
|---|---|
| Sinsa 507.5 (0) | 2023.01.04 |
| HALITE PLATZ (0) | 2022.12.28 |
| STORY-CEPTION (0) | 2022.12.28 |
| LIME-RHYME (0) | 2022.12.26 |
마실와이드 | 등록번호 : 서울, 아03630 | 등록일자 : 2015년 03월 11일 | 마실와이드 | 발행ㆍ편집인 : 김명규 | 청소년보호책임자 : 최지희 | 발행소 : 서울시 마포구 월드컵로8길 45-8 1층 | 발행일자 : 매일



