
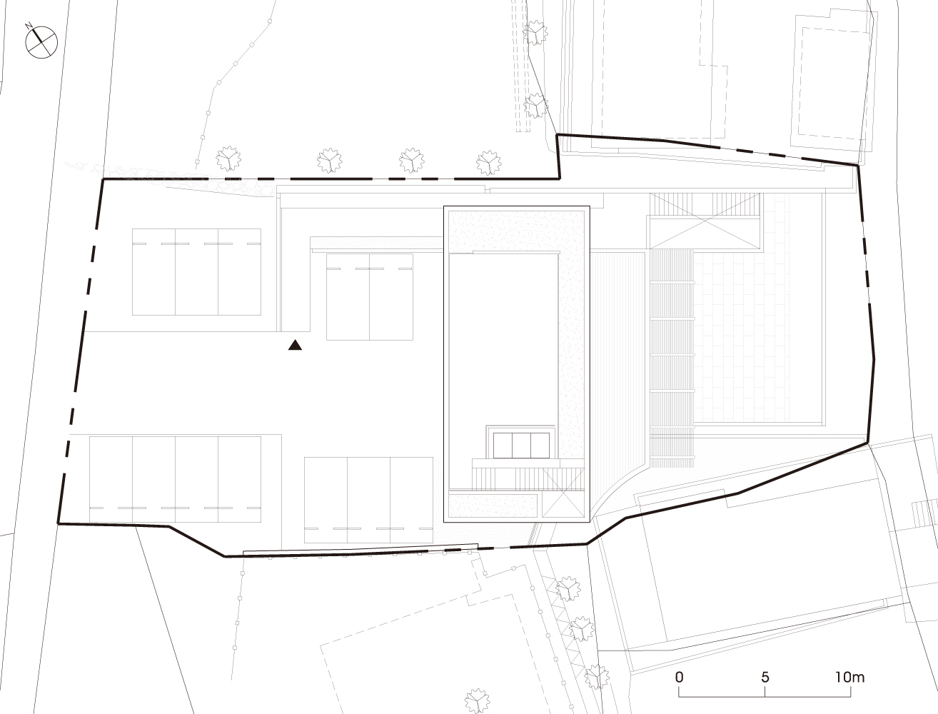
It would not be an overstatement to say that the Gijang and Ilgwang areas, which have good sea views have become battlegrounds for cafes. Instagram and Pandemic have had a big impact. This project was to add another cafe to the Gijang coastal road. The site is located at the edge of a fishing village, between old one to two storey sashimi shops and houses that are no longer in business. There are no majestic rocks in the sea here, nor can you find a common sea pine. The sea is 30m away from the site, and the space between them is a daily space for fishermen to dry kelp. The beginning of the plan was to think about what kind of attitude the cafe to be built here should have.
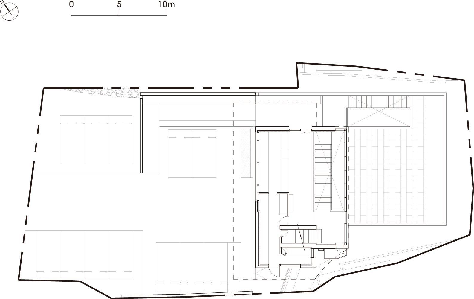
The site is two lots, facing the fishing village and the main road behind it, and there is a height difference of 8m. Even though it is a staircase, I wanted the village to be connected by making a way to the main road 8m above the village. The volume of the building was determined in such a way that two floors are vertically alternated and combined so as not to damage the atmosphere of the village. The materials were designed to match the rough concrete texture of the breakwater, the village road pavement, and the tetrapod, with Euroform exposed concrete for the lower two layers and pine plywood exposed concrete for the upper two layers.
The area on the third floor where visitors enter from the main road was minimized so as not to block the entire view of the sea when the building was built. An open window and an outside space were planned to create a view that opens to the ocean. The water space planned along the access road is a transition space with the sound of calm water and the wind rushing through bamboo trees. In addition, the somewhat scattered scenery seen in the interior and exterior spaces was edited. Unnecessary elements were cut out, and the distant ocean was brought closer. The building is terraced according to the topography, and the view was controlled by placing balconies and eaves on each floor.

메이크씨 커피
최근 바다 조망이 좋은 기장, 일광 지역은 카페 격전지라고 해도 지나치지 않다. 인스타그램과 코로나19의 영향이 크다. 이 프로젝트는 기장 해안길에 또 하나의 카페를 더하는 일이었다. 대지는 어촌마을 끝자락의 더이상 영업을 하지 않는 1~2층 규모의 낡은 횟집들과 주택들 사이에 위치하고 있다. 이곳의 바다는 근사한 바위도 없고, 흔한 해송 하나 없다. 바다는 부지에서 30m나 떨어졌고, 그 사이는 다시마를 말리는 어민들의 일상공간이다. 이곳에 들어서는 카페건축은 어떤 자세이어야 하는가 하는 고민이 계획의 시작이었다.
대지는 두 필지로 어촌마을과 뒤쪽 주 도로에 접하고 8m 높이차가 있다. 비록 계단이긴 하지만 마을에서 8m 위에 주 도로로 이어지는 길을 내어주어 마을과 함께하고자 하였다. 마을의 분위기를 해치지 않게 두 개 층씩 수직으로 엇갈려 결합하는 방식으로 건물의 볼륨을 결정하였다. 재료는 방파제와 마을의 도로포장, 테트라포드의 거친 콘크리트 질감에 맞춰 하부 두 개 층은 유로폼 노출콘크리트, 상부 두 개 층은 송판노출콘크리트로 계획하였다.
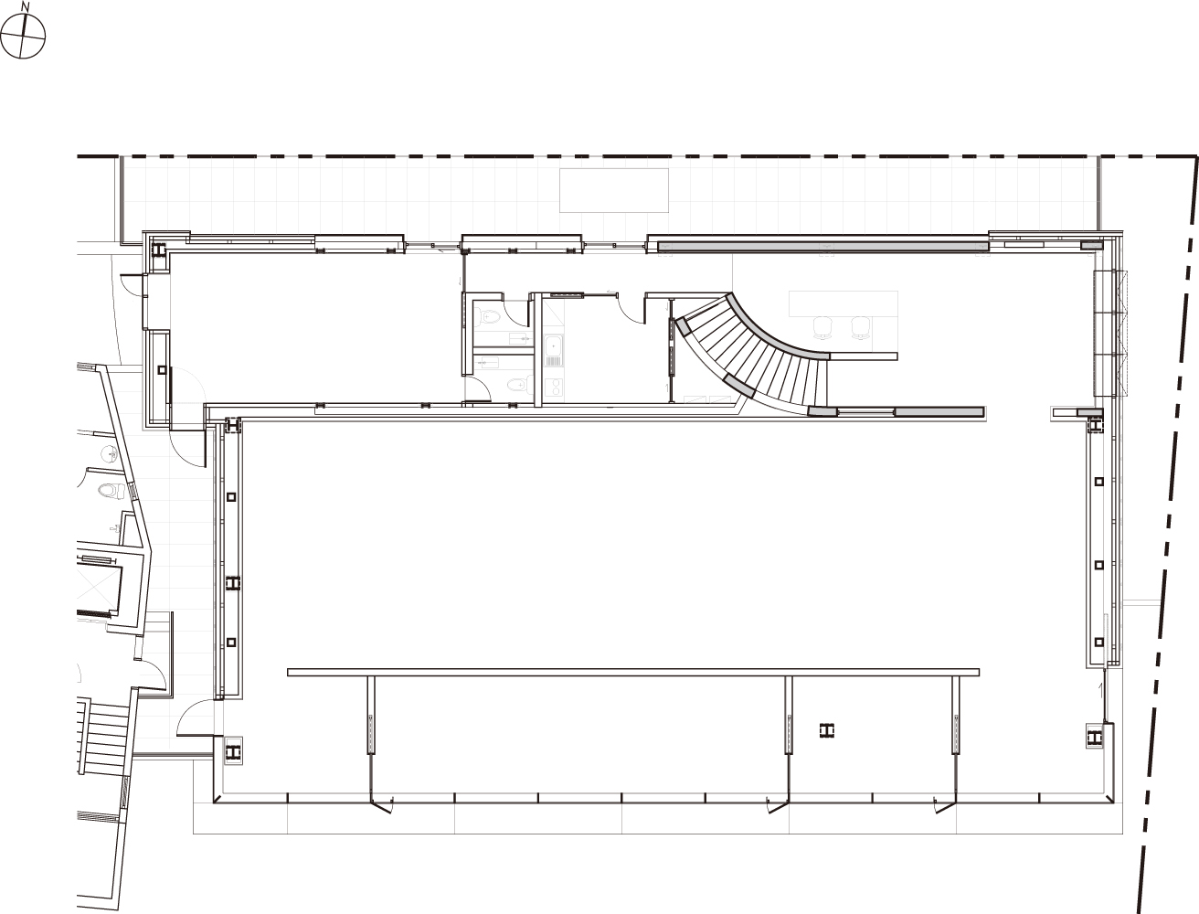
건물이 들어서면서 바다를 모두 가리지 않게 주도로에서 진입하는 3층 면적을 최소화하였고, 바다풍경을 열어주기 위해 열린 창과 외부공간을 두었다. 진입로를 따라 계획된 수공간은 잔잔한 물소리와 대나무의 바람소리가 있는 전이공간이다. 그리고 내부와 외부공간에서 보이는 다소 산만한 풍경을 편집하였다. 불필요한 요소는 잘라내고, 멀리 떨어져있는 바다는 가까이 끌어왔다. 지형에 맞춰 건물을 계단식으로 구성하였고, 층마다 발코니와 처마를 두어 조망을 조절하였다.
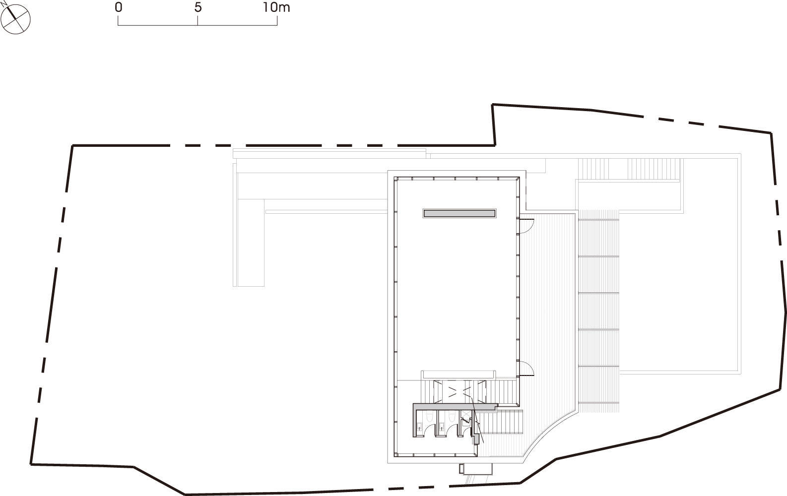
처마는 다양한 그림자를 만들며, 눈부심 없는 내부공간을 만든다. 조망의 간섭이 많은 저층부는 발코니를 수공간으로 계획하여 바다를 보다 가깝게 느낄 수 있게 하였다. 이용자들은 최소한의 벽과 발코니, 처마에 의해 형성된 프레임을 통해 편집된 풍경을 마주하게 된다. 3층은 또다른 1층으로 주출입과 서비스가 이루어지며, 내부동선의 출발점이 된다. 확장된 외부발코니를 계획하여 넓은 앞마당으로 인지하도록 하였다. 2층은 바다 밑으로 침잠하는 개념으로 다소 어둡고 내밀하며, 4층은 멀리 바다를 내려다보는 밝고, 경쾌한 공간이다. 그에 어울리도록 가구의 색채와 형태, 조경, 내부마감을 계획하여 층마다 다른 느낌의 바다를 만날 수 있다.














Architect KAGA Architects & Planners│(주)가가건축사사무소
Location 754, Ilgwang-ro, Ilgwang-eup, Gijang-gun, Busan, Republic of Korea
Use Neighborhood Living Facilities, Cafe
Site area 756㎡
Built area 335.13㎡
Total floor area 595.34㎡
Floor 4F
Structure Reinforced concrete construction
Exterior finish Exposed concrete, Granite
Interior finish Exposed concrete, Tile, Paint
Design period 2019. 5 - 2019. 12
Construction period 2020. 2 - 2020. 11
Lead architect Yong-Dae Ahn
Design team Jin-Soo Kim, Ye-Sol Han, Beom-Jin Jeong
Cooperation Mintech Co., Ltd, Gwangmyeong Total Engineering Co., Ltd
Construction Kihae general construction Co., Ltd
Photographer Joonhwan Yoon
해당 프로젝트는 건축문화 2022년 10월호(Vol. 497)에 게재되었습니다.
The project was published in the October, 2022 recent projects of the magazine(Vol. 497).
October 2022 : vol. 497
Contents : RECORDS About the Changed Lifestyle and Living Space, ‘The 14th Seoul Architecture Festival’ 달라진 생활과 주거 공간에 대하여, '제14회 ‘2022 서울 건축문화제’ : NEWS / COMPETITION / BOOKS : SKETCH Free City, a Scene
anc.masilwide.com
'Architecture Project > Commercial' 카테고리의 다른 글
| BEEERPARK, Huicheng (0) | 2023.03.08 |
|---|---|
| Nouaison Sungsu (0) | 2023.03.07 |
| Oreum (0) | 2023.01.06 |
| The Floor (0) | 2023.01.05 |
| Sinsa 507.5 (0) | 2023.01.04 |
마실와이드 | 등록번호 : 서울, 아03630 | 등록일자 : 2015년 03월 11일 | 마실와이드 | 발행ㆍ편집인 : 김명규 | 청소년보호책임자 : 최지희 | 발행소 : 서울시 마포구 월드컵로8길 45-8 1층 | 발행일자 : 매일



