
The client wanted to renew the old-fashioned atmosphere of the surrounding neighborhood, and above all wanted the building to stand out. Despite the multiple changes of usage and extensions in the past, the client's request of major renovation, not new construction, seems to come from the extraordinary affection and respect for the history of this land. We thought it would be nice if it was a precious feeling like halite that was discovered after the dedicated effort to trim and carve out what had been buried for eons.
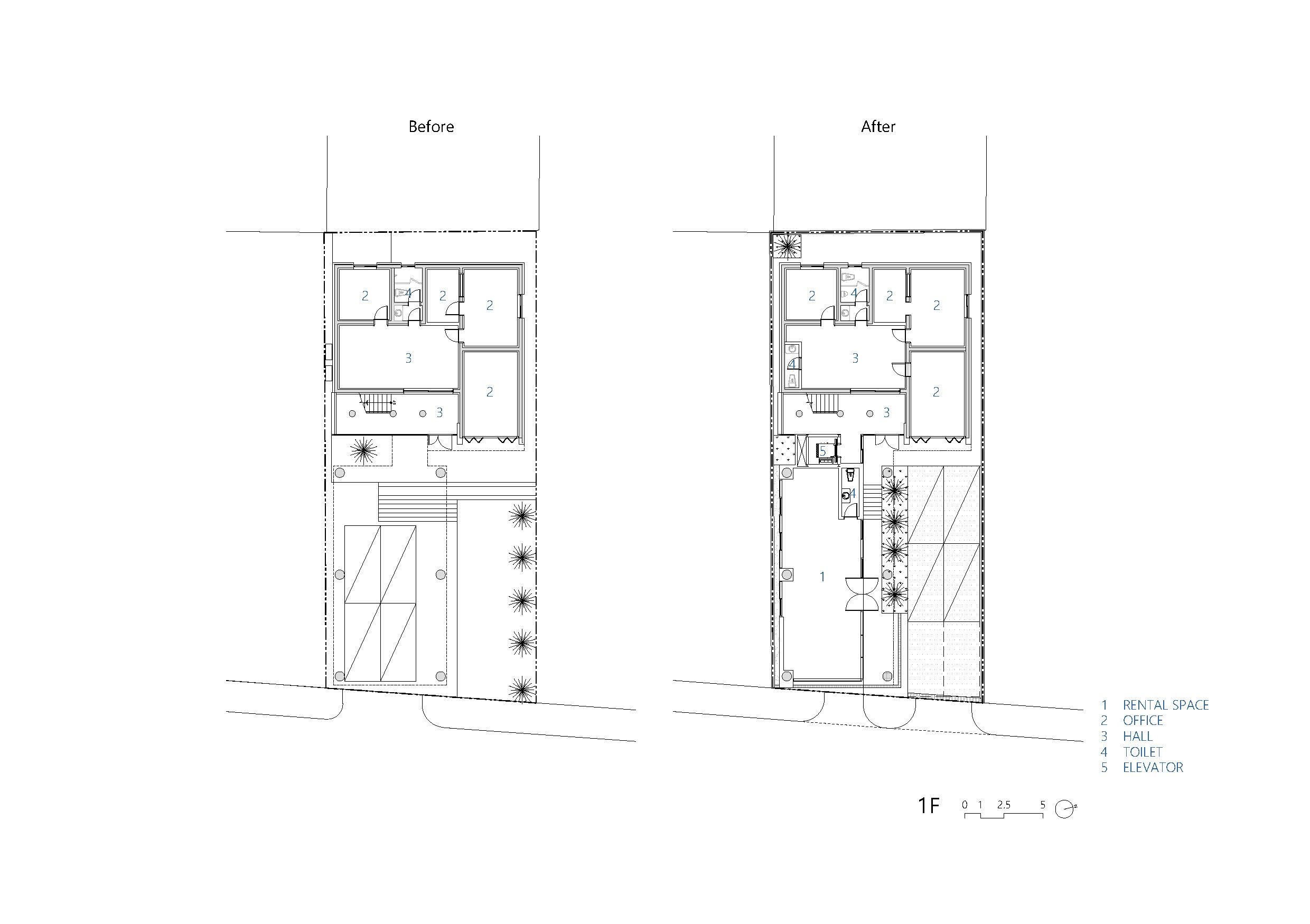
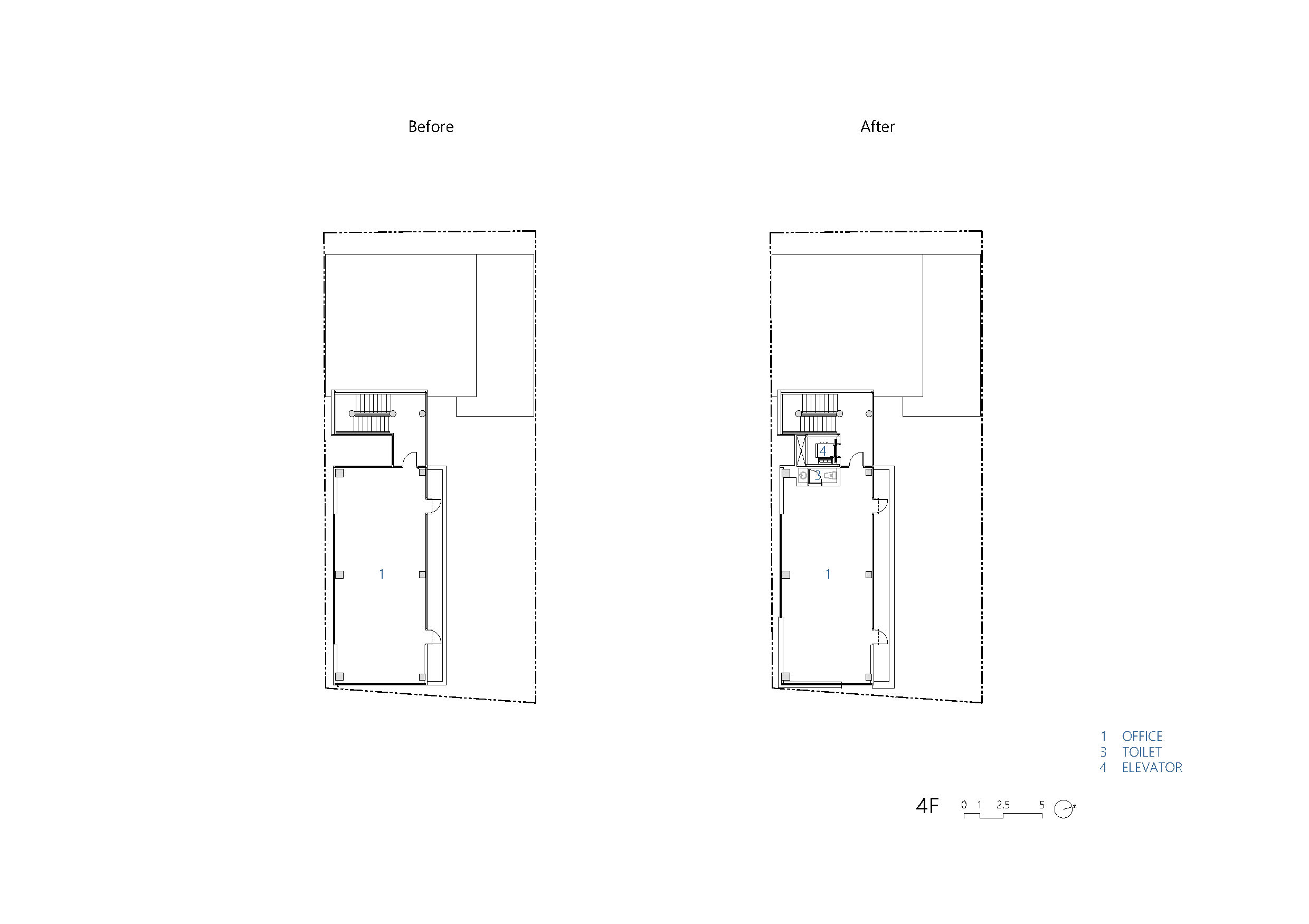
The efforts to revitalize this street at any rate seemed to have been going on for a long while besides ours. The building on the left has the yellow wall, and the building on the right has the blue window. What is left out in this place full of all kinds of colors from blue sky to the green leaves of the tree in front of the building is definitely the color of red. We proposed to the client that we should actively use the sense of 'tone-on-tone', and boldly painted colors. As the most feasible way to respond to the street in terms of business, we thought of relocating the existing piloti parking lot to the outdoor place, then expanding the remaining space and building a new elevator. Given that it is highly likely each floor is separately rented out due to the nature of the size of the building and the nature of the street, the locations of the elevator and the lobby were arranged closest to the staircase located in the rear side of the building.
For this reason, it was necessary to arrange the location of the main entrance to the building delicately so that there was no loss or interference in the 1st floor space for rent. The composition of lines and surfaces based on the thickness and spacing of the lines and the depth that may be seen as a surface depending on the angle of the louver reminds us of pink halite. We hope that the Halite Platz will make a complementary color contrast with the green trees and blue sky on a sunny summer day, and matches the yellow leaves and white snow, thus contributing to a more active street as a lively organism wherever it is viewed from.

클라이언트는 주변 동네의 오랜 시간 때 묻은 분위기를 쇄신하고자 무엇보다 건축물이 돋보이길 원했다. 과거의 여러 번의 용도변경과 건축물 증축을 하였음에도 불구하고 이번에도 신축이 아닌 대수선을 요청하는 바로는 이 땅의 역사를 존중하려는 남다른 애정이 있었던 것 같다. 억겁의 세월 동안 묻어져 있던 것을 다듬고 깎아낸 노력 끝에 발견해 낸 암염과 같은 귀중한 느낌이면 좋겠다고 생각했다.
이 거리를 어떻게든 활성화하려는 노력이 우리 말고도 오랫동안 지속되었나 보다. 좌측 건물은 노란색 벽, 우측 건물은 파란색 창. 파란 하늘과 건축물 앞 푸른 나뭇잎까지 온갖 색이 가득한 이곳에 남겨진 것은 단연 붉은 기운이 있는 색이었다. 존재감을 드러내고 좀 더 입체감을 표현하기 위해서는 톤온톤(Tone-on-tone)의 감각을 적극적으로 사용하는 것으로 클라이언트에게 제안, 과감하게 칠을 해 나갔다. 우리는 가로에 대응하는 가장 사업성 높은 방법으로서 기존 필로티 주차장을 옥외로 위치 이동시키고, 대신에 그 공간을 증축하는 것과 엘리베이터를 새롭게 설치했다. 건축물 규모 및 가로의 특성상 각 층 따로 임대를 둘 가능성이 크다는 것을 감안하여 엘리베이터 및 로비의 위치를 기존의 건축물 후면 계단실과 최대한 가까운 곳에 배치했고, 건축물로 진입하는 주 출입구의 위치를 1층 임대공간의 손실 및 간섭이 없도록 해야 했다. 선의 두께감과 간격, 루버의 각도에 따라 면으로 보일 수 있는 깊이를 바탕으로 한 선과 면의 컴포지션은 마치 핑크색 암염(Halite)이 떠오른다. 하라이트 플라츠는 화창한 여름날 푸른 나무와 파란 하늘로 보색대비를 이루고, 노란 낙엽과 하얀 눈발에도 어울리는 생동감 넘치는 유기체로, 좀 더 활발한 가로를 만드는 데 보탬이 되길 희망한다.

























Architect CIID | 씨드
Location Hapjung, Mapo-gu, Seoul, Republic of Korea
Program Commercial facilities
Site area 402.3㎡
Building area 240.08㎡
Gross floor area 694.57㎡
Building scope B1, 4F
Building to land ratio 59.68%
Floor area ratio 166.38%
Design period 2020. 6 - 8
Construction period 2020. 8 - 2021. 1
Completion 2021. 1
Principal architect Ikhyeon Ju
Project architect Ikhyeon Ju, Jaejun Yoo
Design team Ikhyeon Ju, Jaejun Yoo
Structural engineer Base Structural Engineering
Construction Jaekwang An, Lawoo Construction
Photographer Yousub Song
해당 프로젝트는 건축문화 2022년 9월호(Vol. 496)에 게재되었습니다.
The project was published in the September, 2022 recent projects of the magazine(Vol. 496).
September 2022 : vol. 496
Contents : RECORDS "SHINGIL MIDDLE SCHOOL" TO PROPOSE A NEW SCHOOL SPACE STRUCTURE THAT WON THE 40TH SEOUL ARCHITECTURE AWARDS 새로운 학교 공간 구조를 제안한 ‘신길중학교’ 제40회 서울시 건축상 대상 수상 : NEWS / COMPETITION
anc.masilwide.com
'Architecture Project > Commercial' 카테고리의 다른 글
| Sinsa 507.5 (0) | 2023.01.04 |
|---|---|
| RIVERAIN (0) | 2023.01.02 |
| STORY-CEPTION (0) | 2022.12.28 |
| LIME-RHYME (0) | 2022.12.26 |
| PROFUNDITY CROW (0) | 2022.12.23 |
마실와이드 | 등록번호 : 서울, 아03630 | 등록일자 : 2015년 03월 11일 | 마실와이드 | 발행ㆍ편집인 : 김명규 | 청소년보호책임자 : 최지희 | 발행소 : 서울시 마포구 월드컵로8길 45-8 1층 | 발행일자 : 매일



