
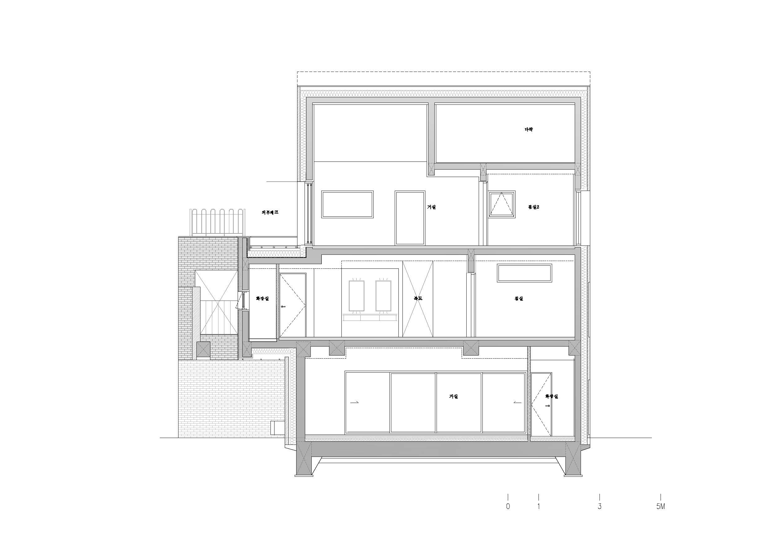
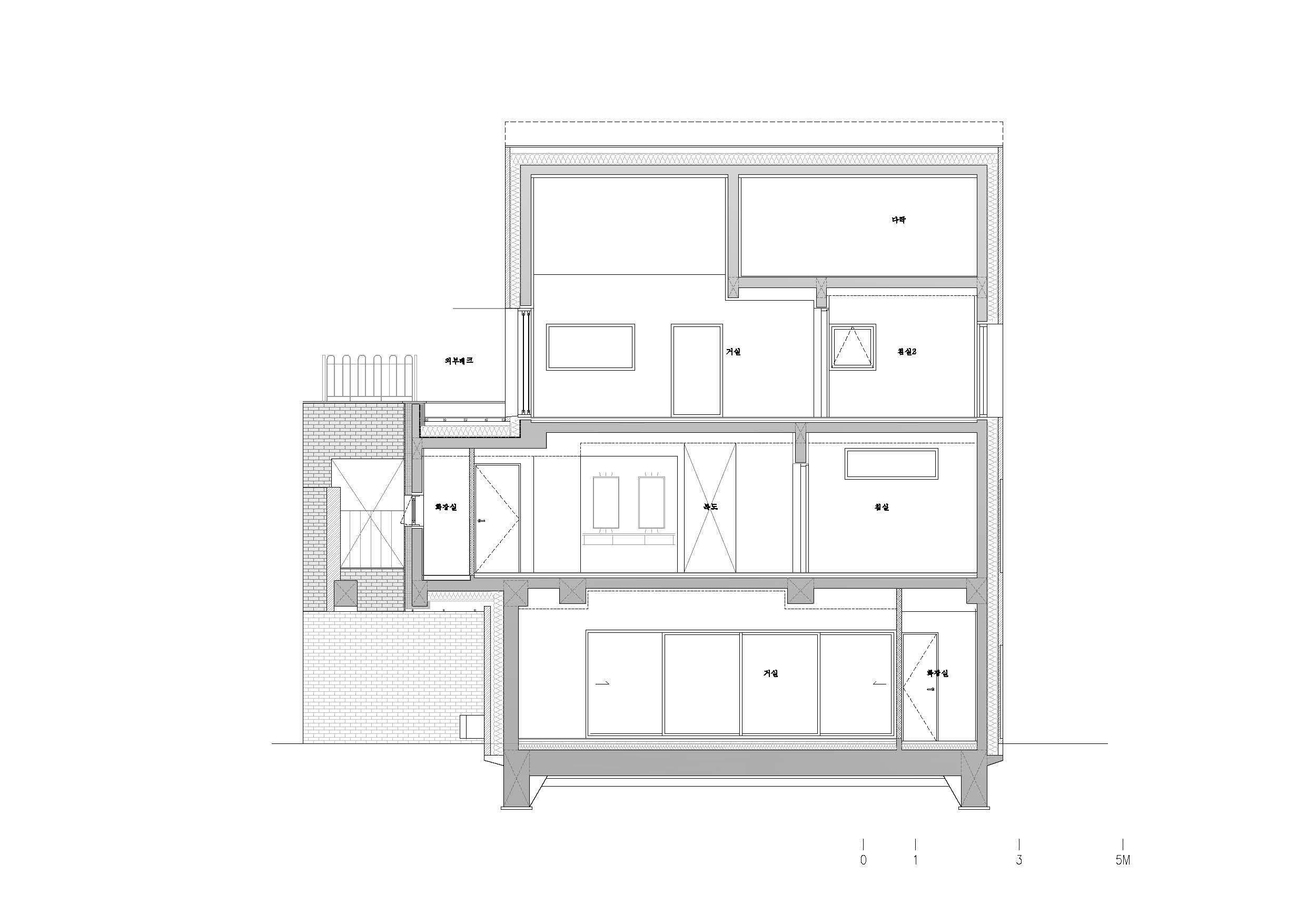
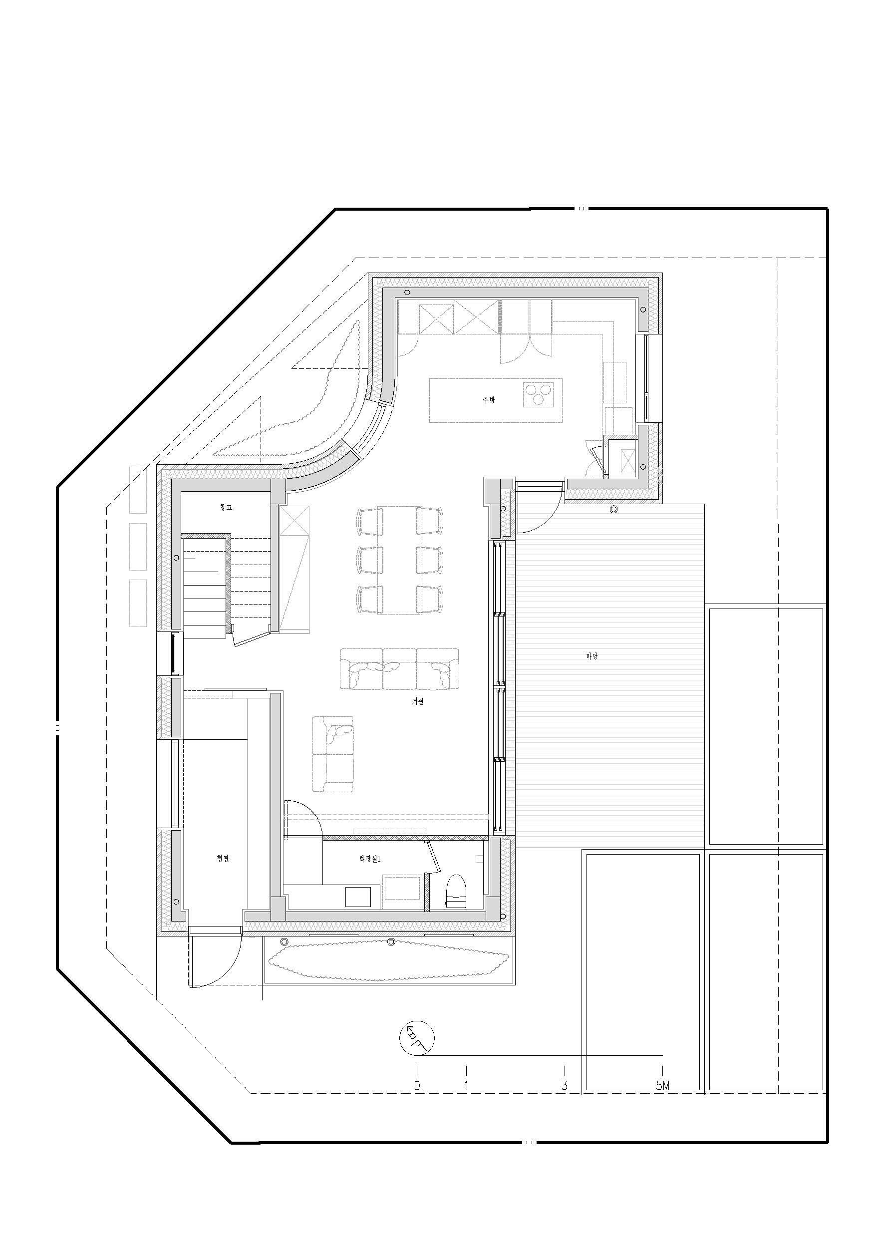
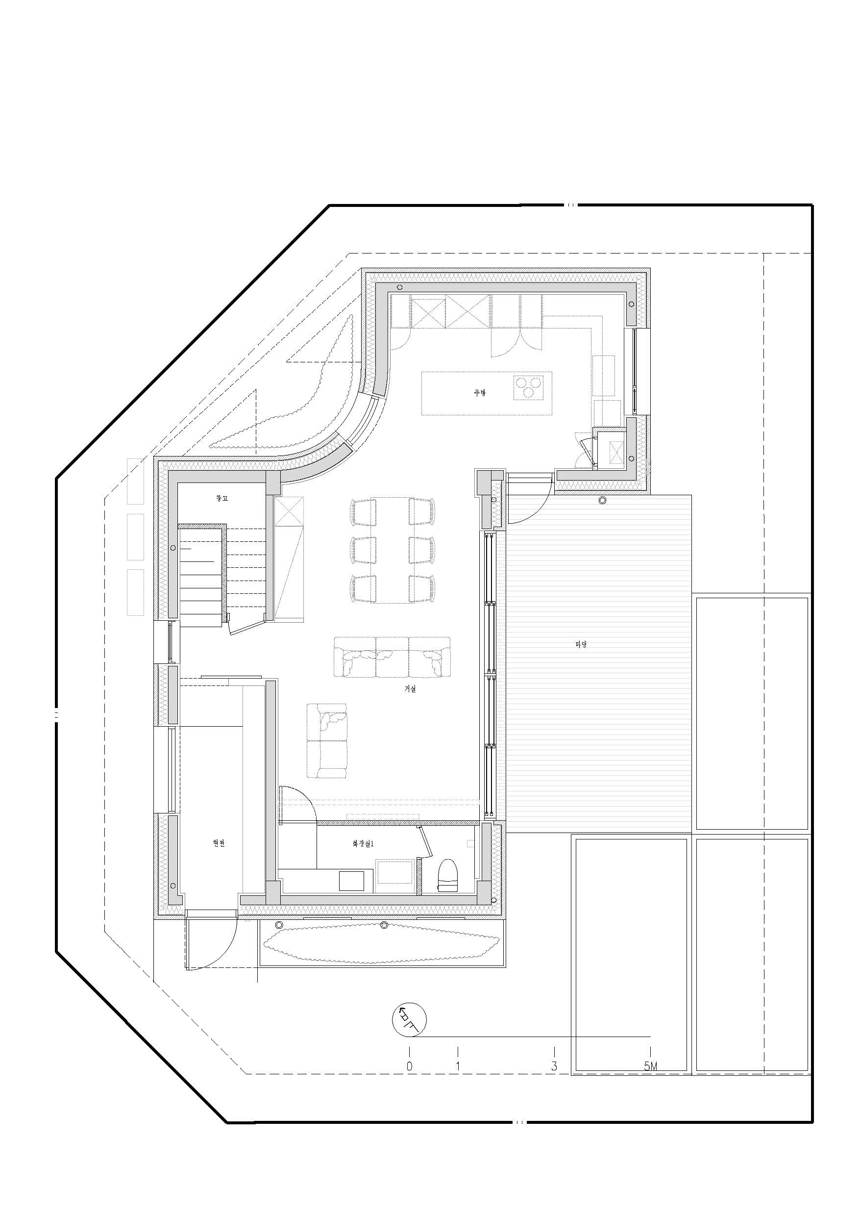
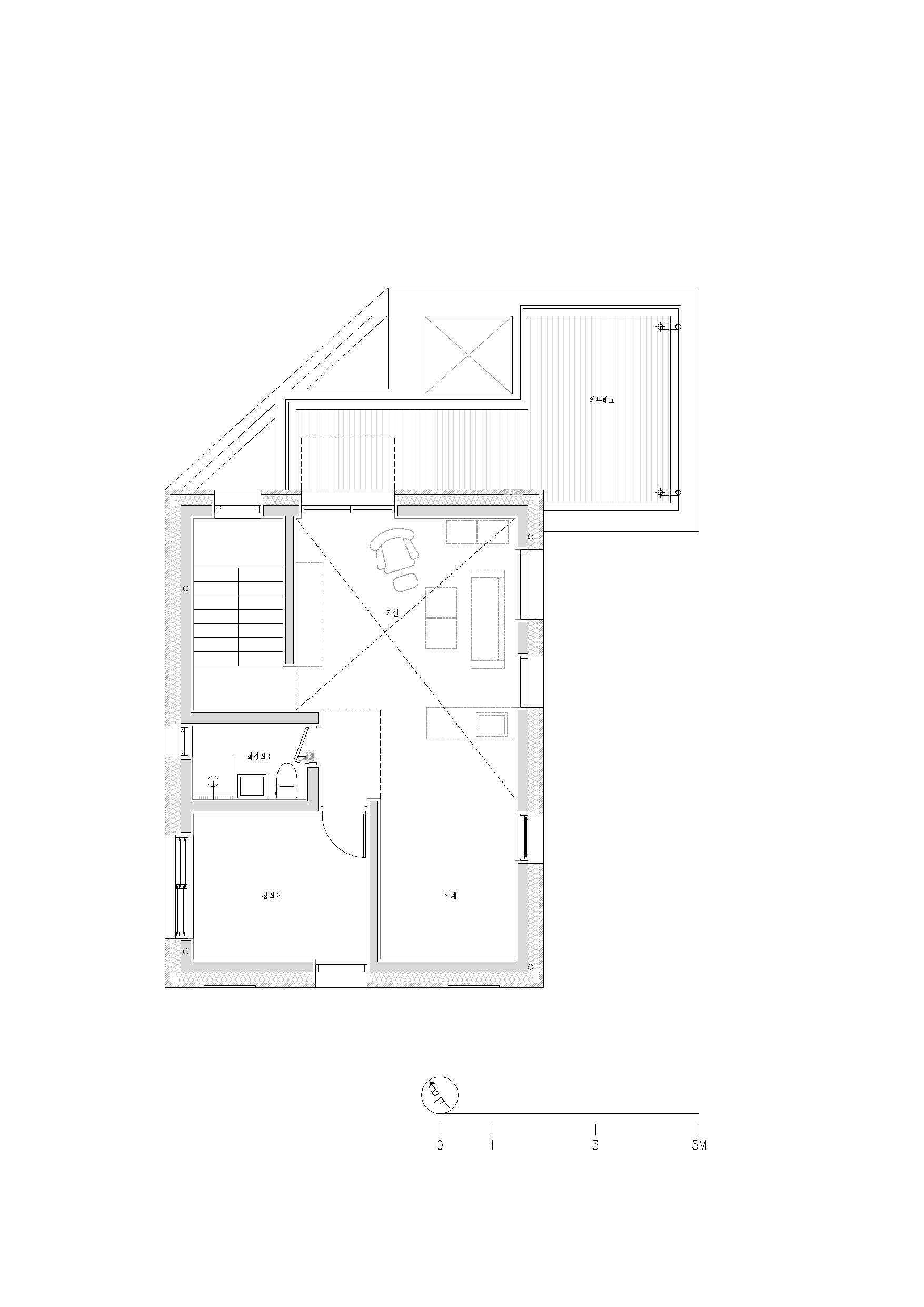
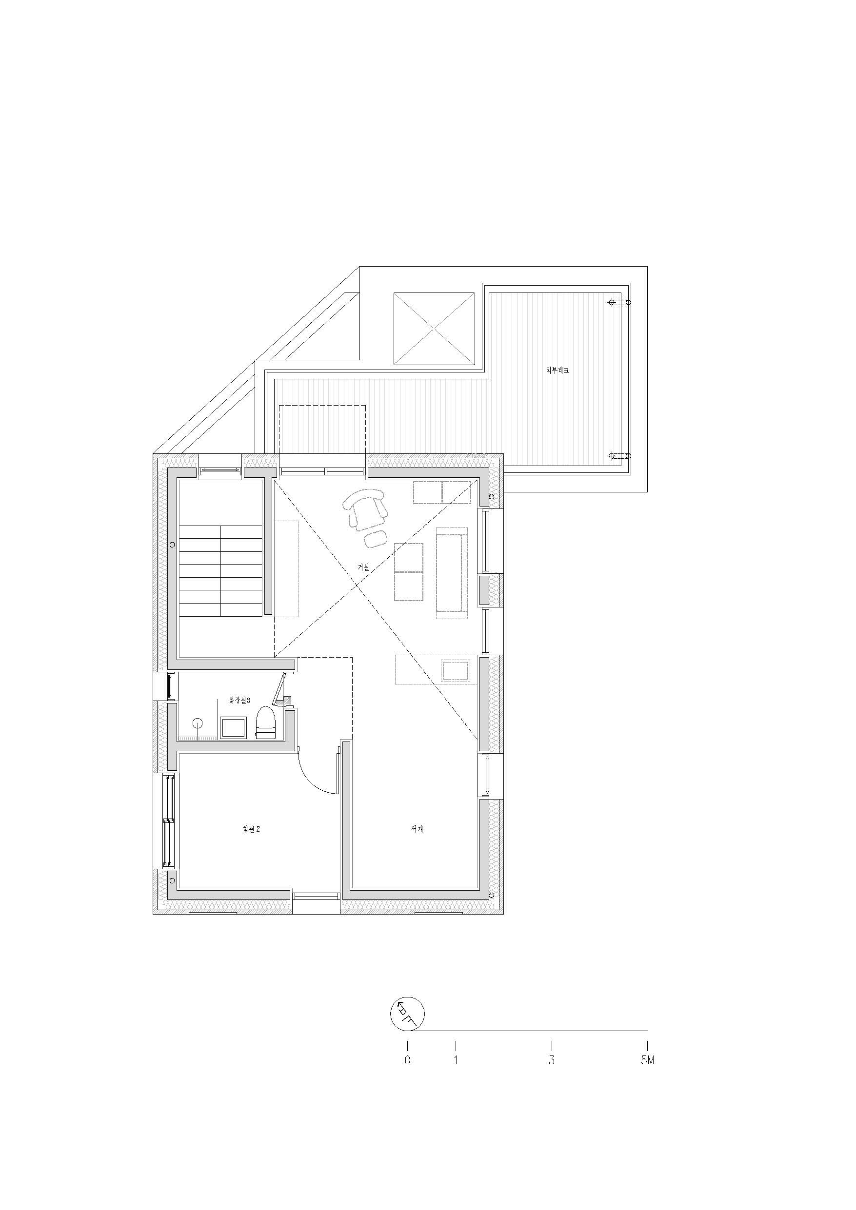
In small towns, there are regulations designated to maintain consistent architecture: Scale, limit line, roof shape, color, and so on. Houses with two to three floors strive to secure private space with a building-to-land ratio€of 30%. It might even be an obvious choice to secure a yard that is free of interference. We anticipated seeing an open town, but the view seen from the street is mostly expressionless.€Situated on the corner ground, Coco€House€is divided into roughly two elevations. The house is positioned in an L-shape, and its entry elevation has three windows, in addition to five shadow-like recessed niches. It is intended to diverge from displaying a rather rigid-looking elevation by adding a door that differs in size, in addition to slightly-slanted windows within the grid. The second visage is the diagonal part where the roads intersect. The corner consisting of curves, diagonal lines, and right-angled protrusions brings light into the house and protects privacy, while simultaneously wearing different expressions with its shape and shadows. In Coco House, you can find a maisonnette space with high ceilings, a yard for the family, and more detailed plans solely dedicated to the client. I thought perhaps the plan, which may seem too ordinary except for the bathroom on the second floor and exterior space, lost its initial intentions, resulting in an absence of the pleasure that can be experienced here. The ‘hotel-style bathroom,’ which the client strongly requested at the first meeting, makes this house unique. There is also a low window where a well-loved companion animal can see, and you can also look at the sky while sitting in the bathroom. The gently flowing light on the rounded wall, stretching from the entrance to the living room, shines on the family’s space. The client can invite guests to the house and watch the sun-setting sea from the third floor. These parts come together to create a space called a house. Things that were considered unessential will become meaningful in life.

코코네
작은 마을에 일관된 건축을 위한 규칙이 있다. 규모, 한계선, 지붕 모양, 색채 등. 2, 3층의 집들은 건폐율 30%로 개인 공간을 확보하기 위해 노력하고, 간섭에서 자유로운 마당을 확보하는 것은 당연할지 모른다. 열린 마을을 기대했지만 거리에서 바라본 모습은 대체로 무표정하다.
모서리 땅에 놓인 코코네는 크게 두 개의 입면으로 구분된다. ㄱ자로 배치되어 출입구 부분에는 3개의 창문이 있으며, 5개의 그림자처럼 보이는 입면을 연출했다. 격자 속 크기를 달리하는 문과 조금 비뚤어진 창으로 다소 딱딱한 입면의 모습을 벗어나도록 의도한 것이다. 두 번째 얼굴은 도로가 교차하는 대각 부분이다. 곡선과 사선 그리고 돌출하는 직각으로 이뤄진 모서리는 주택의 채광과 사생활 보호를 하는 동시에 조형과 그림자로 표정 짓는다. 코코네는 높은 천장을 가진 복층 공간과 가족들을 위한 마당, 그리고 건축주만을 위한 세심한 계획을 곳곳에서 살펴볼 수 있다. 2층에 있는 욕실과 외부공간을 제외하면 평범하게 보일 수 있는 평면은 최초 의도가 흐릿해지면서 이곳에서 경험할 수 있는 즐거움을 놓친 것은 아닐까 생각했다. 건축주와의 첫 만남에서 가장 강하게 요구한 ‘호텔식 욕실’은 이 집만의 독특함을 만든다. 가족에게 사랑받는 반려동물만 볼 수 있는 낮은 창도 있으며, 욕실에 앉아 하늘을 바라볼 수도 있다. 현관부터 거실까지 이어지는 둥근 벽으로 은근하게 흐르는 빛은 가족들의 공간을 비춘다. 건축주는 손님을 초대하여 3층에서 해가 지는 바다를 바라볼 수도 있다. 이런 부분들이 모여 집이라는 공간을 만든다. 중요치 않게 생각한 것도 살면서 의미를 가질 것이다.

























Architect 모호웍스건축사사무소 | MOHOWORKS
Location Baegotjeonwon-ro, Siheung-si, Gyeonggi-do, Republic of Korea
Site area 275.50㎡
Building area 82.31㎡
Gross floor area 218.03㎡
Building scope 3F
Design period 2020. 8 - 2021. 3
Construction period 2021. 4 - 10
Principal architect / Project architect Minho Lee
Photographer Yongsu Kim
해당 프로젝트는 건축문화 2022년 8월호(Vol. 495)에 게재되었습니다.
The project was published in the August, 2022 recent projects of the magazine(Vol. 495).
August 2022 : vol. 495
Contents : RECORDS FIVE ARCHITECTS FROM THREE TEAMS SELECTED FOR ‘2022 KOREA YOUNG ARCHITECTS AWARD’ 2022 젊은 건축가상에 선정된 3개 팀, 5명의 건축가들 : NEWS / COMPETITION / BOOKS : SKETCH THE FLASHING ELEMENTS / CRISTINA CORREA FREI
anc.masilwide.com
'Architecture Project > Single Family' 카테고리의 다른 글
| TINI M (0) | 2022.11.23 |
|---|---|
| BIRDHOUSE (0) | 2022.11.21 |
| BRICK VEIL (0) | 2022.10.28 |
| CANAL HOUSE HUMBEEK (0) | 2022.10.27 |
| HILLTOP HOUSE (0) | 2022.10.26 |
마실와이드 | 등록번호 : 서울, 아03630 | 등록일자 : 2015년 03월 11일 | 마실와이드 | 발행ㆍ편집인 : 김명규 | 청소년보호책임자 : 최지희 | 발행소 : 서울시 마포구 월드컵로8길 45-8 1층 | 발행일자 : 매일



