
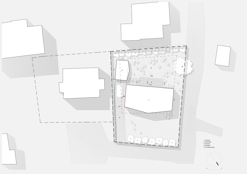
The house with the round window is in a dense block of private houses in Vilnius. 182㎡, two-story house with a small garage volume, which is an identical shape scaled to the appropriate size to fit one car.
The key wish from the clients was to have a big common space not divided by stairs in any way. So we chose to move the stairs out of the main perimeter of the house. This idea creates an interesting shape that looks different as you walk around the house. The north part of the house with the stairs has just one round window. It reminds us of a newly built birdhouse that waits for its dwellers.
Mirrored details across the house were an illusion to reflect the always changing surroundings, but not a lot, just a little bit. New houses, new people, sun, day, and night, just a glimpse of the surroundings that are reflected in the rainy look of mirrored details.
In the dark thermo wood façade mirrored details create a little bit of color that changes and makes it different with a small chat or dialog with the surroundings.
The garage volume created a private separation from the neighboring plot, but at the same time it was not attractive to have a volume in a private yard. So we mirrored it and, through illusion, extended the yard into the parallel world. It worked, it looks nice, and the clients love it.
The interior structure is divided into floors. The first floor has a living area, a guest bathroom, a utility room, and a guest - work room. The second floor has three bedrooms and two bathrooms, with a void to the first floor.
The south facade has a rhythmical window pattern so that the monolitic and laconic shape of a birdhouse can remain as strong as possible. A hanging terrace roof that corresponds to the overall composition of shapes makes an outdoor family space more inviting even when it rains.
The laconic shape of the newly built house is well visible in a very colorful surrounding, easy to identify as a contemporary structure, and creates a new path of new architecture in an older block of private houses.

버드 하우스
둥근 창문이 특징인 버드 하우스는 주택이 빽빽하게 밀집된 빌뉴스 블록에 있다. 2층 규모의 주택으로 차 한 대를 주차할만한 크기의 작은 차고지를 가지고 있다. 건축주는 계단이 없는 커다란 공용 공간을 원했다. 그리하여 계단의 위치를 다른 곳으로 옮겼는데, 이 아이디어는 집 주변을 걸을 때 다르게 보이는 흥미로운 모양을 만들어 냈다. 계단이 있는 북쪽 부분으로 난 둥근 창은 클라이언트에게 새로 지어진 새집을 떠올리게 했다.
집 전체에 있는 거울은 계속해서 변화하는 주변을 비추며 환상을 만든다. 새로운 집, 새로운 사람, 태양, 낮과 밤, 거울에 비친 디테일은 서로 잘 어우러진다. 어두운 목재를 이용한 입면과 주변을 비추는 디테일은 또 다른 색을 만들어내고, 주변과 대화하며 또다른 변화를 만든다. 차고지는 분리되는 사적 공간이지만, 마당을 차지하는매력 없는 공간이었다. 이런 차고지의 입면에 거울을 설치해, 평행하게 확장된 마당을 만들었다.
내부는 2개의 층으로 나뉜다. 1층에는 거실과 손님용 욕실, 다용도실, 작업실이 있으며, 2층에는 1층에 없던 침실 3개와 욕실 2개가 있다. 남쪽 입면에는 리드미컬한 패턴의 창이 있어, 버드 하우스의 간결하고 단조로운 형태를 강조한다. 전체적인 형태와 일관되게 설치된 지붕이 있는 테라스는 비가 올 때 야외 가족 공간을 더 매력 있게 만들어 준다.
새로 지어진 버드 하우스의 간결한 형태는 주변을 둘러싼 색상이 다양한 집들과 대비되는 현대적인 건물이다. 동네에 있는 낡은 집들 사이에 새로운 건축의 길을 만든다.






















Architect YCL 스튜디오 | YCL studio
Location Baltupiai, Vilnius, Lithuania
Program Residential
Gross floor area 181.91㎡
Building scope 2F
Completion 2022
Design team Tomas Umbrasas, Aidas Barzda, Tautvydas Vileikis
Structural engineer Ekspa Pro, UAB Engineering Projektų srautas, UAB
Photographer Norbert Tukaj
해당 프로젝트는 건축문화 2022년 8월호(Vol. 495)에 게재되었습니다.
The project was published in the August, 2022 recent projects of the magazine(Vol. 495).
August 2022 : vol. 495
Contents : RECORDS FIVE ARCHITECTS FROM THREE TEAMS SELECTED FOR ‘2022 KOREA YOUNG ARCHITECTS AWARD’ 2022 젊은 건축가상에 선정된 3개 팀, 5명의 건축가들 : NEWS / COMPETITION / BOOKS : SKETCH THE FLASHING ELEMENTS / CRISTINA CORREA FREI
anc.masilwide.com
'Architecture Project > Single Family' 카테고리의 다른 글
| DOT HOUSE (0) | 2022.11.24 |
|---|---|
| TINI M (0) | 2022.11.23 |
| COCO HOUSE (0) | 2022.11.14 |
| BRICK VEIL (0) | 2022.10.28 |
| CANAL HOUSE HUMBEEK (0) | 2022.10.27 |
마실와이드 | 등록번호 : 서울, 아03630 | 등록일자 : 2015년 03월 11일 | 마실와이드 | 발행ㆍ편집인 : 김명규 | 청소년보호책임자 : 최지희 | 발행소 : 서울시 마포구 월드컵로8길 45-8 1층 | 발행일자 : 매일



