
The multiple award-winnig new museum building ? which is part of Europe’s largest urban-cultural development called Liget Budapest Projecthas dynamic yet simple lines simultaneously harmonised with the park environment and communicating with the surrounding urban area. The City Park (Varosliget) is a familiar venue for the Museum of Ethnography: its collection debuted here at the 1896 Millennium Exhibition. The current location, which once was home to the Hungarian Curia, is far from being suitable to meet the requirements of a museum, and is severely limited in terms of space and opportunities. As a result of the international design competition, successful construction, and completion in May 2022 the Museum of Ethnography was finally given a new home in a truly modern building of an all-round world-class standard that will satisfy professional requirements, while catering to the needs of the collection and visitors alike.
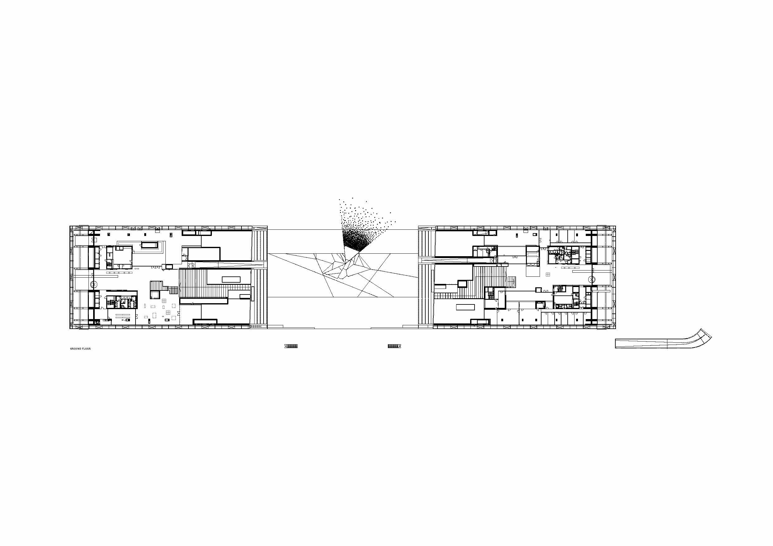
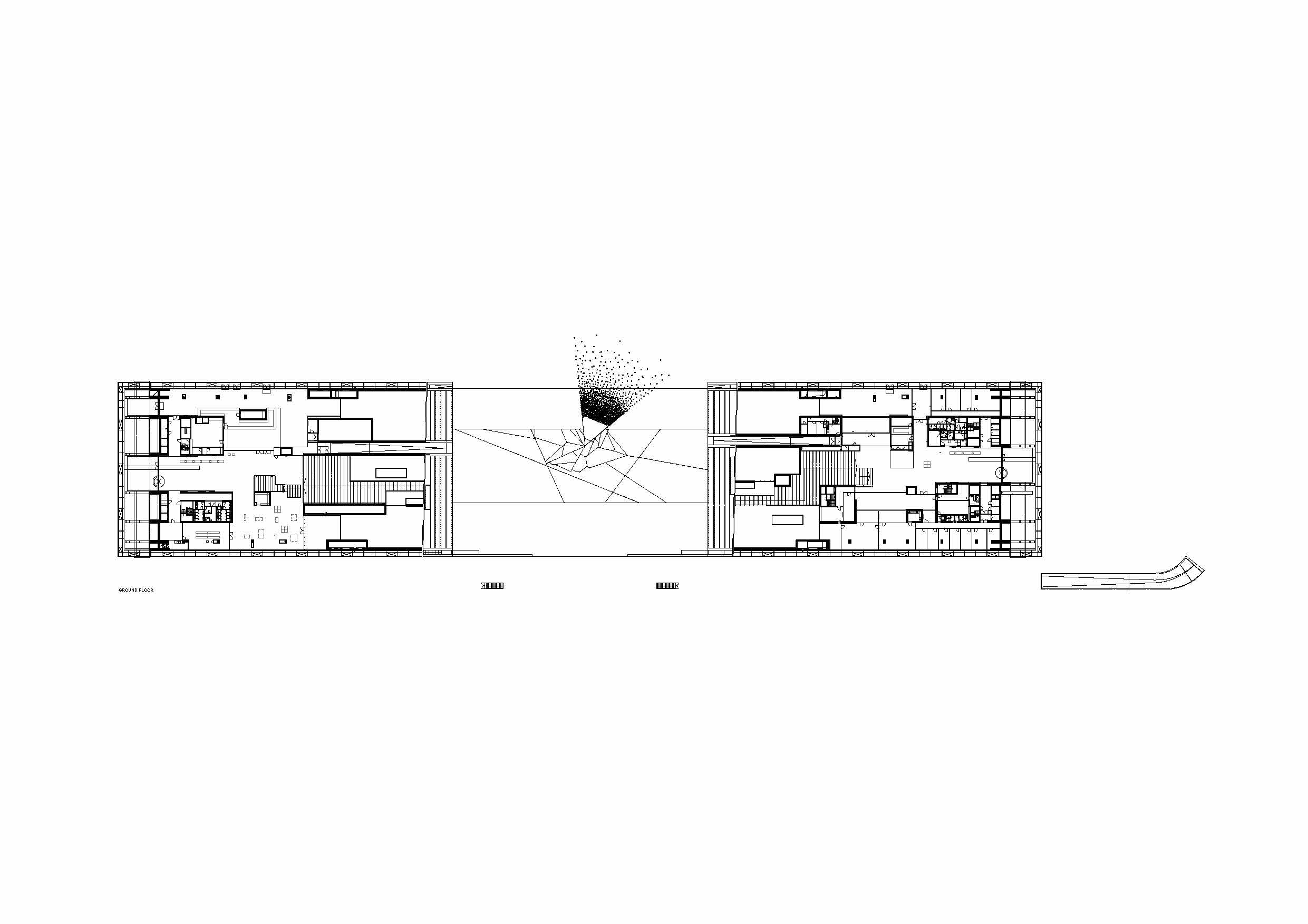
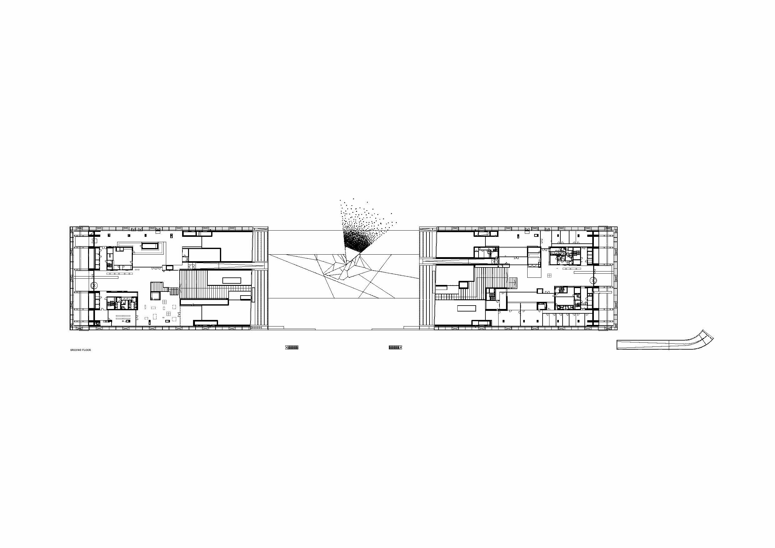
The gently curving lines enable the building to function as a gateway and a passage linking the city and the park. Sixty percent of the structure is under ground level, and thanks to the landscaped roof and the transparency of the sections over the ground, the new museum is adapted to its environment in its scale too. The grass-covered roof area will be a pleasant community space awaiting visitors to Varosliget.
The spectacular trademark of the building is the glass curtainwall surrounding the landscaped roof garden, reminiscent of two intertwined hillsides, with a unique characteristic, consisting of nearly half a million pixels, a raster made by metal grid based on ethnographic motifs selected from the museum’s Hungarian and international collections. The pixels were inserted into a laser-cut aluminum grid by a special robot, more than 2,000 of which are attached to the building. The small cubes were made up of 20 Hungarian and 20 international contemporary reinterpretations of ethnographic motifs.
The new functions and flexible spaces of the modern and state-of-the-art museum building will facilitate the understanding of the historical heritage embodied by the collection as well as the various aspects of contemporary society. Besides passing down this historical heritage, the realisation of more recent professional and research themes and perspectives continues to be among the priority objectives of the museum, as confirmed by its mission. The creatively built spaces will open up new opportunities to communicate with visitors, enabling the presentation of the everyday objects, phenomena and ideas of the past and the present side by side. The purpose-built museum was designed with maximum consideration for the required functions, and thus facilitates the large-scale, modern, user-friendly operation of the institution to a significant degree, along with the visually enticing and diverse display of mankind’s material and spiritual heritage, as well as the collection comprising Hungarian and international material.

부다페스트 민속박물관
땅을 딛고 일어난 인류의 발자취가 담긴 이 건축물은 부다페스트의 새로운 민속박물관이다. 유럽 최대 규모의 도시 문화 개발 프로젝트(Liget Budapest Project)의 일환으로 세워져 주변 도심 공원 환경과 조화를 이루면서도 역동적이며 단순한 선의 형태를 하고 있다.
한때 헝가리 큐리아의 본거지였던 현재 위치는 박물관의 요구 사항을 충족시키기에는 적합하지 않으며 공간과 기회 측면에서 심각하게 제한되어 있다. 2022년 5월 국제 디자인 공모를 통해 제안된 설계안으로 민속박물관은 마침내 전문적인 요구 사항을 충족시키는 동시, 컬렉션과 방문객 모두의 요구에 부응하는 세계 수준의 표준을 갖춘 현대적인 새로운 공간이 완성됐다. 완만한 곡선을 이루는 선은 건물이 도시와 공원을 연결하는 관문이자 통로 역할을 할 수 있도록 한다. 구조의 60%가 지하에 있으며 조경된 지붕과 지상 섹션의 투명도 덕분에 새 박물관은 규모 면에서 환경에 맞게 조정되었다. 잔디로 덮인 지붕 지역은 시립공원의 방문객을 기다리고 있는 쾌적한 커뮤니티 공간이 될 것이다.
조경된 옥상 정원을 둘러싸고 있는 유리 커튼월은 50만 픽셀로 구성된 스크린으로 장식되어 있다. 이 입면 패턴은 헝가리의 토속적인 무늬를 금속 격자로 재구성한 것으로, 특수 로봇에 의해 레이저 절단 알루미늄 그리드에 삽입되었으며 그 중 2,000개 이상이 건물에 부착되어 있다. 작은 큐브들은 민족지학적 모티프에 대한 20개의 헝가리 및 20개의 국제적 현대 재해석으로 구성되었다.
현대적인 최첨단 박물관 건물의 새로운 기능과 유연한 공간은 컬렉션이 구현하는 역사적 유산과 현대 사회의 다양한 측면에 대한 이해를 촉진한다. 이 역사적 유산을 계승하는 것 외에도, 보다 최근의 전문적이고 연구적인 주제와 관점의 실현은 그 사명에 의해 확인된 바와 같이 박물관의 우선 순위 목표 중 하나이다. 창의적으로 지어진 공간은 방문객과 소통할 수 있는 새로운 기회를 열어주며, 과거와 현재의 일상적인 사물, 현상, 아이디어를 나란히 보여줄 수 있다. 목적에 맞게 지어진 박물관은 필요한 기능을 최대한 고려하여 설계되어 현대적이며 사용자 친화적인 기관 운영을 크게 촉진하고, 시각적으로 매력적이며 인류의 물질 및 정신적인 유산뿐만 아니라 헝가리 및 국제 자료로 구성된 컬렉션을 다양하게 전시한다.




































Architect NAPUR Architect Ltd.
Location Varosliget, Budapest, Hungary
Site area 100,00㎡
Building area 33,000㎡
Design period 2016 - 2018
Completion 2022
Principal architect Marcel Ferencz
Project architect Marcel Ferencz
Design team György Détári, Filó Gergely, Holyba Pál, Nyul Dávid, Grócz Csaba, Mészáros Mónika
Collaborators / Interior design_Czakó Építész Ltd. / Support structure_Exon 2000 Ltd. Szántó László / Building engineering_HVarC Ltd. Lucz Attila / Landscaping_Garten Studio Ltd.
Construction ZÁÉV Építöipari Zrt, Magyar Épitö Zrt.
Client Varosliget Zrt., (the CEO of Varosliget Zrt) Benedek Gyorgyevics, (the director of the Museum of Ethnography) Lajos Kemecsi, (the project’s ministerial commissioner) Laszlo Baan
Photographer Palkó Gyorgy
해당 프로젝트는 건축문화 2022년 7월호(Vol. 494)에 게재되었습니다.
The project was published in the July, 2022 recent projects of the magazine(Vol. 494).
July 2022 : vol. 494
Contents : RECORDS I LIVE ALONE AND TOGETHER 나 혼자, 그리고 같이 산다 “SPACE COORDINATOR”, AN EXPERIMENTAL AND INNOVATIVE DISCOURSE THAT REVOLUTIONIZES THE CITY 도시를 새롭게..
anc.masilwide.com
'Architecture Project > Cultural' 카테고리의 다른 글
| DEPOT BOIJMANS VAN BEUNINGEN (0) | 2022.11.03 |
|---|---|
| Datong Art Museum (0) | 2022.11.02 |
| ZHANGJIAKOU LIBRARY (0) | 2022.09.27 |
| AXONOMETRYTHE WEDGE (0) | 2022.09.26 |
| BIODOME SCIENCE MUSEUM (0) | 2022.09.20 |
마실와이드 | 등록번호 : 서울, 아03630 | 등록일자 : 2015년 03월 11일 | 마실와이드 | 발행ㆍ편집인 : 김명규 | 청소년보호책임자 : 최지희 | 발행소 : 서울시 마포구 월드컵로8길 45-8 1층 | 발행일자 : 매일



