
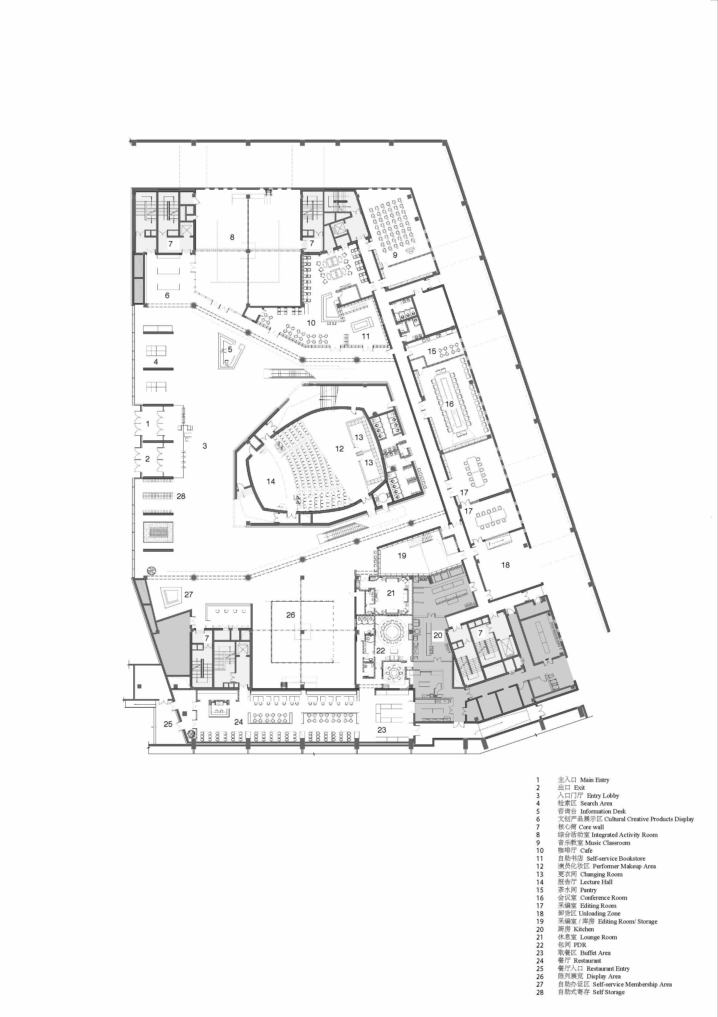
The modern library is not only a place for storage and borrowing, but also a space where people love to stay, socially interact, to be inspired and surprised, effortlessly transferred from “reading to interaction” through the different scenarios. Zhangjiakou Library is built close to mountains and rivers, surrounded on three sides by mountains, in the north, west and east. Those three architecture massing in different sizes are harmonious in diversity, and open to the south. The building facade is covered by recyclable perforated panels. The overall building space adopts the design of an integrated ceiling curtain wall with an atrium. The platforms and main stairs on each floor define the functional areas and appearance of the library structure. Visitors enter from the main entrance on the first floor underground. The “art installation” form of the multi-functional hall (small theater/large lecture hall) in the atrium has an extremely upward sense, weakening the pressure of “canyon” formed by the existing building structure. The open-shelf book storage in the library is integrated with the reading area in order to provide the functions of “collection, search, borrowing and reading”. There is a small stepped square, through the connection of roof of the large lecture hall and the second floor. The sunlight in Zhangjiakou is strong and the architecture facade is covered with the perforated curtain wall, which makes the indoor light less suitable for reading. The designer artfully placed that area as a promenade with a stage effect,and placed the reading area inward. The constantly changing light became a spotlight, illuminating the unknown world of readers. It has set up a variety of artistic experiences in the youth reading area. In addition to specific functional areas, some areas are reserved for other possibilities in future. It reshapes the expression of the space through the opening and closing of the wall. The modular composition allows the space to be flexibly transformed into a gallery, concert hall, recording studio, event area, etc. Various activities based on history and culture are staged here. There is a private museum in the library, which displays the historical documents of Zhangjiakou. It gives a close look of history of thousands of years through the small window. In future urban life, it will become a link connecting people with knowledge, experience, and creation. Within the city, it will explore the needs and possibilities of the community and stimulate the fresh vitality of the field.

빛을 담는 아트리움을 가진 책의 공간, 장자커우 도서관
현대 도서관은 보관 및 대출을 위한 장소일 뿐만 아니라 사람들이 머물기 좋고, 사회적으로 상호 작용하며, 영감을 받고 놀라움을 느끼며 다양한 시나리오를 통해 ‘읽기에서 상호 작용으로’ 전환되는 공간이다. 장자커우 도서관은 산과 강에 인접하며 북쪽, 서쪽, 동쪽 삼면은 산으로 둘러싸여 있다. 서로 다른 크기의 이 세 건축물은 조화로운 다양성을 이루며 남쪽으로 열려 있다. 건물 정면은 재활용 가능한 타공 패널로 덮여 있다. 전체 건물 공간은 아트리움이 있는 통합 천장 커튼월 디자인을 채택했다. 각 층의 플랫폼과 주 계단은 도서관 구조의 기능적 영역과 외관을 정의한다. 방문객은 지하 1층 정문에서 입장한다. 아트리움 내 다기능 홀(소극장/대강당)의 ‘설치미술’ 형태는 극도로 상향적인 감각을 갖고 있어 기존 건축물이 형성한 ‘협곡’의 중압감을 약화시킨다. 도서관의 열린 열람실은 ‘수집, 검색, 대출, 독서’ 기능을 제공하기 위해 독서 영역과 통합된다. 대강당의 지붕과 2층을 연결하여 작은 계단식 공간을 배치했다. 장자커우의 햇빛은 강하기 때문에 건축물의 정면은 타공된 커튼월로 덮여있다. 이는 독서를 하는데 있어 자연광보다 실내조명을 더 사용하기 위해서다. 디자이너는 그 공간을 무대 효과가 있는 산책로로 예술적으로 배치하고 독서 공간을 안쪽으로 배치했다. 시시각각 변하는 빛이 스포트라이트가 되어 미지의 세계를 비춘다. 청소년 독서 공간에서는 다양한 예술적 체험을 할 수 있는 공간을 마련했다. 특정 기능 영역 외에도 일부 영역은 향후 다른 가능성을 반영하도록 계획되어 있다. 벽의 개폐를 통해 공간의 표현을 재구성한다. 모듈식 공간은 갤러리, 콘서트홀, 녹음실, 행사장 등으로 유연하게 변형된다. 역사와 문화를 기반으로 한 다양한 활동이 이곳에서 진행된다. 도서관에는 장자커우의 역사적 자료를 전시하는 전시관도 있어 작은 창을 통해 수천 년의 역사를 가까이서 볼 수 있다. 미래의 도시생활에서 도서관은 사람과 지식, 경험, 창조를 잇는 연결고리가 될 것이다. 장자커우 도서관은 도시 내에서 지역 사회의 요구와 가능성을 탐색하고 지역에 신선한 활력을 제공할 것이다.


























Architects 탄조스페이스 | TANZOSPACE
Location Hebei, China
Program Library
Building area 22,200㎡
Completion 2021. 4
Principal architect TANZOSPACE
Project architect Wang Daquan
Photographer Shi Yunfeng
해당 프로젝트는 건축문화 2022년 6월호(Vol. 493)에 게재되었습니다.
The project was published in the June, 2022 recent projects of the magazine(Vol. 493).
June 2022 : vol. 493
Contents : RECORDS A NEW SPACE PROPOSAL THAT REFLECTS PERSONAL PREFERENCES OUTSIDE THE CITY CENTER 도심 밖, 개인의 취향을 반영한 새로운 공간 제안 CALL FOR ENTRIES: ‘SEOUL AR..
anc.masilwide.com
'Architecture Project > Cultural' 카테고리의 다른 글
| Datong Art Museum (0) | 2022.11.02 |
|---|---|
| NEW MUSEUM OF ETHNOGRAPHY (0) | 2022.11.01 |
| AXONOMETRYTHE WEDGE (0) | 2022.09.26 |
| BIODOME SCIENCE MUSEUM (0) | 2022.09.20 |
| CULTURAL CENTER - FLYING ROOF (0) | 2022.09.19 |
마실와이드 | 등록번호 : 서울, 아03630 | 등록일자 : 2015년 03월 11일 | 마실와이드 | 발행ㆍ편집인 : 김명규 | 청소년보호책임자 : 최지희 | 발행소 : 서울시 마포구 월드컵로8길 45-8 1층 | 발행일자 : 매일



