
Datong Art Museum – an important new cultural destination in China – has opened to the public with a special exhibition featuring oil paintings by local artists. One of four major buildings within Datong New City’s cultural plaza, it is set to become a new hub for creative industries in the region. The building’s sculptural form has been conceived as a landscaped terrain with a series of interconnected pyramids emerging from below the earth – the gallery spaces are sunken below ground and surrounded by landscaped plazas. Complementing the museum’s cultural program are a series of spaces dedicated to education and learning, including a children’s gallery, media library, archive and art storage facilities.
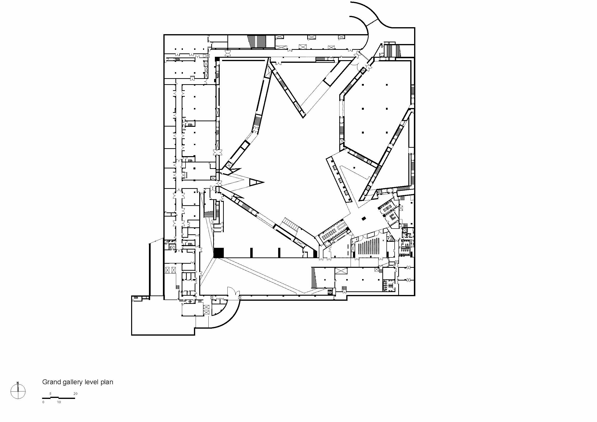
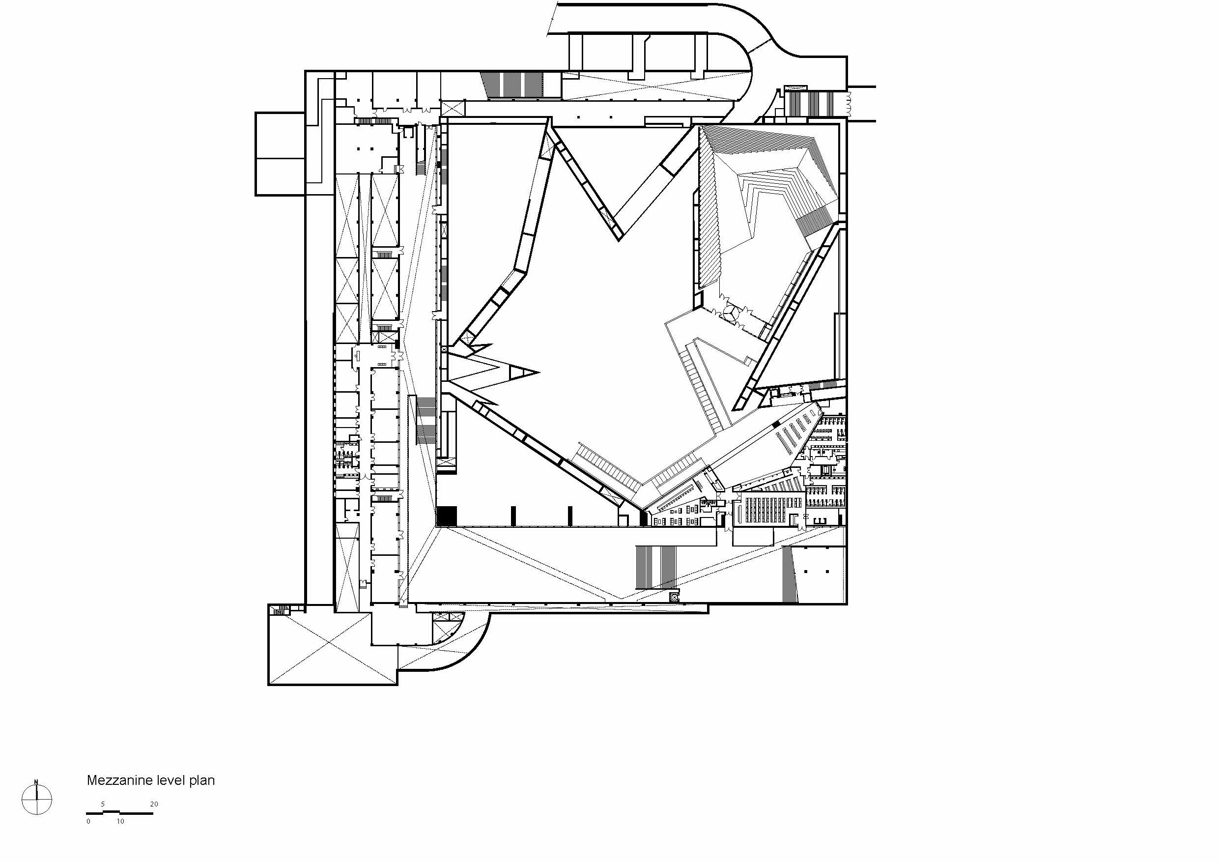
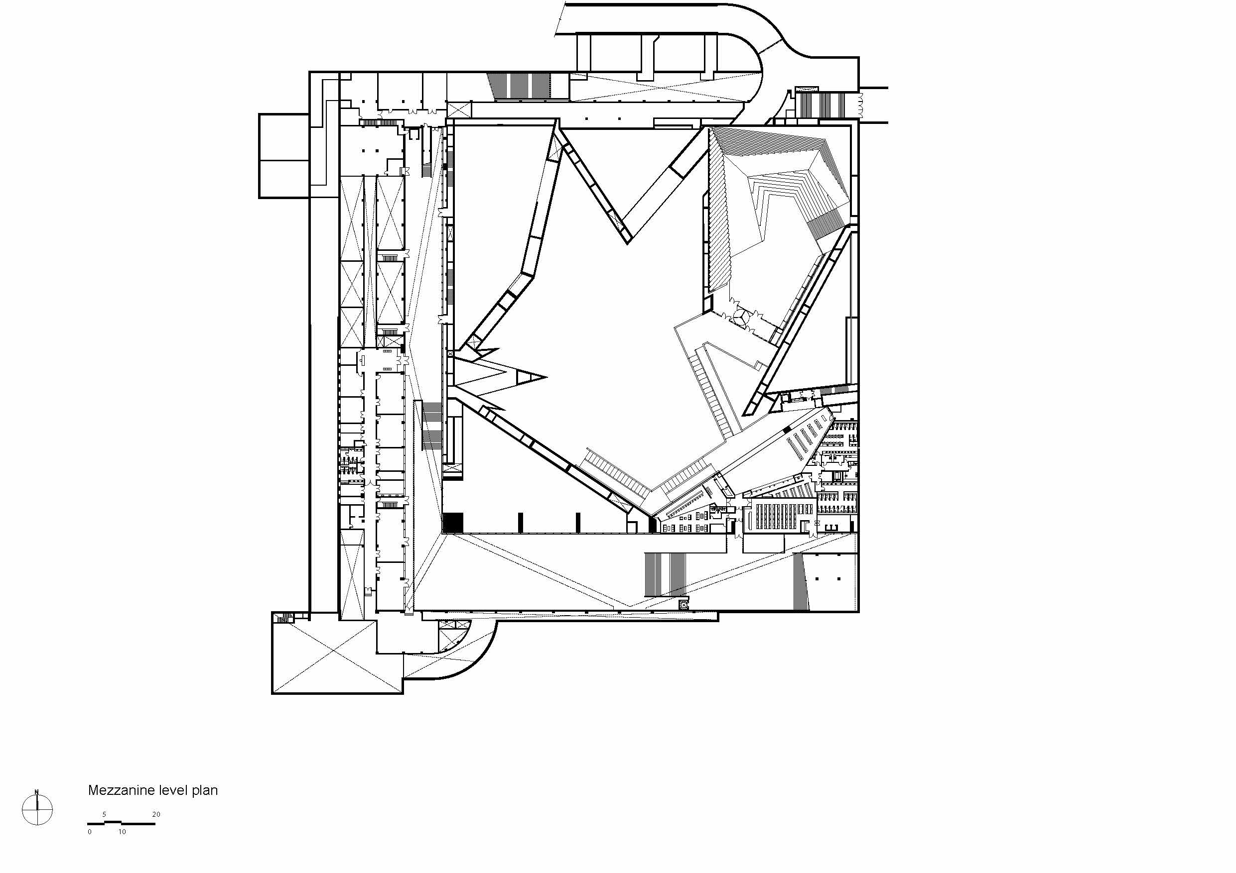
Visitors are guided towards the museum by strong diagonal paths in the landscaping. The entrance is via a winding sequence of ramps, which lead down into an open sunken plaza – this also provides an amphitheater for outdoor performances. Entering the building, visitors arrive at a mezzanine level that reveals a spectacular overview of the Grand Gallery, the social heart of the museum, which measures 37m in height and spans almost 80m. Further climate-controlled exhibition spaces are placed around the perimeter of the museum on a single level, allowing for ease of access. A key aspect of the building is the focus on education and learning with a dedicated children’s gallery, filled with sunlight from tall, south-facing windows. A smaller education center and a media library complement the education program and there are facilities to support artists residencies, talks and conferences.
The four interconnected roof pyramids increase in height and fan outwards towards the four corners of the cultural plaza. Natural light streams into the interior through roof lights, located at the apex of each pyramid. The design of the roof is a direct response to the large structural span of the building and the desire to create a vast, flexible column-free volume below, while mediating the smaller gallery spaces towards the edges. The roof is clad in naturally oxidised curved steel plates that help drain water and give a rich, three-dimensional quality to the surface. The panels are proportioned to suit the large scale of the museum and their linear arrangement accentuates the pyramidal roof form.
By sinking the building into the new plaza, the design relates in scale to the neighboring cultural buildings, balancing the overall composition of the district masterplan while maximizing the internal volume. A clerestory between each volume creates a naturally lit interior during the day, while creating a unique beacon for the new cultural quarter at night.
The building’s efficient passive design responds to Datong’s climate. High-level skylights take advantage of the building’s north and north-west orientation, using natural light to aid orientation while minimizing solar gain and ensuring the optimum environment for the works of art. Sinking the building into the ground along with a high-performance enclosure further reduces energy needs. The roof is mostly solid and is insulated to twice the building code requirements.

다통 예술 박물관
다통 예술 박물관은 현지 예술가들의 유화를 포함하는 특별한 전시와 함께 대중에게 개방되었다. 다통 신도시의 문화적 광장 내 네 개의 주요 건축물들 중 하나로써, 이는 그 지역의 창조 산업을 위한 새로운 허브가 되도록 만들어졌다. 건축물의 조형적 형태는 땅 밑에서 솟아나는 피라미드로 구상되었다. 전시 공간들은 땅 밑으로 가라앉아 있으며, 조경된 광장에 의해 둘러싸여 있다. 박물관의 문화적 프로그램을 보완해 주는 것은 어린이 갤러리, 미디어 도서관, 아카이브, 그리고 예술 창고 시설들을 포함한 교육과 학습을 위한 공간이다.
방문객들은 조경 속의 강력한 대각선 경로에 의해 박물관으로 인도된다. 입구는 구불구불한 경사로로 이어져 있고, 이 경사로를 따라 내려가면 탁 트인 움푹 패인 광장으로 이어진다. 이는 또한, 외부 공연을 위한 원형 극장을 제공한다. 안으로 들어서면, 방문자들은 박물관 내 만남의 중심인 높이 37m, 폭은 약 80m의 그랜드 갤러리가 있는 중이층에 도착한다. 더 나아가, 기후 조정이 되는 전시 공간들은 단일 층에서 박물관의 가장자리 주변에 위치하며, 접근의 용이성을 준다. 건축물의 핵심은 길고 남향의 창문들로부터 들어온 햇빛으로 가득 찬 어린이 전용 갤러리와 함께 교육과 학습을 위한 공간이다. 더 작은 교육센터 및 미디어 도서관은 교육 프로그램을 보완하며 예술가들의 거주, 교류 및 컨퍼런스들을 지원하는 시설들도 있다.
서로 연결된 네 개의 지붕 피라미드는 높이가 증가하며 문화 광장의 네 모서리를 향해 부채꼴 모양으로 뻗어나간다. 자연광은 각 피라미드의 정점에 위치한 지붕 창을 통해서 내부로 흘러 들어온다. 작은 갤러리 공간을 가장자리를 향해 조정함과 동시에 지붕의 설계는 건축물의 거대한 구조적 폭 및 광활하고 유연한 기둥 없는 볼륨을 만들고자 하는 의도를 반영했다. 지붕은 자연 산화 처리된 곡면 강판으로 덮여 있어 물을 배출하고 표면에 풍부한 3차원적인 품질을 제공한다. 패널은 박물관의 큰 규모에 맞게 비례하고 선형 배열은 피라미드 지붕 형태를 강조한다
새로운 광장에 건물을 가라앉힘으로써, 디자인은 주변 문화 건물들과 규모를 연관시켜, 내부 볼륨을 극대화하면서 구역 기본 계획의 전체적인 구성을 균형 있게 한다. 각 볼륨 사이의 클리어스토리는 낮에는 자연적으로 밝은 내부를 만들고 밤에는 새로운 문화 구역을 위한 독특한 불빛을 만든다.
건축물의 효율적인 패시브 디자인은 다통의 기후에 대해 반응한다. 태양광 발전을 최소화하고 예술 작품을 위한 최적의 환경을 보장하면서 고측의 천창은 자연광을 활용하여 방향성을 원조하며 건축물의 북향 및 북 서향의 이점을 취한다. 고성능의 봉쇄구와 함께 건축물을 땅 속으로 가라앉게 하는 것은 더 나아가 에너지 수요를 감소시킨다. 지붕은 대부분 견고하며 건축 법규 요구 조건의 두 배까지 단열된다.
























Architect FOSTER + PARTNERS
Location Datong, China
Site area 51,605㎡
Gross floor area 32,000㎡
Building area 13,313㎡
Height 34m
Building scope B1, 3F
Design team Norman Foster, David Nelson, Spencer de Grey, Luke Fox, Michael Gentz, Zheng Yu, Meng Xia, Loretta Law, Bartenis Siaulytis, Yasuko Tarumi, Ahmed Hosny, Mitsunori Sano, Pil-Joon Jeon, Yung Kim
Collaborating architect China ArchitectureDesign and Research Group
Structural / Mechanical / Eletrical engineer China Architecture Design and Research Group
Lighting consultant Claude Engle, BPI+THU
Landscape consultant AECOM
Completion 2021
Client Datong Municipal Administration of Culture
Photographer Yang Chaoying
해당 프로젝트는 건축문화 2022년 7월호(Vol. 494)에 게재되었습니다.
The project was published in the July, 2022 recent projects of the magazine(Vol. 494).
July 2022 : vol. 494
Contents : RECORDS I LIVE ALONE AND TOGETHER 나 혼자, 그리고 같이 산다 “SPACE COORDINATOR”, AN EXPERIMENTAL AND INNOVATIVE DISCOURSE THAT REVOLUTIONIZES THE CITY 도시를 새롭게..
anc.masilwide.com
'Architecture Project > Cultural' 카테고리의 다른 글
| TAIPEI PERFORMING ARTS CENTER (0) | 2022.11.04 |
|---|---|
| DEPOT BOIJMANS VAN BEUNINGEN (0) | 2022.11.03 |
| NEW MUSEUM OF ETHNOGRAPHY (0) | 2022.11.01 |
| ZHANGJIAKOU LIBRARY (0) | 2022.09.27 |
| AXONOMETRYTHE WEDGE (0) | 2022.09.26 |
마실와이드 | 등록번호 : 서울, 아03630 | 등록일자 : 2015년 03월 11일 | 마실와이드 | 발행ㆍ편집인 : 김명규 | 청소년보호책임자 : 최지희 | 발행소 : 서울시 마포구 월드컵로8길 45-8 1층 | 발행일자 : 매일



