
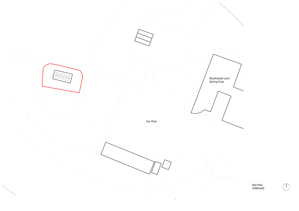
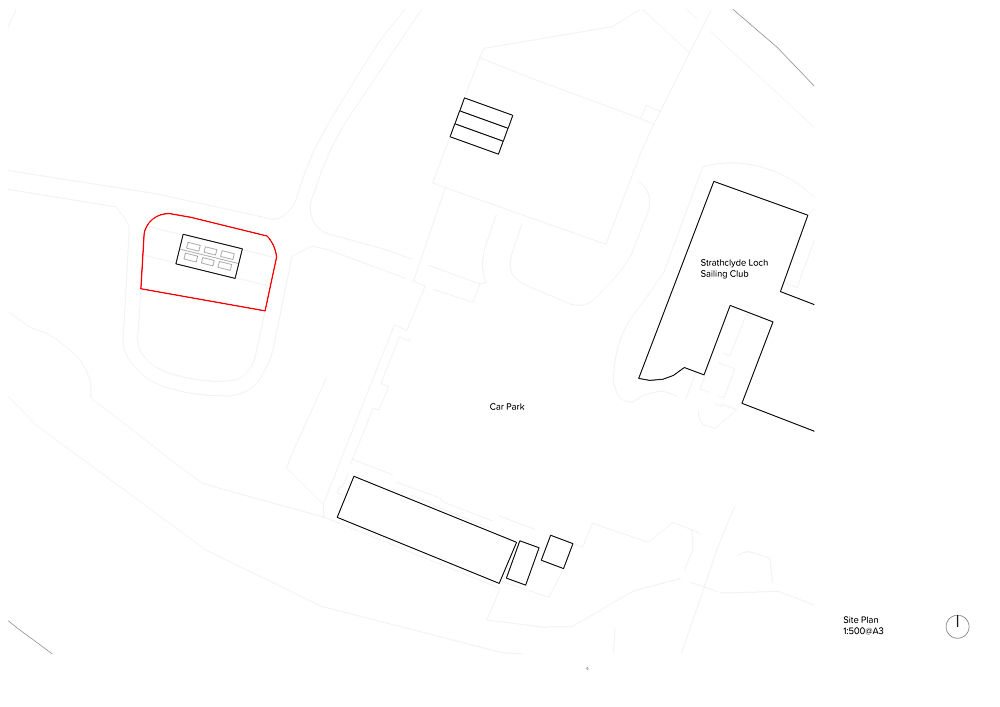
The new pavilion is an attractive outdoor space within the park, offering protection from the elements while immersing its occupants in nature and commanding views of sporting activities.
This is the first of a series of new collaborations to encourage innovative partnerships between artists, architects, and the community. It forms part of a wider arts strategy and ambition for the park. The architect-artist team was tasked to create an inspiring, bespoke outdoor structure for year-round learning experiences for education groups, with the flexibility to be used for performances, workshops and private hires. The resulting pavilion, which fronts Strathclyde Loch, is robust, low-maintenance and built using environmentally sustainable materials and construction methods.
The supporting structure is an evolution of O’DonnellBrown’s prototype Community Classroom, an adaptable, demountable learning environment which was developed as a self-initiated project and is now being manufactured by Spaceoasis as CC20. Following circular economy principles and built from a simple kit of parts to minimize construction waste, waste materials have been used to reduce the structure’s carbon footprint. The pavilion is made of timber sections bolted together in repeated two column modules to support the timber structural deck above, which is contained within a bespoke timber and mesh screen, creating the sculptural envelope.
A series of ‘rain screens’ conceived by the artist using layers of metal mesh creates shadows across the interior floor which mimic the reflection and refraction of the water on the adjacent Strathclyde Loch.
Held together with timber battens arranged in a repetitive pattern, the rain screens draw on works in Robertson’s solo exhibition at Dundee Contemporary Arts in 2017, and more recently in her installation at Barclays’ new Glasgow campus. Exploring the themes of obsolescence, waste, technology and the environment, the rain screens are made of recycled film from the inside of broken and discarded mobile phones, tablets and laptop screens. The large patchwork pattern reflects and distorts the sunlight, creating rainbow prisms that bounce around the interior, brought to life by the movement of people using the space.
Local schools have helped to shape the project, with workshops run by the architects and artist engaging local primary 7s in discussions on environmental issues and problem solving in the design process. The collected material was then used by Robertson to create the structural artwork which integrates seamlessly with the timber structure – any remaining materials were recycled via Waste Electrical and Electronic Equipment (WEEE) Scotland.

건축가, 예술가, 학교의 협업으로 완성된 공원 내 예술활동 공간, 레인보우 파빌리온
레인보우 파빌리온은 공원 안에 세워진 임시적인 공간으로, 공원 이용객들에게는 공원의 아름다운 자연과 주변 스포츠 활동들을 바라볼 수 있는 공간이다. 파빌리온은 예술가, 건축가 간의 협업을 장려하기 위한 프로그램의 일환으로, 공원에서 더 폭넓은 예술활동을 할 수 있도록 지원하고자 했다. 건축가와 예술가로 이뤄진 디자인팀은 공연, 워크숍, 개인 행사에 사용될 수 있는 공간이자, 교육단체들이 1년 내내 사용할 수 있는 맞춤학습형 야외 구조물을 만들게 됐다.
레인보우 파빌리온은 스트래스클라이드 호수를 마주 보고 서 있다. 파빌리온을 지지하는 구조는 가구 전문점인 스모아(Spaceoasis)에서 만든 새로운 학습방식을 탐구하기 위해 만든 야외학습공간 구조 CC20을 활용했다. 이는 오도넬브라운이 제작한 실험적인 야외용 공용 교실의 진화된 버전이기도 하다. 건설 폐기물의 순환 시스템에서 폐기물을 최소화 하기 위해 파빌리온의 자재는 대부분이 이미 제작되고 간단한 부품들이 사용됐으며, 탄소 발자국도 줄일 수 있도록 재활용된 자재가 이용됐다. 파빌리온은 반복되는 두 개의 기둥 모듈을 기준으로 볼트로 고정하여 합쳐진 목재로 구성된다. 파빌리온에 맞춰 제작된 메시 스크린 등이 부분적으로 사용되어 있다. 파빌리온 제작을 함께 하는 예술가들은 이러한 금속 메시를 레이어로 활용하여 일련의 ‘레인 스크린’을 만들고, 근처의 스트래스클라이드 호수에서 일어나는 물의 반사와 굴절을 모방하는 그림자를 만들었다. 반복적인 패턴으로 배열된 목재 널빤지로 유지되는 레인 스크린은 2017년 던디 현대미술관에서 열린 로버슨의 개인전과 최근 바클리즈의 새로운 글래스고 캠퍼스의 설치 작품을 차용한 것이다. 노후화, 낭비, 기술 및 환경의 주제를 탐구한 레인 스크린은 부서지고 버려진 휴대폰, 태블릿, 노트북 화면 내부의 필름을 재활용하여 만들었다. 커다란 패치워크 패턴은 햇빛을 반사하고 왜곡하여 공간을 사용하는 사람들의 움직임에 의해 생기가 도는 내부에서 이리저리 튕기는 무지개빛 프리즘이 된다.
설계 당시, 현지 학교에서는 건축가와 예술가가 함께 운영하는 워크숍을 통해 초등학교 7학년 학생들이 환경 문제에 대한 토론과 설계 과정의 문제 해결에 참여하도록 하고 있었고, 실제로 이 파빌리온의 제작 과정에서 아이들의 의견이 많이 참고되었다. 그렇게 수집된 의견들로 목재 구조와 매끄럽게 통합되는 구조적 예술 작품을 만들 수 있었다. 나머지 재료는 WEEE(폐전기 전자제품, Waste Electrical and Electronic Equipment) 스코틀랜드를 통해 재활용됐다. 레인보우 파빌리온은 유지 관리도 용이하며 환경적으로 지속 가능한 재료와 건축 방법을 사용하여 건설된 공간이다.
















Architects O’DonnellBrown + Kate V Robertson
Location Strathclyde Country Park, Motherwell, UK
Site area 200㎡ (events field)
Gross internal area 80㎡
Artist Kate V Robertson
Architect O'DonnellBrown
Curator Patricia Fleming Projects
Structural engineer Design Engineering Workshop
Building contractor Bridgewater Building Solutions
On site 2021. 3 - 6
Client North Lanarkshire Council
Photographer Ross Campbell, Keith Hunter
May 2022 : vol. 492
Contents : RECORDS THE STORY OF THE CITY THAT PUBLISHERS DREAMED OF, RELEASED 꿈꾸던 도시가 들려주는 이야기, <위대한 계약: 파주, 책, 도시> 개봉 : NEWS / COMPETITION / BOOKS : SK..
anc.masilwide.com
'Architecture Project > Cultural' 카테고리의 다른 글
| MUSEUM OF MODERN ALUMINUM THAILAND (0) | 2022.09.08 |
|---|---|
| Camerino Academy of Music (0) | 2022.09.02 |
| SPAINISH PAVILION at EXPO 2020 DUBAI (0) | 2022.08.12 |
| MOROCCO PAVILION at EXPO 2020 DUBAI (0) | 2022.08.11 |
| THE GREEN ARCH - BELGIAN PAVILIONat EXPO 2020 DUBAI (0) | 2022.08.09 |
마실와이드 | 등록번호 : 서울, 아03630 | 등록일자 : 2015년 03월 11일 | 마실와이드 | 발행ㆍ편집인 : 김명규 | 청소년보호책임자 : 최지희 | 발행소 : 서울시 마포구 월드컵로8길 45-8 1층 | 발행일자 : 매일



