
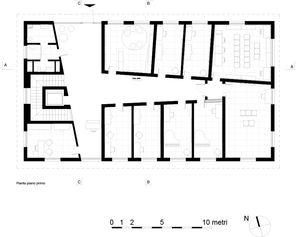
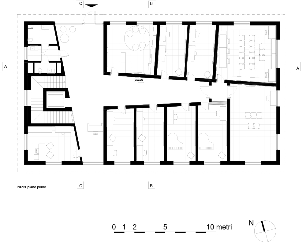
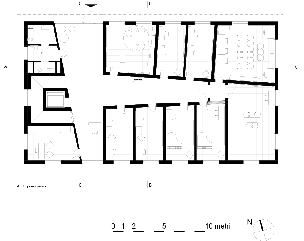
The new Academy of Music to Camerino is giving the structure a significant contemporary look. The project not only returns the local Academy of Music to Camerino, aimed at welcoming over 160 students and the many cultural initiatives of the community, but also gives the university city a new architectural identity. The idea that guided the design was to create a volume that amazed, not only up close, but also from afar. With clean and elegant lines, the building, which is spread over two levels, stands out for its ethereal skin in white sheet metal panels with perforations of varying size. Inspired by the rarefaction and dynamism of clouds, the inclined volume, lying on the slope of the ground and on a glass curtain marked by grey pillars, dissolves into the context. The north façade presents the volume as a box, with the panels suspended a few tens of centimetres from the ground. The two side elevations, on the other hand, show the inclination and slope of the land. The dichromatism of the façade, offered by the dark grey of the external structure, the fixtures and the white of the sheet metal cladding, outlines a graceful but resolute volume. A shady garden and the lower square constitute new open spaces available to the whole community. The interior design of the auditorium, aimed at enhancing the space despite its modest size, is characterized by the dynamic use of materials. Concrete, which defines the main surfaces that forge the structure, from the stoneware floor, to the back wall towards the foyer, and from the exposed upper floor to the structural elements. The 180-seat stalls spread over three sectors. The back wall, entirely transparent, connects the auditorium directly with the foyer, expanding the perception of space. An orange resin staircase brings great liveliness and energy to the environment. The two larger classrooms at the back house recording studios and electronic music lessons-concerts. In contrast to their counterparts, they are dark grey in colour and have special micro-perforated wooden panels on the walls that optimize their acoustic performance. In all the rooms on the upper floor, the circular windows positioned at two different heights welcome in the light that filters through the multiple perforations of the panels. Open all year round and ready to host conferences, events, study activities and workshops at the service of the community, the new architecture presents itself as an educational and innovative forge dedicated to music, capable of giving Camerino a role of reference in the cultural panorama of the Marche region and beyond.

160명 이상의 학생들 및 지역 사회의 많은 문화적 계획에 대한 환영을 목표로 한 이 프로젝트는 지역 음악 아카데미를 카메리노로 돌려줄 뿐만 아니라, 대학 도시에 새로운 건축적 정체성을 부여한다.
깔끔하고 우아한 선으로 이루어진 이 건물은 2층에 걸쳐 총 600㎡의 면적을 자랑하며, 다양한 크기의 천공이 있는 흰색 금속 패널의 미묘한 외피가 돋보인다. 구름의 희박성과 역동성에서 영감을 얻어 기울어진 매스는 경사진 지면과 회색 기둥이 특징인 유리 커튼에 누워 있어 주변 환경 속으로 녹아든다.
거리와 위쪽 정원에서 보이는 북쪽 파사드는 매스를 상자처럼 보이게 하며, 패널은 지면에서 수십 센티미터 떨어진 곳에 매달려 있다. 반면, 두 개의 측면 입면도는 땅의 경사도를 보여준다. 외부 구조의 짙은 회색과, 고정 장치 및 판금 클래딩의 흰색이 제공하는 파사드의 이색성은 주변과 완벽하게 통합된 동시에 도시 스카이라인을 상징하는 우아하면서도 단호한 매스를 그려낸다. 그늘진 정원과 아래쪽 광장은 지역 전체가 사용할 수 있는 새로운 열린 공간을 구성한다.
대단하지 않은 크기의 공간을 넓히는 것을 목표로 한 강당의 내부 디자인은 재료의 역동적인 사용이 특징이다. 한편으로는 다양한 경사의 매달린 패널, 원형 스트립, 측면 벽에서 나오는 패널, 목재로 완전히 덮인 배경과 회전 패널이 있는 무대 등 실을 구성하는 여러 표면과 요소의 오크 나무가 있고, 다른 한편으로는 콘크리트가 석기 바닥에서 현관을 향한 뒷벽, 노출된 윗층에서 구조 요소까지 구조를 구축하는 주요 표면을 정의한다. 180석 규모의 좌석은 3개 구역에 걸쳐 있다. 완전히 투명한 뒷벽은 강당을 로비와 직접 연결하여 공간에 대한 인식을 확장한다. 로비에는 직사각형 목재 칸막이가 뒷벽에서 가천장까지 서있으며, 흰색 외피에 의해 생성된 매스의 위치로 정의된 긴장감을 따라 입구 파사드 쪽으로 기울어진다. 교실에서는 필요한 가구와 악기 외에도 거울과 목재 패널이 있어 학생들이 악보를 이용해 개성 있게 꾸밀 수 있다. 뒤편에는 녹음 스튜디오와 전자 음악 수업 및 콘서트를 위해 사용할 있는 두 개의 큰 교실이 있다. 건너편 공간과 달리 어두운 회색이며, 벽에는 특수 미세 천공 목재 패널이 있어 음향 성능을 최적화한다. 위층의 모든 실에서 두 개의 다른 높이에 위치한 원형 창문은 패널의 여러 천공을 통해 여과된 빛을 들여온다.
연중무휴이며 지역 사회의 콘퍼런스, 이벤트, 연구 활동 및 워크숍을 주최할 준비가 된 알비시 키리모토의 새로운 건축 프로젝트는 음악을 위한 교육적이고 혁신적인 창조 공간으로서, 카메리노가 마르쉐 지역과 그 너머의 지역에 문화적 다양성을 제공하는 역할을 충분히 감당할 수 있도록 한다.






























Architect Alvisi Kirimoto
Location Camerino, Macerata, Italy
Site area 4,650㎡
Building area 600㎡
Design team (Alvisi Krimoto)Massimo Alvisi, Junko Krimoto, Silvia Rinalduzzi, (Harcome)Andra Giamfelict
CM, Coordinator Engineer Paolo Bianchi
Completion 2020. 10
Client Andrea Bocelli Foundation
Photographer Marco Cappelletti
May 2022 : vol. 492
Contents : RECORDS THE STORY OF THE CITY THAT PUBLISHERS DREAMED OF, RELEASED 꿈꾸던 도시가 들려주는 이야기, <위대한 계약: 파주, 책, 도시> 개봉 : NEWS / COMPETITION / BOOKS : SK..
anc.masilwide.com
'Architecture Project > Cultural' 카테고리의 다른 글
| CULTURAL CENTER - FLYING ROOF (0) | 2022.09.19 |
|---|---|
| MUSEUM OF MODERN ALUMINUM THAILAND (0) | 2022.09.08 |
| RAINBOW PAVILION (0) | 2022.08.16 |
| SPAINISH PAVILION at EXPO 2020 DUBAI (0) | 2022.08.12 |
| MOROCCO PAVILION at EXPO 2020 DUBAI (0) | 2022.08.11 |
마실와이드 | 등록번호 : 서울, 아03630 | 등록일자 : 2015년 03월 11일 | 마실와이드 | 발행ㆍ편집인 : 김명규 | 청소년보호책임자 : 최지희 | 발행소 : 서울시 마포구 월드컵로8길 45-8 1층 | 발행일자 : 매일



