
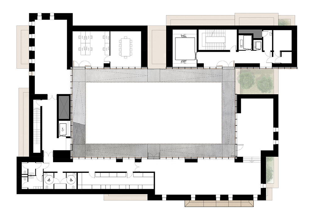
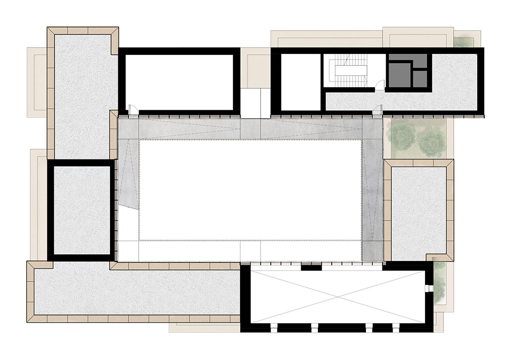
The Morocco Pavilion at the 2020 Expo in Dubai, designed by architects OUALALOU+CHOI, showcases how traditional Moroccan design and construction techniques can find new relevance in contemporary design and urban development efforts. One of the few buildings which will not be dismantled after the end of the world exposition, the Morocco Pavilion aims to push the technical and creative limits of traditional building materials to new heights. The Pavilion’s 34m high rammed earth façade is an ambitious technical feat pioneering in its advancement of rammed earth construction methods. Rammed earth, a traditional building material in Morocco, plays a key role in passively regulating indoor conditions in hot and arid places. To achieve the heights of the Morocco Pavilion’s facade, raw and compacted rammed earth was formed into prefabricated panels coupled with a lightweight concrete frame. Its use in the Pavilion proves that it is a material at once traditional and innovative, offering an example of how traditional building methods can serve to inspire more sustainable models of urban development. Comprised of 22 stacked rectangular volumes visually resonant with vernacular rammed earth villages in Morocco, the Pavilion encompasses 14 exhibition spaces, restaurants, shops, and offices. Visitors stroll along an inner ‘street’ composed of a ramp connecting all the exhibition spaces, an explicit reference to the experience of meandering through the medina. The Pavilion attempts to reduce the number of air-conditioned spaces to the bare minimum, utilizing passive strategies of climate control such as the thickness of the earthen walls, multiple vertical gardens, and the presence of a large central patio to naturally ventilate and cool the building. In line with this commitment to sustainability, after the conclusion of the 2020 Expo, the Pavilion will be converted into a housing complex, with existing facilities adapted into apartments and communal spaces.

전통적인 재료의 지속가능성을 현대 디자인에 적용한 두바이 엑스포 2020 모로코관
두바이 엑스포 2020의 모로코관은 전통적인 모로코 디자인과 건축 기법이 어떻게 현대의 디자인과 도시 개별에 접목될 수 있는지를 보여준다. 본 행사가 종료된 후에도 해체되지 않을 몇 안 되는 건물 중 하나인 모로코관은 전통적인 건축 자재의 기술적, 건설적 한계를 높은 수준으로 끌어올리는 것을 목표로 한다.
34m 높이의 파사드는 흙으로 만든 파사드의 발전을 보여주는 기술적 업적이다. 모로코의 전통적인 건축 재료인 흙다짐 벽(Rammed earth)은 덥고 건조한 지역의 실내 환경을 수동적으로 조절하는 데 중요한 역할을 한다. 파빌리온의 정면 높이를 구축하기 위해 가공되지 않은 압축돈 흙은 경량 콘크리트 프레임과 결합된 조립식 패널로 만들어졌다. 이 패널의 사용은 흙다짐 벽이 전통적이고 혁신적인 재료라는 것을 증명하며, 전통적인 건축 방법이 어떻게 지속 가능한 도시 개발 모델을 고무하는 데 도움이 되는지 보여준다.
모로코의 토착 마을과 시각적으로 공명하는 22개의 직사각형으로 구성된 파빌리온은 14개의 전시 공간과 식당, 상점, 사무실이 배치되어 있다. 방문객들은 모든 전시 공간을 연결하는 경사로로 내부 ‘거리’를 거닐게 되는데, 이는 미디어에서 이리저리 돌아다니는 경험을 묘사한 것이다. 파빌리온은 토벽의 두께와 여러 개의 수직 정원, 대형 중앙 정원 등으로 소극적이지만 실내 온도 조절 전략을 제시하여 인공적 냉방 공간을 최소화하고 자연 환기와 냉방을 시도하고 있다.
지속 가능성에 대한 이러한 노력에 따라 엑스포가 끝난 후, 파빌리온은 아파트와 공동 시설에 적응된 기존 시설과 함께 주거 단지로 전환될 예정이다.































Architects OUALALOU + CHOI
Location Dubai, UAE
Program Exhibitions, Food and Beverage(Traditional Moroccan Restaurant, Tea Room, Modern Street Food Area), Lounge, Event Space, Offices, Shop
Site area 1,467㎡
Gross floor area 6,057㎡
Principal architect Tarik Oualalou, Linna Choi
Design team Alia Ben Ammar(Site Architect), Daniel Larré(Project Architect), Daniele Pasin, Ava Violich, Chloé Zimmermann
Consultant Earth Structures Group
PMC Mace
Engineering SETEC, e.construct
Façade engineer TESS
Local architect e.construct
Client Expo 2020, Kingdom of Morocco
Photographer BOEGLY+GRAZIA
May 2022 : vol. 492
Contents : RECORDS THE STORY OF THE CITY THAT PUBLISHERS DREAMED OF, RELEASED 꿈꾸던 도시가 들려주는 이야기, <위대한 계약: 파주, 책, 도시> 개봉 : NEWS / COMPETITION / BOOKS : SK..
anc.masilwide.com
'Architecture Project > Cultural' 카테고리의 다른 글
| RAINBOW PAVILION (0) | 2022.08.16 |
|---|---|
| SPAINISH PAVILION at EXPO 2020 DUBAI (0) | 2022.08.12 |
| THE GREEN ARCH - BELGIAN PAVILIONat EXPO 2020 DUBAI (0) | 2022.08.09 |
| GERMAN PAVILIONat EXPO 2020 DUBAI (0) | 2022.08.08 |
| KUNSTHAUS ZÜRICH (0) | 2022.07.11 |
마실와이드 | 등록번호 : 서울, 아03630 | 등록일자 : 2015년 03월 11일 | 마실와이드 | 발행ㆍ편집인 : 김명규 | 청소년보호책임자 : 최지희 | 발행소 : 서울시 마포구 월드컵로8길 45-8 1층 | 발행일자 : 매일



