
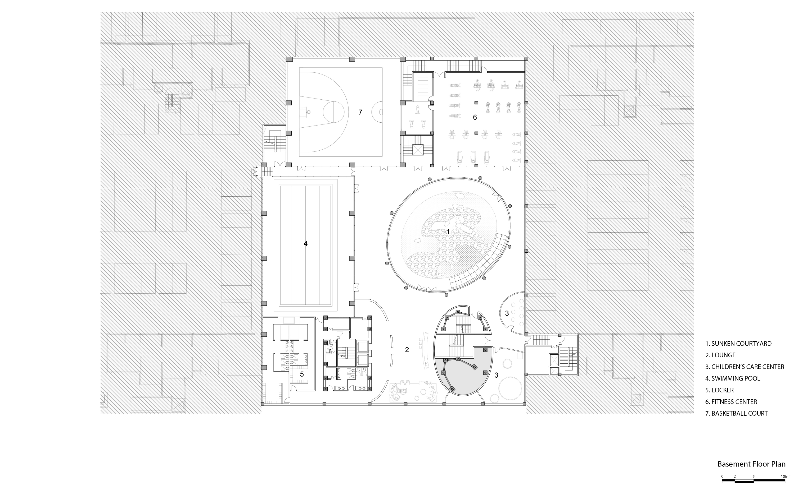
Located in the new district of Fengdong near Xi’an, LAND Community Center serves as a social and cultural venue for the burgeoning neighborhood. Conceived as a floating gateway for a new residential development, LAND Community Center consists of community service center, cafeteria, gallery, multi-purpose room for educational and recreational purposes, reading room, a daycare center for children, it also provides a gymnasium for badminton and basketball courts, a fitness workout room and swimming pool below grade. These recreational spaces are organized around an oval sunken courtyard to allow the natural light to penetrate into the underground facilities.
LAND Community Center explores design solutions to mediate the complexity between new community and existing urban neighborhoods, and create permeable interface between urban space and community space. The juxtaposition of new addition and existing city fabrics contributes to foster a synchronous urbanity.
Beyond the scope of community center itself, the LAND project is designed as an urban structure which aims to provide intimate pockets of public space. Land Community Center hovers over the entry plaza of the residential neighborhood along the main boulevard of Fengdong district. By elevating the gallery, exhibition space and community service center above ground, this community center frees up more open space for the neighborhood, providing a civic place for casual gathering and communal activities. The gravity-defying structure offers pedestrian friendly protection from extreme weather conditions such as harsh sunlight and rain. The landscaped plaza can be accessible for residents of the neighborhoods nearby.
The sculptural quality of this building not only creates an identifiable presence for the new district, but also a unique immersion experience for the residents and visitors alike. The contrast between the complexity of organic base and simplicity of the upper volume is coherent with the duality of Chinese architecture tradition: the integration of the artificial intervention with nature. To achieve the sculptural quality and surface effect of the lower portion for the building, a combination of digital fabrication with local crafts were experimented to produce precast GFRC panels. The mass and weight of the lower portion reference local historical city wall and gateway. The sculptural base of the community center features a dynamic surface of rippling effect to emanate tactile and sensory experience. The upper portion of the community center is wrapped around with curved high performance low-iron glass unit, forming a light-filled interior space for community gathering and activities.
In the sunken courtyard, a featured Zen garden serves as a visual focal point for the multilevel community center. An open floor and flowing interior concept are introduced to encourage the interaction and exchange between the residents. Orchestrated through a series of events, the center provides communal experience of the featured programmes ranging for civic to recreational activities.
Designed as a LEED Gold certified building, the entire project was conceived as a bioclimatic infrastructure which tries to obtain its levels of comfort by combining the local natural resources, both climatic and material ones. The building is also designed to stimulate natural ventilation and create thermal mass and shades which are much appreciated during the extreme heat spikes throughout the summer. Natural light is abundant both above and below grade with well-planned program distribution.
LAND Community Center is intended to create a flexible building for a range of community activities, providing a catalyst for fostering a lively neighborhood. It reflects the ethos of city of Xi’an by integrating contemporary design with historical attributes. In contrast to many rapid urban developments in China, this gravity-defying structure not only establishes a unique architectural expression for the burgeoning residential complex, it maximizes the provision of open and inclusive civic spaces for communal experience, creating a sense of neighborhood and belonging for the otherwise nondescriptive urban district.

중국의 시안 근처 펑동(Fengdong)의 새로운 지구에 위치한 랜드 커뮤니티 센터(LAND Community Center)는 급성장하는 지역을 위한 사회적, 문화적 장소의 역할을 한다. 새로운 주거 개발을 위한 유동적인 입구로 구상된 랜드 커뮤니티 센터는 커뮤니티 서비스 센터, 카페테리아, 갤러리, 교육 및 레크리에이션을 위한 다목적실, 독서실, 어린이집, 배드민턴 체육관 및 농구 코트, 피트니스실, 그리고 지하 수영장으로 이루어져 있다. 이러한 레크리에이션 공간은 자연 채광이 지하 시설로 침투할 수 있도록 타원형의 침상 정원을 중심으로 구성된다.
랜드 커뮤니티 센터는 새로운 커뮤니티와 기존 도시 이웃 간의 복잡성을 중재하고 도시 공간과 커뮤니티 공간 사이를 스며들 수 있는 인터페이스를 만들기 위한 디자인 솔루션을 탐구한다. 새로 추가된 도시 구조와 기존 도시 구조의 병치는 동시에 존재하는 도시성을 조성하는데 기여한다.
커뮤니티 센터 자체의 범위를 넘어 랜드 프로젝트는 공공 공간의 친밀한 공간을 제공하는 것을 목표로 하는 도시 구조로 설계되었다. 토지 커뮤니티 센터는 봉동 지구의 주요 대로를 따라 주거 지역의 진입 광장 위에 있다. 갤러리, 전시 공간 및 커뮤니티 서비스 센터를 지상으로 높임으로써 이 커뮤니티 센터는 이웃을 위한 더 많은 열린 공간을 확보하고 캐주얼한 모임 및 공동 활동을 위한 시민의 장소를 제공한다. 중력을 무시하는 구조는 강한 햇빛과 비와 같은 지나친 기상 조건에서 보행자 친화적인 환경을 제공한다. 조경된 광장은 인근 지역 주민들이 이용할 수 있다.
이 건물의 조각적 품질은 새로운 지역을 식별할 수 있는 존재감을 제공할 뿐만 아니라 거주자와 방문객 모두에게 독특한 몰입 경험을 제공한다. 유기적 기반의 복잡성과 상부 볼륨의 단순함 사이의 대조는 중국 건축 전통의 이중성과 일치한다. 즉, 인공 개입과 자연의 통합이다. 건물 하부의 조각 품질과 표면 효과를 얻기 위해 디지털 제작과 현지 공예의 조합을 프리캐스트 GFRC 패널을 이용하여 실험하였다. 아래쪽 부분의 질량과 무게는 지역의 역사적 성벽과 관문을 참조한다. 커뮤니티 센터의 조각적 기반은 촉각 및 감각 경험을 발산하는 파급 효과의 동적 표면을 특징으로 한다. 커뮤니티 센터의 상부는 곡선형 고성능 저철분 유리 유닛으로 감싸져 커뮤니티 모임 및 활동을 위한 채광이 가득한 내부 공간을 형성한다.
썬큰(Sunken: '움푹 들어간, 가라앉은'을 의미하며, 지하에 자연광을 유도하기 위해 조성한 공간)에는 커뮤니티 센터의 시각적 중심 역할을 하는 젠 정원(Zen garden: 일본의 정원 양식)이 있다. 오픈 플로어와 흐르는 듯한 인테리어 컨셉을 도입하여 입주민 간의 교류를 촉진한다. 일련의 이벤트를 통해 조정된 센터는 시민 활동에서 레크리에이션 활동에 이르는 주요 프로그램의 공동 경험을 제공한다.
LEED Gold 인증 건물로 설계된 전체 프로젝트는 기후 및 물질적 천연 자원을 결합하여 편안함 수준을 얻으려는 생물 기후 기반 시설로 구상되었다. 건물은 또한 자연 환기를 촉진하고 여름 내내 극심한 더위 동안 높이 평가되는 열 질량 및 음영을 생성하도록 설계되었다. 자연 채광은 잘 계획된 프로그램으로 위, 아래 모든 그레이드에 풍부하게 분산된다.
랜드 커뮤니티 센터는 다양한 커뮤니티 활동을 위한 유연한 건물을 만들고 활기찬 이웃을 육성하기 위한 촉매를 제공하기 위한 것이다. 그것은 현대적인 디자인과 역사적 속성을 통합하여 시안시의 정신을 반영한다. 중국의 많은 급속한 도시 개발과 대조적으로 이 중력을 무시하는 구조는 급성장하는 주거 단지에 대한 독특한 건축적 표현을 확립할 뿐만 아니라 공동 경험을 위한 개방적이고 포괄적인 시민 공간 제공을 최대화하여 달리 설명할 수 없는 도시 지역을 위한 이웃과 소속감을 조성한다.























Architects Atelier Ping Jiang / EID Architecture
Location Xi’an, China
Site area 5,816㎡
Building area 4,500㎡
Completion 2020
Principal architect Ping Jiang, AIA
Design team Michelle Bao, Sean Lu, Jinjing Yu, Hong Li, Wei Xu, Chengyang Wang, Yixuan Cheng
Collaborating local design institute & MEP engineer SZAD
Structural engineer Shanghai Wilderness Structural Engineering Co., Ltd / Shanxi Taixin Steel Structure Engineering Co., Ltd
Interior designer Waterfrom Design / Shenzhen Feiyan Interior Design Co., Ltd
Landscape architects GZ.S.P.I. LANDSCAPE DESIGN CO.,LTD
GFRC Meichuang Building Material
Facade consultant CCBH
Client Shaanxi Vanland Real Estate Co.,Ltd
Photographer LUJING ARCHITECTURAL PHOTOGRAPHY, YIKE STUDIO, HU YIJIE
'Architecture Project > Infrastructure' 카테고리의 다른 글
| SYCTOM SORTING CENTER (0) | 2022.11.16 |
|---|---|
| 9TH AVENUE PARKADE (0) | 2022.10.17 |
| EXPANSION OF HELSINKI INTERNATIONAL AIRPORT (0) | 2022.06.13 |
| Sports Complex in Sant Francesc Xavier (0) | 2022.02.18 |
| COURTHOUSE OF BÉZIERS (0) | 2022.02.08 |
마실와이드 | 등록번호 : 서울, 아03630 | 등록일자 : 2015년 03월 11일 | 마실와이드 | 발행ㆍ편집인 : 김명규 | 청소년보호책임자 : 최지희 | 발행소 : 서울시 마포구 월드컵로8길 45-8 1층 | 발행일자 : 매일



