
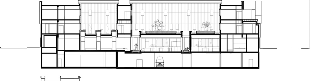
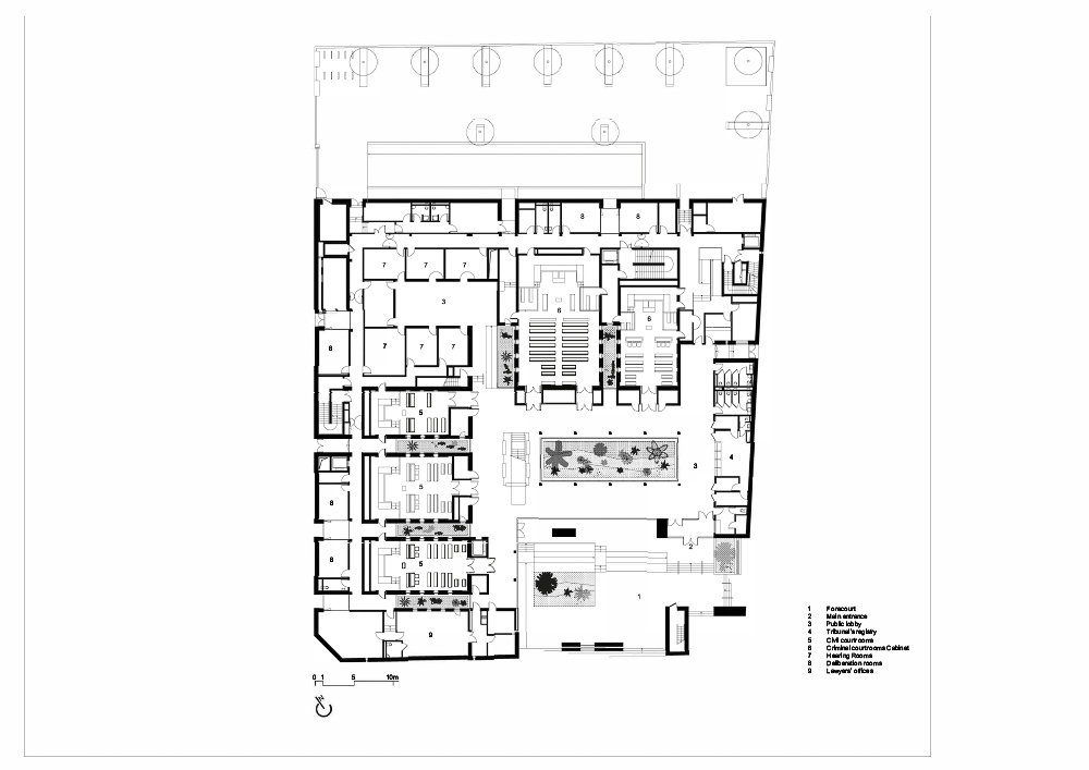
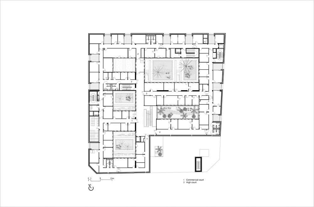
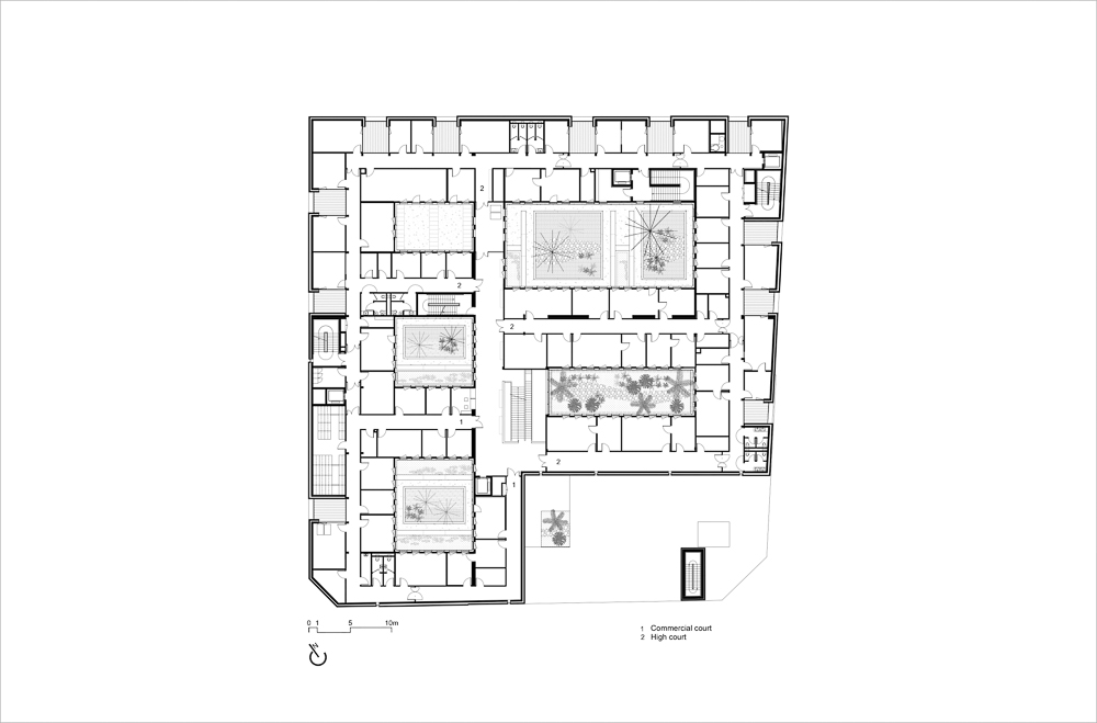
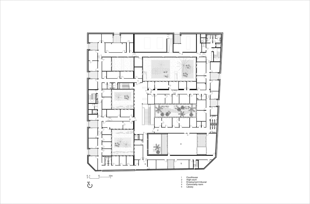
Open on to the city by nature, more than any other, a public building is an urban component. It signifies, invites, brings the city alive. The court plays on the duality between the urban monumentality of a judicial institution and the serenity necessary to handle delicate cases that affect people's lives. Between stacks of three layers of rock, as stone blocks in a quarry, extends a landscaped oasis that filters the light, tempers the atmosphere and links the areas accessible to the public. The voids qualify the solids: at each level, projections and patios locate between the blocks. The stepped masses encourage the light to enter, creating internal landscapes to protect the premises from any intrusive view. As such, security of the facades and confidentiality are provided with ease. Monochrome, through its irregularities, bubbles, scratches and bumps, the sandblasted and hammered concrete gives strength and thickness to a rustic material. A symbol of justice, the parvis is here the antechamber, the introduction, the sheltered outside institution; open to urban life it soothes, protects and welcomes.
Voids open between the rocks to form light wells and crevices, terraces and patios; sources of light. This compact device provides a temperate climate within, an indoor environment marked by transparency and the play of light. The atmosphere modulates with the seasons in accordance with the need for protection from the sun or for it to enter the space. The transparency of the lobbies gives glimpses to the central patio shadow garden planted with tree ferns, that distributes and links the public waiting areas and courtrooms. Built-in furniture within public areas and the office furniture have been designed to ensure the comfort and modernity of reception and work areas. By its formal and constructive sobriety, each detail contributes to the perception of the sensuality of the materials and the comfort of the building, to contribute to a serene justice.

베지에 법원은 도시를 구성하는 공간으로, 자연과 함께 도시에게 열린 공간을 제공한다. 이 공간의 존재는 결코 없어서는 안 될 도시의 질서를 떠올리게 하는 공간인 것이다. 사법 기관으로서 도시적 기념성과 사람들의 삶에 영향을 미치는 섬세한 사건을 다루는 일상의 미묘한 이중적 이미지를 연상시킨다. 따스한 컬러의 암석들은 조각조각 맞춰진 도시의 형태를 떠올리게 한다. 이 공간 사이에 중정식의 “오아시스”라는 공간이 부드러운 빛들을 내부로 끌어들이며 시민들에게는 더 편안한 공간으로 느껴지게끔 만든다. 각 층마다 돌출부와 발코니가 입면의 블록 사이사이에 마련되어 있으며, 쌓여서 만들어진 듯한 매스에도 빛이 들어오도록 조형적으로 다뤄져 있다. 이는 법원이라는 건물의 특성상 가져야만 하는 보안성을 충족시킨다. 이러한 공간에서도, 오아시스의 중정은 내부에서만 볼 수 있는 풍경을 만들고, 단색의 텍스처가 들어간 콘크리트 마감재는 강도와 두께로 법의 엄중함을 드러낸다. 정의의 상징인 파비스는 이곳의 소개실이자 기술자이며 보호된 외부 기관으로, 도시 생활에 개방되어 있음으로써 사람들을 진정시키고 보호하며 환영한다.
암석 사이에 공극이 열려 광원인 빛의 우물과 틈새, 테라스 및 파티오를 형성한다. 이 소형 장치는 내부의 온화한 기후, 투명도 및 빛의 유희로 특징지어지는 실내 환경을 제공한다. 대기는 태양 빛으로부터 보호하거나 공간으로 들어가는 양을 계절에 따라 조절하게 된다. 로비의 투명함은 공중의 대기 공간과 법정을 분배하고 연결하며, 양치류가 심어진 중앙 안뜰의 그림자 정원을 엿볼 수 있게 한다. 공용 공간의 빌트인 가구와 사무용 가구는 리셉션과 작업 공간의 편안함과 현대성을 보장하도록 설계되었다. 형식적이고 건설적인 절제를 통해 각 세부 사항은 재료의 관능적 감각과 건물의 편안함에 대한 인식에 기여하여 고요한 정의에 기여한다.













Architect Ateliers 2/3/4/
Location Béziers, France
Program Courthouse
Gross floor area 8,057㎡
Principal architect (Ateliers 2/3/4/) Christine EDEIKINS
Interior / Furniture design Guliver design, Bruno Tainturier
Landscape design Tournesol, Francis Farges
Engineer CET, Frédéric Ménière
Client APIJ (Agence Publique pour l’Immobilier de la Justice)
Photographer WeAreContents, CharlyBroyez
해당 프로젝트는 건축문화 2021년 11월호(Vol. 486)에 게재되었습니다.
The project was published in the November, 2021 recent projects of the magazine(Vol. 486).
November 2021 : vol. 486
Contents : RECORDS OPEN EXPO 2020 DUBAI, AND KOREA PAVILION 세계에 퍼지는 한국의 친환경 메시지, 그리고 “마당" : NEWS / COMPETITION / BOOKS : SKETCH THE REMARKABLE PLACE IN THE NEIGHBO..
anc.masilwide.com
'Architecture Project > Infrastructure' 카테고리의 다른 글
| EXPANSION OF HELSINKI INTERNATIONAL AIRPORT (0) | 2022.06.13 |
|---|---|
| Sports Complex in Sant Francesc Xavier (0) | 2022.02.18 |
| YOUTH SPACE GIL:EUM (0) | 2021.04.08 |
| CCA PARKING BUILDING (0) | 2020.12.16 |
| POWERBARN BIOENERGY PRODUCTION PLANT (0) | 2020.10.01 |
마실와이드 | 등록번호 : 서울, 아03630 | 등록일자 : 2015년 03월 11일 | 마실와이드 | 발행ㆍ편집인 : 김명규 | 청소년보호책임자 : 최지희 | 발행소 : 서울시 마포구 월드컵로8길 45-8 1층 | 발행일자 : 매일



