
Youth Space Gil:eum, this project has been promoted by the Seongbuk-gu Office’s Job Economy Division, and is expected to be used as a space for youth start-up support and community center for local residents, centered around the youth network in Seongbuk-gu. The site is located five minutes’ walk from Exit 7 of Gileum Station and is adjacent to a 20m road. As neighborhood living facilities gradually enter the streets where small stores were continuing, the landscape of the streets is changing.

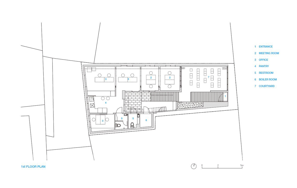
The existing building is a single-story detached house built with cement blocks in 1960, and it is confirmed that the roof was added to use the yard as a store. The work is to remove the part of the extension according to the area listed in the building register and remodel it into a youth space by removing the barrier removal. The roof is a Japanese-style wooden structure, so the work to reveal its frame becomes an important part of the construction.

When the roof of the yard was removed, the 60-year-old wooden frame was damaged beyond reuse, maintaining its shape and forming a frame of new wood. The interior space, which was divided into small rooms, consists of a single space, reinforcing the walls with wooden pillars and beams. The existing boiler and floor heating are maintained to minimize the scope of demolition. Wood windows installed on exterior walls are replaced with aluminum windows of the same size, and exterior walls consisting of red bricks and water-based paints are maintained. Steel stairs to the roof also maintain existing structures and reinforce the railings.

리모델링으로 만들어진 삼양로의 활력거점공간, 청년공간 길:이음
청년공간 길:이음은 성북구청 일자리경제과에서 추진해온 사업으로, 성북구의 청년네크워크를 중심으로 청년 창업지원과 지역주민을 위한 커뮤니티센터 공간이다. 길음역 7번 출구에서 도보 5분 거리에 위치하며 20m 도로에 접하고 있다. 작은 점포들이 연속되어 있던 거리에 근린생활시설이 차츰 들어서면서 거리의 풍경이 바뀌고 있다.

기존 건물은 1960년에 시멘트 블록으로 지어진 단층의 단독주택인데, 마당 부분을 점포로 활용하기 위해 지붕이 덧붙여져 있었다. 건축가는 내부의 칸막이 벽을 철거하여 청년공간으로 리모델링했다. 지붕은 일본식 중목구조로 틀이 형성되어 있어 그 뼈대를 드러내기 위한 작업이 공사의 중요한 부분이었다.

마당의 지붕 철거 후, 드러난 60년 된 목재 틀은 재사용이 불가능할 정도로 훼손돼 있었다. 건축가는 형태를 유지하면서 목재를 더하여 뼈대로 새롭게 형성했다. 이렇게 방으로 나뉘던 내부 공간은 벽체가 철거되면서 목재 기둥과 보가 보강되어 하나의 공간으로 구성된다. 기존에 사용되던 보일러와 바닥 난방은 유지되어 철거 범위가 최소화되고, 외부 벽체에 설치되어 있던 목재 창호는 같은 크기의 알루미늄 창호로 교체됐다. 적벽돌과 수성페인트로 구성된 외부 벽체는 그대로 유지됐다. 지붕으로 오르는 철제 계단도 기존의 구조물이 유지되며 난간으로 보강됐다. 기존 공간의 흔적을 남겨놓으면서도 새로운 청년들을 위한 공간으로 태어난 이 활력거점공간을 기대한다.






Architects MODO ARCHITECT OFFICE
Location Samyang-ro, Seongbuk-gu, Seoul, Republic of Korea
Program Office
Site area 138.50m2
Building area 71.47m2
Gross floor area 71.47m2
Building scope 1F
Building to land ratio 51.60%
Floor area ratio 51.60%
Design period 2020. 2 - 4
Construction period 2020. 6 - 10
Completion 2020. 10
Principal architect Kyunghee Kim, Eungrak Lee
Project architect Kyunghee Kim, Eungrak Lee
Structural engineer Power structure & engineering
Mechanical engineer Hana engineering
Electrical engineer Hana engineering
Construction Seam
Client Seongbuk-gu Office
Photographer Jaekyeong Kim
해당 프로젝트는 건축문화 2021년 2월호(Vol. 477)에 게재 되었습니다.
The project was published in the February, 2021 issue of the magazine(Vol. 477).
February 2021 : vol. 477
Contents : RECORDS THE EXPERIMENT TO FACE A REALITY IN AN INFINITE GRID : NEWS / COMPETITION / BOOKS : SKETCH PINK PAVILION IN PAVLOVSK / NEVEROVA OLESYA : RECENT PROJECT GLAMTREE RESORT EMBRACES N..
anc.masilwide.com
'Architecture Project > Infrastructure' 카테고리의 다른 글
| Sports Complex in Sant Francesc Xavier (0) | 2022.02.18 |
|---|---|
| COURTHOUSE OF BÉZIERS (0) | 2022.02.08 |
| CCA PARKING BUILDING (0) | 2020.12.16 |
| POWERBARN BIOENERGY PRODUCTION PLANT (0) | 2020.10.01 |
| COPENHILL, ENERGY PLANT AND URBAN RECREATION CENTER (0) | 2020.10.01 |
마실와이드 | 등록번호 : 서울, 아03630 | 등록일자 : 2015년 03월 11일 | 마실와이드 | 발행ㆍ편집인 : 김명규 | 청소년보호책임자 : 최지희 | 발행소 : 서울시 마포구 월드컵로8길 45-8 1층 | 발행일자 : 매일



