
The restructuring of the Nanterre sorting center is indicative of the approach of the LVA agency. Indeed, although this is an industrial building, it is now open to the neighborhood. Particular care has been given to the spatial qualities, the qualities of use and the working conditions of the employees beyond the strict response of the upgrading to ergonomic and safety standards.
This project carried out as a full mission in association with La Superstructure, Patrice Gobert architecte et associés for Syctom, project owner, is guided by three major architectural principles : bringing natural light into buildings, develop outdoor spaces directly accessible from the work and rest rooms, contribute to the development of natural areas.
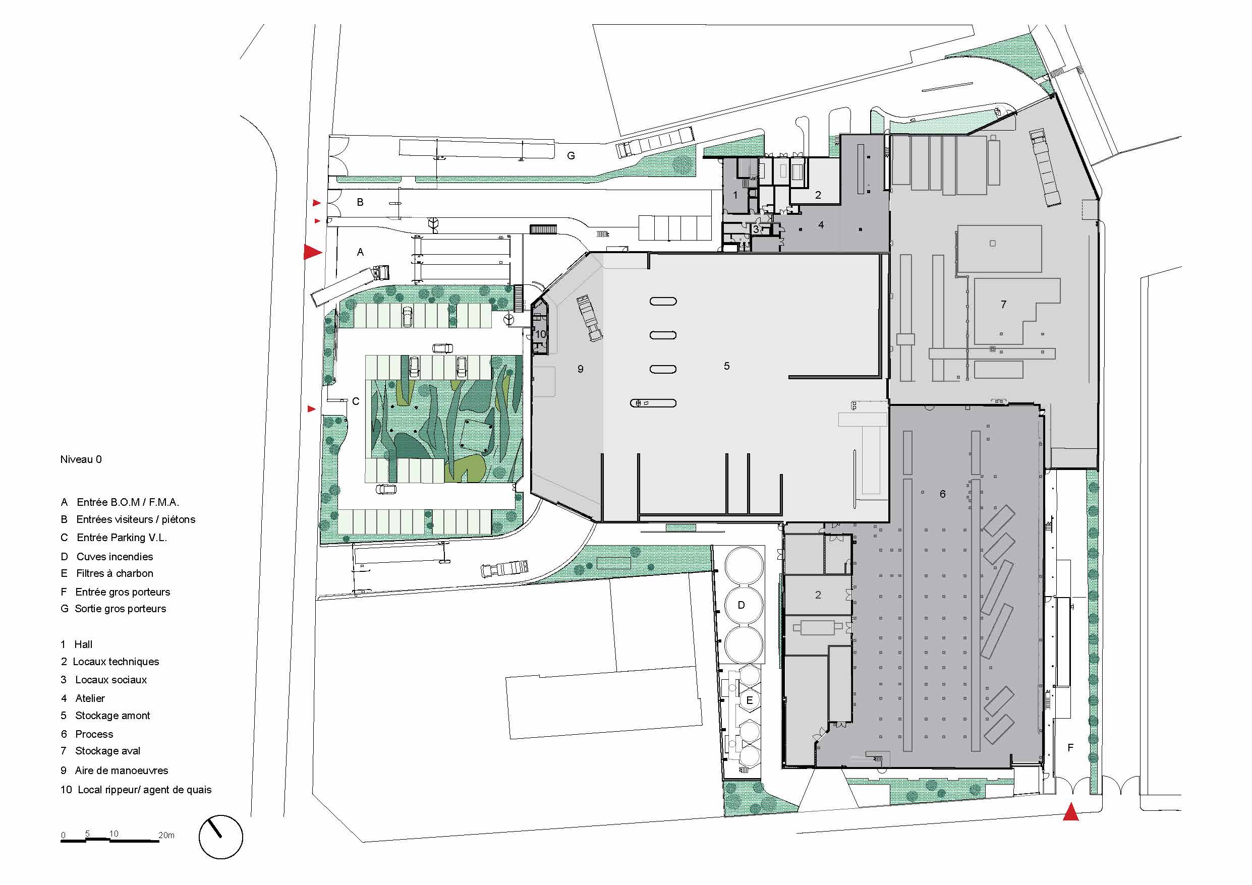
On a densely built and constrained plot (Flood Risk Prevention Plan), the stakes of the rehabilitation resided in the increase of the capacity of reception and treatment of the material, in the reorganization of the overall operation of the site and in the upgrading and thermal and environmental renovation of the buildings. LVA organized a fluid and clear operation while preserving a maximum of existing constructions.
The contemporary architectural treatment of the sorting center expresses the mix of activities : industrial and tertiary. The site is part of an urban fabric in “production” and participates in its definition. District formerly dedicated to industrial activity, the development of the Guilleraies’s JDZ (Joint Development Zone) introduces many tertiary activities while consolidating its original vocation. Hence the importance of the relationship of the sorting center to the urban and landscaping development of the new district. The work becomes easily appropriated by local residents, and its relationship to the neighborhood is calmed.
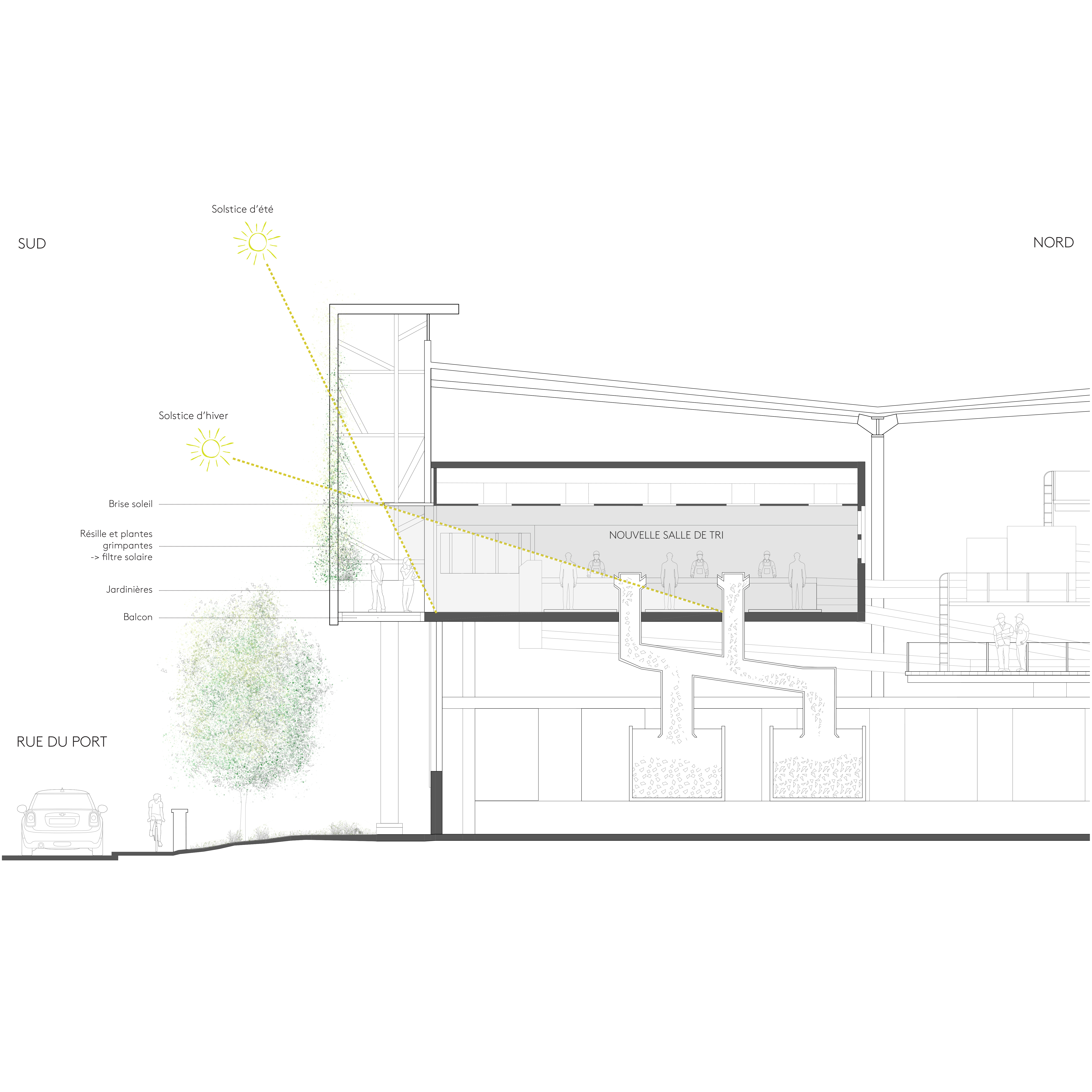
The presence of green spaces changing with the seasons, the penetration of natural light, the new exterior spaces and the new views created enhance the working conditions by offering a new relationship to the site and the landscape. Visual, acoustic and olfactory nuisances are dealt with at the scale of the building, for the comfort of the employees and for a softened urban impact.
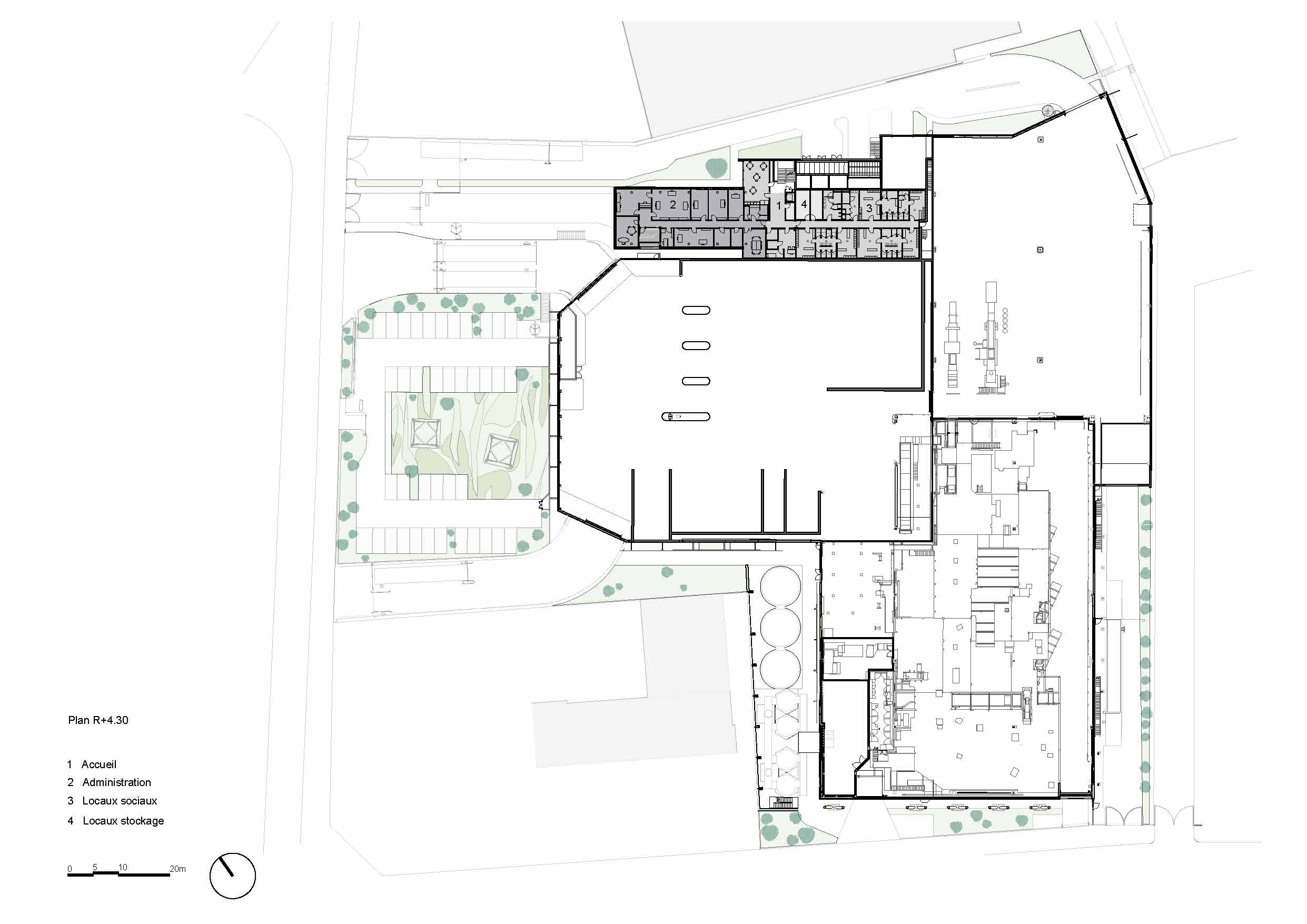
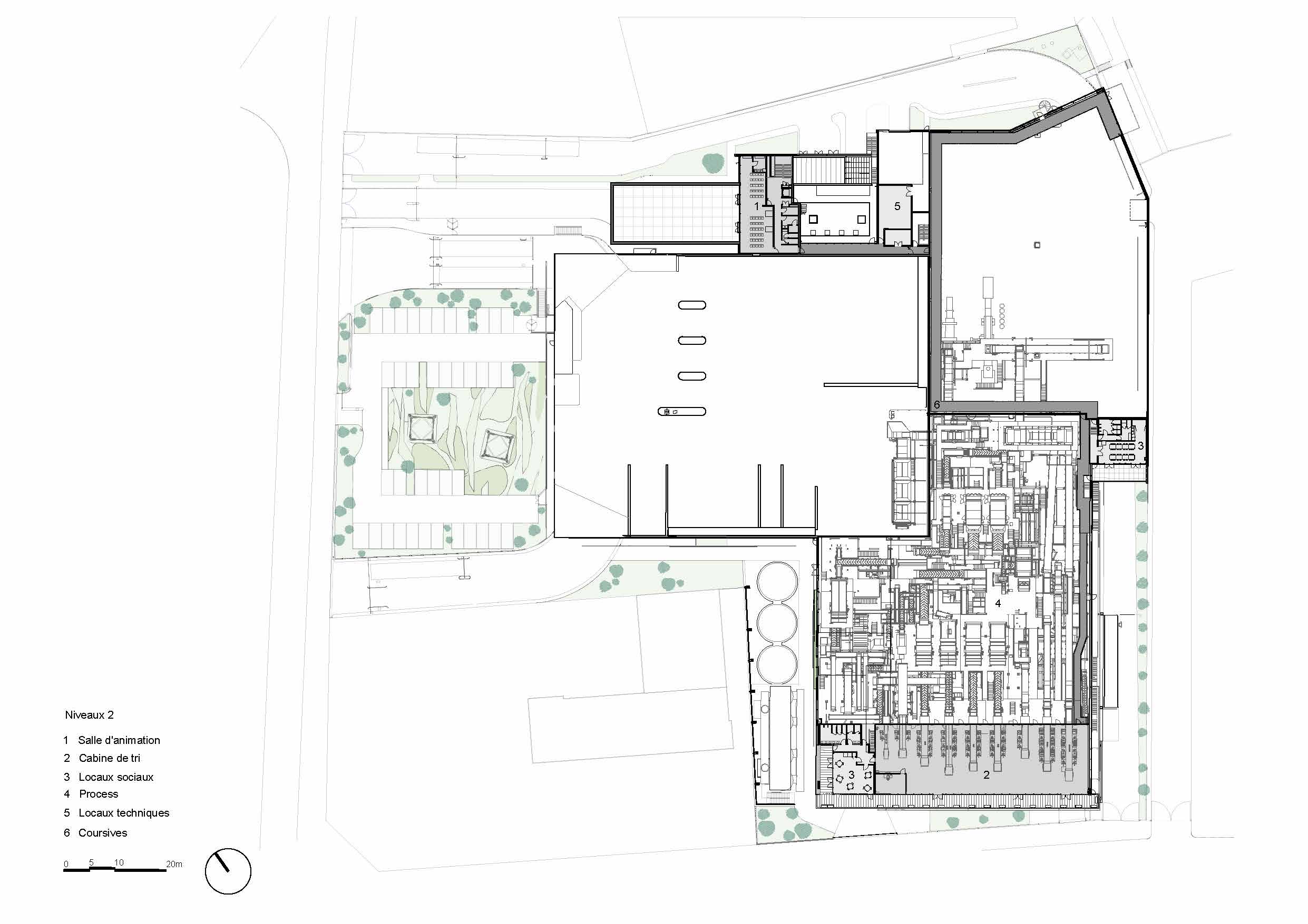
The volumetric principle of the center, adapted to the different functions, has been retained : building A houses the administrative and social premises and the workshops; buildings E, B, C and D, dumping, reception and storage of the material collected, sorting, packaging and evacuation of the sorted material. The restructuring of the vehicle access area and the material reception area required the demolition and reconstruction of Building E and the demolition of the small radioactive material isolation building.
The mesh is the structuring element of the project, a balcony clings to it, the vegetation begins to climb there, it plays with the sun and draws large shadows on the facades, it is the coherence of the industrial tool.

새롭게 태어난 난테레 분류센터는 LVA의 접근 방식을 보여준다. 산업용 건물이지만, 이제는 이웃들에게 열린 공간이 되었다. 인체공학적인 안전 표준 기준으로 개선하는 것을 넘어, 직원을 위한 공간을 개선하고, 사용 품질과 편안한 작업 환경을 만드는 것에 특히 집중하여 지어졌다. SYCTOM의 물류센터는 자연광을 내부로 끌어들이고, 작업실과 휴게실에서 바로 접근할 수 있는 야외공간과 지역 개발에 기여한다.
조밀하게 건설된 제한된 대지(홍수 위험 방지 계획)에서 리모델링을 통해 이뤄야 했던 것은 자재 수용과 처리 능력을 증가시키고, 부지의 전반적인 운영을 재구성하여 건물의 환경을 뒤바꾸는 것이었다. LVA는 기존 구조를 최대한 보존하면서 유동적이고 명확한 운영을 구성했다.
분류 센터의 현대적 건축적 재탄생은 산업활동과 3차 산업의 혼합을 보여준다. 이 대지는 ‘생산’하는 도시 구조의 일부로 정의된다. 이전 산업 활동에 전념했던 지역인 기예라스(Guilleraies)의 JDZ(공동 개발 구역)개발은 원래의 역할을 강화하면서 많은 3차 산업활동을 도입했다. 따라서 분류 센터와 새로운 지역의 도시 및 조경 개발 간의 관계가 중요했다. 지역주민에게도 쉽고 유용하게 쓰이면서 이웃과 차분한 관계를 맺을 수 있도록 했다.
계절에 따라 변화하는 녹지 공간, 내부로 쏟아지는 햇빛, 새로운 외부 공간이 만들어내는 새로운 풍경들은 작업 공간과 주변 풍경의 새로운 관계를 제공해 더 나은 작업 환경을 만든다. 시각적으로, 청각적으로, 후각적으로 발생했던 골칫거리들은 건물이 처리해 직원에게는 편안함을 제공하고, 도시에는 부드럽게 영향을 미친다.
다른 기능에 적응한 센터의 체적 원칙은 그대로 유지했다. A 건물에는 행정 및 사회 시설과 작업장이 있고, 건물 E, B, C, D는 수집된 자재의 투기, 접수와 보관, 자재의 분류 및 포장과 대피를 위한 곳이다. 차량 진입 구역과 자재 접수 구역은 E 건물에 있던 소형 방사성 격리 건물을 철거한 후 재건축을 해야 했다. 외부의 메쉬는 건물의 구조물로 발코니가 달려있다. 풀들은 메쉬를 타고 오르면서 햇빛과 놀고, 정면에 큰 그림자를 만들어내며 산업 도구와 일관성을 가진다.


























Architect Le Dévéhat Vuarnesson Architectes(LVA) │ 르 데베하 보아르네송 아키텍츠
Location Nanterre, France
Program Sorting center
Gross floor area 12,000㎡
Building scope 3F
Completion 2021. 11
Client Syctom
Photographer Guillaume Guerin
해당 프로젝트는 건축문화 2022년 8월호(Vol. 495)에 게재되었습니다.
The project was published in the August, 2022 recent projects of the magazine(Vol. 495).
August 2022 : vol. 495
Contents : RECORDS FIVE ARCHITECTS FROM THREE TEAMS SELECTED FOR ‘2022 KOREA YOUNG ARCHITECTS AWARD’ 2022 젊은 건축가상에 선정된 3개 팀, 5명의 건축가들 : NEWS / COMPETITION / BOOKS : SKETCH THE FLASHING ELEMENTS / CRISTINA CORREA FREI
anc.masilwide.com
'Architecture Project > Infrastructure' 카테고리의 다른 글
| No.5 Service Station of Erhai Lake Ecological Corridor (0) | 2023.01.30 |
|---|---|
| Space Walk (0) | 2023.01.25 |
| 9TH AVENUE PARKADE (0) | 2022.10.17 |
| LAND COMMUNITY CENTER (0) | 2022.07.14 |
| EXPANSION OF HELSINKI INTERNATIONAL AIRPORT (0) | 2022.06.13 |
마실와이드 | 등록번호 : 서울, 아03630 | 등록일자 : 2015년 03월 11일 | 마실와이드 | 발행ㆍ편집인 : 김명규 | 청소년보호책임자 : 최지희 | 발행소 : 서울시 마포구 월드컵로8길 45-8 1층 | 발행일자 : 매일



