
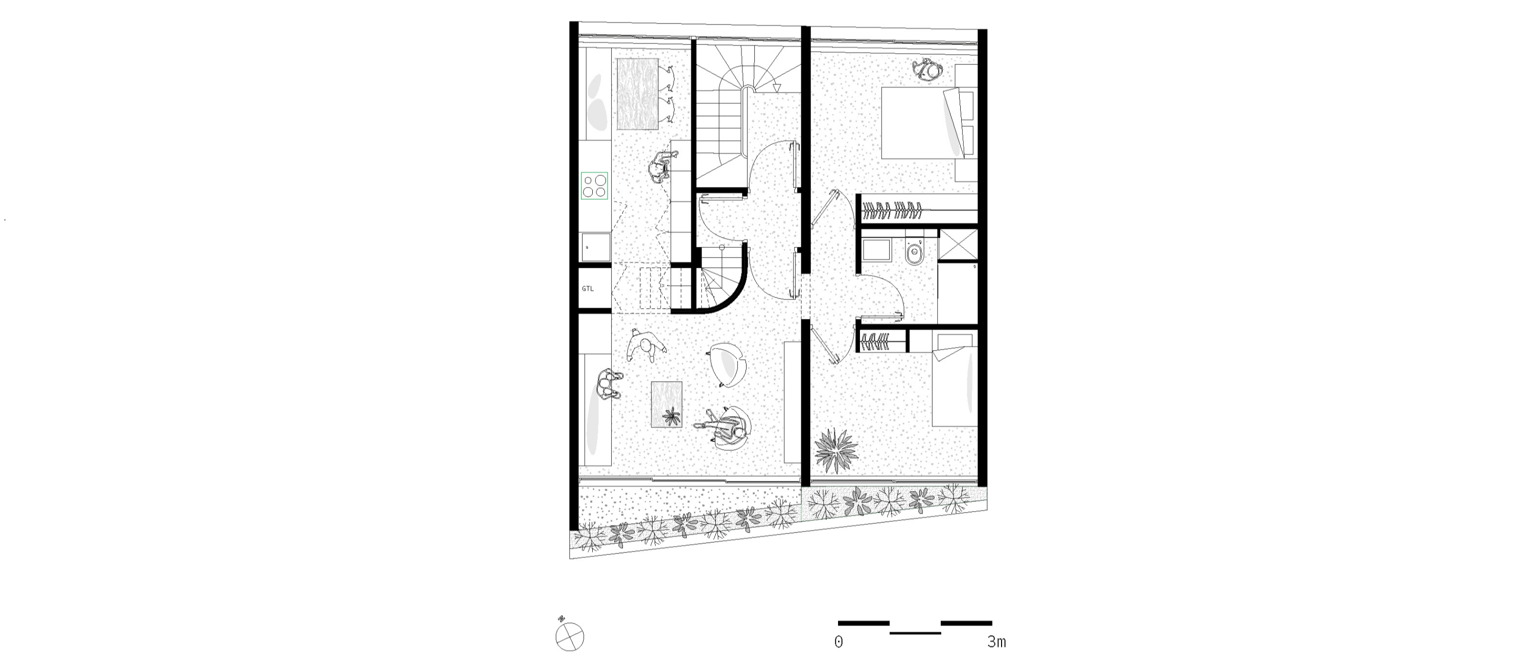
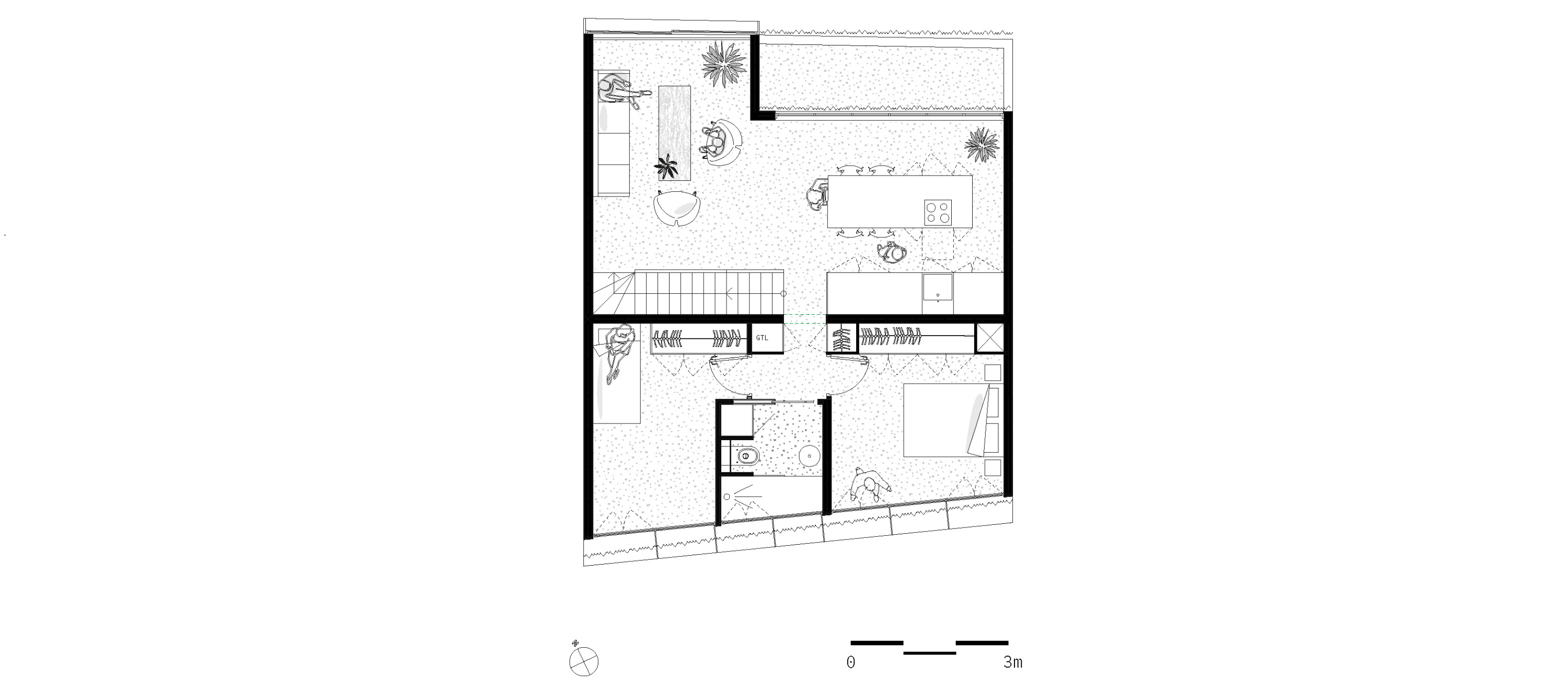
The project is located between two social housing buildings of five and six floors. Built at the end of the 19th century, the existing building was restructured in 1997 with is in good structural condition. The administrative and technical feasibility leads the architects to offer their client an elevation made up of two levels (each of around 60m2) with one accommodation per level. The accommodation on the 4th floor has terraces and a roof with a green hill and the 3rd floor has a planted balcony.
By its volume, the elevation harmonizes smoothly with the lower levels of the building. It embellishes the existing and reinforces the idea of permanence in evolution. Highlighted on the street front by the retreat of the 3rd floor into which a sliding balcony slips, it reinterprets with the 4th floor, the Parisian roof and its brisis.
A double skin of perforated and ribbed sheet steel is installed in line with the three-bay frames. It comes to dress the glass facades. The theme of the skylight is evoked as a contemporary way. The perception of this subtle double skin like a light and pleated veil varies according to the time, the moment. This stylish device filters both light and sights. On the constructive level the rotunnojustman agency has researched and implemented low carbon solutions by using primarily renewable (wood structure and wood wool insulation) or recyclable (steel) materials while implementing energy efficient solutions.
At the 4th and last floor the apartment becomes a house with its terrace and roof garden. Generous volumes, high ceiling and a fluid layout define a spacious and homogeneous accommodation. The glass wall open to the courtyard side favor natural light and views of the Paris urban Lanscape. The 3rd floor crossing apartment is more classic in style. He has a distribution that promotes fluidity and decompartmentalization of the space. To highlight the transversality of the whole the kitchen worktop continues with a seat on the lounge side. From the rolling balcony plants filter the views of the building opposite.

'리빙 온 더 루프'는 건물 두 채 사이에 있다. 1997년에 재건축됐던 건축물에 건축주의 요청으로 한 층에 한 세대가 거주할 수 있는 공간으로 증축된 것이다. 그리하여 테라스와 푸른 언덕 지붕이 있는 5층 공간과 식물이 심어진 발코니가 있는 4층 공간이 만들어졌다. 두 층의 증축된 공간은 입면에서 보았을 때 기존에 있던 건축물과 자연스럽게 이어진다. 건물의 정면인 부분에 4층 공간에는 미닫이 문을 설치하여 약간 후퇴된 발코니의 특징을 살렸으며, 5층은 재해석된 파리지앵 지붕의 모습을 보여준다.
천공 및 골이 있는 강판의 이중 외피가 3베이 프레임과 나란히 설치됐는데, 유리 파사드를 꾸며주는 효과를 준다. 채광창은 현대적인 방식으로 고안됐다. 가볍고 주름진 베일 같은 이중 외피는 시간과 순간에 따라 변하며 빛과 시선을 가볍게 필터링한다. 뿐만 아니라, 에너지 효율적인 공간을 만들기 위해 건축가는 재생 가능한(목구조 및 양모 단열재) 또는 재활용 가능한(강철) 재료를 주로 사용했다.
5층인 마지막 층은 테라스와 옥상 정원이 있다. 안뜰 쪽으로 열린 유리 벽은 자연 채광과 파리 도시의 전망을 제공한다. 4층의 아파트는 더 고전적인 스타일을 가지고 있으며, 주방 조리대는 거실쪽 좌석과 함께 길게 이어진다. 발코니의 식물은 맞은편 건물의 시선을 차단한다.



















Architectes rotunnojustman architectes
Location 4 Rue de l'Harmonie 75015 Paris,France
Gross floor area 122㎡
Completion 2021
Client SCI DE L’HARMONIE
Photographer Herve Abbadie
해당 프로젝트는 리빙즈, 디테일 04호에 게재되었습니다.
The project was published in LIVINGS, Detail 04
[BOOK] LIVINGS, Detail 리빙즈, 디테일 03호, 04호
<LIVINGS, Detail 리빙즈, 디테일 03호, 04호> 72개의 형태와 라이프스타일을 담은 주거공간, 국내외 “디테일한 주택 프로젝트”의 엮음 매월 국내외 다양한 건축물들을 소개해 온 <월간 건축문화>가 <
www.masilwide.com
'Architecture Project > Multifamily' 카테고리의 다른 글
| ROTTMANNSBODEN DUPLEX (0) | 2022.06.14 |
|---|---|
| JINGWAN-DONG HOUSE (0) | 2022.06.10 |
| SENSATION BUILDING (1) | 2022.06.09 |
| LH HAESIMDANG (0) | 2022.05.23 |
| BO 52 (0) | 2022.05.18 |
마실와이드 | 등록번호 : 서울, 아03630 | 등록일자 : 2015년 03월 11일 | 마실와이드 | 발행ㆍ편집인 : 김명규 | 청소년보호책임자 : 최지희 | 발행소 : 서울시 마포구 월드컵로8길 45-8 1층 | 발행일자 : 매일



