
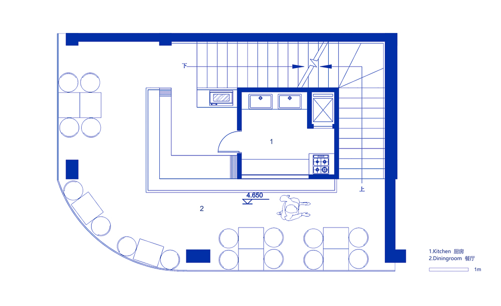
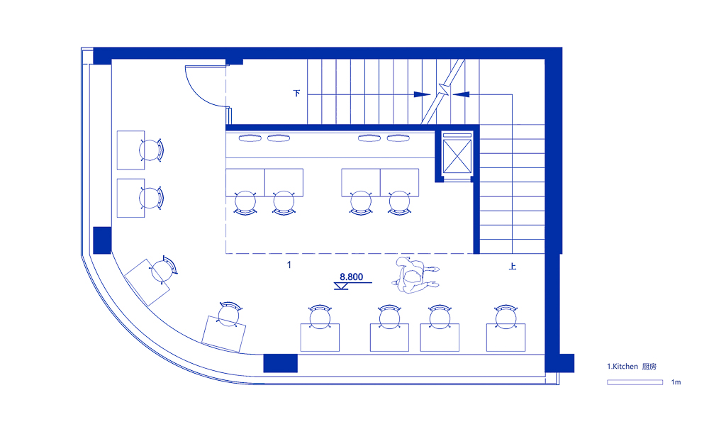
114 Zhenbang Road is a restaurant project renovated from a historical building with traditional “Qilou” - arcade surroundings. It is distinctive for the original architectural form and its unique location, Zhongshan Road which was the old city center in Xiamen. Existing buildings in this area can be traced back to 1920s, as a common architecture typology of arcade in the southern Fujian area. Our project is a five-storey arcade, located in the street corner, with the area of 45㎡ per floor.
The site context and architectural features are significant aspects of design considerations at the same time of meeting functional requirements. Although all the buildings in the surrounding are arcade, the street elevation seems to be some-what littery on account of long time and lack of maintenance.
We hope that the reborn elevation can bring the lightsome and lively atmosphere to the old street and maintain the inner relationship with the traditional architectural form. Therefore, we modify the original facade design into aluminum grating, adopting the size of local red brick in Xiamen as a module to express the tradition-al form with modern material.
Furthermore, the rhythm of holes in the grating is designed with parameterization according to the daily light data. As a result, there will be gradual change of density from top to bottom, so that the daylighting and heat preservation can be guaran-teed.
Interior design emphasizes the contrast of light and heavy, dark and light to the external facade. In addition, terrazzo is applied in the area of floor and wall, and consequently forms a grey core vertically running through 5 floors. In the evening, the livest time in the Zhongshan Road area, it can be seen even in the distance as a self-luminous volume with massive inner core and lightsome frock.

114 Zhenbang Road는 전통적인 ‘Qilou(아케이드 환경)’가 있는 역사적인 건물을 개조한 레스토랑 프로젝트이다. 독창적인 건축 형태와 샤먼(廈門)의 오래된 도심이었던 중산로(Zhongshan Road)라는 특별한 위치를 가졌다. 이 지역의 기존 건물은 1920년대로 거슬러 올라가 푸젠 남부 지역 아케이드의 일반적인 건축 유형으로 볼 수 있다. 이 프로젝트는 거리 모퉁이에 위치한 5층 아케이드로, 층당 면적 45㎡이다.
대지의 맥락 및 건축적 기능은 기능적 요구 사항을 만족시키면서 동시에 설계시, 고려해야 하는 중요요소다. 주변의 모든 건물은 아케이드이지만, 도로 측 입면은 오랜 시간과 유지 관리 부족으로 다소 지저분해 보였다. 새롭게 디자인된 입면은 옛 거리에 경쾌하고 활기찬 분위기를 불어넣고, 전통적인 건축양식과 새로운 내적 관계를 형성한다. 따라서 건축가는 파사드의 기존 디자인을 알루미늄 격자로 수정하고 샤먼 현지 붉은 벽돌 크기를 모듈로 채택하여 현대적인 재료로 전통적 형태로 표현하며, 오래된 골목에 새로운 감각을 더했다. 또한, 건축가는 일일 일조량 데이터에 따라 변화되는 값을 계산하여 격자에 있는 개구부의 리듬을 형성하고, 단열과 차양을 동시에 해결했다.
내부는 가벼움과 무거움, 어두움과 밝음의 대비가 강조되는 것을 볼 수 있다. 또한, 바닥과 벽체 부분에 테라조를 적용하여 5개 층에 걸쳐 회색 코어가 수직으로 연결되어 있다. 중산로 지역에서 가장 활기찬 저녁 시간에는 멀리서도 거대한 내부 코어와 가벼운 드레스를 입은 듯 자체적으로 빛을 내는 골목의 새로운 조명이다.
















Architects TEAM_BLDG
Location Xiamen, Fujian China
Program Restaurant, Remodeling
Built area 230㎡
Design period 2015. 8 - 2016. 2
Construction period 2016. 2 - 2017. 6
Project architect Xiao Lei, Bai Lu, Liu Yingying, Pan Jialin, Ye Lizhou, Pedro Manzano Ruiz
Photographer Eiichi Kano
해당 프로젝트는 건축문화 2022년 3월호(Vol. 490)에 게재되었습니다.
The project was published in the March, 2022 recent projects of the magazine(Vol. 490).
March 2022 : vol. 490
Contents : RECORDS THE BEGINNING OF THE JOURNEY TO THE MUSEUM OF ART IN THE FOREST, 《MMCA GWACHEON PROJECT 2021: ART BUS SHELTER》 숲 속 미술관으로 가는 여정의 시작, 《MMCA 과천프로젝트 2..
anc.masilwide.com
'Architecture Project > Commercial' 카테고리의 다른 글
| HOTEL WIND (0) | 2022.06.08 |
|---|---|
| HOHO WIEN (0) | 2022.06.08 |
| TIANYA BOOKS (0) | 2022.05.30 |
| ICARO HOTEL (0) | 2022.05.27 |
| S BUILDING (0) | 2022.05.20 |
마실와이드 | 등록번호 : 서울, 아03630 | 등록일자 : 2015년 03월 11일 | 마실와이드 | 발행ㆍ편집인 : 김명규 | 청소년보호책임자 : 최지희 | 발행소 : 서울시 마포구 월드컵로8길 45-8 1층 | 발행일자 : 매일



