
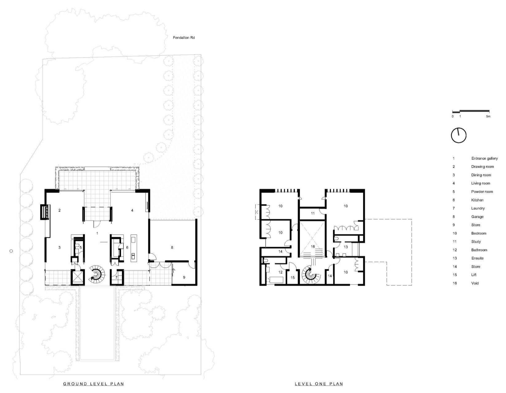
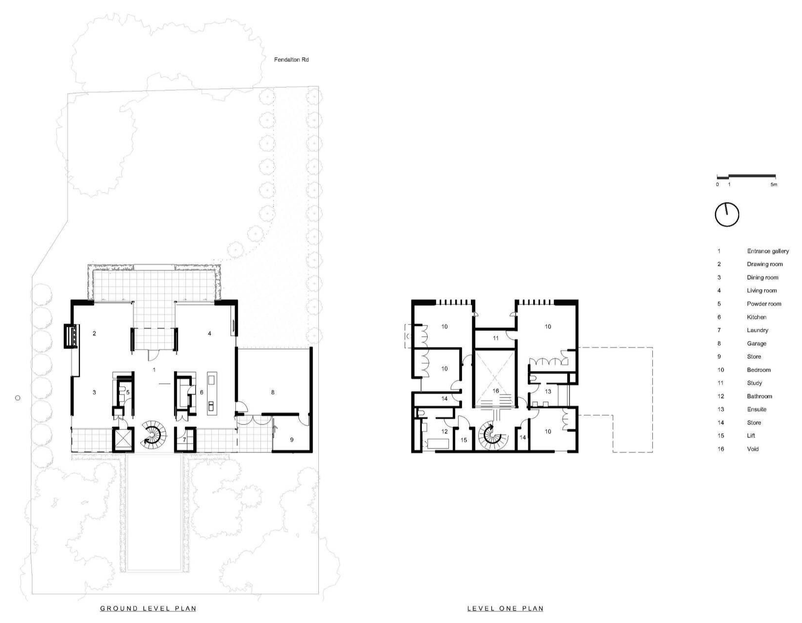
The Fendalton Road project explores the love and memory a retired couple have of a home and site they have occupied for over thirty years. A two level 1910 home was destroyed in the devastating 2011 Christchurch earthquake, and subsequently demolished. A new home was required within the footprint of the original. An existing formal garden adorned the level site and was to remain untouched for the new home. The owners’ established connections to the site and space were at the forefront of this project. The new home, with its white, triple-gabled roof, looks to honour the memory of the spatial relationships of the original home. The design was required to enhance and celebrate these conditions. For the owners, the space is reminiscent of the historic home, but revived by a bold contemporary reinterpretation. The entry hallway is a central hub to the home - enhanced and widened with a ceiling higher than eight metres - it now provides a versatile space for entertaining. The house functions as an airy gallery-like space for the owner’s art collection, and antique furniture - all from their original home. The ground floor spaces are connected through an open circulation but can be manipulated into smaller, more intimate areas by closing large pocket sliding doors, curtains and retractable windows. The programme places the ground floor living areas and kitchen in their original locations but seeks to highlight the existing garden by reordering the spaces to provide a stronger connection to the landscape. This association, that was once limited by traditional window openings is strengthened with full height openings that provide site lines to the front and back garden throughout the house. A sculptural spiral staircase connects the two wings, and the home is future proofed with the inclusion of a passenger lift, serving four bedrooms and two bathrooms on the upper floor.

펜달튼 하우스는 은퇴한 부부가 30년 넘게 살아온 집과 그 지역에서 보낸 사랑과 추억을 짐작하게 해주는 집이다. 1910년 경 지어졌던 2층짜리 주택은 2011년 크라이스트처치 지진으로 인해서 무너진 후 철거됐다. 팬달튼 하우스는 똑같은 땅 위에 새롭게 지어진 집이다. 대지에는 예전 주택이 있을 때 부터 있던 정원이 그대로 유지되어 있다. 팬달튼 하우스는 똑같은 대지 안의 새로운 공간에서 건축주가 가지고 있는 기존 집에 대한 요소들을 떠올리게 한다.
새 집의 흰색 삼중 박공 지붕은 공간적 측면에서 이전 집에 대한 유대를 나타낸 것이다. 디자인적인 측면에서 이러한 조건이 개선되고 기념 되어야 했다. 클라이언트를 위해 집의 많은 공간이 기존의 집을 연상시키고 현대적으로 재해석했다.
입구 복도는 집의 주요 통로 역할을 하며 8미터되는 천장을 확장하여 손님을 접대할 수 있는 공간이 되기도 한다. 이 집은 클라이언트의 미술 작품들과 기존 집의 앤티크 가구를 위한 갤러리 역할도 함께 하고 있다. 1층 공간은 테라스를 통해 연결되고 대형 포켓 슬라이딩 도어, 커튼, 개폐식 창을 이용해서 더 작고 친밀한 공간으로 사용할 수 있다.
1층 거실과 주방은 이전 집과 동일한 위치에 배치하고 공간을 재배열하여 정원과의 연결성을 높였다. 기존에는 외부와 내부의 연결이 전통 창으로만 제한되어 있었지만 집 전체에 걸쳐 전면과 후면 정원에 큰 창을 달아 외부와의 연결성을 높였다. 마치 조각같은 나선형 계단이 위층의 두 공간을 연결해준다. 집의 위층에는 4개의 침실과 2개의 욕실, 손님용 엘리베이터가 있는 미래 지향적인 주택이다.












Architects Patterson Associates Architects
Location Christchurch, New Zealand
Site area 1,016㎡
Building area 330㎡
Gross floor area 326㎡
Construction period 2015 - 2016
Completion 2016
Principal architect Andrew Patterson, Andrew Mitchell
Project architect Andrew Mitchell
Design team Daniel Zhu
Structural engineer Lewis Bradford
Construction SMBC - Sam Manson
Photographer Sam Hartnett
해당 프로젝트는 리빙즈, 디테일 03호에 게재되었습니다.
The project was published in LIVINGS, Detail 03
[BOOK] LIVINGS, Detail 리빙즈, 디테일 03호, 04호
<LIVINGS, Detail 리빙즈, 디테일 03호, 04호> 72개의 형태와 라이프스타일을 담은 주거공간, 국내외 “디테일한 주택 프로젝트”의 엮음 매월 국내외 다양한 건축물들을 소개해 온 <월간 건축문화>가 <
www.masilwide.com
'Architecture Project > Single Family' 카테고리의 다른 글
| UNHADAM AKA NC1211 (0) | 2022.05.24 |
|---|---|
| HOUSE LHOTKA (0) | 2022.05.24 |
| TTARO TTO GACHI HOUSE (0) | 2022.05.20 |
| HOUSE IN CHIKUSA (0) | 2022.05.19 |
| HOUSE JIPYEONG (0) | 2022.05.17 |
마실와이드 | 등록번호 : 서울, 아03630 | 등록일자 : 2015년 03월 11일 | 마실와이드 | 발행ㆍ편집인 : 김명규 | 청소년보호책임자 : 최지희 | 발행소 : 서울시 마포구 월드컵로8길 45-8 1층 | 발행일자 : 매일



