
Housing as a fortress After experiencing the 911 catastrophe in New York in person, residential space has come to have a new meaning for me. It was not a place where a social unit stays or a fashionable place by lifestyle choice, but rather as a solid backdrop responsible for the well-being and safety of its residents. There are conflicting dual intentions in the design, such as the delusional desire to protect internal members by functioning as a shelter from the outside, versus the desire to build a maximum relationship with nature, and internally to expand family communication and sharing of life. This is expressed as a flexible spatial connection inside in contrast to a firm disconnection to outside.
Symbolic/actual connection with the outside
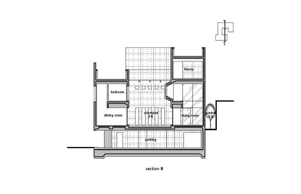
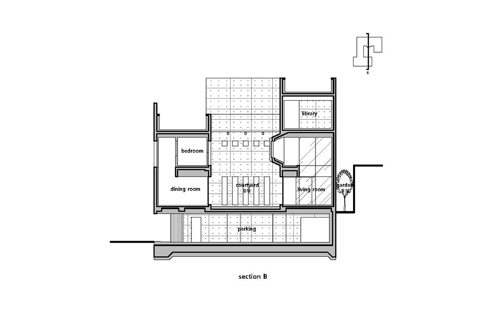
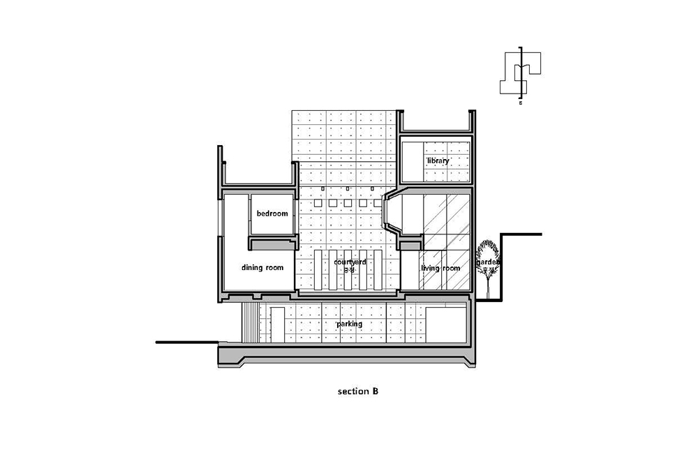
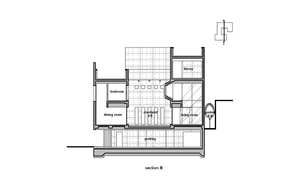
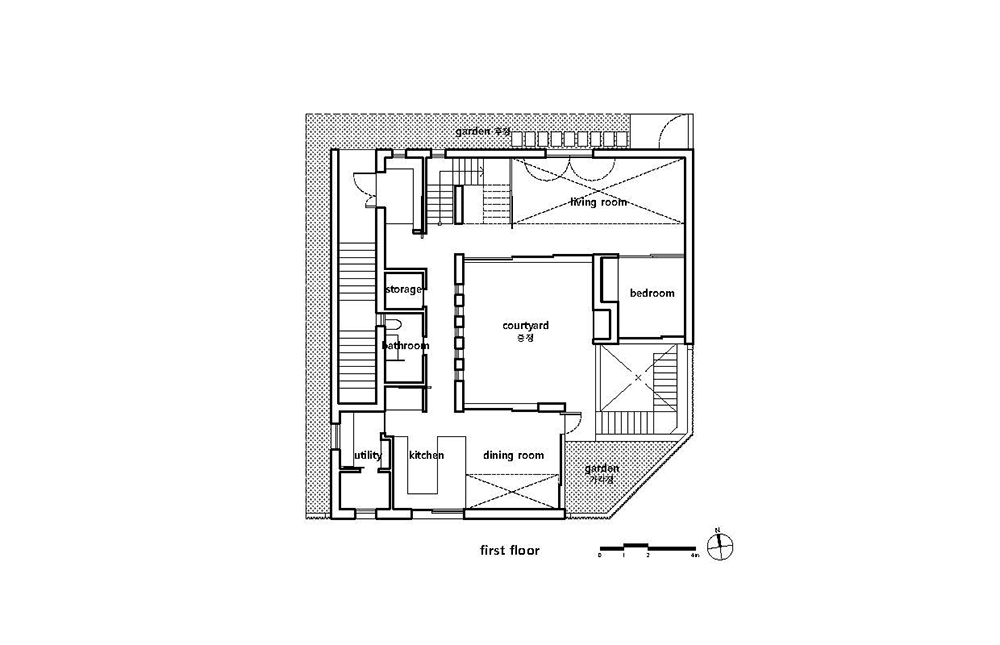
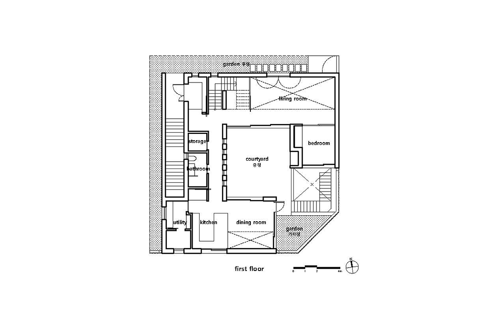
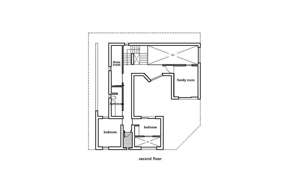
In NC1211, we applied two configurations to alleviate external disconnection. Freestanding wall is applied to organize a layer in the direction of entry, and a c-shaped mass was created in the opposite direction to form a courtyard. The c-shaped composition is a common solution for the inward scheme in Pangyo residential area, but at Unhadam, the scheme begun from the broken □-shaped composition rather than the c-shaped arrangement. In addition, the projected window facing the outside was installed to alleviate the inward tendency of design. This projected window also intends to symbolically express communication with the outside, and is the central element of entire architecture. In addition, a large clearstory window was placed on the two elevations facing the road to extend the internal and external relationship, simultanesouly preventing the activities of the inner space from being exposed.
Investigating Korean space
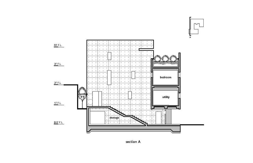
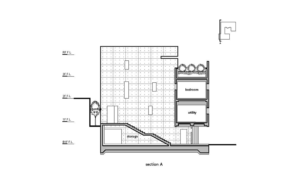
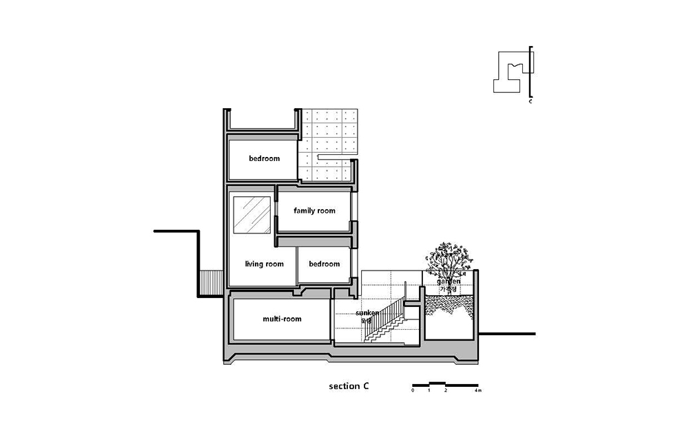
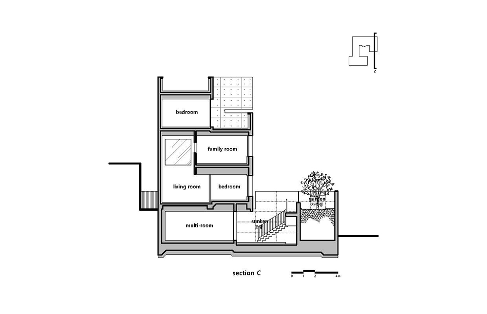
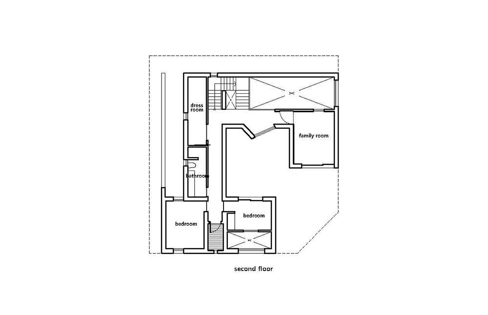
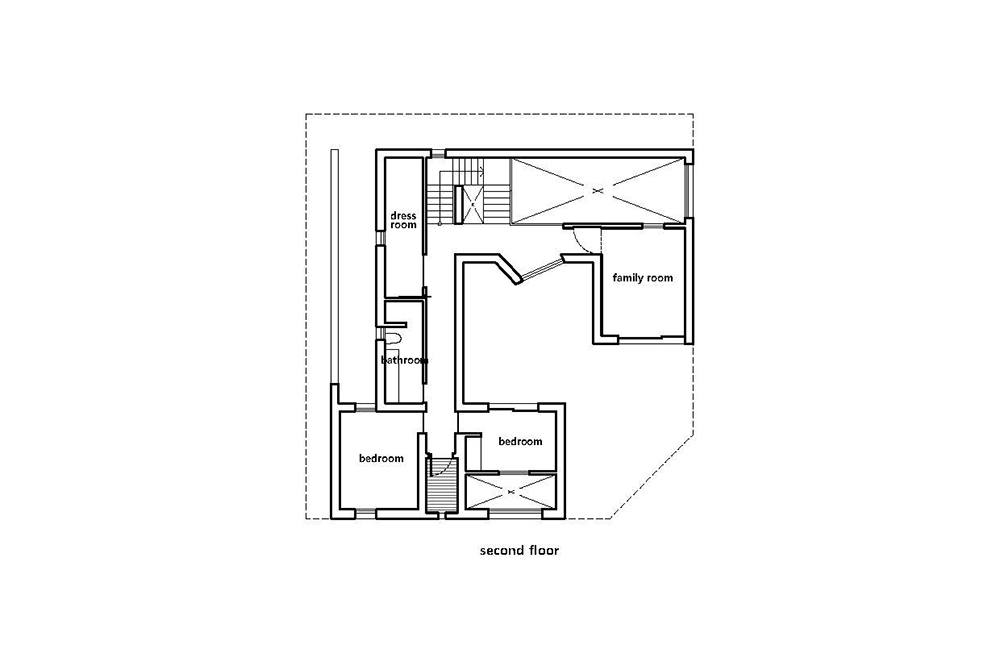
Plan: During the design of this project, we learned features that were not recognized in the previous designs. Our housing is inevitably planned based on the ground floor because we basically prioritizes bidirectional consideration rather than one direction with external space. The upper and lower layers belong to the ground layer. Of course, the way architecture meets the land is the basic starting point for all architecture, but in Korean architecture, its status acts as a much stronger driver than other countries’ architecture. Due to this fact recognized in the middle of the design, the upper floors were designed with the experience on the first floor as a top priority.
The conceptual internalization of courtyard: The priority of the relationship between inside and outside is again linked to how to define external space. We planned the central courtyard as a conceptual inner room, set as an intermediate area between the living room and the dining space, and defined the space as conceptual interior through lighting fixtures hanging in the air. The courtyard surrounded by the interior space becomes a linked room, and the inside and outside expands to each other.
Flexibility of opening and closing: The opening and closing of the space through the hidden sliding door/wall door is the closest way to applying the configuration of traditional space to the present. The indoor rooms arae open and connected to each other, but it is planned to be used in various combinations with the hidden sliding doors connect and disconnect, so that the perimeter of space can be defined according to use.

가족의 행복을 지키는 요새, 운하담 aka NC1211
요새로서의 주거
뉴욕 911 대참사를 현장에서 경험한 이후, 주거 공간은 나에게 새로운 의미를 지니게 되었다. 단순히 하나의 사회적 유닛이 머무는 장소, 혹은 라이프스타일에 의한 트렌드가 반영된 장소가 아니라 구성원들의 행복 그리고 안전을 책임지는 배경으로서의 주거, 보호체의 의미를 가지게 됐다. 건축이 외부로부터 셀터, 아니 요새로 기능해 내부구성원을 지키고 싶다는 마음과 주거의 당연한 요구로서 자연과 외부에 최대한 관계를 짓고 싶은 욕망, 내부적으로는 가족간 소통과 생활의 공유를 확장하고자 하는 욕구 등 상반된 이중적 의도가 디자인에 존재한다. 이는 외부에 대한 단호한 단절과 이에 대비되는 내부에서의 유연한 공간적 연결로 표현된다.
외부와의 상징적/실제적 연결
운하담은 폐쇄성을 완화하기 위해 두 가지 구성을 적용했다. 진입 방향은 켜를 조직해 가벽을 두었고, 반대방향은 ㄷ자 매스를 만들어 중정을 구성했다. ㄷ자 구성은 판교 주거지역에서 내향적 평면을 위해 흔히 적용되는 해결방식인데, 운하담에선 ㄷ자 배치라기보다는 부서진 ㅁ자 구성에서 출발했다. 여기에 더해 외부로 향하는 돌출창(Projected window)으로 폐쇄적인 건축의 느낌을 완화하려고 하였다. 이 돌출창은 외부와의 소통을 상징적으로 표현하려는 의도이며, 이 집의 얼굴이다. 또한, 도로에 면하는 두 입면은 내부공간의 활동이 노출되지 않는 대형창을 두어, 내외부의 관계를 연장하였다.
한국적 공간에 대한 연구
평면계획: 이전 주택계획에서는 인지하지 못했던 특징을 이번 설계를 통해 알게 되었다. 그것은 우리의 주거는 기본적으로 외부공간과의 단방향이 아닌 양방향 고려를 우선으로 하기 때문에, 필연적으로 지상층을 기본으로 계획된다는 것이다. 상부, 하부층은 지상층에 귀속된다. 물론 건축이 땅과 만나는 방식은 건축의 기본적인 출발점이지만, 우리나라 건축에서 그 위상은 다른 국가의 건축계획보다 훨씬 더 강력한 동인으로 작동한다. 설계 중반에서부터 인지된 이 사실로 인해, 적층계획 또한 지상 1층에서의 경험을 최우선으로 했다.
중정의 개념적 내부공간화: 외부공간의 관계가 우선시 된다는 것은 다시 외부공간을 어떻게 정의할 것인가와 연결된다. 우리는 중정을 개념적인 내부공간으로 인지하고 계획하여, 거실과 다이닝 공간의 중간 영역으로 설정하며, 이를 공중에 매달리는 조명을 통해 공간적 구획을 규정했다. 내부공간으로 둘러싸인 중정은 어떠한 내부보다도 내밀한 공간이 되고, 내부는 외부로, 외부는 내부로 확장된다.
열림과 닫힘의 유연성: 숨겨진 미닫이문/벽문을 통한 공간의 열림과 닫힘은 예전 공간의 사용 방식을 지금 적용하는데 가장 근접한 방식이라고 생각한다. 실내의 공간은 기본적으로는 열려 있고 이어지지만, 현관과 복도, 거실과 복도, 주방/식당과 복도, 마스터베드룸과 복도, 가족실과 복도 등 다양한 조합으로 분절되어 사용할 수 있게 계획하여 필요할 때 공간의 구분을 조절할 수 있게 계획했다.






















Architects 남수현(명지대학교) + 최선미(솔리드로직 건축사사무소) | Soohyoun Nam(Myongji University) + Sunmi Choi(solidlogic Architecture)
Location Unjung-dong, Bundang-gu, Seongnam-si, Gyeonggi-do, Republic of Korea
Program Residence
Site area 270.20㎡
Building area 134.16㎡
Gross floor area 451.77㎡
Building scope B1, 3F
Building to land ratio 49.65%
Floor area ratio 97.25%
Design period 2018. 6 - 2019. 2
Construction period 2019. 6 - 2020. 8
Principal architect Soohyoun Nam, Seonmi Choi
Design Team Jonghun Moon, Hyejin Lee, Yousung Choi, Seunghyun Cho, Jihee Kim, Bongsu Jung
Construction Baikhwa Lee(JEHYO)
Client Weegyo Lee, Youngbok Noh
Photographer Hyosook Chin
해당 프로젝트는 건축문화 2022년 3월호(Vol. 490)에 게재되었습니다.
The project was published in the March, 2022 recent projects of the magazine(Vol. 490).
March 2022 : vol. 490
Contents : RECORDS THE BEGINNING OF THE JOURNEY TO THE MUSEUM OF ART IN THE FOREST, 《MMCA GWACHEON PROJECT 2021: ART BUS SHELTER》 숲 속 미술관으로 가는 여정의 시작, 《MMCA 과천프로젝트 2..
anc.masilwide.com
'Architecture Project > Single Family' 카테고리의 다른 글
| TROY (0) | 2022.05.25 |
|---|---|
| IWAKURA HOUSE (0) | 2022.05.25 |
| HOUSE LHOTKA (0) | 2022.05.24 |
| FENDALTON HOUSE (0) | 2022.05.23 |
| TTARO TTO GACHI HOUSE (0) | 2022.05.20 |
마실와이드 | 등록번호 : 서울, 아03630 | 등록일자 : 2015년 03월 11일 | 마실와이드 | 발행ㆍ편집인 : 김명규 | 청소년보호책임자 : 최지희 | 발행소 : 서울시 마포구 월드컵로8길 45-8 1층 | 발행일자 : 매일



