
Troy is a house where two generations live together. The parents live on the first floor and the son and his family on the second floor. From the first meeting, the client emphasized the independence of the first and second floors, but did not want to separate the entrance. The site was located facing the road north of the housing complex. Due to the characteristics of the housing complex, there was a step difference of about 1.5m from the previous lot and about 3.5m from the road, and it was partitioned by a concrete retaining wall. The long east-west piece of land was open to the west, where the light of the west and the gentle wind were pleasant.
The basic concept of the design began with consideration of the shape of the land and the surrounding conditions. The scenery is good in the east, west, and south, but not in the north. If another two- or three- story building was built on the south site, the view from the front would be considerably obscured. The east side would block the side of the building, so the best use was the west side. Although the west side faces the road, the site is 3.5m high, so it is sunny. The yard can be a fairly private yard if it is shielded with low landscaping.
On the north and south sides, large windows could decrease the privacy from other buildings, so the windows were placed slightly higher to let in light and air. It was suggested that the orientation of the living rooms on the first and second floors be to the west with the courtyard. In addition, the floor height of each living room was raised so that the light from the west could enter the depths of the house.
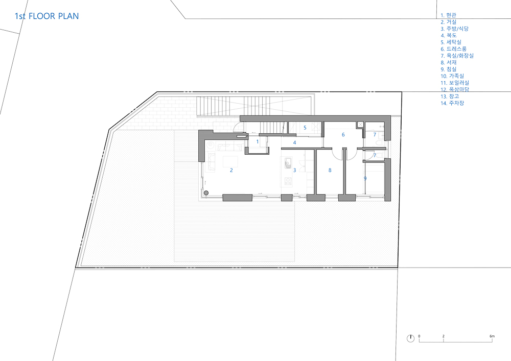
What I was most worried about was the movement line on the second floor requested by the client’s son’s family. Unlike other houses, they wanted the laundry and toilet areas to be accessed first when entering the house, then the room, and finally the cozy kitchen and living room. This configuration was the exact opposite of the one of his parents right below them. The skeleton of Troy was completed by using a long straight staircase to balance the difference between the upper and lower floor heights and arrangements, and the upper and lower floors were connected in a structured way. The appearance of two equally bright brick masses slanted from east to west, inserted between the two floors, illustrates that the two generations coexist vertically and harmoniously.
As the living room of the son’s family was located above the ceiling of the living room on the first floor, naturally the second floor became a living room full of light from the west, and an interesting indoor staircase was built that gradually increases in width. It has a strong influence on the elevation, and the height of the south window rises toward the west. The rooftop space, accessible through a small room on the third floor, was created as a cozy and private rooftop yard where the eyes of neighbors do not reach. The shape of this vertical space is like a Trojan horse, and so the house was named Troy.

서로 다른 라이프스타일의 수직적 공존, 트로이
트로이는 1층 부모님 세대와 2층 아들 세대가 함께 사는 주택이다. 처음 미팅 때부터 건축주는 1층과 2층의 독립성을 강조했지만, 입구를 분리하고 싶어하지는 않았다. 대지는 주택단지의 북쪽 도로와 맞닿아 있는 곳에 있었다. 주택단지의 특성상 앞 필지와는 1.5m 정도, 도로와는 3.5m 정도 단차가 있었고, 콘크리트 옹벽으로 구획되어 있었다. 동서로 긴 모양의 땅은 서쪽으로 열려 있었는데, 서쪽의 빛과 온순한 바람이 기분을 좋게 하는 곳이었다.
디자인의 기본적인 개념은 이 땅의 형상과 주변 현황을 고려하며 출발했다. 경관은 북쪽을 뺀 동, 서, 남쪽이 좋았지만, 남쪽 대지에 다른 2~3층의 건물이 들어서면 전면의 조망을 많이 가릴 것이었다. 동쪽은 건물의 옆면을 막아서게 될 것이었기에, 가장 잘 활용할 수 있는 곳은 서쪽이었다. 서쪽은 도로에 면해있지만 대지가 3.5m나 높아 해가 잘 들고, 조경으로 낮게 차폐를 하면 제법 프라이빗한 마당이 될 수 있는 곳이었다. 북쪽과 남쪽은 큰 창을 내면 다른 건물로부터 프라이버시가 침해될 수 있었기에, 창을 조금 높게 두어 빛과 바람이 잘 들어오게 했다. 1, 2층 거실의 방향은 마당을 품고 있는 서쪽에 두길 제안했다. 또, 각 거실의 층고를 방보다 높여 서향 빛이 집의 깊은 곳까지 들어올 수 있게 했다.
무엇보다 고심했던 것은 2층 아들 가족이 요구한 동선이었다. 여느 집과는 다르게 집에 들어왔을 때 가장 먼저 세탁실과 화장실이 나오고, 그다음으로 방, 마지막으로 아늑한 주방과 거실이 나타나길 바랐다. 이 동선은 바로 밑 부모님의 동선과는 정반대였다. 위아래의 층고와 동선의 차이를 맞추기 위해 긴 일자 계단을 사용해서 위층과 아래층이 짜임새 있게 연결하면서 트로이의 골격이 완성되었다. 동서로 경사진 두 개의 같은 듯 다른 밝은 벽돌 매스가 서로 끼워져 있는 모습은 두 세대가 수직적으로 조화롭게 공존하고 있는 것을 보여준다.
1층 거실의 높은 층고 위로 아들 가족의 거실이 위치하면서 자연스럽게 2층은 서향 빛으로 가득한 거실이 되었고, 점차 높아지는 흥미로운 실내계단이 생겨났다. 입면에도 강한 영향을 주면서 남쪽 창의 높이가 서쪽으로 갈수록 점점 더 높아지게 된다. 3층의 작은 방을 통해 나갈 수 있는 옥상공간은 이웃의 시선이 닿지 않는 아늑하고 독립적인 옥상마당으로 조성했다. 이런 수직적으로 조성된 공간의 모습이 마치 트로이 목마 같아 주택의 이름을 TROY로 짓게 되었다.



















Architects KUOTAA | 쿠오타건축사사무소
Location Ahyeon-ro, Ilsan-dong-gu, Goyang-si, Gyeonggi-do, Republic of Korea
Program Multi family house
Site area 335.60㎡
Building area 88.68㎡
Gross floor area 210.84㎡
Building scope B1, 3F
Building to land ratio 24.95%
Floor area ratio 42.20%
Design period 2018. 4 - 2019. 1
Construction period 2019. 4 - 2020. 4
Completion 2020. 5
Principal architect / Project architect John Sohn
Design team Daehan Kim, Kyungseop Lee
Structural engineer Millennium
Mechanical engineer / Electrical engineer Kordam eng.
Construction SmartA
Client Jaeyeol Shin
Photographer Inwoo Yeo
해당 프로젝트는 건축문화 2022년 3월호(Vol. 490)에 게재되었습니다.
The project was published in the March, 2022 recent projects of the magazine(Vol. 490).
March 2022 : vol. 490
Contents : RECORDS THE BEGINNING OF THE JOURNEY TO THE MUSEUM OF ART IN THE FOREST, 《MMCA GWACHEON PROJECT 2021: ART BUS SHELTER》 숲 속 미술관으로 가는 여정의 시작, 《MMCA 과천프로젝트 2..
anc.masilwide.com
'Architecture Project > Single Family' 카테고리의 다른 글
| VILLA LP (0) | 2022.05.27 |
|---|---|
| SWISSHOUSE XXXVI (0) | 2022.05.26 |
| IWAKURA HOUSE (0) | 2022.05.25 |
| UNHADAM AKA NC1211 (0) | 2022.05.24 |
| HOUSE LHOTKA (0) | 2022.05.24 |
마실와이드 | 등록번호 : 서울, 아03630 | 등록일자 : 2015년 03월 11일 | 마실와이드 | 발행ㆍ편집인 : 김명규 | 청소년보호책임자 : 최지희 | 발행소 : 서울시 마포구 월드컵로8길 45-8 1층 | 발행일자 : 매일



